C
Chase154308.01.19 16:42Hallo!
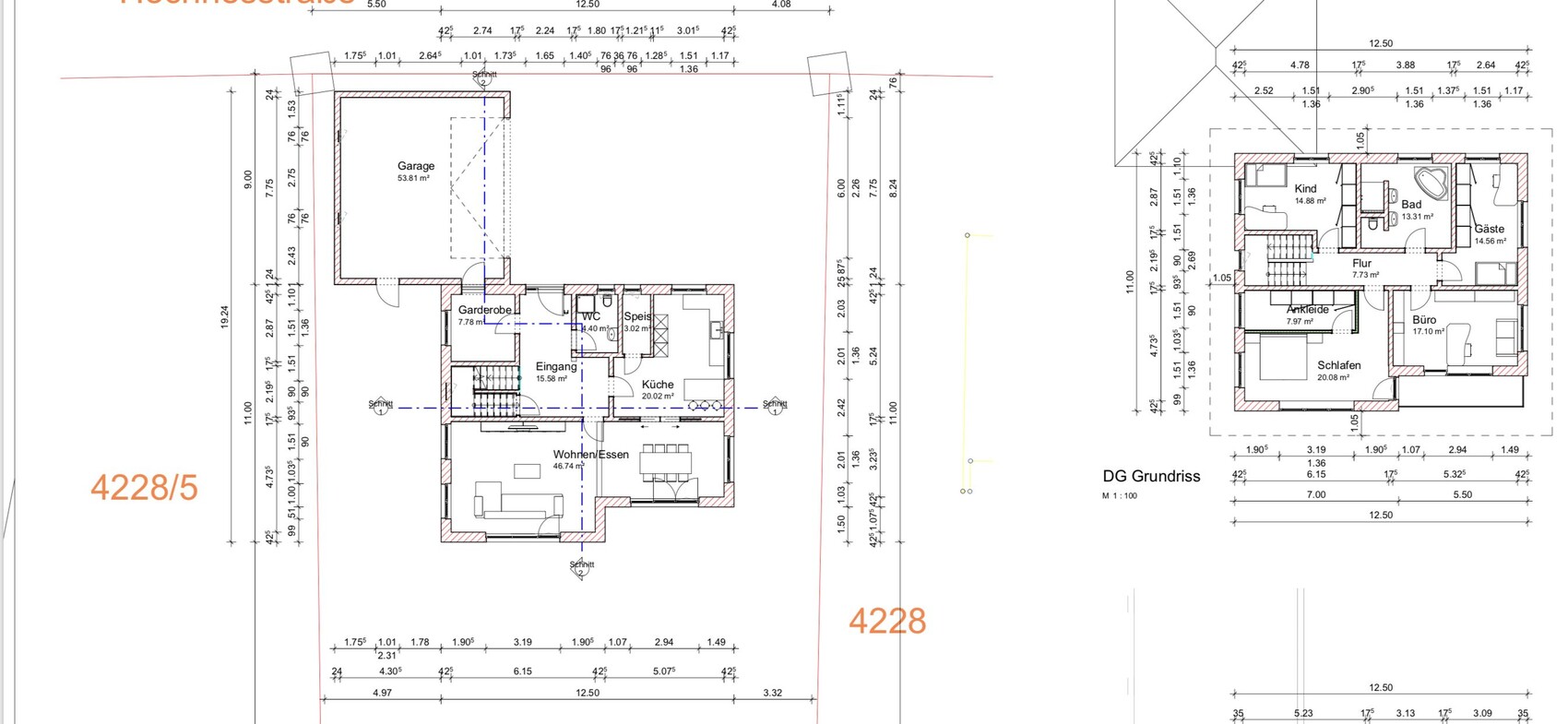
Unser Plan von einer Stadtvilla ist im fortgeschrittenen Zustand und soweit sind wir auch zufrieden mit der Zimmeraufteilung. Diese haben wir uns großteils selber geplant.
Allerdings sind wir bei drei Sachen noch nicht so zufrieden.
1. Im Erdgeschoss die Speis wird wohl zu klein werden, zumal noch ein Wäscheabwurf rein soll, welcher direkt oben rechts neben dem Fenster laufen wird. Dieser kommt vom obigen Bad. Wie kann ich den Raum etwas erweitern, ohne dass es der Küche groß "weh" tut?
2. Im Obergeschoss das Bad. Habt ihr Tipps wie die Raumaufteilung anders sein könnte, damit der Raum luftiger und größer wirkt. Zu bedenken ist auch der Wäscheabwurf, welcher noch dazu kommen soll.
3. Das Ankleidezimmer ist etwas zu "Schlauchartig". Wie kann man das anders lösen um beim anliegenden Schlafzimmer keine Probleme zu haben um das Bett herum gehen zu können?
Für paar Tipps wäre ich sehr dankbar 🙂

Unser Plan von einer Stadtvilla ist im fortgeschrittenen Zustand und soweit sind wir auch zufrieden mit der Zimmeraufteilung. Diese haben wir uns großteils selber geplant.
Allerdings sind wir bei drei Sachen noch nicht so zufrieden.
1. Im Erdgeschoss die Speis wird wohl zu klein werden, zumal noch ein Wäscheabwurf rein soll, welcher direkt oben rechts neben dem Fenster laufen wird. Dieser kommt vom obigen Bad. Wie kann ich den Raum etwas erweitern, ohne dass es der Küche groß "weh" tut?
2. Im Obergeschoss das Bad. Habt ihr Tipps wie die Raumaufteilung anders sein könnte, damit der Raum luftiger und größer wirkt. Zu bedenken ist auch der Wäscheabwurf, welcher noch dazu kommen soll.
3. Das Ankleidezimmer ist etwas zu "Schlauchartig". Wie kann man das anders lösen um beim anliegenden Schlafzimmer keine Probleme zu haben um das Bett herum gehen zu können?
Für paar Tipps wäre ich sehr dankbar 🙂
Wo ist Norden?
Die Küche sieht aus, als sollte es die eierlegende Wollmichsau werden. Mit Speis, aber nicht zu offen, Insel mit Sitzgelegenheit soll es aber trotzdem sein. Gefällt mir nicht. Soll das gemütlich sein mit den drei Hockern so dicht an der Wand?
Vielleicht Speis um 90 Grad drehen und plan rechts oben. Also "über" die Küche?
4,5qm für ein Gäste-WC mit Dusche gehen gut. Da seh ich nicht das Problem eher im Wäscheabwurfschacht. Würde aber mit drehen der Speis eher Platz schaffen.
Ist das eine realistische möblierung im Esszimmer. Sieht mir nicht gerade großzügig aus. Die Trennung zur Küche muss sein?
OG Bad? 13,3qm ist nicht wenig. Was meinst mit luftig? Schmeiss das T raus. Ist ja sehr in Mode, nimmt aber auch gerade die Luftigkeit.
Das Gästezimmer um die Kurve ist etwas seltsam
Schlafzimmer und Ankleide sind auch speziell. Fällt mir noch nix zu ein. Hätte gesagt auch da mal versuchen zu drehen aber ich nehme an das Schlafzimmer soll Zugang zum Balkon haben?
Die Küche sieht aus, als sollte es die eierlegende Wollmichsau werden. Mit Speis, aber nicht zu offen, Insel mit Sitzgelegenheit soll es aber trotzdem sein. Gefällt mir nicht. Soll das gemütlich sein mit den drei Hockern so dicht an der Wand?
Vielleicht Speis um 90 Grad drehen und plan rechts oben. Also "über" die Küche?
4,5qm für ein Gäste-WC mit Dusche gehen gut. Da seh ich nicht das Problem eher im Wäscheabwurfschacht. Würde aber mit drehen der Speis eher Platz schaffen.
Ist das eine realistische möblierung im Esszimmer. Sieht mir nicht gerade großzügig aus. Die Trennung zur Küche muss sein?
OG Bad? 13,3qm ist nicht wenig. Was meinst mit luftig? Schmeiss das T raus. Ist ja sehr in Mode, nimmt aber auch gerade die Luftigkeit.
Das Gästezimmer um die Kurve ist etwas seltsam
Schlafzimmer und Ankleide sind auch speziell. Fällt mir noch nix zu ein. Hätte gesagt auch da mal versuchen zu drehen aber ich nehme an das Schlafzimmer soll Zugang zum Balkon haben?
C
Chase154308.01.19 17:46Norden ist wo die Speis ist.
Danke für den Vorschlag mit der Speis drehen! Muss ich mir gleich anschauen.
Der Zugang zur Küche vom Wohnzimmer ist bewusst so gemacht dass man es mit einer Schiebetür schliessen kann. Das wollen wir so.
Wegen Bad. Da hast Recht. Denke mir auch dass das ‚T‘ die Luftigkeit wegnimmt. Aver wie am besten anders?
Die Toilette sollte (wenn möglich) schon bissl hinter einer Trennwand versteckt sein.
Danke für den Vorschlag mit der Speis drehen! Muss ich mir gleich anschauen.
Der Zugang zur Küche vom Wohnzimmer ist bewusst so gemacht dass man es mit einer Schiebetür schliessen kann. Das wollen wir so.
Wegen Bad. Da hast Recht. Denke mir auch dass das ‚T‘ die Luftigkeit wegnimmt. Aver wie am besten anders?
Die Toilette sollte (wenn möglich) schon bissl hinter einer Trennwand versteckt sein.
Ähnliche Themen