Hallo,
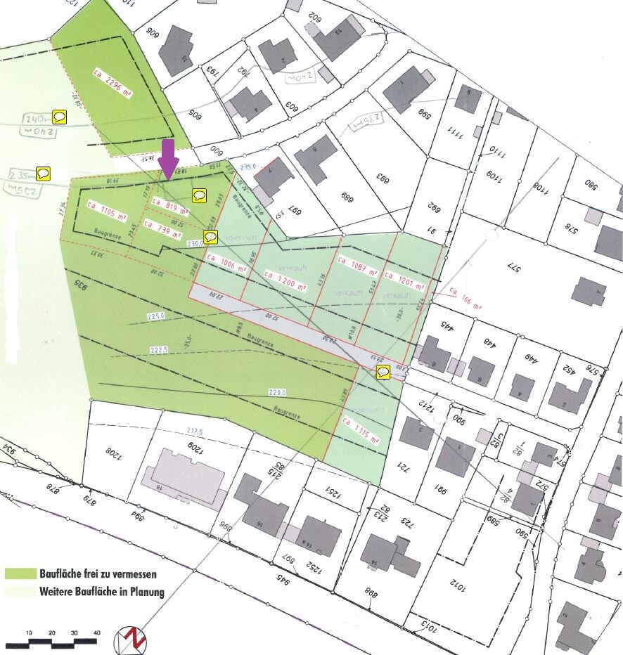
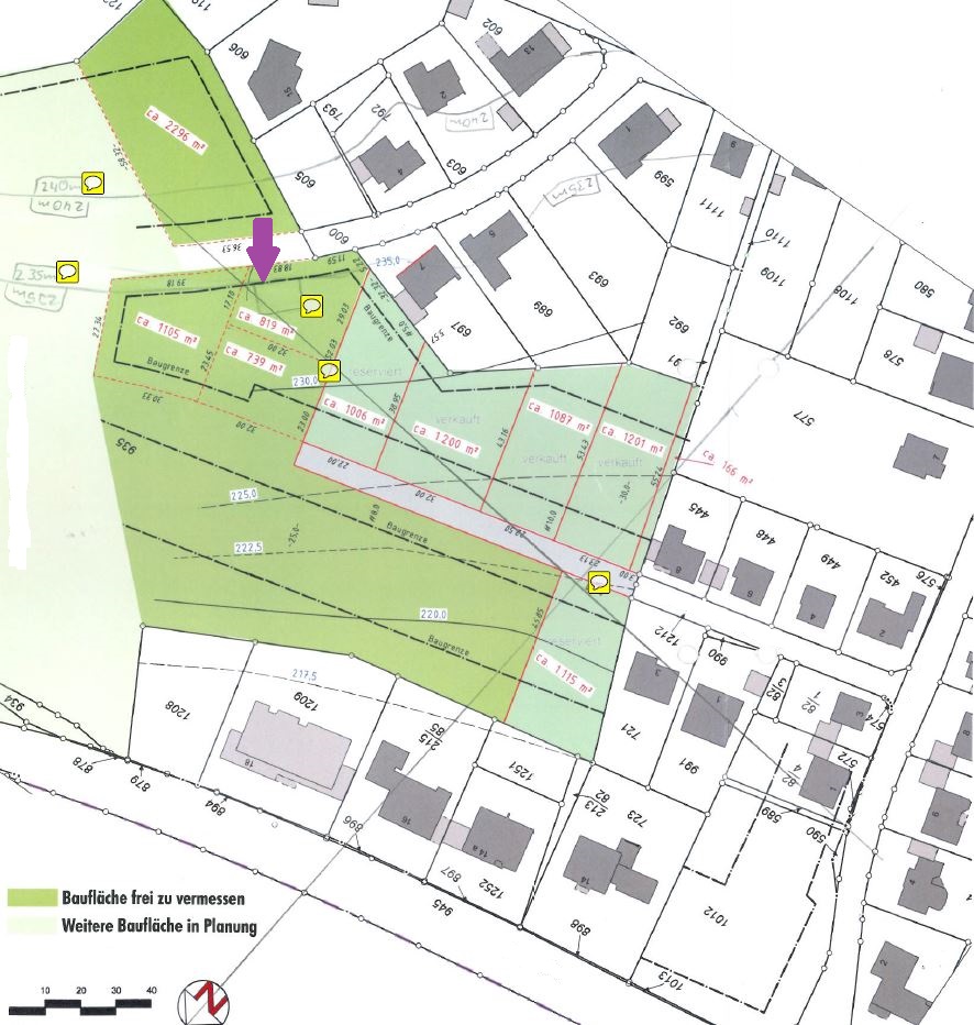
(für alle Infos siehe auch Ansicht Baugebiet sowie Plan zur Kanalführung)
das Grundstück, welches wir kaufen wollen, liegt am Hang und hat von oben her eine Straße.
Diese Straße berührt das Grundstück jedoch nur auf einer Länge von ca. 12m.
Dann ist die Straße erst einmal zu Ende und geht in die Wiese (gesamtes Baugebiet) über.
Das Baugebiet ist in zwei Phasen eingeteilt. Phase zwei soll erst kommen, wenn die meisten Grundstücke der Phase eins verkauft und bebaut sind.
Die eben genannte Straße soll auch erst im Rahmen der Phase zwei fortgeführt werden.
Zuleitungen (Wasser, Strom, Gas) können/sollen über das Stück Straße erfolgen. Da das Haus im hinteren Teil entstehen soll, müssen wir die Zuleitungen auf unserem Grundstück also etwas länger als nur Senkrecht zur Straße verlegen.
Ca. 50m weiter Hang abwärts verläuft eine weitere Straße, in etwa parallel zur oberen.
Die untere Straße wurde nun im Rahmen von Phase 1 fortgeführt und ist in etwa so weit wie die obere Straße.
In Phase zwei sollen beide Straßen im weiteren Teil des Baugebietes mit einer leichten Serpentine miteinander verbunden werden.
Aufgrund der Hanglage sollen wir Regen- und Brauchwasser nach unten hin abführen.
Dazu müssen wir eine entsprechende Leitung nach unten über das Nachbargrundstück zur dort befindlichen Straße führen. Der Verlauf über das Nachbargrundstück wird zusammen mit dem Kaufvertrag notariell in einem separatem Vertrag zusammen mit den Nachbarn (die zeitgleich kaufen) geregelt.
Für diese Maßnahme teilen wir uns dann mit den genannten unteren Nachbarn einen Revisionsschacht, an welchen wir beide anschließen und welcher dann in den dort anliegenden städtischen Kanal angeschlossen wird.
Dafür hat die Stadt bereits ein Kanalrohl auf die Ecke des Nachbargrundstücks verlegt. Hierfür werden noch Kosten in Höhe von ca. 3000€ in Rechnung gestellt werden, welche wir uns mit den Nachbarn teilen sollen.
Nochmal zusammengefasst:
- die Erschließung von oben muss ich beauftragen und selbst bezahlen
- die Straße oben wird vorerst nicht fortgeführt
- die Entwässerung nach unten müssen wir ebenfalls selbst bezahlen
Nun zu meiner Frage:
Wenn nun eines Tages der Endausbau für Phase zwei stattfindet. Welche Kosten davon müssen wir mittragen?
Aus meiner Sicht würde ich ja sagen, dass alle noch entstehenden Kanalkosten uns nicht betreffen dürften, wir haben die Maßnahmen ja nun bereits bezahlt.
Welchen Teil der Straße vom Endausbau muss ich mittragen? Den des gesamten gebietes, sprich auch den Teil der unteren Straße oder nur die 22m die mein Grundstück noch nicht von der Straße berührt sind?
Oder kann es auch passieren, dass für jedes Teilstück dass nach und nach gebaut wird, wir ebenfalls Stück für Stück zur Kasse gebeten werden?
Und falls ja: müssten sich die, die vor mir bereits bauen, dann nicht auch an den speziell für uns erstellten Maßnahmen beteiligen?
Ich habe mit dem Herren von der Stadt zu dem Thema telefoniert.
Seine erste Aussage war: Stand jetzt steht das alles in den Sternen wann mit Phase zwei begonnen werden soll, läge letztlich am Verkäufer/ Eigentümer des Baugebietes.
Zum Kanalbeitrag meinte er wäre es ja unsinnig, wenn wir den weiteren Kanalausbau mitfinanzieren müssten, dass würde nicht auf uns zu kommen.
Schriftlich wollte er mir das aber aus Prinzip nicht geben.
Ich habe nun etwas Muffe, dass da in 5 Jahren Beiträge auf uns zukommen, die uns gar nicht betreffen und wir doppelt Zahlen für die Vorwegmaßnahmen und die nachträglichen auch.
Wie ist denn eure Meinung dazu und was könnte ich im Vorfeld vor Kauf unternehmen um mich dort besser aufzustellen/ abzusichern?
Ne Rechtsschutzversicherung habe ich schonmal, aber die wollte ich eigentlich nicht schon im Vorfeld anrufen.
Vielen Dank für eure Hilfe.


(für alle Infos siehe auch Ansicht Baugebiet sowie Plan zur Kanalführung)
das Grundstück, welches wir kaufen wollen, liegt am Hang und hat von oben her eine Straße.
Diese Straße berührt das Grundstück jedoch nur auf einer Länge von ca. 12m.
Dann ist die Straße erst einmal zu Ende und geht in die Wiese (gesamtes Baugebiet) über.
Das Baugebiet ist in zwei Phasen eingeteilt. Phase zwei soll erst kommen, wenn die meisten Grundstücke der Phase eins verkauft und bebaut sind.
Die eben genannte Straße soll auch erst im Rahmen der Phase zwei fortgeführt werden.
Zuleitungen (Wasser, Strom, Gas) können/sollen über das Stück Straße erfolgen. Da das Haus im hinteren Teil entstehen soll, müssen wir die Zuleitungen auf unserem Grundstück also etwas länger als nur Senkrecht zur Straße verlegen.
Ca. 50m weiter Hang abwärts verläuft eine weitere Straße, in etwa parallel zur oberen.
Die untere Straße wurde nun im Rahmen von Phase 1 fortgeführt und ist in etwa so weit wie die obere Straße.
In Phase zwei sollen beide Straßen im weiteren Teil des Baugebietes mit einer leichten Serpentine miteinander verbunden werden.
Aufgrund der Hanglage sollen wir Regen- und Brauchwasser nach unten hin abführen.
Dazu müssen wir eine entsprechende Leitung nach unten über das Nachbargrundstück zur dort befindlichen Straße führen. Der Verlauf über das Nachbargrundstück wird zusammen mit dem Kaufvertrag notariell in einem separatem Vertrag zusammen mit den Nachbarn (die zeitgleich kaufen) geregelt.
Für diese Maßnahme teilen wir uns dann mit den genannten unteren Nachbarn einen Revisionsschacht, an welchen wir beide anschließen und welcher dann in den dort anliegenden städtischen Kanal angeschlossen wird.
Dafür hat die Stadt bereits ein Kanalrohl auf die Ecke des Nachbargrundstücks verlegt. Hierfür werden noch Kosten in Höhe von ca. 3000€ in Rechnung gestellt werden, welche wir uns mit den Nachbarn teilen sollen.
Nochmal zusammengefasst:
- die Erschließung von oben muss ich beauftragen und selbst bezahlen
- die Straße oben wird vorerst nicht fortgeführt
- die Entwässerung nach unten müssen wir ebenfalls selbst bezahlen
Nun zu meiner Frage:
Wenn nun eines Tages der Endausbau für Phase zwei stattfindet. Welche Kosten davon müssen wir mittragen?
Aus meiner Sicht würde ich ja sagen, dass alle noch entstehenden Kanalkosten uns nicht betreffen dürften, wir haben die Maßnahmen ja nun bereits bezahlt.
Welchen Teil der Straße vom Endausbau muss ich mittragen? Den des gesamten gebietes, sprich auch den Teil der unteren Straße oder nur die 22m die mein Grundstück noch nicht von der Straße berührt sind?
Oder kann es auch passieren, dass für jedes Teilstück dass nach und nach gebaut wird, wir ebenfalls Stück für Stück zur Kasse gebeten werden?
Und falls ja: müssten sich die, die vor mir bereits bauen, dann nicht auch an den speziell für uns erstellten Maßnahmen beteiligen?
Ich habe mit dem Herren von der Stadt zu dem Thema telefoniert.
Seine erste Aussage war: Stand jetzt steht das alles in den Sternen wann mit Phase zwei begonnen werden soll, läge letztlich am Verkäufer/ Eigentümer des Baugebietes.
Zum Kanalbeitrag meinte er wäre es ja unsinnig, wenn wir den weiteren Kanalausbau mitfinanzieren müssten, dass würde nicht auf uns zu kommen.
Schriftlich wollte er mir das aber aus Prinzip nicht geben.
Ich habe nun etwas Muffe, dass da in 5 Jahren Beiträge auf uns zukommen, die uns gar nicht betreffen und wir doppelt Zahlen für die Vorwegmaßnahmen und die nachträglichen auch.
Wie ist denn eure Meinung dazu und was könnte ich im Vorfeld vor Kauf unternehmen um mich dort besser aufzustellen/ abzusichern?
Ne Rechtsschutzversicherung habe ich schonmal, aber die wollte ich eigentlich nicht schon im Vorfeld anrufen.
Vielen Dank für eure Hilfe.
Anzeige
Ähnliche Themen