ᐅ Steiles Hang Grundstück, Bitte um Einschätzung
Erstellt am: 13.04.20 16:27
Liebe Forengemeinde,
ich lese schon seit Jahren immer wieder mit und habe erst gestern und heute hier zwei knapp 50 Seiten Threads zu Hangbebauung gelesen.
Nun möchte ich hier um eine Einschätzung bitten.
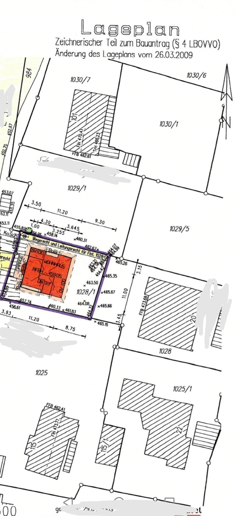
Im Schwarzwald habe ich ein kleines Hanggrundstück gefunden, das vor 10 Jahren eine Baugenehmigung erteilt bekam, dann aber, nach Angaben des Verkäufers aus privaten Gründen nicht realisiert wurde.
Beigefügt sieht man den steilen Geländeverlauf und die ursprüngliche Planung.
Laut Angabe Verkäufer ist ein Bodengutachten nicht vorhanden.
Der Geländeschnitt aber mit vielen Höhenangaben.
Grundstück ist klein. Grundsätzlich ok.
Zufahrt von unten. Bereits an der Grenze sind ca. 2,6 Meter Erdhöhe des Grundstücks.
Somit also riesige Volumen Erde zu bewegen/abzufahren.
Dazu kommend auf Grund des schmalen Grundstücks vermutlich hoher Aufwand Baugrube Sicherung etc...
Meine Fragen/Überlegungen:
1. Wie wird, auch ohne Glaskugel und leider bisher ohne Bodengutachten der Mehraufwand auf Grund der Hang Situation gesehen?
2. Kann hier mit 450.000 Euro Gesantkosten ohne Grundsrückspreis realistisch ein Haus für Familie mit 2 Teenagern realisiert werden? Ca. 130 bis 150 qm ohne Schnickschnack. Quadratisch, praktisch, gut?
Das ursprünglich geplante Haus hat mir schon zu viel Schnörkel und Extras...
3. Gibt es aus Eurer Sicht kostentechnisch realisierbar Alternativen, die weniger Erdaushub und Hang Sicherung bedingen? Z. B. Haus weiter oben ansetzen und dann z. B. vorne auf Stelzen/Stützen?
4. Würdet Ihr evtl. gleich das Grundstück wegen zu hohem Aufwand/Risiko verwerfen?
Vorab vielen Dank
Mike







ich lese schon seit Jahren immer wieder mit und habe erst gestern und heute hier zwei knapp 50 Seiten Threads zu Hangbebauung gelesen.
Nun möchte ich hier um eine Einschätzung bitten.
Im Schwarzwald habe ich ein kleines Hanggrundstück gefunden, das vor 10 Jahren eine Baugenehmigung erteilt bekam, dann aber, nach Angaben des Verkäufers aus privaten Gründen nicht realisiert wurde.
Beigefügt sieht man den steilen Geländeverlauf und die ursprüngliche Planung.
Laut Angabe Verkäufer ist ein Bodengutachten nicht vorhanden.
Der Geländeschnitt aber mit vielen Höhenangaben.
Grundstück ist klein. Grundsätzlich ok.
Zufahrt von unten. Bereits an der Grenze sind ca. 2,6 Meter Erdhöhe des Grundstücks.
Somit also riesige Volumen Erde zu bewegen/abzufahren.
Dazu kommend auf Grund des schmalen Grundstücks vermutlich hoher Aufwand Baugrube Sicherung etc...
Meine Fragen/Überlegungen:
1. Wie wird, auch ohne Glaskugel und leider bisher ohne Bodengutachten der Mehraufwand auf Grund der Hang Situation gesehen?
2. Kann hier mit 450.000 Euro Gesantkosten ohne Grundsrückspreis realistisch ein Haus für Familie mit 2 Teenagern realisiert werden? Ca. 130 bis 150 qm ohne Schnickschnack. Quadratisch, praktisch, gut?
Das ursprünglich geplante Haus hat mir schon zu viel Schnörkel und Extras...
3. Gibt es aus Eurer Sicht kostentechnisch realisierbar Alternativen, die weniger Erdaushub und Hang Sicherung bedingen? Z. B. Haus weiter oben ansetzen und dann z. B. vorne auf Stelzen/Stützen?
4. Würdet Ihr evtl. gleich das Grundstück wegen zu hohem Aufwand/Risiko verwerfen?
Vorab vielen Dank
Mike
Bis zum Gegenbeweis tendiere ich hier stark zu "vergiß´ es". Ohne Grund unterläßt man so eine Realisierung nicht - hier vermute ich Aufwände und Einschränkungen, die man schon zum geplanten "schicken" Haus nicht im Verhältnis sah. Das wird für ein schlichtes Dach über dem Kopf nicht gerade besser sein. Die alte Genehmigung kannst Du vergessen, die ist komplett verfallen. Starkhanggrundstücke sind nur etwas für unerschrockene Bergziegen mit der Bereitschaft, geländebedingt ähnlich viele Koffer voller Geld zu investieren wie auf einem Flachgrundstück für eine Willah mit Sahne.
https://www.instagram.com/11antgmxde/
https://www.linkedin.com/company/bauen-jetzt/
https://www.instagram.com/11antgmxde/
https://www.linkedin.com/company/bauen-jetzt/
Wir bauen auch am Hang und ich empfehle dir von dem Grundstück Abstand zu nehmen. Für 450.000 € bekommst du ein Haus nach deinen Vorstellungen auf dem platten Land.
In dem hier von dir gezeigten Fall werden aber, wie du schon richtig bemerkst hast, erhebliche Kosten allein für die Gangbarmachung auf dich zukommen. Das Material muss ja irgendwie den Hang hochkommen. Außerdem kommen massive Kosten entweder für die Hangsicherung bei losem Boden oder für die Erdarbeiten bei festem Boden auf dich zu. Zusätzlich werden die Außenanlagen richtig teuer.
Warum soll es denn genau dieses Grundstück seien?
In dem hier von dir gezeigten Fall werden aber, wie du schon richtig bemerkst hast, erhebliche Kosten allein für die Gangbarmachung auf dich zukommen. Das Material muss ja irgendwie den Hang hochkommen. Außerdem kommen massive Kosten entweder für die Hangsicherung bei losem Boden oder für die Erdarbeiten bei festem Boden auf dich zu. Zusätzlich werden die Außenanlagen richtig teuer.
Warum soll es denn genau dieses Grundstück seien?
H
hampshire13.04.20 17:20Mike1969 schrieb:
1. Wie wird, auch ohne Glaskugel und leider bisher ohne Bodengutachten der Mehraufwand auf Grund der Hang Situation gesehen?Ohne Glaskugel nein, 50% nicht unrealistischMike1969 schrieb:
2. Kann hier mit 450.000 Euro Gesantkosten ohne Grundsrückspreis realistisch ein Haus für Familie mit 2 Teenagern realisiert werden?Nein - nicht einmal mit extrem viel Eigenanteil, denn die teuren Arbeiten sind was für Profis.Mike1969 schrieb:
3. Gibt es aus Eurer Sicht kostentechnisch realisierbar Alternativen, die weniger Erdaushub und Hang Sicherung bedingen?Man müsste auf den Hang statt hinein bauen können, das scheint aufgrund der Grundstücksgröße schwer möglich.Mike1969 schrieb:
4. Würdet Ihr evtl. gleich das Grundstück wegen zu hohem Aufwand/Risiko verwerfen?Ja, wenn der finanzielle Background Risiko erlaubt. Wir haben so ein Projekt realisiert und hätten für das Geld wie @11ant im Flachland locker doppelt so viel Wohnfläche bekommen.Warnung aus eigener Erfahrung:
Unser Grundstück sieht im Schnitt Deinem sehr ähnlich, ist aber etwas größer. Ursprünglich waren es drei Bau- und ein Waldgrundstück welches wir nun bewohnen. Jedes der Baugrundstücke hatte zwischen 720 und 900qm. Vermarktet wurden sie durch einen Insolvenzverwalter eines früheren Bauträgers, ein Maklerbüro und eine örtliche Bank. Für ein 720 Grundstück eine halbe Autostunde von Köln entfernt rief man 39.000€ auf und wurde es 10 Jahre lang nicht los. Grund: Die eklatant hohen Baukosten für einen Käufer. Wir haben dann ein Angebot für die gesamten 1,5Ha gemacht und wurden uns einig. Die waren froh das unverkäufliche Stück Land endlich los zu sein und wir hatten nun sehr nette Nachbarn, die uns in einer Mischung aus Neugier und Mitleid aufnahmen. Am Ende haben wir ein paar Hunderttausend mehr gezahlt als wir ursprünglich planten. Wir wollten das so und es ging halt. Wir würden es auch noch mal so machen. Mit knappem Budget und ohne Reserven wäre es eine Katastrophe geworden.
Hallo Ihr Zwei,
Vielen Dank schon mal für die erste Rückmeldungen.
Das bestätigt leider mein Bauchgefühl.
Zumal drei Grundstücke weiter ebenfalls ein Bauplatz mit Baugenehmigung aber nicht realisiert angeboten wird.
Letztendlich kenne ich vermutlich schon die eindeutige Antwort auf meine Fragen.
Das ist nicht zwingend mein Traumgrundstück. Das habe ich mir aber nach mittlerweile dreijähriger Suche abgeschminkt.
Es könnte ein Kompromiss sein aus nicht ganz dörflich (Ärzte, Schulen, Lebensmittel im Ort) und zunächst bezahlbar. Was sich dann aber über die Folgekosten mehr als aufhebt...
Vielen Dank schon mal für die erste Rückmeldungen.
Das bestätigt leider mein Bauchgefühl.
Zumal drei Grundstücke weiter ebenfalls ein Bauplatz mit Baugenehmigung aber nicht realisiert angeboten wird.
Letztendlich kenne ich vermutlich schon die eindeutige Antwort auf meine Fragen.
Das ist nicht zwingend mein Traumgrundstück. Das habe ich mir aber nach mittlerweile dreijähriger Suche abgeschminkt.
Es könnte ein Kompromiss sein aus nicht ganz dörflich (Ärzte, Schulen, Lebensmittel im Ort) und zunächst bezahlbar. Was sich dann aber über die Folgekosten mehr als aufhebt...
H
hampshire13.04.20 17:29Wenn es nicht Dein Traumgrundstück ist, lass es in jedem Fall. Unseres war eben unser Traumgrundstück und wir genießen jeden Tag einen phantastischen Ausblick und sind dabei 100% privat. Sonst wäre es der Wahnsinn gewesen.
Ähnliche Themen