ᐅ Stauraum und Heizungsproblem...
Erstellt am: 08.01.17 18:34
M
Mygstylzz08.01.17 18:34Hallo zusammen,
Wir bauen ein Fertighaus (Stadtvilla Passivhaus Kfw 40 Plus ink Photovoltaikanlage knapp 160qm mit Kamin und Walmdach 25Grad Dachneigung)
Wir haben die Bauanzeige gestellt ohne Keller aus Kostengründen (lt. Hersteller Wohnkeller inkl Weisse Wand ca. 60.000 Eur und aus dem Aspekt das wir mit Keller in Mietwohnungen so schlechte Erfahrungen gemacht haben.
Jetzt kommt mir seit 2 Wochen der Gedanke nicht mehr los dass dies ein Fehler sein wird. wohin wenn wir mal feiern wollen, wohin mit dem Hobbyraum, Winterklamotten, Flohmarkkisten , Fitnessgerät, wohin mit unsren Urlaubserinnerungsmitbringsel, wohin mit meinen Dekosachen UVM. und was is wenn wir doch mal eine Sauna noch machen wollen.
Leider sind die Räume oben schon total ausgelastet. Uns kam die Idee eines Gästehauses im Garten was auch als Hobby raum und Abstellfläche dienen sollte. Nur bekamen wir von unsrem Architekt die Nachricht dass dies wohl Definitiv nicht genehmigt wird. Wir dürften nur 30 m3 bauen. Ein Wintergarten wäre zu klein und auch recht teuer nach Recherche.
Brauch mal Erfahrungsberichte und ggf. Hilfestellung. Hab Angst das wir es echt bereuen und ich nicht glücklich werde.
Weiterhin wurde uns sehr das Luft Luft Wärmepumpensystem von Proxon ans Herz gelegt, Verkauf Proxon (Zimmermann Lüftung). Habe nun aber grade in den Kalten Tagen sehr grosse Bedenken dass der Boden (wir haben unten Fliesen und oben Laminat) viel zu Kalt wird besonders für unser Baby. Uns wurde dazu gesagt dass man bei den Fußbodenheizungen heutzutage gar nicht mehr so ein Wärmeempfinden hat. Wir sind unsicher welche Heizart die Richtige für uns ist.
Und eine Sache noch. Wir haben eine Garage mit Platz für ein Auto und einem kleinen Abstellraum. Mehr geht leider vom Grundstück her nicht.
Ich weiss auch nicht ob es besser gewesen wäre eine Tür ins Haus zu legen von der Garage dass haben wir auch erst jetzt als evtl. wirklich notwendig empfunden.
Ich hab immer das Gefühl doch wieder was zu vergessen bei der Hausplanung was ich evtl. mal bereue und liege nun Nächte wach. Kann einfach nicht abschaltet.
Wir bauen ein Fertighaus (Stadtvilla Passivhaus Kfw 40 Plus ink Photovoltaikanlage knapp 160qm mit Kamin und Walmdach 25Grad Dachneigung)
Wir haben die Bauanzeige gestellt ohne Keller aus Kostengründen (lt. Hersteller Wohnkeller inkl Weisse Wand ca. 60.000 Eur und aus dem Aspekt das wir mit Keller in Mietwohnungen so schlechte Erfahrungen gemacht haben.
Jetzt kommt mir seit 2 Wochen der Gedanke nicht mehr los dass dies ein Fehler sein wird. wohin wenn wir mal feiern wollen, wohin mit dem Hobbyraum, Winterklamotten, Flohmarkkisten , Fitnessgerät, wohin mit unsren Urlaubserinnerungsmitbringsel, wohin mit meinen Dekosachen UVM. und was is wenn wir doch mal eine Sauna noch machen wollen.
Leider sind die Räume oben schon total ausgelastet. Uns kam die Idee eines Gästehauses im Garten was auch als Hobby raum und Abstellfläche dienen sollte. Nur bekamen wir von unsrem Architekt die Nachricht dass dies wohl Definitiv nicht genehmigt wird. Wir dürften nur 30 m3 bauen. Ein Wintergarten wäre zu klein und auch recht teuer nach Recherche.
Brauch mal Erfahrungsberichte und ggf. Hilfestellung. Hab Angst das wir es echt bereuen und ich nicht glücklich werde.
Weiterhin wurde uns sehr das Luft Luft Wärmepumpensystem von Proxon ans Herz gelegt, Verkauf Proxon (Zimmermann Lüftung). Habe nun aber grade in den Kalten Tagen sehr grosse Bedenken dass der Boden (wir haben unten Fliesen und oben Laminat) viel zu Kalt wird besonders für unser Baby. Uns wurde dazu gesagt dass man bei den Fußbodenheizungen heutzutage gar nicht mehr so ein Wärmeempfinden hat. Wir sind unsicher welche Heizart die Richtige für uns ist.
Und eine Sache noch. Wir haben eine Garage mit Platz für ein Auto und einem kleinen Abstellraum. Mehr geht leider vom Grundstück her nicht.
Ich weiss auch nicht ob es besser gewesen wäre eine Tür ins Haus zu legen von der Garage dass haben wir auch erst jetzt als evtl. wirklich notwendig empfunden.
Ich hab immer das Gefühl doch wieder was zu vergessen bei der Hausplanung was ich evtl. mal bereue und liege nun Nächte wach. Kann einfach nicht abschaltet.
M
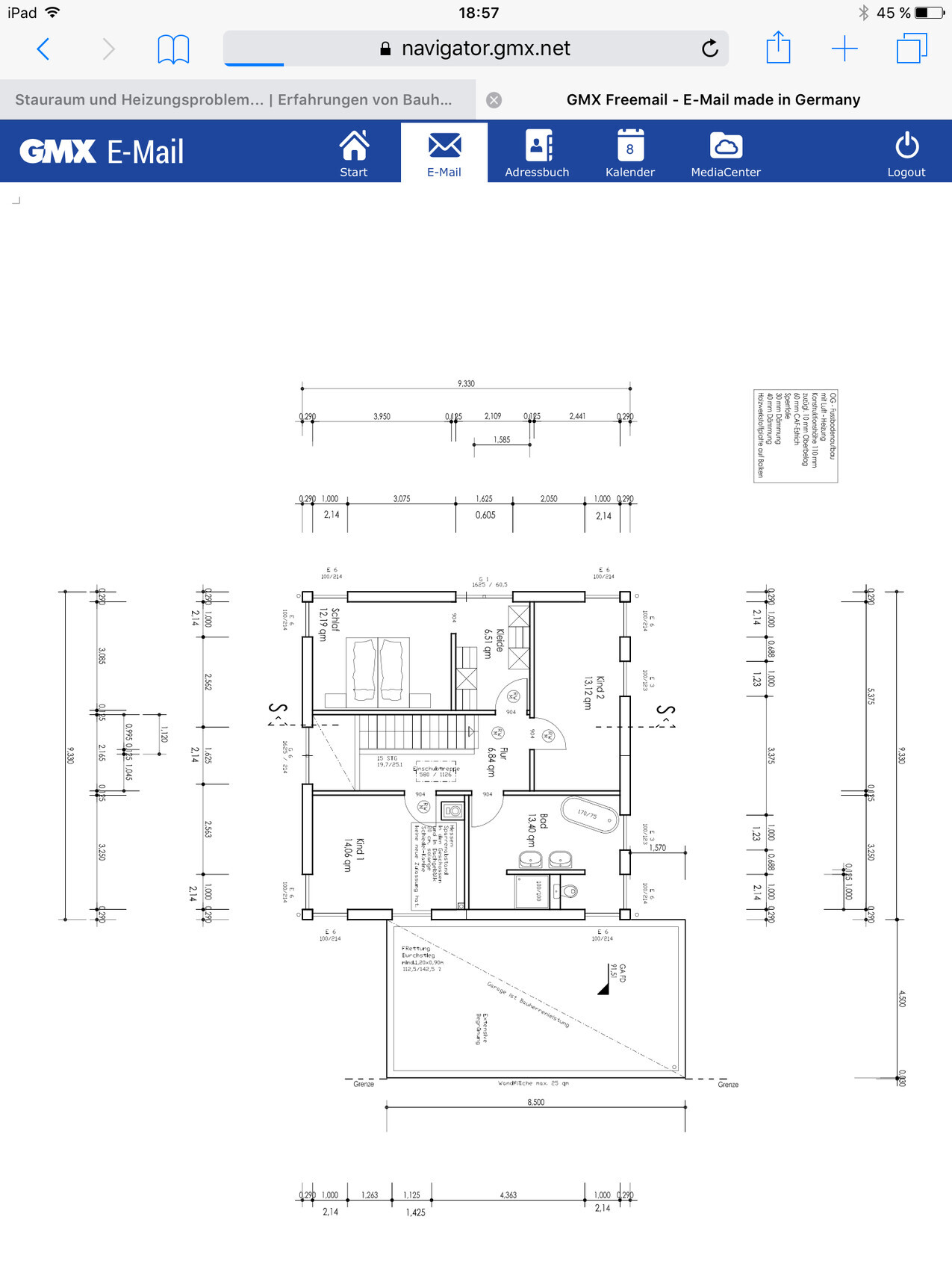
Mygstylzz08.01.17 18:58Man kann die Grundrisse kaum erkennen, vielleicht mal als PDF einscannen. Und, sinnvoll ist auch die Berücksichtigung von
https://www.hausbau-forum.de/threads/grundrissplanung-unbedingt-vor-beitrag-erstellung-lesen.11714/
https://www.hausbau-forum.de/threads/grundrissplanung-unbedingt-vor-beitrag-erstellung-lesen.11714/
Hallo 🙂
Ich kann leider die Maße schlecht lesen - ist das Haus wirklich nur 9,30 im Quadrat?
Ich halte einen Keller nicht unbedingt für notwendig, das sind ja auch Kosten.... allerdings könnte hier und da ein halber Meter mehr ganz gut tun.
https://www.hausbau-forum.de/threads/macht-ein-keller-in-bawue-immer-sinn-wegen-hohem-Grundstück-qm-preis.16782/
https://www.hausbau-forum.de/threads/keller-ja-oder-nein-bei-grossem-baufenster.18055/
Beim Hobby: welches Hobby? die Planung eines Hobbyraumes sollte man vor der Planung eines Hauses wie Kinderzimmer mit berücksichtigen. Ansonsten kann man das Büro zum Nähen, das Sofa zum Surfen, den DB für die Eisenbahn und das WZ für Sport nutzen. Ein Finessgerät steht zum Verstauben herum, da sollte man auf Fitnessclub oder Laufen zurückgreifen 😉
Flohmarktkisten stehen bei uns im Regal in der Garage, Urlaubserinnerungen finden bei uns in der Gewürzschublade oder Regal ihren Platz.
Bei Euch fehlt tatsächlich etwas Stauraum. Und definitiv die Garderobe!!! Dafür könnte aber der Hauswirtschaftsraum etwas kleiner. Dort im Hauswirtschaftsraum unbedingt eine Wand frei planen, damit Ihr dort eine Schrankzeile machen könnt. Das kann das ganze Dekogedöns, Werkzeug, Putzsachen und Vorräte beherbergen.
Eure Speis finde ich überflüssig, die Tür stört auch für eine vernünftige Möblierung der Küche. ich würde die Tür Rtg Flur machen und dort unter der Treppe die Garderobe mit den unzähligen Jacken und Schuhen von Euch machen.
Hauswirtschaftsraum hat in der Mitte vergeudeten Raum... dafür kann man vor dem WC noch einen Einbauschrank setzen.
Oben ist die Ankleide zu schmal und auch der Slalomweg ist nicht durchdacht. Das Fenster dort weg und eine kleine begehbare quadratische Kleiderkammer wäre besser in der Nutzung. Aber hier sehe ich Potential, wenn das Haus 50cm in der Weite wächst.
Der Luftraum ist natürlich auch vergeudeter Raum, hat kaum Nutzen, ausser das es dort nach oben ziehen kann. Aber stehen und die tolle Aussicht nach unten geniessen wird dort keiner. - ich würde daraus noch einen Abstellraum machen.
Planerisch ist es jetzt nicht gerade klug, die Toilette im OG über das WZ zu setzen. Warum sind die Kinderzimmer nicht nebeneinander? Warum ist das Bad nicht über dem Hauswirtschaftsraum und Gäste-WC? Bitte füll den Link aus, den kbt09 Dir gepostet hat 🙂
Da gibt es noch einiges an Potential... für den Architekten!
Dürftet Ihr größer bauen oder verbietet es Euer Grundflächenzahl??? Ein Kostenthema wird es wohl weniger werden als ein Keller?! 😉
Warte mal ab, was Kerstin (@kbt09 ) für Dich an Ideen hat. Die Kritik sollte allerdings ähnlich ausfallen 😳
Viel Glück Yvonne
Ich kann leider die Maße schlecht lesen - ist das Haus wirklich nur 9,30 im Quadrat?
Ich halte einen Keller nicht unbedingt für notwendig, das sind ja auch Kosten.... allerdings könnte hier und da ein halber Meter mehr ganz gut tun.
https://www.hausbau-forum.de/threads/macht-ein-keller-in-bawue-immer-sinn-wegen-hohem-Grundstück-qm-preis.16782/
https://www.hausbau-forum.de/threads/keller-ja-oder-nein-bei-grossem-baufenster.18055/
Mygstylzz schrieb:
Hobbyraum, Winterklamotten, Flohmarkkisten , Fitnessgerät, wohin mit unsren Urlaubserinnerungsmitbringsel, wohin mit meinen Dekosachen UVM. und was is wenn wir doch mal eine Sauna noch machen wollen.
Beim Hobby: welches Hobby? die Planung eines Hobbyraumes sollte man vor der Planung eines Hauses wie Kinderzimmer mit berücksichtigen. Ansonsten kann man das Büro zum Nähen, das Sofa zum Surfen, den DB für die Eisenbahn und das WZ für Sport nutzen. Ein Finessgerät steht zum Verstauben herum, da sollte man auf Fitnessclub oder Laufen zurückgreifen 😉
Flohmarktkisten stehen bei uns im Regal in der Garage, Urlaubserinnerungen finden bei uns in der Gewürzschublade oder Regal ihren Platz.
Bei Euch fehlt tatsächlich etwas Stauraum. Und definitiv die Garderobe!!! Dafür könnte aber der Hauswirtschaftsraum etwas kleiner. Dort im Hauswirtschaftsraum unbedingt eine Wand frei planen, damit Ihr dort eine Schrankzeile machen könnt. Das kann das ganze Dekogedöns, Werkzeug, Putzsachen und Vorräte beherbergen.
Eure Speis finde ich überflüssig, die Tür stört auch für eine vernünftige Möblierung der Küche. ich würde die Tür Rtg Flur machen und dort unter der Treppe die Garderobe mit den unzähligen Jacken und Schuhen von Euch machen.
Hauswirtschaftsraum hat in der Mitte vergeudeten Raum... dafür kann man vor dem WC noch einen Einbauschrank setzen.
Oben ist die Ankleide zu schmal und auch der Slalomweg ist nicht durchdacht. Das Fenster dort weg und eine kleine begehbare quadratische Kleiderkammer wäre besser in der Nutzung. Aber hier sehe ich Potential, wenn das Haus 50cm in der Weite wächst.
Der Luftraum ist natürlich auch vergeudeter Raum, hat kaum Nutzen, ausser das es dort nach oben ziehen kann. Aber stehen und die tolle Aussicht nach unten geniessen wird dort keiner. - ich würde daraus noch einen Abstellraum machen.
Planerisch ist es jetzt nicht gerade klug, die Toilette im OG über das WZ zu setzen. Warum sind die Kinderzimmer nicht nebeneinander? Warum ist das Bad nicht über dem Hauswirtschaftsraum und Gäste-WC? Bitte füll den Link aus, den kbt09 Dir gepostet hat 🙂
Da gibt es noch einiges an Potential... für den Architekten!
Dürftet Ihr größer bauen oder verbietet es Euer Grundflächenzahl??? Ein Kostenthema wird es wohl weniger werden als ein Keller?! 😉
Warte mal ab, was Kerstin (@kbt09 ) für Dich an Ideen hat. Die Kritik sollte allerdings ähnlich ausfallen 😳
Viel Glück Yvonne
😉 .. ein grundlegender Punkt ist, man sollte Grundrisse immer maßstabsgerecht mit den Möbeln skizzieren, die man unbedingt unterbringen will.
Küche ist z. B. so nicht nutzbar und überhaupt, es wird hier im Grundriss mehr Platz suggeriert als es wohl dann vorhanden ist.
Kamin-Platzierung nimmt ja auch viel Platz weg und die Frage ist, ob der so überhaupt sinnvoll genutzt wird.
Die ganzen bodentiefen Eckfenster im OG .. die sollte man vielleicht auch mal überprüfen, insbesondere auch in den Kinderzimmern (hier fehlt mir z. B. der Nordpfeil, damit man die Ausrichtung erkennen kann). Sprich .. beispielhaft möblieren und mal sehen, ob da nicht dann die Schreibtische vor den Fenstern landen. Dann lieber breitere Fenster aber mit Brüstungshöhe von 80 bis 90 cm.
Ankleide sehe ich wie Yvonne. Da wäre es eigentlich vorteilhaft, das Bett mit dem Kopfteil an die Außenwand, dann kann die Zugangstür weiter nach links und es können wenigstens 5 m Schrank gestellt werden. Dazu müssen die Fenster alle angepaßt werden.
Garderobe im EG ist echt Mangelware. Insbesondere mit 2 Kindern.
Also .. da gibt es schon so einiges, was man beachten muss.
Küche ist z. B. so nicht nutzbar und überhaupt, es wird hier im Grundriss mehr Platz suggeriert als es wohl dann vorhanden ist.
Kamin-Platzierung nimmt ja auch viel Platz weg und die Frage ist, ob der so überhaupt sinnvoll genutzt wird.
Die ganzen bodentiefen Eckfenster im OG .. die sollte man vielleicht auch mal überprüfen, insbesondere auch in den Kinderzimmern (hier fehlt mir z. B. der Nordpfeil, damit man die Ausrichtung erkennen kann). Sprich .. beispielhaft möblieren und mal sehen, ob da nicht dann die Schreibtische vor den Fenstern landen. Dann lieber breitere Fenster aber mit Brüstungshöhe von 80 bis 90 cm.
Ankleide sehe ich wie Yvonne. Da wäre es eigentlich vorteilhaft, das Bett mit dem Kopfteil an die Außenwand, dann kann die Zugangstür weiter nach links und es können wenigstens 5 m Schrank gestellt werden. Dazu müssen die Fenster alle angepaßt werden.
Garderobe im EG ist echt Mangelware. Insbesondere mit 2 Kindern.
Also .. da gibt es schon so einiges, was man beachten muss.
Ähnliche Themen