Größe des Grundstücks 590 qm
Geschossigkeit 2 ohne keller
Dachform walmdach
Stilrichtung klassisch
Anzahl der Personen, Alter 4 (35/33/3/1)
Familiennutzung
Schlafgäste pro Jahr kaum
offene oder geschlossene Architektur: gern offen
konservativ oder moderne Bauweise
offene Küche, Kochinsel
Anzahl Essplätze 6/8
Musik/Stereowand
Garage, Carport
Hausentwurf
Von wem stammt die Planung:
-Planer eines Bauunternehmens
-Do-it-Yourself
favorisierte Heiztechnik: Luft-Wasser-Wärmepumpe

Geschossigkeit 2 ohne keller
Dachform walmdach
Stilrichtung klassisch
Anzahl der Personen, Alter 4 (35/33/3/1)
Familiennutzung
Schlafgäste pro Jahr kaum
offene oder geschlossene Architektur: gern offen
konservativ oder moderne Bauweise
offene Küche, Kochinsel
Anzahl Essplätze 6/8
Musik/Stereowand
Garage, Carport
Hausentwurf
Von wem stammt die Planung:
-Planer eines Bauunternehmens
-Do-it-Yourself
favorisierte Heiztechnik: Luft-Wasser-Wärmepumpe
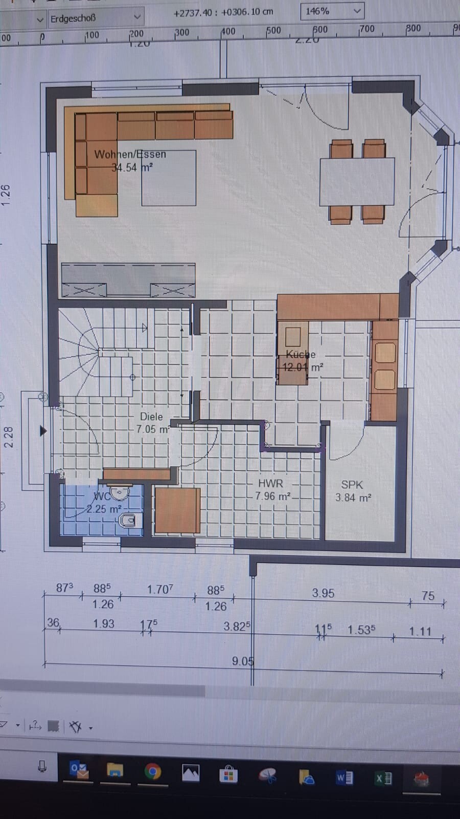
Tja, was soll man da sagen. Es gelingt noch nicht mal, die beiden Grundrissansichten in identischer Ausrichtung einzustellen.
- Lageplan - Fehlanzeige
- Nordpfeil - Fehlanzeige
- Frageliste - stark gekürzt, insbesondere um den Teil, wo ein Threaderöffner eigentlich mal erklären kann, was am Grundriss denn gefällt, und wo noch Bauchschmerzen sind.
- Vermaßungen EG abgeschnitten
- Flurgarderobe m. M. n. nicht tief genug
- Weg Kücheninneres an Tisch vorbei auf Terrasse = Slalom
- Elternschlafzimmer erscheint ausgesprochen schmal, deshalb sitzt Tür auch so, dass dahinter wohl keine 70 cm Tiefe für Kleiderschrank sind
Der orange Kasten muss weg oder kleiner, hat Müllerin schon gesagt.
Im EG passt die Küche meines Erachtens nicht zum Plan. Sieht aus, als hättet Ihr einen vorhandenen Plan genommen und dort Eure Traumküche eingebastelt - nur ist sie für den Raum nicht optimal. Was soll in das "Loch", welches den Hauswirtschaftsraum ausbeult? Die Durchgangsbreiten sehen alle sehr pipslich aus.
Zudem ist der Eingangsbereich sehr verwinkelt und beengt. Auf der anderen Seite enstehen Freiflächen, die schlecht nutzbar sind. Was ist mit dem Platz unter und vor der Treppe? Der wird wohl ratzfatz zur Müllecke mutieren, oder steht da noch was?
Oben sollte das Schlafzimmer mit Kind 1 oder 3 tauschen, damit nicht gleich alle 3 Kinder erfahren, wie sie gemacht wurden.

Im EG passt die Küche meines Erachtens nicht zum Plan. Sieht aus, als hättet Ihr einen vorhandenen Plan genommen und dort Eure Traumküche eingebastelt - nur ist sie für den Raum nicht optimal. Was soll in das "Loch", welches den Hauswirtschaftsraum ausbeult? Die Durchgangsbreiten sehen alle sehr pipslich aus.
Zudem ist der Eingangsbereich sehr verwinkelt und beengt. Auf der anderen Seite enstehen Freiflächen, die schlecht nutzbar sind. Was ist mit dem Platz unter und vor der Treppe? Der wird wohl ratzfatz zur Müllecke mutieren, oder steht da noch was?
Oben sollte das Schlafzimmer mit Kind 1 oder 3 tauschen, damit nicht gleich alle 3 Kinder erfahren, wie sie gemacht wurden.
Ähnliche Themen