Hausbau - Ratgeber
Bauherrenhilfe
- Bauherrenhilfe vor Vertragsabschluss
-- Warum einen unabhängigen Baubetreuer?
-- Vertragsgrundlagen
-- Bausumme
-- Zahlungsplan zur Kostenkontrolle
-- Pflichten des Bauherren vor Vertragsabschluss
-- Unterlagen beim Hausbau vor Vertragsabschluss
- Bauherrenhilfe nach Vertragsabschluss
-- Bauantrag bei Behörden
-- Bau-Genehmigungsverfahren bei Baubehörden
-- Bauspezifische Versicherungen
-- Bauzeitenplan
-- Baubeginn - die Letzten Pflichten der Bauherrschaft
- Bauherrenhilfe während der Bauzeit
- Gewährleistungsansprüche
- Bauabnahme
Baufinanzierung
- Baufinanzierung - Allgemeine Fragen
- Kreditarten
- Kredit-Konditionen
- Bausparen
- Staatliche Förderungen
- Verkehrswert
- Haushaltsrechnung und Bonität
Hausbau Planung
- Haustypen
- Hausbau Vorbereitungsarbeiten
- Das Baugrundstück
- Baugrund beim Hausbau
- Baurecht
- Gebäudeschutz
- Erdarbeiten und Wasserhaltung
- Stützmauern
- Einfriedung
- Untergeschoss
- Kanalisation
- Tragende Elemente
- Nichttragende Innenwände
- Fundation / Fundament
- Deckenkonstruktionen
- Dächer
- Kaminanlagen
- Treppen Rampen Leitern
- Dachbeläge und Spengler
- Fenster
- Sonnen und Wetterschutz
- Aussenputze
- Einbauten, Küchen, Türen
- Bodenbeläge und Unterlagsböden
- Parkett
- Gips, Wand, Decke
Haustechnik und Energie
- Heiztechnik
- Lüftung und Klimatechnik
- Sanitärtechnik
- Elektrotechnik
- Erneuerbare Energie
Whirlpools / Jacuzzi
Hausbau Magazin
- Baufinanzierung trotz Krise?
- Das Blockhaus
- Moderne Dämmstoffe im Vergleich
- Erker Vor- und Nachteile
- Glasflächen beim Hausbau
- Günstig ein Haus Bauen
- Mediterraner Hausbaustil
- Mehrgenerationenhaus
- Moderne Architektur
- Gartengestaltung leicht gemacht
- Traditioneller Ziegelbau
- Villa als höchster Traum
- Im Eigenheim Ruhestand geniessen
- Altbau sanieren
- Kauf einer Holzgarage
- Immobilienmakler
- Arbeitshandschuhe für den Winter
- Zuhause verschönern
- Outdoor-Plissees
- Schlafzimmer planen
- Terrassenüberdachung
- Wohngebäudeversicherung
- Zaunarten und Eigenschaften
- Hauseingang gestalten
- Der perfekte Grundriss
- Sparsamer heizen im Altbau
- Einfamilienhaus smart finanzieren
- Planung einer PV-Anlage
- Neues Haus
- Immobilienfinanzierung
- Installation einer Photovoltaikanlage
- Asbest erkennen und entfernen
- Gartenpflege im Frühling – worauf achten
- Sauna im Fokus - Wellness zuhause
- Erfolgreich vermieten
- Die perfekte Winterbekleidung
- Das Niedrigenergiehaus
- Der April und seine Stürme
- Architektonische Vielfalt
- Ökologisch und nachhaltig bauen
- Das perfekte Schlafzimmer
- Nachhaltige Energieversorgung
- Zukunftsorientiert bauen
- Nachhaltigkeit beim Hausbau
- Tiny Houses
- Wärmepumpen als nachhaltige Heizvariante
- Maßgeschneiderten Kleiderschrank
- Der richtige Baukredit
- Ratgeber für erfolgreichen Hausbau
- Haus als Altersvorsorge
Do-it-yourself Anleitungen
- Verlegeanleitung für Bodenbeläge und Parkett
- Bodenbeläge und Parkett reinigen und pflegen
- Malerarbeiten am Haus
- Garten Tipps
- Umzug und Reinigung

ᐅ Stadtvilla Grundriss - Änderungsvorschläge?

Erstellt am: 11.10.19 22:17
L
Laufi92
11ant12.10.19 14:12
kaho674 schrieb:

Schönheit ist aber auch was wert.
In diesem Falle die "Schönheit" von "Else Kling" aus der Buttermilchwerbung, wennze mich fraachs. Meine Anmerkung war aber weniger davon motiviert, daß Geschmäcker verschieden sind und gar nicht so selten die TE einen anderen haben als meiner einer. Sondern als Wink mit dem Zaunpfahl, daß man keine Furcht zu haben braucht, geradewegs auf die Monotonie zuzusteuern, wenn man bloß die verkrampfte Stylishness weglässt. Die Einschnitte könnte man sogar alle begradigen, ohne daß die Individualität litte - schon daß planrechts kein solcher ist, wirkt eher inkonsequent als pfiffig.

Auch erinnere ich gerne an meine Anregung, individuell zu planen: in dieser Preisklasse ist es Humbug, den Benutzerwert des Gebäudes durch Kompromisse zu schmälern, die rein aus dem Kleben am Basisentwurf resultieren. Die Furcht, ein Entwurf vom weißen Blatt aufgebaut würde teurer, ist unbegründet. Wo es dafür prohibitive Preise gibt, hat man den falschen Anbieter erwischt. Den Entwurf zum Projekt von @Arifas hatte ich ja verlinkt - da hätte als Typenhaus dasselbe auf dem Kassenbon gestanden.
https://www.instagram.com/11antgmxde/
https://www.linkedin.com/company/bauen-jetzt/
kaho67412.10.19 14:26
11ant schrieb:

Die Einschnitte könnte man sogar alle begradigen, ohne daß die Individualität litte - schon daß planrechts kein solcher ist, wirkt eher inkonsequent als pfiffig.

Auch erinnere ich gerne an meine Anregung, individuell zu planen: in dieser Preisklasse ist es Humbug, den Benutzerwert des Gebäudes durch Kompromisse zu schmälern, die rein aus dem Kleben am Basisentwurf resultieren.
Ich gehe eigentlich davon aus, dass die Wahl für das Design ganz bewußt getroffen wurde. Ich finde es auch durchaus legitim, sich ein Haus nach der Außenansicht auszusuchen und dann nach eigenen Wünschen anzupassen. Das man innen dafür Opfer bringt, nimmt der Käufer eben in Kauf.
Andererseits
Laufi92 schrieb:

Wir werden jetzt auf jeden Fall die Einbuchtung auf der linken Seite begradigen lassen...
wenn ich schon anfange, die Form zu verlassen, kann ich es mit den Rücksprüngen auch ganz lassen und mein Haus für meine Bedürfnisse optimieren.
11ant12.10.19 14:29
kaho674 schrieb:

Ich finde es auch durchaus legitim, sich ein Haus nach der Außenansicht auszusuchen und dann nach eigenen Wünschen anzupassen. Das man innen dafür Opfer bringt,
Das kann man mit Jette im Originalformat oder anderen Häusern der 250-qm-Klasse machen, sonst werden die Opfer zu blutig.
https://www.instagram.com/11antgmxde/
https://www.linkedin.com/company/bauen-jetzt/
L
Laufi92
12.10.19 17:29
Ich habe nun ein bisschen mit dem Grundriss gespielt und bin bisher zu folgendem Ergebnis gekommen.
Was haltet ihr davon? Meint ihr das ist so umsetzbar? Habe jetzt versucht das 3. Kinderzimmer/Gästezimmer doch ins OG zu packen, um im EG mehr Platz zu erhalten.
Handgezeichneter Grundriss eines Hauses mit Küche, Bad, Schlaf- und Arbeitszimmer.

Grundriss eines Hauses mit mehreren Zimmern, Treppe und Abmessungen.
H
haydee
12.10.19 17:54
Besser

Kannst du den Grundriss so spiegeln das er zum Plan passt

Wo ist der Technikraum?
Wo ist die Garderobe?
Mit 5 Hacken kommt ihr nicht weit.

Das Kinderzimmer im OG geht nicht. Zu schlauchig.
L
Laufi92
12.10.19 19:36
haydee schrieb:

Besser

Kannst du den Grundriss so spiegeln das er zum Plan passt

Wo ist der Technikraum?
Wo ist die Garderobe?
Mit 5 Hacken kommt ihr nicht weit.

Das Kinderzimmer im OG geht nicht. Zu schlauchig.

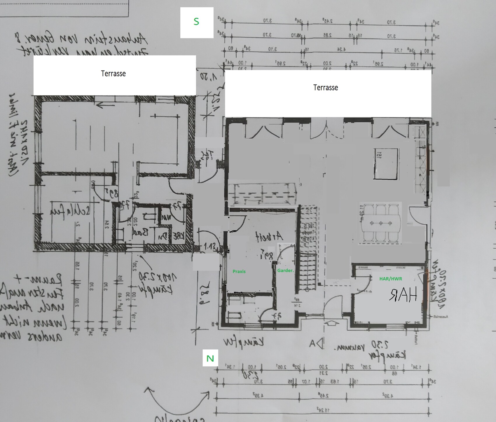
Ich habe nun mal alles gespiegelt und mit grün beschriftet.
Zudem sind nun Himmelsrichtungen und Terrassen eingezeichnet
Grundriss eines Gebäudes mit zwei Terrassen, Praxisbereich, Garderobe, HAR/HWR.

Grundriss einer Etage: Räume, Türen, Treppenhaus und Maßen im Gebäude.
entwurfkinderzimmer