Stadtvilla, 160qm mit Keller sucht Feintuning-Helfer

4,60 Stern(e) 5 Votes
Zuletzt aktualisiert 07.10.2025
Sie befinden sich auf der Seite 2 der Diskussion zum Thema: Stadtvilla, 160qm mit Keller sucht Feintuning-Helfer
>> Zum 1. Beitrag <<

B

Baufie

Ich würde an Eurer Stelle 2 Schiebetüren im Esszimmer bevorzugen.
Wir hatten in unserer Wohnung eine ähnliche Situation wie Ihr und fanden das mit den Flügeltüren sehr nervig.

Darf man fragen wie hoch die Baukosten sein werden?
 
M

mynhma

Nun aktuell haben wir gar keine Türen vorgehalten sondern möchten eher einen offenen Bereich... Schiebetüren haben wir überlegt aber gemäß aktuellem Grundriss sind diese nicht realisierbar oder hast du einen Vorschlag? :D

Die Baukosten liegen aktuell nur fürs Haus+Keller (ohne Grundstück u. Nebenkosten) bei 410.000. Allerdings haben wir auch einige Extras bereits inkludiert welche ich nicht aus dem Kopf aufzählen kann (z.B. Smarthome, erhöhte Decken EG, Sitzfenster, Photovoltaik+Speicher, usw)...
 
O

Otus11

- das Fenster in der Umkleide hatten wir drin und wieder raus genommen... die Sache ist direkt gegenüber wäre auf gleicher höhe ein Nachbarfenster und beim Umziehen in der Ankleide möchte man ja nicht beobachtet werden, was dazu führen würde dass dies immer abgedunkelt oder Rollladen zu wäre -> insofern dachten wir, wir nutzen lieber die Fläche weil meine Frau so viel Kleider-Stauraum wie möglich braucht? :D
-> wir überlegens uns aber nochmal
Dafür gibt es satiniertes Glas - auch teilhoch. Wir haben oben z.B. 20 cm klar gelassen, was sehr angenehm ist und bei hinreichend Sichtschutz für Licht und Weite sorgt.

Der Bereich ist - da über Eck der Außenwand/Wandscheibe - sonst eh kaum für tiefe Schränke nutzbar.
 
Y

ypg

Ich würde die Treppe um ca. 1 1/2 Meter nach planoben verschieben und den Ansatz gerade, oben dann nach rechts gewendelt.
Das WC muss man dann wohl etwas anpassen.
Warum?
Wegen des Schmutzbereiches vor der Treppe. Außerdem ist es direkt vor der Hauseingangstür nie so wirklich behaglich.
Ich finde den Entwurf gut.
Wenn man den Allraum betritt, gibt es sicherlich eine tolle Atmosphäre.
Ggf würde ich die Insel um 90 Grad drehen, damit das Arbeitsdreieck perfekter wird.

Mal nebenbei bemerkt: Eingang dort, wo das Carport ist, wär natürlich noch feiner [emoji2]
 
kaho674

kaho674

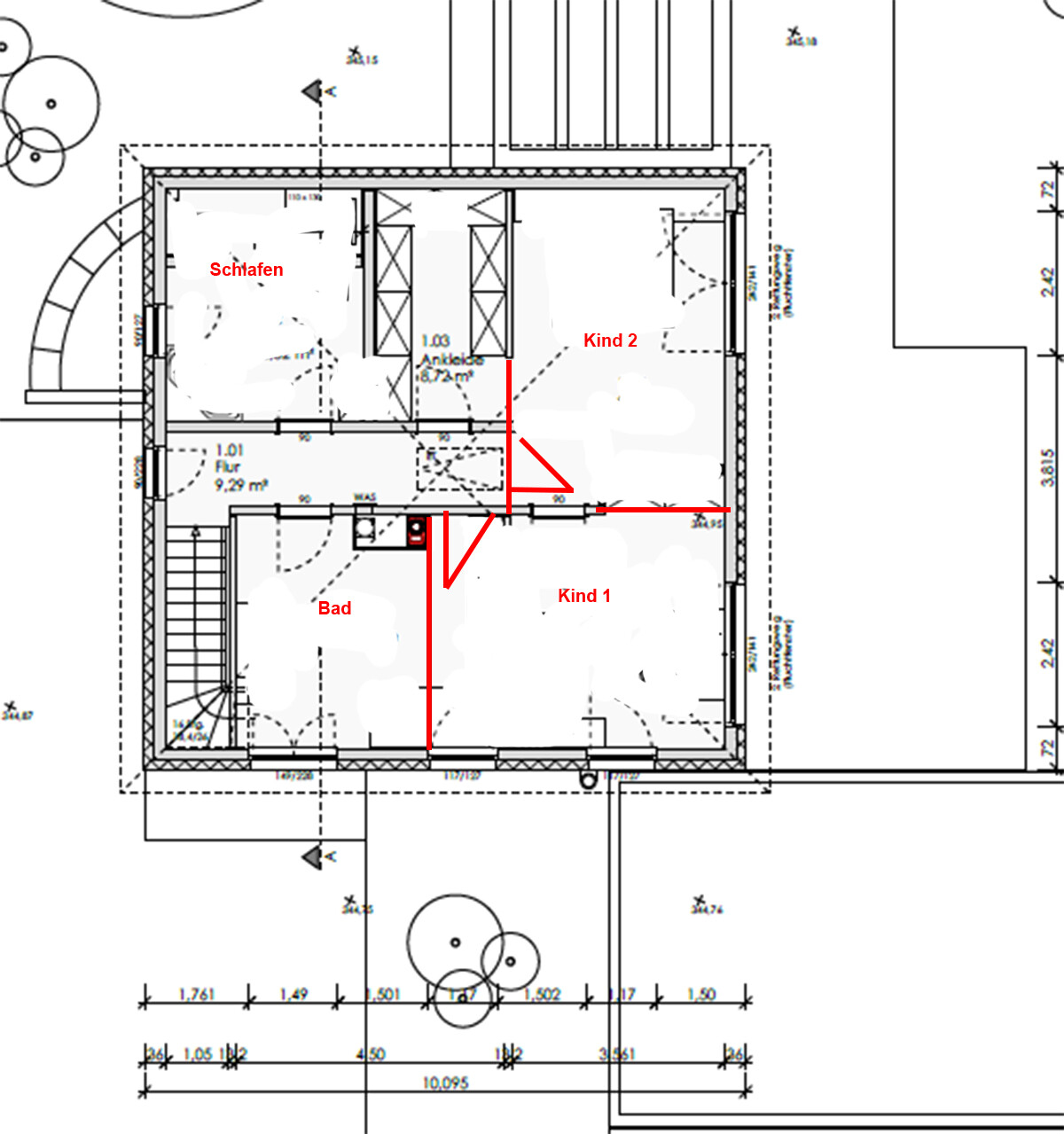
- bzgl. OG. ja hier tuen wir uns aktuell noch schwer... wir haben gestern Abend nochmal eine leicht angepasste Variante diskutiert, in der wir die Nische für einen Einbauschrank im Flur nutzen würden als kleinen Haushaltsstauraum. Dann hätten wir im Schlafzimmer eine schöne gerade Schrank- und Fernsehwand , der Kind 1 würde sich vergrößern und durch das versetzen der Wand in Kind 2 können die Kinderzimmer angeglichen werden... was haltet ihr davon?
Keine Ahnung. Da muss mal ne Skizze her. Kommt ja keiner mehr mit im Kopf. ;)

Ich weiß ja nicht, wie festgemeißelt die Aufteilung oben ist. Man könnte aber nochmal bissl rumschubsen. Hier mal eine Alternative skizziert:


2D-Grundriss eines Hauses mit Schlafzimmer, Bad und Kinderzimmern, klare Raumaufteilung
 
Zuletzt aktualisiert 07.10.2025
Im Forum Grundrissplanung / Grundstücksplanung gibt es 2510 Themen mit insgesamt 87186 Beiträgen


Ähnliche Themen zu Stadtvilla, 160qm mit Keller sucht Feintuning-Helfer
Nr.ErgebnisBeiträge
1Baukosten gehen aktuell durch die Decke - Seite 131812063
2Schiebetüren im Haus ? - Seite 230
3Problem mit PAX Ikea Lyngdal Schiebetüren, falsch eingehakt 10
4Pax / PAX Malm IKEA Montageanleitung+Support für Schiebetüren 10
5Passt der große Ikea Pax mit Schiebetüren in mein Zimmer 35
6Schiebetüren Terrasse Bilderthread - Zeigt her eure Schiebetüren! 16
7Küche mit zwei Schiebetüren abtrennen? 11
8Ist Variante zu sehr hoher Hebe-Schiebetüren Anlage statisch machbar? 19
9Baukosten Grobabschätzung, realistisch oder nicht? 42
10Baukosten Schätzung für unseren Traum vom Haus 12
11Baukosten: Darlehensgeber sind Baukosten ohne Inv. nachzuweisen? 10
12Baukosten in Süddeutschland - Erste grobe Kostenabschätzung 15
13Bauvorhaben, Baukosten abschätzen? 22
14Sammlung Tipps zum Senken der Baukosten 32
15Richtwert für passende Baukosten? 11
16Baukosten Einfamilienhaus 180qm - Seite 569
17Baukosten Mini-Bungalow (ca. 50m²) 54
18Baukosten ca. 400K - Baufinanzierung so machbar? 11
19Baukosten in BW für Einfamilienhaus mit 200m2 Keller und Doppelgarage - Seite 238
20Neubau Einfamilienhaus - Realistisch Schätzung der Baukosten? Erfahrungen? 59

Oben