Moin noch mal
Das "Mietshaus" würde ich auch wie Bauexperte interpretieren.
Wenn Du die Ebenen sowohl gemeinsam als auch eigenständig nutzen möchtest ist mein Ansatz doch sicher brauchbar.
getrennte Nutzung - getrennte Eingänge
gemeinsame Nutzung dann die Treppe im Haus als Zugang zum Keller u. Garage und einen zusätzlichen Kellerzugang von außen.
Olli
Das "Mietshaus" würde ich auch wie Bauexperte interpretieren.
Wenn Du die Ebenen sowohl gemeinsam als auch eigenständig nutzen möchtest ist mein Ansatz doch sicher brauchbar.
getrennte Nutzung - getrennte Eingänge
gemeinsame Nutzung dann die Treppe im Haus als Zugang zum Keller u. Garage und einen zusätzlichen Kellerzugang von außen.
Olli
wrobel schrieb:
Das "Mietshaus" würde ich auch wie Bauexperte interpretieren.Bauexperte hat gar nichts geschrieben hier, vermutlich meinst Du meine Interpretation von einem Mietshaus?
@PaJuBe14 : Deine Überschrift ist somit etwas unbedacht gewählt. Letztendlich handelt es sich um ein Einfamilienhaus, welches erst mal vermietet werden soll, später dann selbst bezogen werden, dafür eventuell dann eine Teilung in 2 separate Wohneinheiten. Dass das Haus erst vermietet werden soll, ist eigentlich egal.
PaJuBe14 schrieb:
unterer Bereich sollte bei Bedarf als eigenständige Wohnung nutzbar seinDas sehe ich nicht in dieser Planung.
Zum einen: wie will man denn eine adäquate Wohnung im UG abteilen, wenn die Hälfte der Räume dort keine Fenster haben? Wo will man die Trennung vornehmen, wenn die Doppelgarage von beiden Parteien genutzt werden soll, der Zugang aber dann durch die zu teilende Wohnung führt?
Auch sehe ich kaum eine Möglichkeit, aus den wenigen Qm im UG ein normal nutzbares Schlafzimmer sowie Wohnzimmerecke und Küchen-Essplatz zu kreieren. Auch mit einem aufwendigen Umbau wäre es nach meiner Sicht für einen wohnlichen Eigenbedarf nicht möglich.
PaJuBe14 schrieb:
Treppenaufgang vll nicht optimal, Abstellraum sehr klein.Da hast Du völlig recht. Für einen Neubau ist die Treppenplanung ein Profisorium, der kaum Beachtung in dem Entwurf findet. Eine Garderobe ist gar nicht vorhanden, der Abstellraum mag inkl. Keller reichen, aber nicht bei einer abgeschlossenen Wohneinheit (ohne Keller)
PaJuBe14 schrieb:
Einzig in der Größe des Wohnraumes sind wir nicht ganz sicher ob er sich gut nutzen lässt.Der Wohnraum zeigt 54 qm an, dennoch wird da wohl der grosse Flur auch mit eingerechnet?
Ich sehe kaum eine vernünftige Aufteilung des zwar grossen, aber recht flächigen Raumes. Da wird in der Konsequenz der Esszimmerstuhl am TV oder Sofa schaben, eine Kücheninsel wird auch seine Fläche in der Tiefe vor einer Küchenzeile brauchen. Platz für Side By Side Kühlschrank sehe ich auch nicht.
Versuchs einfach mal selbst, da ein paar Möbel mit ihrem Platzbedarf davor zu reinzustellen...
Die Zimmeraufteilung hat meiner Meinung nach auch wenig mit Entwerfen oder Planen zu tun: grosser Raum, dann Flur, wohin mal alle notwendigen Zimmer abgehen.
PaJuBe14 schrieb:
Genutzt werden soll es zur Vermietung an (vermutlich amerikanische) Familien.PaJuBe14 schrieb:
..., aber die Amerikaner sind bei uns eine recht spezielle Zielgruppe.Ich weiss ja nicht, wo Du Bauen willst, aber warum sucht man sich eine spezielle Zielgruppe als Mieter? Speziell heisst besonders heisst klein (im Normalfall), wenn ich vermieten will, Bau ich so, dass sich viele in der Immobilie wiederfinden, damit ich keinen Mietausfall habe.
PaJuBe14 schrieb:
Daher sind jetzt 2 getrennte Eingänge nicht nötig, nur irgendwann eine zwischendurch oder ähnliches.Wie schon gesagt: ich sehe eine Teilung nicht. Wenn Ihr selbst mal drin wohnen wollt, habt Ihr das OG als Wohneinheit, im UG den Keller mit der Garage. Das zwar alles sehr grosszügig (in der Qm-Zahl), aber nicht für eine Teilung gedacht.
Das würde ich an Eurer Stelle mal sortieren -> Wohnbedarf in 15 Jahren. Wenn Ihr dann immer noch der Meinung seid, dass ein Haus, welches man in zwei Einheiten teilen kann, gebaut werden soll, dann sollte man auch jetzt schon entsprechende Eingangsbereiche sowie Terrassenausgänge, Küchen und weitere Bedarfsräume definieren. Ansonsten müsst Ihr in 15 Jahren ordentlich Budget in einen Umbau stecken.
Gruss Yvonne
Hallo Ypg,
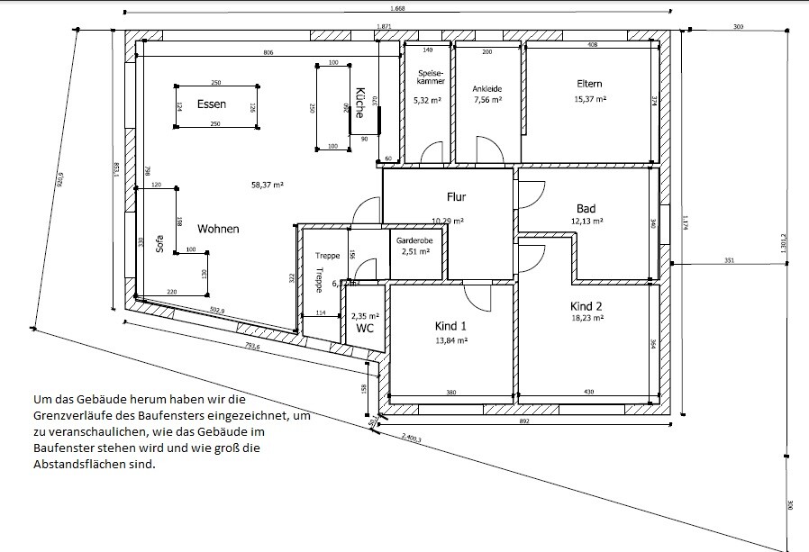
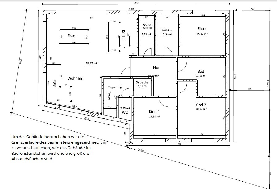
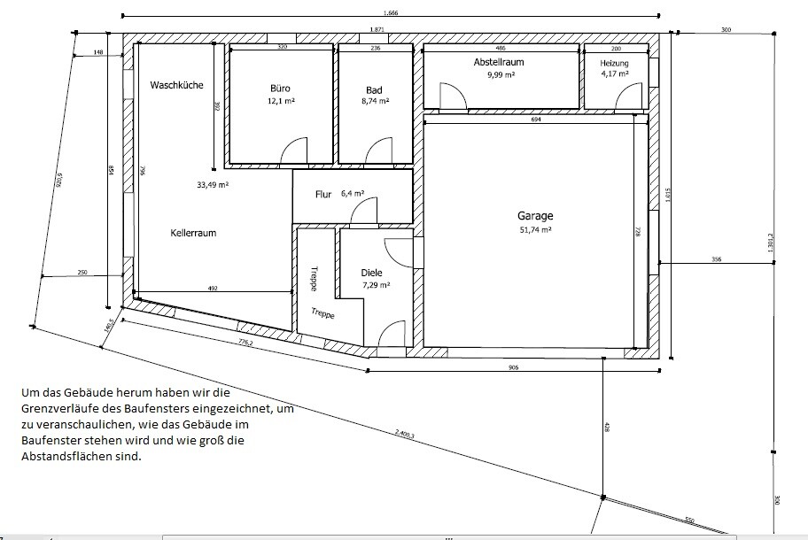
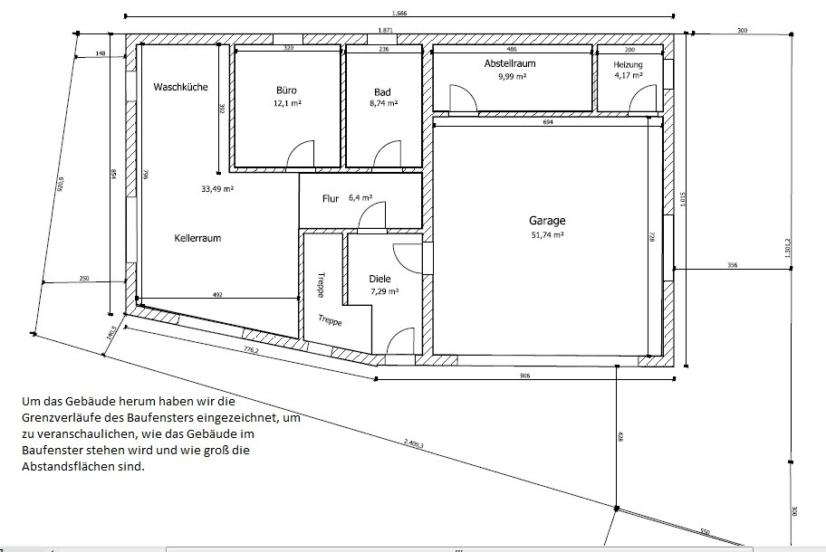
Danke für die ausführliche Antwort. Wir haben mit einer befreundeten Architektin zusammen gesessen und haben noch mal Gebrütet
Wir haben es ein bisschen entschärft, ein Drittel der Kinderzimmer steht im Grundriss über, da die Garage unten gerade gewählt wurde.
Wie ich finde ist das Treppenhaus nun ordentlich, es gibt eine Garderobe und eine Möglichkeit oben und unten zu trennen.
Unten soll das Bad ein Fenster bekommen (Haus wird freistehend geplant, Gelände durch L-Steine gestützt und etwa 1m bis zur Kellerwand eingeplant. Um mal Luft rein zu lassen wird es reichen.
Daneben das Büro soll mal Schlafraum werden, Waschküche wird Küche und der untere Bereich wird Wohnraum.
Seitlich sowie unten können ganz normale Fenster eingesetzt werden.
Was sagt ihr zur jetzigen Planung?
Ich habe versucht auch die Küche mal zu planen, wie ich finde reicht es aus (in einem leicht angewandten plan zum hochgelegenen wird die Küchenzeile an der wand 4,06m haben, der Flur darunter hat dann "nur" noch 1,35m.




Danke für die ausführliche Antwort. Wir haben mit einer befreundeten Architektin zusammen gesessen und haben noch mal Gebrütet
Wir haben es ein bisschen entschärft, ein Drittel der Kinderzimmer steht im Grundriss über, da die Garage unten gerade gewählt wurde.
Wie ich finde ist das Treppenhaus nun ordentlich, es gibt eine Garderobe und eine Möglichkeit oben und unten zu trennen.
Unten soll das Bad ein Fenster bekommen (Haus wird freistehend geplant, Gelände durch L-Steine gestützt und etwa 1m bis zur Kellerwand eingeplant. Um mal Luft rein zu lassen wird es reichen.
Daneben das Büro soll mal Schlafraum werden, Waschküche wird Küche und der untere Bereich wird Wohnraum.
Seitlich sowie unten können ganz normale Fenster eingesetzt werden.
Was sagt ihr zur jetzigen Planung?
Ich habe versucht auch die Küche mal zu planen, wie ich finde reicht es aus (in einem leicht angewandten plan zum hochgelegenen wird die Küchenzeile an der wand 4,06m haben, der Flur darunter hat dann "nur" noch 1,35m.
Achsi und die Zielgruppe isr eine große bei uns. Eine sehr große. Ubd außer einem Side By Side Kühlschrank (ihr macht ja grad als hätte ich den schon daheim stehen ) habe ich nichts ausschließlich auf die Zielgruppe Amerikaner ausgelegt.
Ganz im Gegenteil habe ich ja versucht, den Grundriss so zu gestalten dass es 2 getrennte Wohnung werden könnten, um die Zielgruppe weiter zu fassen.
Es War eine allererste Planung, die ich gerne kritisch überarbeiten wollte und jetzt auch habe.
Ich hoffe dieser Entwurf trifft mehr euren Nerv?
Ganz im Gegenteil habe ich ja versucht, den Grundriss so zu gestalten dass es 2 getrennte Wohnung werden könnten, um die Zielgruppe weiter zu fassen.
Es War eine allererste Planung, die ich gerne kritisch überarbeiten wollte und jetzt auch habe.
Ich hoffe dieser Entwurf trifft mehr euren Nerv?
Ähnliche Themen