ᐅ Position Brennstellen / LED Spots / LED Panels
Erstellt am: 04.08.2022 19:45
RemusLazar 04.08.2022 19:45
Hallo zusammen,
wir bauen ein Einfamilienhaus, im OG wird aktuell die Decke gemacht. Nun müssen wir die genaue Position der Brennstellen bzw. Spots oder Panels fest legen und ebenfalls Ausschnitt etc.
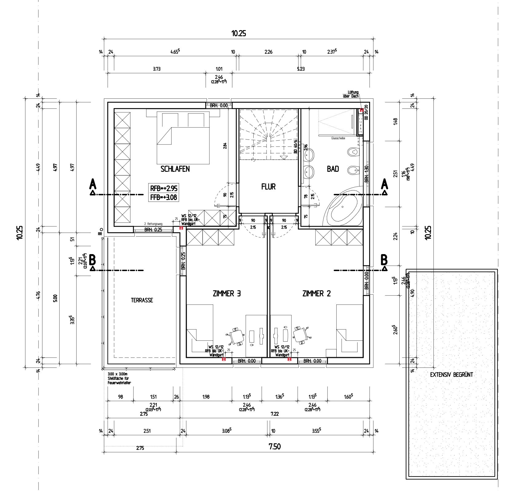
Hier die aktuelle Planung: oben links ist das Schlafzimmer, unten sind 2 Kinderzimmer, anbei auch noch ein Bild aus der Perspektive um ein Gefühl zu bekommen, wie die Räume aussehen. Durch die 6 Grad Neigung des Daches ist die Zimmerhöhe recht groß, v.a. im Bad und Flur.

Aktuell habe ich viele kleinere (6cm Durchmesser) Spots vorgesehen, die man auch bis 30 Grad kippen/drehen kann. Im Schlafzimmer noch zusätzlich eine Lampe (gelber Kreis) als Aufputz (z.B. Kronleuchter etc.)
Für die Decke wird eine 30mm Beplankung gemacht und darauf 12mm Rigips Platten, sodass man insgesamt nur 42mm Tiefe hat.
Jetzt sind wir unschlüssig, ob wir das so mit den vielen Spots machen sollen oder ob wir hier lieber kleinere / mittelgroße LED Panels nehmen sollen, die moderner aussehen. Ich habe die Panels von EVN in die engere Auswahl genommen, die gibt es in den Größen 12cm, 17,2cm, 22,5cm und 28cm Durchmesser und geben auch ordentliches Licht. Für alle Räume sind dimmbare Leuchten vorgesehen, alle Zimmer hat man sternförmig 5adrig angefahren (vom Verteiler), sodass man hier entweder DALI oder auch mehrere Gruppen (maximal 3) bilden kann, die man getrennt schaltet. Beleuchtung ist komplett mit KNX.
Wir sind an Ideen und Anregungen interessiert, irgendwie möchten wir die aktuelle Planung komplett umwerfen und dann doch mit den Panels machen anstatt Spots. Im Kinderzimmer z.B. 2 22,5cm oder 28cm Panels im oberen und unteren Bereich, die man getrennt schalten/dimmen kann. Ein Panel in der Mitte wäre vermutlich zu wenig, damit man den Raum schön ausleuchten kann.
Auch unschlüssig, ob wir wirklich die Ausschnitte für die Panels machen sollen oder nur ein Kabelauslass, damit wir später flexibel sind und nicht jetzt schon Fakten schaffen.. wie groß der Panel sein soll etc. Die Aufputz Variante kann man auch anschauen und die Räume sind auch recht hoch.
Vielen Dank schon mal!
Gruß,
Remus
wir bauen ein Einfamilienhaus, im OG wird aktuell die Decke gemacht. Nun müssen wir die genaue Position der Brennstellen bzw. Spots oder Panels fest legen und ebenfalls Ausschnitt etc.
Hier die aktuelle Planung: oben links ist das Schlafzimmer, unten sind 2 Kinderzimmer, anbei auch noch ein Bild aus der Perspektive um ein Gefühl zu bekommen, wie die Räume aussehen. Durch die 6 Grad Neigung des Daches ist die Zimmerhöhe recht groß, v.a. im Bad und Flur.
Aktuell habe ich viele kleinere (6cm Durchmesser) Spots vorgesehen, die man auch bis 30 Grad kippen/drehen kann. Im Schlafzimmer noch zusätzlich eine Lampe (gelber Kreis) als Aufputz (z.B. Kronleuchter etc.)
Für die Decke wird eine 30mm Beplankung gemacht und darauf 12mm Rigips Platten, sodass man insgesamt nur 42mm Tiefe hat.
Jetzt sind wir unschlüssig, ob wir das so mit den vielen Spots machen sollen oder ob wir hier lieber kleinere / mittelgroße LED Panels nehmen sollen, die moderner aussehen. Ich habe die Panels von EVN in die engere Auswahl genommen, die gibt es in den Größen 12cm, 17,2cm, 22,5cm und 28cm Durchmesser und geben auch ordentliches Licht. Für alle Räume sind dimmbare Leuchten vorgesehen, alle Zimmer hat man sternförmig 5adrig angefahren (vom Verteiler), sodass man hier entweder DALI oder auch mehrere Gruppen (maximal 3) bilden kann, die man getrennt schaltet. Beleuchtung ist komplett mit KNX.
Wir sind an Ideen und Anregungen interessiert, irgendwie möchten wir die aktuelle Planung komplett umwerfen und dann doch mit den Panels machen anstatt Spots. Im Kinderzimmer z.B. 2 22,5cm oder 28cm Panels im oberen und unteren Bereich, die man getrennt schalten/dimmen kann. Ein Panel in der Mitte wäre vermutlich zu wenig, damit man den Raum schön ausleuchten kann.
Auch unschlüssig, ob wir wirklich die Ausschnitte für die Panels machen sollen oder nur ein Kabelauslass, damit wir später flexibel sind und nicht jetzt schon Fakten schaffen.. wie groß der Panel sein soll etc. Die Aufputz Variante kann man auch anschauen und die Räume sind auch recht hoch.
Vielen Dank schon mal!
Gruß,
Remus
sysrun80 04.08.2022 22:09
Habe seit Jahren LED Panels in der Wohnung und wir werden die auch wieder im neuen Haus nehmen. Wir werden auch Aufputz nehmen weil wir erst einmal schauen wollen ob das mit der Planung alles so passt. Wir legen allerdings einige Kabelschleifen in die abgehängte Decke im EG und im OG damit wir später ggf. noch Spots oder zusätzliche Panels setzen können.
RemusLazar 04.08.2022 22:23
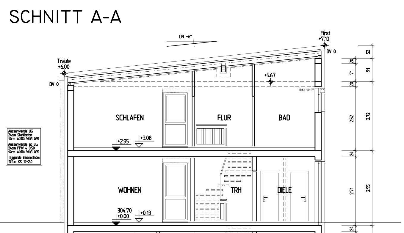
Ja, das ist eine gute Idee! Leider ist bei uns die Decke nicht abgehängt sonder da ist nur die Lattung + Rigips:

Der Elektriker meinte, ein Paar Kabelschleifen würden hier nicht viel bringen weil man hier eine Klemmdose setzen müsste, wenn man die Leitung auftrennt später und man diese nicht mehr unterbringen kann, weil hier die 30mm Höhe nicht ausreichend sind (man braucht ca. 50mm). Sonst müsste man zur Lampe 2x5-adrig rein und raus führen, das kriegt man kaum hin. Aber ich frage mal, ob hier noch eine andere Lösung gibt. Die Idee, dass man später noch beliebige Spots oder Panels setzen kann ist schon gut. V.a. weil ich alles auch 5-adrig gemacht habe, so könnte man die jew. Leuchte auch via DALI steuern.
Der Elektriker meinte, ein Paar Kabelschleifen würden hier nicht viel bringen weil man hier eine Klemmdose setzen müsste, wenn man die Leitung auftrennt später und man diese nicht mehr unterbringen kann, weil hier die 30mm Höhe nicht ausreichend sind (man braucht ca. 50mm). Sonst müsste man zur Lampe 2x5-adrig rein und raus führen, das kriegt man kaum hin. Aber ich frage mal, ob hier noch eine andere Lösung gibt. Die Idee, dass man später noch beliebige Spots oder Panels setzen kann ist schon gut. V.a. weil ich alles auch 5-adrig gemacht habe, so könnte man die jew. Leuchte auch via DALI steuern.
sysrun80 04.08.2022 22:37
RemusLazar schrieb:
Ja, das ist eine gute Idee! Leider ist bei uns die Decke nicht abgehängt sonder da ist nur die Lattung + RigipsHm, ok das ist dann recht knapp. Da ihr offenbar schon recht weit seid ist nachträgliches abhängen keine Option nehme ich an?
RemusLazar 04.08.2022 22:42
sysrun80 schrieb:
Hm, ok das ist dann recht knapp. Da ihr offenbar schon recht weit seid ist nachträgliches abhängen keine Option nehme ich an?Eigentlich könnte man noch eine 2. Lattung drauf (+30mm) und dann die Decke dran schrauben. Dann würde man auf 60mm kommen, damit wäre alles gut. Aber wie es halt so ist, wenn man mit GU baut, die wollen alle nur "schnell, schnell"... Im Bad werden wir auf jeden Fall die doppelte Lattung machen, da wurde noch keine Platte angebracht. In den anderen Räumen wurde teilweise schon die Decke angebracht, ich denke, da wird man diese nicht mehr runter nehmen wollen.
RemusLazar 04.08.2022 22:47
So, hier mal ein kurzes "Zwischen-Feedback": wir sind auch der Meinung, dass wir mit Aufputz Leuchten arbeiten werden. Da will man jetzt wirklich nicht entscheiden, welche Größe und auch ob rund oder doch quadratisch oder doch was ganz anderes.. Kabelauslass ist sicher flexibler, kann man später noch 2-3 Leuchten "ausprobieren" oder auch mal variieren. Sonst wird man mit den Einbauspots/Panels ewig leben müssen.
Bad wäre evtl. die Ausnahme, wo man mit Einbauspots/Panels arbeiten könnte, aber auch da könnte man an sich Aufbauleuchten nehmen.
Im Schlafzimmer sind wir auch unschlüssig, ob wir einen schönen Kronleuchter einsetzen und dann mit einem Deckenfluter oder so noch Licht rein bringen. Ich habe alle Steckdosen auch 5-adrig angefahren, sodass man hier pro Zimmer zwei Schaltkreise einrichten kann, die man dann per Lichtschalter ein/aus schalten kann. So könnte man auch später flexibel noch weitere Lichtquellen hinzufügen.
Habt ihr eine Idee, wo man im Schlafzimmer die Brennstellen positionieren könnte?
Bad wäre evtl. die Ausnahme, wo man mit Einbauspots/Panels arbeiten könnte, aber auch da könnte man an sich Aufbauleuchten nehmen.
Im Schlafzimmer sind wir auch unschlüssig, ob wir einen schönen Kronleuchter einsetzen und dann mit einem Deckenfluter oder so noch Licht rein bringen. Ich habe alle Steckdosen auch 5-adrig angefahren, sodass man hier pro Zimmer zwei Schaltkreise einrichten kann, die man dann per Lichtschalter ein/aus schalten kann. So könnte man auch später flexibel noch weitere Lichtquellen hinzufügen.
Habt ihr eine Idee, wo man im Schlafzimmer die Brennstellen positionieren könnte?
Ähnliche Themen