ᐅ Planung Mehrfamilienhaus 1200 €/m²
Erstellt am: 06.02.21 11:51
Hallo,
also analog zu unseren bisherigen Einfamilienhaus gehts jetzt mit den Planungen des Mehrfamilienhaus los.
Der Titel wurde wieder provokant identisch zum Einfamilienhaus Thread gewählt.
https://www.hausbau-forum.de/threads/baubericht-einfamilienhaus-1200-eur-m.35362/
Bisher wurde eine alte Schreinerei gekauft welche Abgerissen werden soll.
Am 16.2 wird die bereits gestellte Bauvoranfrage im Gemeinderat besprochen. Fragestellung war die Bebauung mit 3 Vollgeschossen und einem Flachdach.
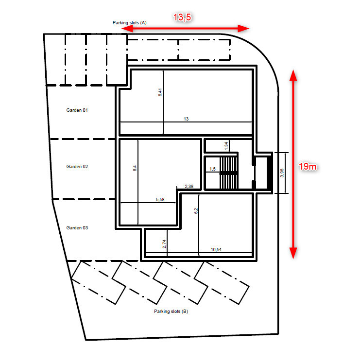
In erster Überlegung habe ich einen Grundriss gefunden welcher mir relativ gut gefällt und von den Abmessungen sogar fast schon genau passt.

Mit dem Aufzug bin ich mir noch unsicher, ob er mir wirklich 30k Wert ist (Angebot von Kone) Ggf. Vorrichtung des Schachts für einen späteren Einbau, falls eine Ausrichtung auf Barrierefreiheit erforderlich wäre.
Die WC´s würden aus Kostengründen rausgeschmissen werden.


also analog zu unseren bisherigen Einfamilienhaus gehts jetzt mit den Planungen des Mehrfamilienhaus los.
Der Titel wurde wieder provokant identisch zum Einfamilienhaus Thread gewählt.
https://www.hausbau-forum.de/threads/baubericht-einfamilienhaus-1200-eur-m.35362/
Bisher wurde eine alte Schreinerei gekauft welche Abgerissen werden soll.
Am 16.2 wird die bereits gestellte Bauvoranfrage im Gemeinderat besprochen. Fragestellung war die Bebauung mit 3 Vollgeschossen und einem Flachdach.
In erster Überlegung habe ich einen Grundriss gefunden welcher mir relativ gut gefällt und von den Abmessungen sogar fast schon genau passt.
Mit dem Aufzug bin ich mir noch unsicher, ob er mir wirklich 30k Wert ist (Angebot von Kone) Ggf. Vorrichtung des Schachts für einen späteren Einbau, falls eine Ausrichtung auf Barrierefreiheit erforderlich wäre.
Die WC´s würden aus Kostengründen rausgeschmissen werden.
K
knalltüte06.02.21 13:42ach komm, warum abreissen. Das sieht doch noch hübsch aus, bisserl Farbe drauf und vermieten :p
Bleibst du mit dem neuen Haus tatsächlich soviel weiter weg von der Grenze (vorne) und trotzdem wird das Haus so gross? Und werden das tatsächlich 6 Wohneinheiten? Wie gross ist denn das Grundstück ? Und wie kommt man auf den hinteren Stellplatz (einmal rund ums Haus fahren) ?
Weiss aktuell nicht wie die Förderungen sind, aber ich glaube noch, das ein Mehrfamilienhaus mit KfW40 und kleinen Wohneinheit quasi eine Gelddruckmaschine ist wenn du nicht zu teuer baust. Mal über ein Pultdach nachgedacht und viel Photovoltaik (für die grosse Wärmepumpe)?
Was für Technik planst du denn da einzubauen? Ist ja schon was anderes als dein Einfamilienhaus ...
Bleibst du mit dem neuen Haus tatsächlich soviel weiter weg von der Grenze (vorne) und trotzdem wird das Haus so gross? Und werden das tatsächlich 6 Wohneinheiten? Wie gross ist denn das Grundstück ? Und wie kommt man auf den hinteren Stellplatz (einmal rund ums Haus fahren) ?
Weiss aktuell nicht wie die Förderungen sind, aber ich glaube noch, das ein Mehrfamilienhaus mit KfW40 und kleinen Wohneinheit quasi eine Gelddruckmaschine ist wenn du nicht zu teuer baust. Mal über ein Pultdach nachgedacht und viel Photovoltaik (für die grosse Wärmepumpe)?
Was für Technik planst du denn da einzubauen? Ist ja schon was anderes als dein Einfamilienhaus ...
Ich muss ja 1,5 Parkplätze pro Wohneinheit vorhalten, weshalb ich von der Grenze wegbleiben muss.
Zum hinteren kommt man ja durch die anliegende Straße.
Bei KFW 55 wären das schon 8x18k = 144.000 € Förderung.
Grundstück hat 650 m²
Haustechnik wird wohl dezentrale Lüfter + 2x 7kw Panasonic Monoblock Kaskade
Bei Photovoltaik bin ich noch nicht Sicher, weil die Förderung ja so gering ist und den Strom an die Mieter verkaufen soll ja nicht so einfach sein.
Mein Dachdecker meinte, ein Beton Flachdach wäre die bessere alternative als ein leicht geneigtes Flach/Pultdach.
Kommt aber auch darauf an welche Vorstellungen die Gemeinde hier hat. Die hat hier die Hoheit meinte der Sachbearbeiter der UBA.
Bauantrag macht diesmal der Statiker meines Einfamilienhaus zum gewohnt niedrigen Preis. Hinzukommt dann noch der Brandschutz.

Zum hinteren kommt man ja durch die anliegende Straße.
Bei KFW 55 wären das schon 8x18k = 144.000 € Förderung.
Grundstück hat 650 m²
Haustechnik wird wohl dezentrale Lüfter + 2x 7kw Panasonic Monoblock Kaskade
Bei Photovoltaik bin ich noch nicht Sicher, weil die Förderung ja so gering ist und den Strom an die Mieter verkaufen soll ja nicht so einfach sein.
Mein Dachdecker meinte, ein Beton Flachdach wäre die bessere alternative als ein leicht geneigtes Flach/Pultdach.
Kommt aber auch darauf an welche Vorstellungen die Gemeinde hier hat. Die hat hier die Hoheit meinte der Sachbearbeiter der UBA.
Bauantrag macht diesmal der Statiker meines Einfamilienhaus zum gewohnt niedrigen Preis. Hinzukommt dann noch der Brandschutz.
K
knalltüte06.02.21 14:26Bauen kann Spass machen - oder ? BtW ... ist das Dritte Haus (dann Hochhaus?) bereits in Planung 😉 ?
superzapp schrieb:
Bauen kann Spass machen - oder ? BtW ... ist das Dritte Haus (dann Hochhaus?) bereits in Planung 😉 ?In der Tat ist das dritte Haus schon in Planung.
Das wird aber dann unser nächstes Einfamilienhaus in besser Lage als das bisherige.
Vor 3 Tagen habe ich mal Interessehalber Anzeigen für Wohnungen bei uns auf dem Land geschaltet um den Bedarf zu ermitteln.
Bei 7,5€ /m2 habe ich bisher 50 Anfragen bekommen wobei ich nur auf Ebay Kleinanzeigen geschaltet habe.
Die Aufteilung war halbe halbe auf 50m2 und 75m2
Laut Destatis wird es zukünftig mehr Singlehaushalte geben weshalb ich denke kleinere Wohnungen haben dann bessere Chancen.
Bei 7,5€ /m2 habe ich bisher 50 Anfragen bekommen wobei ich nur auf Ebay Kleinanzeigen geschaltet habe.
Die Aufteilung war halbe halbe auf 50m2 und 75m2
Laut Destatis wird es zukünftig mehr Singlehaushalte geben weshalb ich denke kleinere Wohnungen haben dann bessere Chancen.
Ähnliche Themen