ᐅ Planung für Mehrgenerationenhaus!
Erstellt am: 28.12.18 22:14
Hallo liebes Forum!
Wir haben ein wunderschönes Grundstück am Hochrhein mit unverbaubaren Blick auf den Rhein Naturschutzgebiet gekauft.
Es soll darauf ein Mehrgenerationenhaus entstehen.
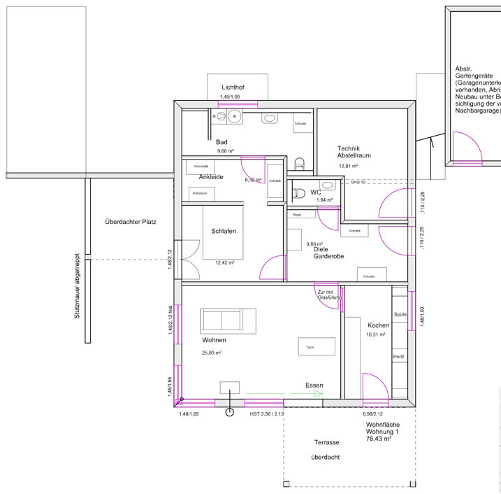
Wir wollen mit den Großeltern zusammen bauen, diese haben die Einliegerwohnung im UG mit separaten Eingang.
Die Maße des Hauses sollten nicht mehr verändert werden. Bzw. diese sind meiner Meinung nach ideal gewählt.
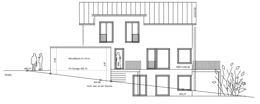
Das Foto zeigt den
Blick nach Süden bzw. S/O

Ich würde mich über Rückmeldung zur Grundrissplanung freuen und interessiere mich sehr, was die Fachschaft dazu meint!
Bebauungsplan/Einschränkungen: Bebauungsplan aus dem Jahr 1960
Größe des Grundstücks ca. 900m2
Hang ja
Grundflächenzahl 0,25
Geschossflächenzahl 0,35
Anzahl Stellplatz 2 Einzelgaragen mit 2 Stellplätzen (Zukunft)
Geschossigkeit
Dachform: Satteldach
Stilrichtung: klassisch, modern
Ausrichtung Süd/West
Maximale Höhen/Begrenzungen: Max. 6 m inkl. Dach
Anforderungen der Bauherren
Teilweise Unterkellert im Hangbereich
Anzahl der Personen: Familie mit 3 Kindern (Zwillinge 5, Kleinkind 2)
offene Küche, Kochinsel
Kamin
Balkon, Dachterrasse
Garage
Hausentwurf
Von wem stammt die Planung:
-Architekt
Was gefällt besonders? Uns gefällt dass wir alle zusammen leben können in Zukunft. Bzw. jeder hat sein eigenes Reich. Wir haben uns bewusst gegen eine innere Erschließung ins UG entschieden!
Was gefällt nicht?
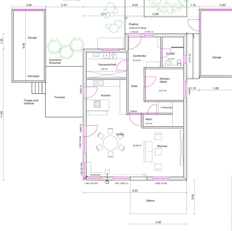
Im EG finde ich den Flur und Zugang zur Treppe sehr verwinkelt.
favorisierte Heiztechnik: Luft / Wärme / Wasserpumpe mit Photovoltaik
Wir haben der Architektin kaum Vorgaben gegeben. Lediglich die gewünschte Wohnfläche und den eigenen Bereich für die Großeltern.
Vielen Dank!!








Wir haben ein wunderschönes Grundstück am Hochrhein mit unverbaubaren Blick auf den Rhein Naturschutzgebiet gekauft.
Es soll darauf ein Mehrgenerationenhaus entstehen.
Wir wollen mit den Großeltern zusammen bauen, diese haben die Einliegerwohnung im UG mit separaten Eingang.
Die Maße des Hauses sollten nicht mehr verändert werden. Bzw. diese sind meiner Meinung nach ideal gewählt.
Das Foto zeigt den
Blick nach Süden bzw. S/O
Ich würde mich über Rückmeldung zur Grundrissplanung freuen und interessiere mich sehr, was die Fachschaft dazu meint!
Bebauungsplan/Einschränkungen: Bebauungsplan aus dem Jahr 1960
Größe des Grundstücks ca. 900m2
Hang ja
Grundflächenzahl 0,25
Geschossflächenzahl 0,35
Anzahl Stellplatz 2 Einzelgaragen mit 2 Stellplätzen (Zukunft)
Geschossigkeit
Dachform: Satteldach
Stilrichtung: klassisch, modern
Ausrichtung Süd/West
Maximale Höhen/Begrenzungen: Max. 6 m inkl. Dach
Anforderungen der Bauherren
Teilweise Unterkellert im Hangbereich
Anzahl der Personen: Familie mit 3 Kindern (Zwillinge 5, Kleinkind 2)
offene Küche, Kochinsel
Kamin
Balkon, Dachterrasse
Garage
Hausentwurf
Von wem stammt die Planung:
-Architekt
Was gefällt besonders? Uns gefällt dass wir alle zusammen leben können in Zukunft. Bzw. jeder hat sein eigenes Reich. Wir haben uns bewusst gegen eine innere Erschließung ins UG entschieden!
Was gefällt nicht?
Im EG finde ich den Flur und Zugang zur Treppe sehr verwinkelt.
favorisierte Heiztechnik: Luft / Wärme / Wasserpumpe mit Photovoltaik
Wir haben der Architektin kaum Vorgaben gegeben. Lediglich die gewünschte Wohnfläche und den eigenen Bereich für die Großeltern.
Vielen Dank!!
cmv1601 schrieb:
Wir haben der Architektin kaum Vorgaben gegeben. Lediglich die gewünschte Wohnfläche und den eigenen Bereich für die Großeltern.Das Hätte' ich jetzt nicht gedacht, dass das aus einer Feder einer Fachfrau stammt.
Spontane Sache wie „Tausch des Gästezimmers mit der Treppe“, damit der elend lange Flur kürzer wird,
das katastrophale Schlafzimmer im Altenteil (spontan fällt mir der Wechsel des Fensters und des Bettes ein) der Treppenzugang zur Einliegerwohnung, ... es ist alles so lieblos geplant und dadurch sind da viele kleine Mängel. In der Summe würde ich mal neu anfangen. Es reicht aber auch zu sagen, dass sie dies und das ändern soll. Ist ja ihre Aufgabe und es sind auch Dinge, die machbar sind.
cmv1601 schrieb:
Wir haben der Architektin kaum Vorgaben gegeben.Offenbar schon die nicht, doch bitte erst´mal Architektur zu studieren. Die architektonische Entwurfsqualität liegt auf dem Niveau Bauingenieur oder gar Bauzeichnerlehrling. Die beachtliche Dichte an Wandecken in den Grundrissen taugt als regelrechtes Verhütungsmittel für Raumgefühl.Bis die Architektin sich mit Katja oder gar Kerstin messen kann, fließt noch viel Wasser den Hochrhein hinunter.
Was motiviert zum Abriss und Wiederaufbau der unterkellerten Garage ?
Lohnt selbst im Souterrain der Blick den Aufwand für das Eckfenster ?
https://www.instagram.com/11antgmxde/
https://www.linkedin.com/company/bauen-jetzt/
UG ist nicht barrierefrei
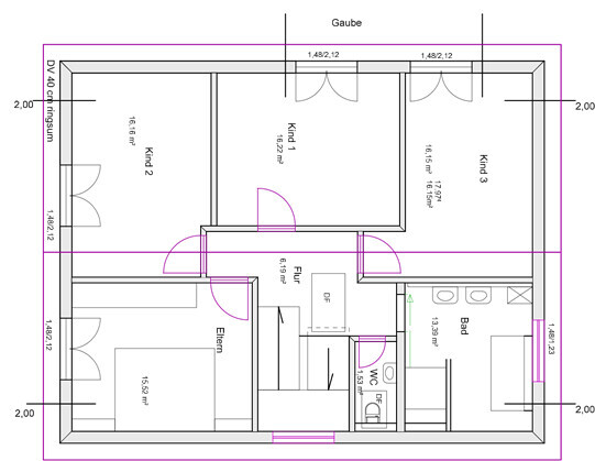
Im Schlafzimmer würde ich Platz für ein 2 m breites Bett einplanen
Kommen die Großeltern nur über die Treppe in UG?
Ansonsten ist eine direkte wetterfeste Verbindung zwischen den Wohneinheiten sehr praktisch und würde nicht ohne Planen. Es gibt auch Türen mit Schlüssel.
Im Schlafzimmer würde ich Platz für ein 2 m breites Bett einplanen
Kommen die Großeltern nur über die Treppe in UG?
Ansonsten ist eine direkte wetterfeste Verbindung zwischen den Wohneinheiten sehr praktisch und würde nicht ohne Planen. Es gibt auch Türen mit Schlüssel.
11ant schrieb:
Offenbar schon die nicht, doch bitte erst´mal Architektur zu studieren. Die architektonische Entwurfsqualität liegt auf dem Niveau Bauingenieur oder gar Bauzeichnerlehrling. Die beachtliche Dichte an Wandecken in den Grundrissen taugt als regelrechtes Verhütungsmittel für Raumgefühl.
-> vielen Dank für dieses Feedback. Es ist auch von unserem Gefühl alles sehr verschachtelt...die Architektin hat es Umläufe der Planung nicht wirklich besser gemacht. Sie argumentiert, dass wir auch viele Nutzungsbereiche haben und somit sich die vielen Wände ergeben.
Bis die Architektin sich mit Katja oder gar Kerstin messen kann, fließt noch viel Wasser den Hochrhein hinunter.
-> darf ich fragen, wer sind Katja und Kerstin?
Was motiviert zum Abriss und Wiederaufbau der unterkellerten Garage ?
-> es stehen von der ehemaligen Garage nur noch Fragmente vom Podest. Die mal dagewesene Unterkellerung ist mittlerweile komplett verschüttet und mit Beton verfüllt worden. Es macht Sinn das alles abzubrechen und dann eben neu und vollständig unterkellert wieder auszubilden.
Foto anbei:
Lohnt selbst im Souterrain der Blick den Aufwand für das Eckfenster ?-> der Blick geht Richtung Rhein und lohnt sich in unseren Augen.ypg schrieb:
Das Hätte' ich jetzt nicht gedacht, dass das aus einer Feder einer Fachfrau stammt.
Spontane Sache wie „Tausch des Gästezimmers mit der Treppe“, damit der elend lange Flur kürzer wird,
das katastrophale Schlafzimmer im Altenteil (spontan fällt mir der Wechsel des Fensters und des Bettes ein) der Treppenzugang zur Einliegerwohnung, ... es ist alles so lieblos geplant und dadurch sind da viele kleine Mängel. In der Summe würde ich mal neu anfangen. Es reicht aber auch zu sagen, dass sie dies und das ändern soll. Ist ja ihre Aufgabe und es sind auch Dinge, die machbar sind.Ähnliche Themen