Hallo liebes Forum!
Wir haben ein wunderschönes Grundstück am Hochrhein mit unverbaubaren Blick auf den Rhein Naturschutzgebiet gekauft.
Es soll darauf ein Mehrgenerationenhaus entstehen.
Wir wollen mit den Großeltern zusammen bauen, diese haben die Einliegerwohnung im UG mit separaten Eingang.
Die Maße des Hauses sollten nicht mehr verändert werden. Bzw. diese sind meiner Meinung nach ideal gewählt.
Das Foto zeigt den
Blick nach Süden bzw. S/O

Ich würde mich über Rückmeldung zur Grundrissplanung freuen und interessiere mich sehr, was die Fachschaft dazu meint!
Bebauungsplan/Einschränkungen: Bebauungsplan aus dem Jahr 1960
Größe des Grundstücks ca. 900m2
Hang ja
Grundflächenzahl 0,25
Geschossflächenzahl 0,35
Anzahl Stellplatz 2 Einzelgaragen mit 2 Stellplätzen (Zukunft)
Geschossigkeit
Dachform: Satteldach
Stilrichtung: klassisch, modern
Ausrichtung Süd/West
Maximale Höhen/Begrenzungen: Max. 6 m inkl. Dach
Anforderungen der Bauherren
Teilweise Unterkellert im Hangbereich
Anzahl der Personen: Familie mit 3 Kindern (Zwillinge 5, Kleinkind 2)
offene Küche, Kochinsel
Kamin
Balkon, Dachterrasse
Garage
Hausentwurf
Von wem stammt die Planung:
-Architekt
Was gefällt besonders? Uns gefällt dass wir alle zusammen leben können in Zukunft. Bzw. jeder hat sein eigenes Reich. Wir haben uns bewusst gegen eine innere Erschließung ins UG entschieden!
Was gefällt nicht?
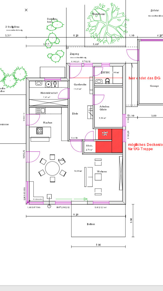
Im EG finde ich den Flur und Zugang zur Treppe sehr verwinkelt.
favorisierte Heiztechnik: Luft / Wärme / Wasserpumpe mit Photovoltaik
Wir haben der Architektin kaum Vorgaben gegeben. Lediglich die gewünschte Wohnfläche und den eigenen Bereich für die Großeltern.
Vielen Dank!!







Wir haben ein wunderschönes Grundstück am Hochrhein mit unverbaubaren Blick auf den Rhein Naturschutzgebiet gekauft.
Es soll darauf ein Mehrgenerationenhaus entstehen.
Wir wollen mit den Großeltern zusammen bauen, diese haben die Einliegerwohnung im UG mit separaten Eingang.
Die Maße des Hauses sollten nicht mehr verändert werden. Bzw. diese sind meiner Meinung nach ideal gewählt.
Das Foto zeigt den
Blick nach Süden bzw. S/O
Ich würde mich über Rückmeldung zur Grundrissplanung freuen und interessiere mich sehr, was die Fachschaft dazu meint!
Bebauungsplan/Einschränkungen: Bebauungsplan aus dem Jahr 1960
Größe des Grundstücks ca. 900m2
Hang ja
Grundflächenzahl 0,25
Geschossflächenzahl 0,35
Anzahl Stellplatz 2 Einzelgaragen mit 2 Stellplätzen (Zukunft)
Geschossigkeit
Dachform: Satteldach
Stilrichtung: klassisch, modern
Ausrichtung Süd/West
Maximale Höhen/Begrenzungen: Max. 6 m inkl. Dach
Anforderungen der Bauherren
Teilweise Unterkellert im Hangbereich
Anzahl der Personen: Familie mit 3 Kindern (Zwillinge 5, Kleinkind 2)
offene Küche, Kochinsel
Kamin
Balkon, Dachterrasse
Garage
Hausentwurf
Von wem stammt die Planung:
-Architekt
Was gefällt besonders? Uns gefällt dass wir alle zusammen leben können in Zukunft. Bzw. jeder hat sein eigenes Reich. Wir haben uns bewusst gegen eine innere Erschließung ins UG entschieden!
Was gefällt nicht?
Im EG finde ich den Flur und Zugang zur Treppe sehr verwinkelt.
favorisierte Heiztechnik: Luft / Wärme / Wasserpumpe mit Photovoltaik
Wir haben der Architektin kaum Vorgaben gegeben. Lediglich die gewünschte Wohnfläche und den eigenen Bereich für die Großeltern.
Vielen Dank!!
cmv1601 schrieb:
Meine Eltern sind 65 und sehr fit. Ich denke es ist vertretbar dass sie gut noch Treppen laufen können.
Das Eltern Schlafzimmer ist schon auf das minimalste reduziert.Und was ist mit 70?
Was ist mit 75?
Es kann schnell gehen.
Alleine die letzten 6 Wochen im Freundeskreis
Bei Eis mit 75 ausgerutscht, Knie verletzt, Prognose evtl im Sommer mit Krücken laufen
Der Nächste wacht mit 70 auf kann plötzlich nicht laufen - seltene Nervenentzündung Prognose von Hinken bis gelähmt bleiben
Mein Onkel Op am Handgelenk kann nichts tragen und kein Auto fahren. Meine Tante hat ein Magenproblem und kann sich nicht bücken - Tata hat ein sehr fittes Paar um die 70 Probleme
Arthrose, Rheuma und jede Stufe wird zur Qual
cmv1601 schrieb:
Das mit dem Strom für einen evtl. Lift ist eine gute Idee. Wie gesagt meine Eltern sind sehr fit und wenn in10-20 Jahren es dann beschwerlich wird, dann ändern sich evtl auch schon wieder die Räumlichkeiten bzw. die Orte.Viel Glück wenn es so lange hält. Mein Vater war mit 64 ein Baum. Gesund, Fit körperlich und geistig,
Mit viel Disziplin und eisernen Willen konnte er an seinem 65 Geburtstag wieder ein paar Schritte am Stock gehen.
Ok, vielen Dank für die gesundheitlichen Prognosen.
Meine Eltern wollen ins UG und aufgrund der Hanglage ist dies anders nicht möglich. Wir brauchen 2 Garagen und aufgrund des eher schmalen Grundstückes ist ebenfalls ein barrierefreier Zugang nicht möglich.
Ich bin weiterhin sehr interessiert an Verbesserungen der Innenraumplanung!
Danke.
Meine Eltern wollen ins UG und aufgrund der Hanglage ist dies anders nicht möglich. Wir brauchen 2 Garagen und aufgrund des eher schmalen Grundstückes ist ebenfalls ein barrierefreier Zugang nicht möglich.
Ich bin weiterhin sehr interessiert an Verbesserungen der Innenraumplanung!
Danke.
cmv1601 schrieb:
-> der Blick geht Richtung Rhein und lohnt sich in unseren Augen.Den Blick an sich glaube ich gern, aber wieviel davon kommt auch im Souterrain noch an ?https://www.instagram.com/11antgmxde/
https://www.linkedin.com/company/bauen-jetzt/
Update:
Zum einen wurde das EG von der Architektin etwas „geordnet“, zum andern wurde ein Durchbruch und somit auch die Option auf eine spätere innere Erschließung ermöglicht.
Für das DG sieht sie keine Möglichkeit der Planänderung (außer den Vorraum vom nördlichen Kinderzimmer zu lassen)
Hat da vielleicht doch noch jemand „die Idee“?
Ein gesundes und gutes Neues Jahr noch an Alle!

Zum einen wurde das EG von der Architektin etwas „geordnet“, zum andern wurde ein Durchbruch und somit auch die Option auf eine spätere innere Erschließung ermöglicht.
Für das DG sieht sie keine Möglichkeit der Planänderung (außer den Vorraum vom nördlichen Kinderzimmer zu lassen)
Hat da vielleicht doch noch jemand „die Idee“?
Ein gesundes und gutes Neues Jahr noch an Alle!