Planung Einfamilienhaus mit ca. 200 m² - Meinungen erwünscht

4,40 Stern(e) 7 Votes
Zuletzt aktualisiert 25.11.2025
Sie befinden sich auf der Seite 4 der Diskussion zum Thema: Planung Einfamilienhaus mit ca. 200 m² - Meinungen erwünscht
>> Zum 1. Beitrag <<

S

seniordingdong

So, einige eurer durchaus sinnvollen Vorschläge bzw. Kritikpunkte mündeten nun in einem neuen Alternativentwurf.
Schaut gern mal drüber

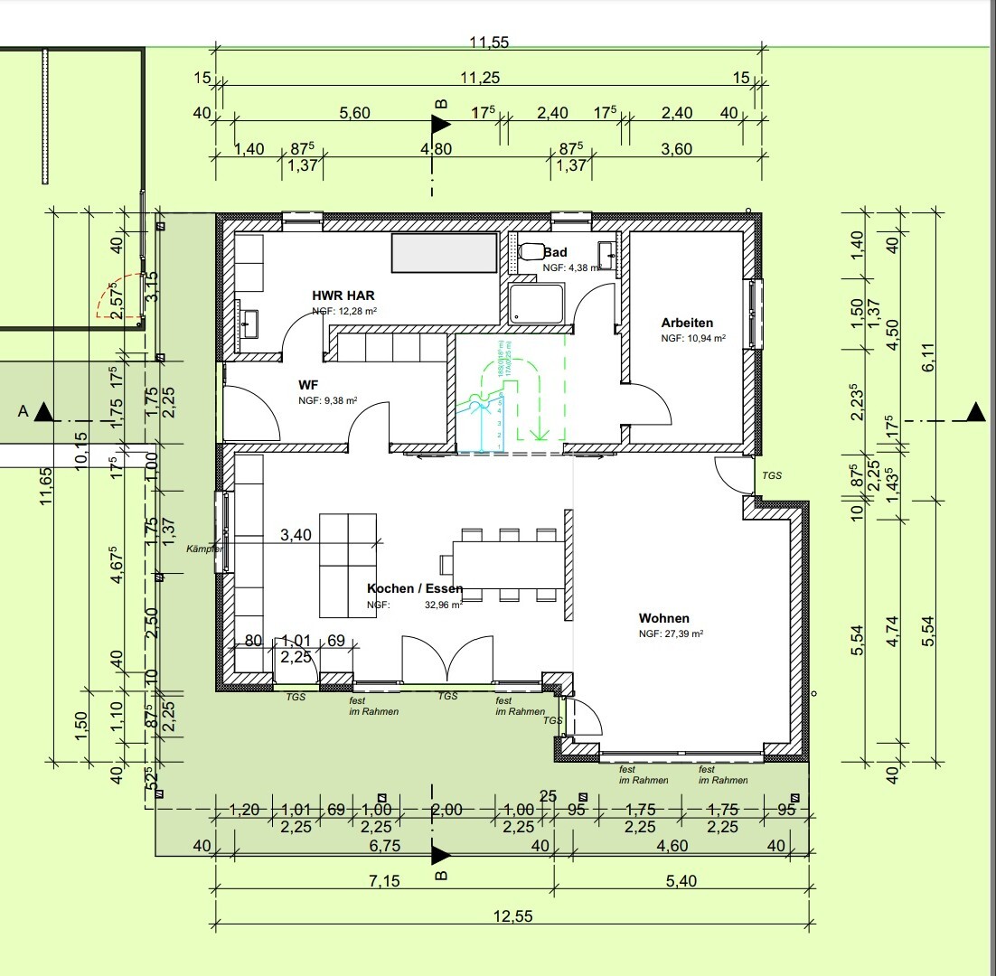
Grundriss eines Hauses mit Küche/Essen, Wohnen, Arbeiten, Bad und HWR/HAR, inkl. Maßen.


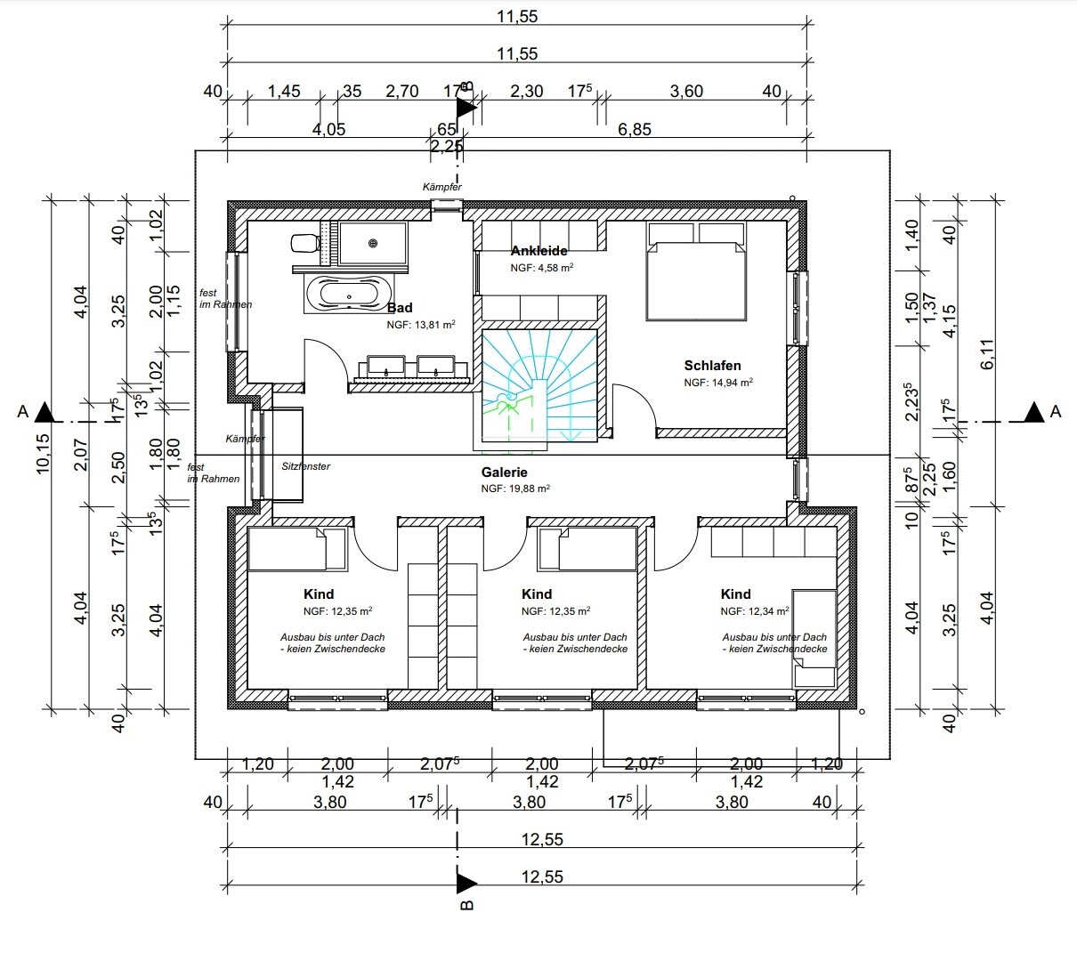
Dachgeschoss-Grundriss: Treppe zur Galerie, Bad, Ankleide, Schlafen und drei Kinderzimmer.
 
H

hampshire

Wäre schön zu erfahren wie wichtig Design, Kunst, Materialien und Texturen für die Bauherren ist.
Nimmt man mal die allgemeinen Effizienz- und Ökonomie-Aspekte etwas zurück bekommt der erste Entwurf eine Klarheit und Eleganz, die man sehr gut in Szene setzen kann. Der große Flur oben hat eine hohe Gallerie-Qualität und ermöglicht einem geneigten Kunstliebhaber das Wechseln der Exponate (erst mal die Kinder etwas heranwachsen lassen).
Entsprechend sorgfältig zusammengestellte Möblierung kann den großen Wohnraumsehr schön strukturieren. Dabei auf Raumakustik und angemessene Deckenhöhe (3m) einplanen. Da wird es natürlich mit den 2000€ je qm nichts.
Der zweite Entwurf wirkt dagegen etwas kleinlich und im EG verschachtelt.
Unter praktikablen und ökonomischen Gesichtspunkten ist der Entwurf nicht erste Wahl, da Verkehrsflächen einfach mehr kosten als sie bringen und es davon gerade im OG reichlich gibt.
 
Zuletzt aktualisiert 25.11.2025
Im Forum Grundrissplanung / Grundstücksplanung gibt es 2536 Themen mit insgesamt 88016 Beiträgen


Ähnliche Themen zu Planung Einfamilienhaus mit ca. 200 m² - Meinungen erwünscht
Nr.ErgebnisBeiträge
1Grundriss erster Entwurf - Meinungen erwünscht 21
2Entwurf Grundriss Bungalow Meinungen 22
3Einfamilienhaus-Grundriss Entwurf 23
4Entwurf Grundriss: Planung Erdgeschoss - Seite 227
5Planung Grundriss / Erster Entwurf für erstes Feedback 32
6Unser Grundriss-Entwurf, eure Meinungen 20
7Entwurf des Planers für unser Einfamilienhaus 48
8Bauen mit GU - Angebot vom GU inkl. Entwurf 22
9Ideen zu Entwurf für Einfamilienhaus mit Keller - Seite 347
10Entwurf - alle Richtungen bei Neubau vom Einfamilienhaus 91
11Entwurf Einfamilienhaus mit Garage/Carport - bitte um Bewertung 22
12Entwurf Grundriss Bungalow - Eure Meinungen bitte! 14
13Grundriss-Entwurf Stadtvilla Feedback - Seite 213
14Planung unseres Einfamilienhaus - Was meint ihr zum Entwurf? - Seite 656
15Einfamilienhaus als Reihenmittelhaus an Hanglage - Entwurf - Seite 318
16Erster Entwurf Einfamilienhaus 150m² mit Keller 38
17Grundriss-Entwurf Stadtvilla mit Doppelgarage - Seite 238
18Haus-Entwurf Einfamilienhaus - Zukünftig als Zweifamilienhaus trennbar - Seite 572
191. Entwurf Grundriss Einfamilienhaus 150 qm 50
20Erster Entwurf des Grundrisses für 150m2 Haus 31

Oben