Hausbau - Ratgeber
Bauherrenhilfe
- Bauherrenhilfe vor Vertragsabschluss
-- Warum einen unabhängigen Baubetreuer?
-- Vertragsgrundlagen
-- Bausumme
-- Zahlungsplan zur Kostenkontrolle
-- Pflichten des Bauherren vor Vertragsabschluss
-- Unterlagen beim Hausbau vor Vertragsabschluss
- Bauherrenhilfe nach Vertragsabschluss
-- Bauantrag bei Behörden
-- Bau-Genehmigungsverfahren bei Baubehörden
-- Bauspezifische Versicherungen
-- Bauzeitenplan
-- Baubeginn - die Letzten Pflichten der Bauherrschaft
- Bauherrenhilfe während der Bauzeit
- Gewährleistungsansprüche
- Bauabnahme
Baufinanzierung
- Baufinanzierung - Allgemeine Fragen
- Kreditarten
- Kredit-Konditionen
- Bausparen
- Staatliche Förderungen
- Verkehrswert
- Haushaltsrechnung und Bonität
Hausbau Planung
- Haustypen
- Hausbau Vorbereitungsarbeiten
- Das Baugrundstück
- Baugrund beim Hausbau
- Baurecht
- Gebäudeschutz
- Erdarbeiten und Wasserhaltung
- Stützmauern
- Einfriedung
- Untergeschoss
- Kanalisation
- Tragende Elemente
- Nichttragende Innenwände
- Fundation / Fundament
- Deckenkonstruktionen
- Dächer
- Kaminanlagen
- Treppen Rampen Leitern
- Dachbeläge und Spengler
- Fenster
- Sonnen und Wetterschutz
- Aussenputze
- Einbauten, Küchen, Türen
- Bodenbeläge und Unterlagsböden
- Parkett
- Gips, Wand, Decke
Haustechnik und Energie
- Heiztechnik
- Lüftung und Klimatechnik
- Sanitärtechnik
- Elektrotechnik
- Erneuerbare Energie
Whirlpools / Jacuzzi
Hausbau Magazin
- Baufinanzierung trotz Krise?
- Das Blockhaus
- Moderne Dämmstoffe im Vergleich
- Erker Vor- und Nachteile
- Glasflächen beim Hausbau
- Günstig ein Haus Bauen
- Mediterraner Hausbaustil
- Mehrgenerationenhaus
- Moderne Architektur
- Gartengestaltung leicht gemacht
- Traditioneller Ziegelbau
- Villa als höchster Traum
- Im Eigenheim Ruhestand geniessen
- Altbau sanieren
- Kauf einer Holzgarage
- Immobilienmakler
- Arbeitshandschuhe für den Winter
- Zuhause verschönern
- Outdoor-Plissees
- Schlafzimmer planen
- Terrassenüberdachung
- Wohngebäudeversicherung
- Zaunarten und Eigenschaften
- Hauseingang gestalten
- Der perfekte Grundriss
- Sparsamer heizen im Altbau
- Einfamilienhaus smart finanzieren
- Planung einer PV-Anlage
- Neues Haus
- Immobilienfinanzierung
- Installation einer Photovoltaikanlage
- Asbest erkennen und entfernen
- Gartenpflege im Frühling – worauf achten
- Sauna im Fokus - Wellness zuhause
- Erfolgreich vermieten
- Die perfekte Winterbekleidung
- Das Niedrigenergiehaus
- Der April und seine Stürme
- Architektonische Vielfalt
- Ökologisch und nachhaltig bauen
- Das perfekte Schlafzimmer
- Nachhaltige Energieversorgung
- Zukunftsorientiert bauen
- Nachhaltigkeit beim Hausbau
- Tiny Houses
- Wärmepumpen als nachhaltige Heizvariante
- Maßgeschneiderten Kleiderschrank
- Der richtige Baukredit
- Ratgeber für erfolgreichen Hausbau
- Haus als Altersvorsorge
Do-it-yourself Anleitungen
- Verlegeanleitung für Bodenbeläge und Parkett
- Bodenbeläge und Parkett reinigen und pflegen
- Malerarbeiten am Haus
- Garten Tipps
- Umzug und Reinigung

ᐅ Planung Einfamilienhaus mit ca.175 m², Eure Einschätzung?

Erstellt am: 01.11.13 22:04
F
FelixDem
F
FelixDem
01.11.13 22:04
Hallo,

wir haben ein Grundstück reserviert und planen derzeit unseren Hausbau.

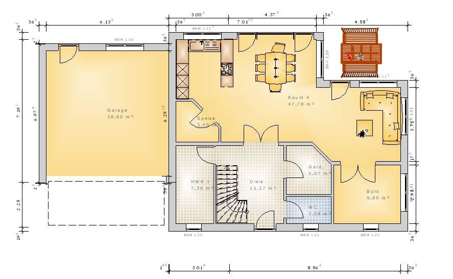
Das Grundstück ist nach Süden ausgerichtet (Länge: 35 m), dort grenzt unmittelbar ein schöner Laubwald an.

Da wir aufgrund des hohen Grundwasserspiegels nur mit Bodenplatte bauen werden, haben wir das Haus etwas größer geplant (ca. 175 bis 180 qm).

Folgende Ideen haben wir hier mit einfließen lassen:
- man soll gleich beim Betreten des Hauses den Wald sehen können
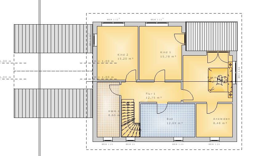
- das Büro grenzt direkt ans Wohnzimmer - so lassen sich auch mal schnell die Spielsachen der kleinen Tochter wegräumen/verbergen
-extra Garderoben-Zimmer
- zwei große Kinderzimmer mit rund 15 qm




Das Farbkonzept außen ist noch nicht so weit, eher würden wir Richtung graue Fenster tendieren, aber das ist vorerst noch egal.

Unseren Familienmitgliedern hat dieser Plan sehr gut gefallen, doch eine "unabhängige Meinung" von Euch würde uns sehr interessieren.

Über Kommentare und Verbesserungsvorschläge würden wir uns sehr freuen.


Viele Grüße,
FelixDem

Grundriss eines Hauses mit Garage, Küche, Essbereich und Wohnzimmer


2D-Grundriss eines Hauses mit Zimmern, Flur und Treppen


Zweistöckiges modernes Hausmodell mit Holzverkleidung, Terrasse und großen Fenstern.
Y
ypg
02.11.13 00:44
Die schrägen "Geschichten" passen nicht zum Haus!

My two pences :-) Und ich verstehe sie auch nicht 😉
kaho67402.11.13 08:05
Hallo,
Grundsätzlich ganz hübsch, finde ich. Viele Schränke könnt Ihr aber im Wohnzimmer nicht aufstellen. Manche haben ja z.B. einen Fernseher oder gar eine Schrankwand. Hast Du hier Deine Möbel bzw. Möbelwünsche beachtet? Falls nicht, würde ich die mal einzeichnen. Dann bekommt man auch ein gutes "Größengefühl". Architekten zeichnen gern Puppenstubenmöbel ein.

Schrägen mag ich auch nicht so, ist aber hier nicht dramatisch, denke ich.
Habt Ihr 2 Kinder? Dann ist 1 Bad vielleicht bissel knapp. Den Hauswirtschaftsraum oben würde ich noch als 2. Bad planen. Wenn das kleine Töchterchen erst 13 wird, steht Ihr sonst vorm Bad Schlange. 😉

Die Treppe scheint zwar auszureichen, sieht aber ganz schön steil aus. Wie sind denn da die Maße?
One0002.11.13 09:20
Warum ist die Tür zum Büro zweiflüglig? Das nimmt Stellfläche. Den Flurbereich zwischen Bad und Treppe würde ich dem Bad zukommen lassen. Die Garderobe würde ich offen gestalten und verkleinern und den gewonnenen Raum dafür nutzen, aus dem WC ein zweites kleines Bad zu machen.
Y
ypg
02.11.13 09:27
Bei 2 Kindern würde ich auch beiden Zutritt zum Balkon gewähren. Ansonsten kommt Neid auf. Man könnte Kind 2 und Eltern tauschen, Bad nach rechts verschieben, die Lücke zur Treppe mit Hauswirtschaftsraum bestücken und die Ankleide dort machen, wo jetzt der Hauswirtschaftsraum ist.
Vorausgesetzt, die Maße lassen das zu und Ihr könnt auf den Balkon als Eltern verzichten 🙄
F
FelixDem
02.11.13 09:39
Hallo zusammen,

vielen Dank für Euer Feedback.

Idealerweise hätten wir vom Wohnzimmer zum Büro eine Schiebetüre (integriert), jedoch hat meine Hausplaner-Software diese nicht im Programm. Dies müsste man dann mit dem Architekt abstimmen.

Das Wohnzimmer würden wir eher spartanisch einrichten, der Fernseher kommt mittels Schwenkarm an die Schräge (hat 1,4 m), dann könnte man evtl. sogar vom Esstisch aus mal Fussball ansehen J

Das wegen der Treppe kann ich leider nicht so ganz einschätzen. Ich habe mal die Einstellungen als Bild eingefügt. Meint Ihr, das ist zu wenig?

Viel Glück,
Felix

Grundriss einer Treppe mit rechtsgewendelt, blaue Linien im Planungsfenster
wohnzimmertreppehauswirtschaftsraumgrundstückfernseherbalkon