ᐅ Planung Einfamilienhaus in Norden NRW´s - Meinungen zur Planung gewünscht...
Erstellt am: 30.11.13 16:09
P
PredonorWir bauen ein Haus mit Satteldach und einer Dachneigung von 38 Grad. Der Drempel soll 1,35m hoch sein.
Nach zahlreichen Musterhausbesichtigungen haben wir einen Grundriss aus einem Fertighausmusterpark gefunden, den wir nun planen in Massivbauweise umzusetzen.
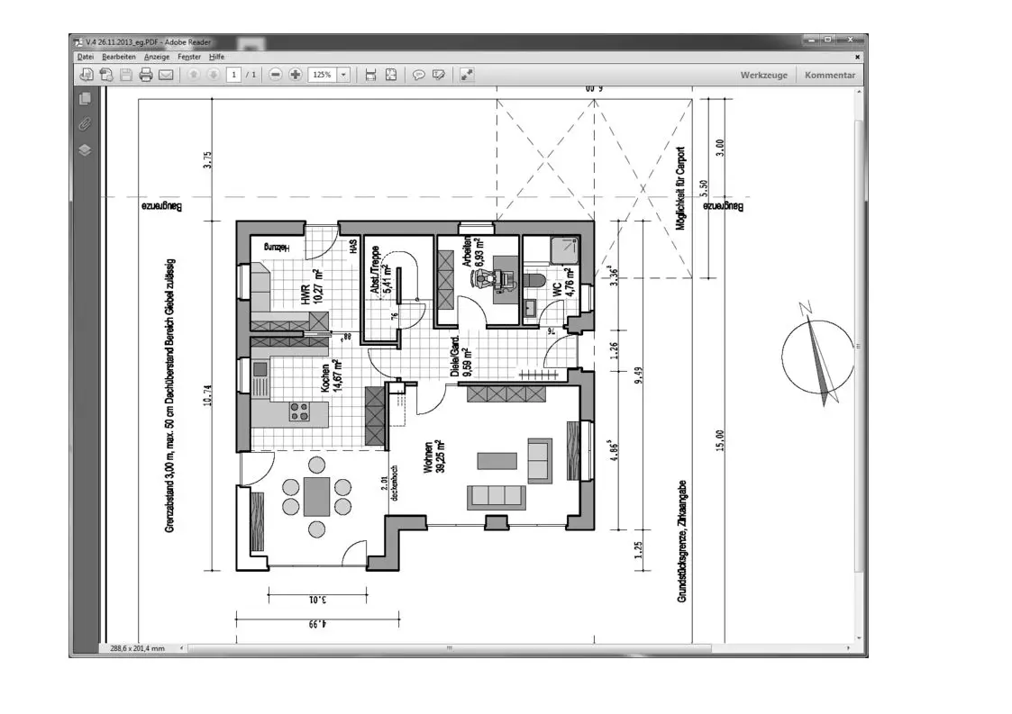
Wir haben ein rechteckiges Grundstück (17m breit und 28m tief) in Nord-Süd Ausrichtung. Das Baufenster befindet sich im Nordteil, so dass der Garten vor dem Haus zu gestalten ist. Das Haus soll 11 m breit sein (max. mögliche Bebauung) und rechts neben das Haus (NO) soll die Garage mit Werkstattraum errichtet werden.
Der "Erker" im SW ist noch nicht korrekt eingezeichnet. Es fehlen links und rechts am Erker noch Türen, so dass das gesamte wie ein Wintergarten wirken soll.
Bei Gelegenheit stelle ich die neuen Pläne bzw. eine andere Darstellung nochmals ein.
Nach aktuellen Stand sind das Netto 150 qm Wohnfläche, mit Fußbodenheizung oben und unten und Gasheizung mit Warmwasserunterstützung über Solar. Der aktuelle Festpreis liegt bei ca. TEUR 230.
Nun bitte Meinungen, Diskussionen etc. VIELEN DANK!


Nach zahlreichen Musterhausbesichtigungen haben wir einen Grundriss aus einem Fertighausmusterpark gefunden, den wir nun planen in Massivbauweise umzusetzen.
Wir haben ein rechteckiges Grundstück (17m breit und 28m tief) in Nord-Süd Ausrichtung. Das Baufenster befindet sich im Nordteil, so dass der Garten vor dem Haus zu gestalten ist. Das Haus soll 11 m breit sein (max. mögliche Bebauung) und rechts neben das Haus (NO) soll die Garage mit Werkstattraum errichtet werden.
Der "Erker" im SW ist noch nicht korrekt eingezeichnet. Es fehlen links und rechts am Erker noch Türen, so dass das gesamte wie ein Wintergarten wirken soll.
Bei Gelegenheit stelle ich die neuen Pläne bzw. eine andere Darstellung nochmals ein.
Nach aktuellen Stand sind das Netto 150 qm Wohnfläche, mit Fußbodenheizung oben und unten und Gasheizung mit Warmwasserunterstützung über Solar. Der aktuelle Festpreis liegt bei ca. TEUR 230.
Nun bitte Meinungen, Diskussionen etc. VIELEN DANK!
Das Arbeitszimmer wird sehr klein werden...ich würde das Gäste-WC zugunsten vom Arbeitszimmer verkleinern...ist eh viel zu groß
Wozu oben die Ankleide sowas hört sich nur gut an...aber funktioniert nicht wirklich...
18qm Bad ist auch Platzverschwendung...dann lieber teilen und ein großes Bad und eine kleine WC/Dusche Kombi für Kinder bauen...
Wozu oben die Ankleide sowas hört sich nur gut an...aber funktioniert nicht wirklich...
18qm Bad ist auch Platzverschwendung...dann lieber teilen und ein großes Bad und eine kleine WC/Dusche Kombi für Kinder bauen...
Mycraft schrieb:
Wozu oben die Ankleide sowas hört sich nur gut an...aber funktioniert nicht wirklich...Wer sagt das?? Willst Du sie lieber unten???? :o
Ich finde den Grundriss nicht schlecht, obwohl ich persönlich wohl eher die Küche gen Osten gelegt hätte und die Wohnräume gen Westen.
Nun denn, dennoch finde ich das Bad auch zu gross. Könnte man eventuell verkleinern und noch einen Hauswirtschaftsraum zum Waschen im OG einrichten
Auch mal meinen Senf dazu, weil ich gerade noch munter bin 🙂.
Zum Bad ist schon alles gesagt – wobei es ggf. vom TE auch so beabsichtigt ist. Für manchen ist ein großes, hochwertig ausgestattetes Bad genau der Luxus, den er/sie sich gönnen will (Stichwort: Wohlfühl-Oase / Wellness-Tempel).
Im OG würde ich die Schräge bei Kinderzimmer wegnehmen. Wenn schon was schräg sein muss, dann doch besser nur die Tür schräg einsetzen. Damit wäre das Kinderzimmer noch etwas vergrößert und die Stellfläche für die Wand verlängert.
EG: Wofür habt ihr beim Hauswirtschaftsraum die Außentüre geplant? Wenn ihr sie weglasst, spart ihr ein paar Taler (Fenster ist günstiger als Türe), verringert die Einbruchgefahr (jede zugängliche Außentüre erhöht die Gefahr – wir hatten erst vor 1 Woche eine Sicherheitsberatung der Polizei 😎 <-- sehr zu empfehlen) und gewinnt mehr Stellfläche.
Wollt Ihr den Hauswirtschaftsraum auch als Speisekammer nutzen? Wenn ja – i.O. Wenn nicht - würde ich die Türe zum Hauswirtschaftsraum vom Treppenhaus her gestalten --> dadurch mehr Nutzfläche in der Küche.
@Mycraft: Im EG soll es nicht nur ein Gäste-WC sondern ein Duschbad werden. Dafür sind die 4,76 qm schon sehr klein bemessen – also kaum was abzuzweigen für das Büro.
Zum Bad ist schon alles gesagt – wobei es ggf. vom TE auch so beabsichtigt ist. Für manchen ist ein großes, hochwertig ausgestattetes Bad genau der Luxus, den er/sie sich gönnen will (Stichwort: Wohlfühl-Oase / Wellness-Tempel).
Im OG würde ich die Schräge bei Kinderzimmer wegnehmen. Wenn schon was schräg sein muss, dann doch besser nur die Tür schräg einsetzen. Damit wäre das Kinderzimmer noch etwas vergrößert und die Stellfläche für die Wand verlängert.
EG: Wofür habt ihr beim Hauswirtschaftsraum die Außentüre geplant? Wenn ihr sie weglasst, spart ihr ein paar Taler (Fenster ist günstiger als Türe), verringert die Einbruchgefahr (jede zugängliche Außentüre erhöht die Gefahr – wir hatten erst vor 1 Woche eine Sicherheitsberatung der Polizei 😎 <-- sehr zu empfehlen) und gewinnt mehr Stellfläche.
Wollt Ihr den Hauswirtschaftsraum auch als Speisekammer nutzen? Wenn ja – i.O. Wenn nicht - würde ich die Türe zum Hauswirtschaftsraum vom Treppenhaus her gestalten --> dadurch mehr Nutzfläche in der Küche.
@Mycraft: Im EG soll es nicht nur ein Gäste-WC sondern ein Duschbad werden. Dafür sind die 4,76 qm schon sehr klein bemessen – also kaum was abzuzweigen für das Büro.
Nach aktueller Planung soll oben in der Dusche Platz für 2 Duschbrausen sein (Regendusche und "normaler" Brause). Nebenbei braucht man dort im Bad noch Platz für Wäschekörbe etc. Daher wollen wir uns vom Platz etwas mehr gönnen.
Geplant ist aktuell mit nur einem Kind, so dass das Kinderzimmer 2 als "Allzweckraum" gedacht ist.
Die Tür im Hauswirtschaftsraum soll nach hinten gehen, da dort die Mülltonnen auf der Nordseite sein. Zusätzlich ist der Eingang in den Werkstattraum/Garage dort.
Haus von Fingerhaus (Nr. 15). Aufgrund unseres Grundstückes muss der Zugang über den Giebel erfolgen. Das OG haben wir gespiegelt wegen der Ausrichtung der Himmelsrichtung.
Geplant ist aktuell mit nur einem Kind, so dass das Kinderzimmer 2 als "Allzweckraum" gedacht ist.
Die Tür im Hauswirtschaftsraum soll nach hinten gehen, da dort die Mülltonnen auf der Nordseite sein. Zusätzlich ist der Eingang in den Werkstattraum/Garage dort.
Haus von Fingerhaus (Nr. 15). Aufgrund unseres Grundstückes muss der Zugang über den Giebel erfolgen. Das OG haben wir gespiegelt wegen der Ausrichtung der Himmelsrichtung.
Dass es unten mit Dusche ein soll sehe ich auch, trotzdem muss es kaum breiter sein als ein Meter...hinterher ärgert man sich, weil man das WC selten nutzt, sich dafür aber in ein Minizimmer quetschen muss...
Eine 120x90 Dusche ist auch mehr als groszügig für 2 Brausen...haben wir auch...größer ist quatsch...ausser man braucht körperlich den Platz...
Die Ankleide funktioniert nicht, weil diese zu klein ist...man kann sich sowas auch wegsparen...mehr Platz dafür im Schlafzimmer nehmen und einen Großen Schrank hinstellen und gut...sonst holt man sich nur blaue Flecken jedes Mal wenn man klamotten braucht...
Eine 120x90 Dusche ist auch mehr als groszügig für 2 Brausen...haben wir auch...größer ist quatsch...ausser man braucht körperlich den Platz...
Die Ankleide funktioniert nicht, weil diese zu klein ist...man kann sich sowas auch wegsparen...mehr Platz dafür im Schlafzimmer nehmen und einen Großen Schrank hinstellen und gut...sonst holt man sich nur blaue Flecken jedes Mal wenn man klamotten braucht...
Ähnliche Themen