Hallo zusammen,
wir werden demnächst ein Einfamilienhaus (mit GU) bauen und beginnen langsam, uns mit der Planung zu beschäftigen. Momentan setzen wir uns intensiv mit dem Haupt-Badezimmer auseinander. Da uns die ultimative Idee bisher noch fehlt, wollten wir hier im Forum nachfragen, ob uns jemand behilflich sein kann.
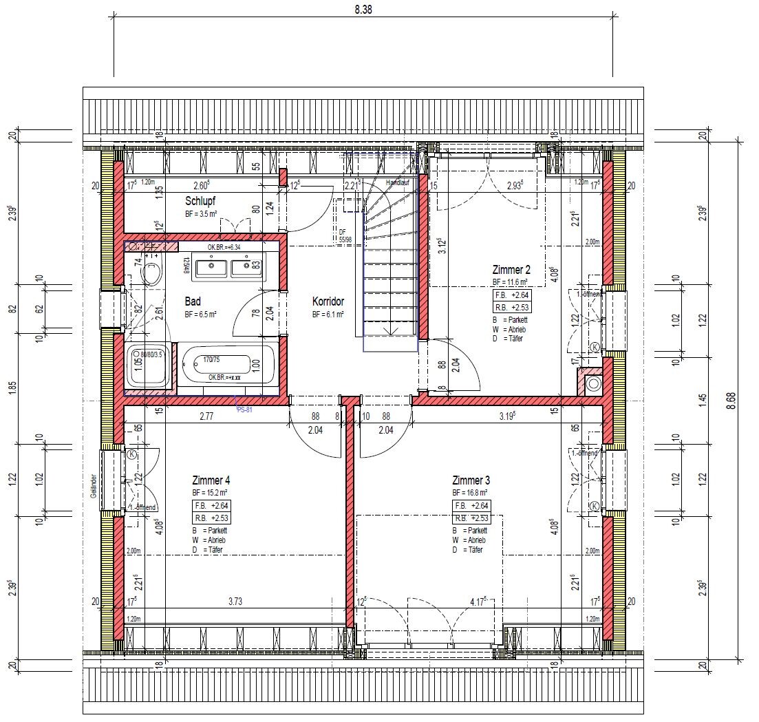
Hier die Grundrisse von Erdgeschoss und Dachgeschoss.
Erdgeschoss:

Dachgeschoss:

Kniestock im Dachgeschoss ist 90 cm, maximale Raumhöhe Giebel ist 3,50 m.
Folgende Sachen gefallen uns an der Badplanung im Dachgeschoss nicht besonders gut:
- Dusche ist für das Hauptbahn ziemlich klein (80 x 80 cm)
- Badewanne ist ebenfalls recht klein (ich bin fast 1,90 m gross)
- Toilette ist direkt "im Blick", wenn man das Badezimmer betritt
- Durch den Schlupf (Abstellkammer) ist das Badezimmer insgesamt recht klein. Da wir einen ziemlich grossen Keller haben werden, brauchen wir die Abstellkammer nicht.
Um diese Nachteile zu entschärfen habe ich mal 2 Entwürfe gemacht, die aber beide gewisse Nachteile haben. Bei beiden Versionen habe ich die Tür übrigens außen angeschlagen, da der Flur nach Entfernen der Abstellkammer kein "Durchgangsflur" mehr ist.
Version 1:

Hier ist der Nachteil, dass durch die Dusche (100 x 100 cm) der Platz zum Fenster knapp werden könnte. Evt. kann das Fenster noch zur Badewanne hin verschoben werden. Das würde aber evt. Kosten für eine zusätzliche Baugenehmigung nach sich ziehen.
Version 2:

Die Version ist im Prinzip identisch zu Version 1, nur dass doppelwaschtisch und Dusche die Plätze getauscht haben. Problem hier könnte sein, dass die Toilette zu weit unter die Dachschräge kommt (ich bin wie gesagt fast 1,90 m gross).
Was haltet ihr von den beiden Planungsversionen? Hat jemand noch eine andere Idee, die ich noch nicht auf dem Radar habe?
Vielen Dank schonmal für eure Hilfe!
Beste Grüsse,
Seb.
wir werden demnächst ein Einfamilienhaus (mit GU) bauen und beginnen langsam, uns mit der Planung zu beschäftigen. Momentan setzen wir uns intensiv mit dem Haupt-Badezimmer auseinander. Da uns die ultimative Idee bisher noch fehlt, wollten wir hier im Forum nachfragen, ob uns jemand behilflich sein kann.
Hier die Grundrisse von Erdgeschoss und Dachgeschoss.
Erdgeschoss:
Dachgeschoss:
Kniestock im Dachgeschoss ist 90 cm, maximale Raumhöhe Giebel ist 3,50 m.
Folgende Sachen gefallen uns an der Badplanung im Dachgeschoss nicht besonders gut:
- Dusche ist für das Hauptbahn ziemlich klein (80 x 80 cm)
- Badewanne ist ebenfalls recht klein (ich bin fast 1,90 m gross)
- Toilette ist direkt "im Blick", wenn man das Badezimmer betritt
- Durch den Schlupf (Abstellkammer) ist das Badezimmer insgesamt recht klein. Da wir einen ziemlich grossen Keller haben werden, brauchen wir die Abstellkammer nicht.
Um diese Nachteile zu entschärfen habe ich mal 2 Entwürfe gemacht, die aber beide gewisse Nachteile haben. Bei beiden Versionen habe ich die Tür übrigens außen angeschlagen, da der Flur nach Entfernen der Abstellkammer kein "Durchgangsflur" mehr ist.
Version 1:
Hier ist der Nachteil, dass durch die Dusche (100 x 100 cm) der Platz zum Fenster knapp werden könnte. Evt. kann das Fenster noch zur Badewanne hin verschoben werden. Das würde aber evt. Kosten für eine zusätzliche Baugenehmigung nach sich ziehen.
Version 2:
Die Version ist im Prinzip identisch zu Version 1, nur dass doppelwaschtisch und Dusche die Plätze getauscht haben. Problem hier könnte sein, dass die Toilette zu weit unter die Dachschräge kommt (ich bin wie gesagt fast 1,90 m gross).
Was haltet ihr von den beiden Planungsversionen? Hat jemand noch eine andere Idee, die ich noch nicht auf dem Radar habe?
Vielen Dank schonmal für eure Hilfe!
Beste Grüsse,
Seb.
Für ein oder zwei Fenster um wenige cm zu verschieben, braucht man keine neue Baugenehmigung.
Wie soll denn die Duschabtrennung ausgeführt sein? Mauer oder Glas?
Wo ist denn die 2Meter-Linie? Die ist meist entscheidend!!!
Für Deine zwei Alternativen ist eine Vergrößerung des Raumes nicht nötig - Du hast ja alles an die Tür gequetscht 😉
Edit: ich hab die Linie gefunden [emoji15]
Wie soll denn die Duschabtrennung ausgeführt sein? Mauer oder Glas?
Wo ist denn die 2Meter-Linie? Die ist meist entscheidend!!!
Für Deine zwei Alternativen ist eine Vergrößerung des Raumes nicht nötig - Du hast ja alles an die Tür gequetscht 😉
Edit: ich hab die Linie gefunden [emoji15]
Ja, wenn es wenige cm sind, sollte keine Baugenehmigung notwendig sein.
Duschabtrennung soll aus Glas sein. So hätte man in Variante 1 so viel wie möglich natürliches Licht am Doppelwaschtisch.
Falls eine völlig andere Idee aber eine Mauer als Abtrennung zulassen würde, könnten wir auch damit leben.
Duschabtrennung soll aus Glas sein. So hätte man in Variante 1 so viel wie möglich natürliches Licht am Doppelwaschtisch.
Falls eine völlig andere Idee aber eine Mauer als Abtrennung zulassen würde, könnten wir auch damit leben.
Ich hab mir das mal grob skizziert... hatte selbst mal solch ein Bad, die Maße von 2,50 x 2,20 waren in den 70/80ern gängig. Ob sich nun eine Person ü190 in eine Wanne gequetscht hat, das glaube ich weniger 😉 Deshalb wohl der Hype in den 90ern, auf eine Wanne grundsätzlich zu verzichten, zumindest im Umbau.
Für wieviel Personen soll denn das Bad sein? Für mehr als 3 halte ich es heutzutage für eine Fehlplanung.
Auch die Verlängerung bringt kaum etwas, überhaupt nur, um die Wanne in die Schräge zu ziehen. Was ist denn mit dem Flur? Ggf. hiervon noch etwas dem Bad zuschustern?
Für wieviel Personen soll denn das Bad sein? Für mehr als 3 halte ich es heutzutage für eine Fehlplanung.
Auch die Verlängerung bringt kaum etwas, überhaupt nur, um die Wanne in die Schräge zu ziehen. Was ist denn mit dem Flur? Ggf. hiervon noch etwas dem Bad zuschustern?
K
Knallkörper22.08.17 15:16Ich würde die Badewanne weglassen. Mit 6,5qm war das Hauptbad viel zu klein geplant, wenn man dort "alles" von der großen Dusche bis zum Doppelwaschtisch unterbringen will. Die zusätzliche Fläche durch den Wegfall des Schlupfes bringt im Bad halt nicht viel, aufgrund der mangelnden Höhe. In deiner Zeichnung fehlt auch noch die Vorwandinstallation.
Danke für deine Rückmeldungen.
Wo soll ich es denn sonst platzieren. Für eine Zwischenwand ist doch definitiv zu wenig Platz.
Hast du die Skizze vergessen anzuhängen oder habe ich dich falsch verstanden.
Das hatte ich bereits auch schonmal überlegt. Allerdings gewinnt man den Platz dann auch nur unter der Dachschräge. Wie würdest du dann das Bad einrichten, wenn man den Flur opfert?

ypg schrieb:
Für Deine zwei Alternativen ist eine Vergrößerung des Raumes nicht nötig - Du hast ja alles an die Tür gequetscht 😉
Wo soll ich es denn sonst platzieren. Für eine Zwischenwand ist doch definitiv zu wenig Platz.
ypg schrieb:
Ich hab mir das mal grob skizziert...
Hast du die Skizze vergessen anzuhängen oder habe ich dich falsch verstanden.
ypg schrieb:
Auch die Verlängerung bringt kaum etwas, überhaupt nur, um die Wanne in die Schräge zu ziehen. Was ist denn mit dem Flur? Ggf. hiervon noch etwas dem Bad zuschustern?
Das hatte ich bereits auch schonmal überlegt. Allerdings gewinnt man den Platz dann auch nur unter der Dachschräge. Wie würdest du dann das Bad einrichten, wenn man den Flur opfert?
Ähnliche Themen