K
knalltüte01.03.20 12:56Hallo,
ich plane zur Zeit noch Details des Grundrisses. Einige Eckdaten stehen
bereits fest aufgrund äusserer Gegebenheiten.
Das Badezimmer ist aber noch flexibel in Größe und Aufteilung und ich finde
auch nach der 7.ten Umplanung keine die mich vom Hocker reisst :-/
Dieses Badezimmer ist in der einen Wohneinheit die ich selber allein bewohnen werde.
In alle anderen Wohneinheiten kommt keine Badewanne und das Bad wird auch kleiner.
Eine Badewanne will ich auf jeden Fall (wird zwar selten genutzt, dennoch)
Große Dusche möchte ich auch. Meine aktuell 85x85 sind definitiv zu klein.
Haltegriffe neben dem WC und auch in der Dusche sowie neben/an der Wanne
müssten planerisch mit reinpassen.
Das Fenster geht genau nach Norden. Größe und Position sind aber noch
komplett frei. Dahinter wird allerdings mit 1.5m Abstand ein niedriger
Technikraum entstehen (das Gebäude wird eine Art Garage mit Pult oder
Satteldach werden...). Also Aussicht ist "versperrt"...nur als Tageslichteinlass.
Die Position der Tür steht fest.
Zu den Massen: Die Kästchen haben je 50cm Abstand, das Bad ist zur Zeit
mit einer Breite von 248cm geplant (die kann ich aber noch anpassen, die
Tiefe von 3m steht jedoch fest).
Kleiner soll das Bad eher nicht werden. Ich wünsche mit ein gemütliches Bad
mit einem gewissen "Bewegungsfreiraum" Deswegen hab ich Angst das der
Durchgang hinter der Tür zwischen Dusche und waschbecken in der Praxis
zu eng wirkt und auch ist ... ?
zapp

ich plane zur Zeit noch Details des Grundrisses. Einige Eckdaten stehen
bereits fest aufgrund äusserer Gegebenheiten.
Das Badezimmer ist aber noch flexibel in Größe und Aufteilung und ich finde
auch nach der 7.ten Umplanung keine die mich vom Hocker reisst :-/
Dieses Badezimmer ist in der einen Wohneinheit die ich selber allein bewohnen werde.
In alle anderen Wohneinheiten kommt keine Badewanne und das Bad wird auch kleiner.
Eine Badewanne will ich auf jeden Fall (wird zwar selten genutzt, dennoch)
Große Dusche möchte ich auch. Meine aktuell 85x85 sind definitiv zu klein.
Haltegriffe neben dem WC und auch in der Dusche sowie neben/an der Wanne
müssten planerisch mit reinpassen.
Das Fenster geht genau nach Norden. Größe und Position sind aber noch
komplett frei. Dahinter wird allerdings mit 1.5m Abstand ein niedriger
Technikraum entstehen (das Gebäude wird eine Art Garage mit Pult oder
Satteldach werden...). Also Aussicht ist "versperrt"...nur als Tageslichteinlass.
Die Position der Tür steht fest.
Zu den Massen: Die Kästchen haben je 50cm Abstand, das Bad ist zur Zeit
mit einer Breite von 248cm geplant (die kann ich aber noch anpassen, die
Tiefe von 3m steht jedoch fest).
Kleiner soll das Bad eher nicht werden. Ich wünsche mit ein gemütliches Bad
mit einem gewissen "Bewegungsfreiraum" Deswegen hab ich Angst das der
Durchgang hinter der Tür zwischen Dusche und waschbecken in der Praxis
zu eng wirkt und auch ist ... ?
zapp
O
Osnabruecker01.03.20 15:03Was ist denn deine Fragestellung?
Beachte bei der Auswahl des Fensters die Höhe der Waschmaschine.
Willst du Waschmaschine/Trockner als ein Gerät?
Auf dem Plan sieht wir das zu eng aus. keine Ellenbogenfreiheit am Klo, wo ist Platz für Papier? + deine Haltegriffe. (Einfach mal mit Zollstock in dein jetziges Klo gehen)
Wo Handtuchhalter? Die Tür streift fast rechts amHandtuch entlang. Türblatt ab innenkante MW einzeichnen.
Nutz mal einen von den vielen frei zugänglichen Badplanern. Sind in 3D und einfach zu händeln.
Beachte bei der Auswahl des Fensters die Höhe der Waschmaschine.
Willst du Waschmaschine/Trockner als ein Gerät?
Auf dem Plan sieht wir das zu eng aus. keine Ellenbogenfreiheit am Klo, wo ist Platz für Papier? + deine Haltegriffe. (Einfach mal mit Zollstock in dein jetziges Klo gehen)
Wo Handtuchhalter? Die Tür streift fast rechts amHandtuch entlang. Türblatt ab innenkante MW einzeichnen.
Nutz mal einen von den vielen frei zugänglichen Badplanern. Sind in 3D und einfach zu händeln.
H
hampshire01.03.20 15:58Wie viele Ebenen hat Deine Wohnung?
Falls zwei: Verzichte auf das Badezimmer und gestalte auf der oberen Ebene Bad und Schlafen offen.
Falls zwei: Verzichte auf das Badezimmer und gestalte auf der oberen Ebene Bad und Schlafen offen.
K
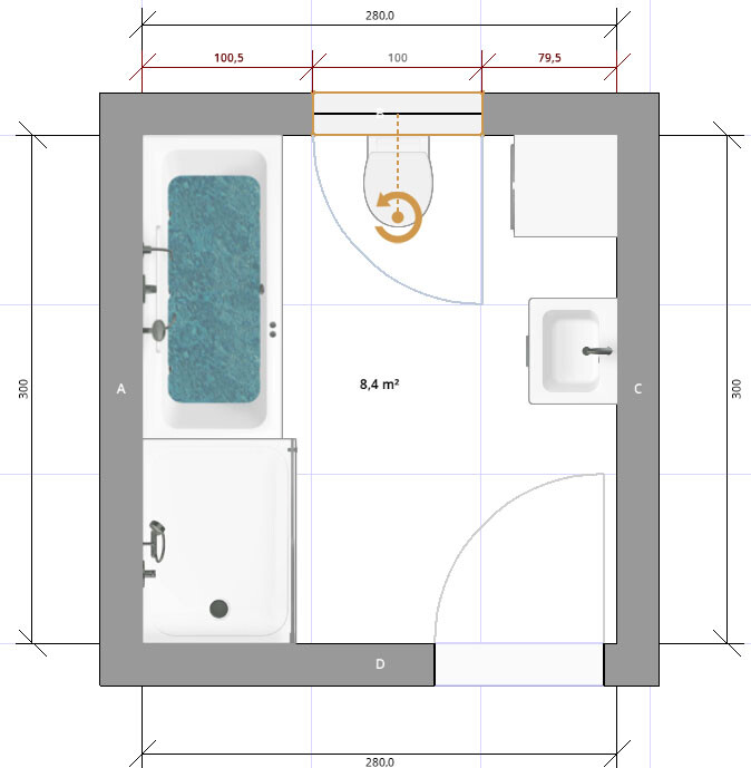
knalltüte01.03.20 16:01Tja, mir kam es auch eng vor. Dabei planen einige mit noch kleineren Bädern. Die gesamte Wohneinheit wird ja "nur" ca. 4,8m² klein.
Der Tipp mit dem Badplaner war gut. Ich kann nur Hausplaner und damit kam ich so gar nicht zurecht. Anbei die angepasste Planung etwas offener. Toilette nun vor Kopf. Was haltet ihr denn davon?


Der Tipp mit dem Badplaner war gut. Ich kann nur Hausplaner und damit kam ich so gar nicht zurecht. Anbei die angepasste Planung etwas offener. Toilette nun vor Kopf. Was haltet ihr denn davon?
K
knalltüte01.03.20 16:03Die Wohneinheit ist im EG und hat nur eine Ebene (Single Haushalt)
Am Liebsten hätte ich die Waschmaschine (Wenn dann wird das aus Platzgründen bestimmt ein Waschtrockner) gar nicht im Badezimmer (ausoptischen Gründen). Aber mein Hauswirtschaftsraum ist winzig mit ca. 140x110 und da kommt auch die Kontrollierte-Wohnraumlüftung Anlage unter die Decke und es muss Platz für Staubsauger und ein kleines Regal sein.
Am Liebsten hätte ich die Waschmaschine (Wenn dann wird das aus Platzgründen bestimmt ein Waschtrockner) gar nicht im Badezimmer (ausoptischen Gründen). Aber mein Hauswirtschaftsraum ist winzig mit ca. 140x110 und da kommt auch die Kontrollierte-Wohnraumlüftung Anlage unter die Decke und es muss Platz für Staubsauger und ein kleines Regal sein.
O
Osnabruecker01.03.20 16:04Ungünstig.
Waschmaschine öffnet zur Toilette, kein Korb davor möglich.
Toilette und Waschmaschine tauschen?
Waschmaschine öffnet zur Toilette, kein Korb davor möglich.
Toilette und Waschmaschine tauschen?
Ähnliche Themen