ᐅ Ovale Design-Badewanne aufgrund Schmutz dahinter leicht mobil machen?
Erstellt am: 16.10.23 11:49
B
Besenkammer84B
Besenkammer8405.04.24 13:41Hallo zusammen,
Meine Abstinenz im Forum habe ich genutzt um mich in Badausstellungen zu tummeln. Dabei konnte ich selbst mich mal auf die nötigen Mindestmaße der jeweiligen Wände fixieren:
Duschwand (um Arme frei nach oben bewegen zu können) = 90 cm
Durchgang in Dusche = 53 cm
Somit hätte man etwas an an cm gewonnen. Des weiteren hab ich eine Badewanne ausgespäht, welche an der Engstelle zum waschbecken eine Rundung hat:

Dies würde sicherlich auch dazu beitragen, dass es nicht so beengend wirkt.
Prinzipiell wäre das wenn man die Anordnung etwas austauscht auch möglich. Badewanne und Klo tauschen wäre eine Variante.
Handtuchwärmer haben wir momentan, ist nie in Betrieb und sammelt nur Staub.
Ich denke das wenn ich es richtig verstehe der Kompromiss für uns Ok wäre. Ein doppeltes Waschbecken habe ich bisher auf jeden Fall noch nicht vermisst. Wir sind auch eher sehr kleine Menschen..
Ist das mit den neuen genannten Maßen aus meiner Begehung der Badausstellungen nicht alles noch mehr realisierbar? nehmen wir mal an den Durchgang zur Dusche auf 60 cm zu verkleinern.
So in etwa ist es bei Freunden von uns auch.
Wahrscheinlich könnte man auch andere Sachen gut so DUAL nutzen! z.B. Für die Fingernägel lackieren müsste man nicht immer extra einen Bürostuhl ins Bad schieben...
Das wäre dann die Variant von @partyoleole :

Ich muss dazu beitragen, dass es uns sehr gut gefällt wenn wie in der Variante oder der T-Variante die West-Wandseite nicht so sehr frequentiert ist, da unmittelbar dahinter unser Bett angedacht ist und somit unsere Köpfe dort an der Wand liegen. Wir sind sehr geräuschempfindlich - Schrank und Badewanne wird wahrscheinlich seltener oder auch ruhiger nutzbar, im Gegensatz zu Dusche, Klo, Waschbecken...
hanghaus2023 schrieb:
Das T hatte ich auch untersucht. Aber 60 cm Durchgang ist mir viel zu wenig.
hanghaus2023 schrieb:
Hier mal noch die Ansicht.
Das schöne geräumige Bad wirkt auf einmal beengend.
hanghaus2023 schrieb:Danke für deine vielen neuen Skizzen. 60 cm Durchgang erscheint mir auch wenig..
Ich habe das noch mal auf die mMn zu schmale Dusche (85cm) angepasst. Dann ist der Durchgang auch 85 cm.
Meine Abstinenz im Forum habe ich genutzt um mich in Badausstellungen zu tummeln. Dabei konnte ich selbst mich mal auf die nötigen Mindestmaße der jeweiligen Wände fixieren:
Duschwand (um Arme frei nach oben bewegen zu können) = 90 cm
Durchgang in Dusche = 53 cm
Somit hätte man etwas an an cm gewonnen. Des weiteren hab ich eine Badewanne ausgespäht, welche an der Engstelle zum waschbecken eine Rundung hat:
Dies würde sicherlich auch dazu beitragen, dass es nicht so beengend wirkt.
Schorsch_baut schrieb:
Wie wäre es denn so? Dann hätte man reichlich Platz in der Mitte, Platz für einen Handtuchwärmer an der Duschwand. Oder man macht die aus Glas.
Prinzipiell wäre das wenn man die Anordnung etwas austauscht auch möglich. Badewanne und Klo tauschen wäre eine Variante.
Handtuchwärmer haben wir momentan, ist nie in Betrieb und sammelt nur Staub.
Schorsch_baut schrieb:Wenn es uneinsehbar ist und Licht ins Bad bringt, macht es für uns durchaus Sinn. Des Weiteren kann man ohne durch andere Räumlichkeiten passieren zu müssen direkt schmutzig von draußen ins Bad oder draußen steht in Zukunft eventuell eine Sauna, Whirlpool etc.
Wir reißen gerade eine Eckbadewanne raus.
Wobei ich mir keine 1,70 m Doppelflügeltür ins Bad einbauen würde. Besonders nicht, wenn es nicht groß wie ein Tanzsaal ist. Am Ende satiniert und verhängt man eh alles und vergibt nur wertvolle Wandfläche.
partyoleole schrieb:
Ich will mein doppelten Bodentiefen Fenster im Bad, allein schon wegen dem schnellen Luftaustausch nicht mehr missen.
Gibt es für den Threadersteller/Umbauer nicht auch die Möglichkeit dass so wie im Anhang zu lösen.
1. Duschbrause
2. Waschbecken (einfach)= Kompromiss!
3. Die Wand rückt 40 cm näher Richtung Türe.
Klo bleibt dort, die Wand links davon könnte man sich auch sparen.
Was macht man aus Glas?
Ich denke das wenn ich es richtig verstehe der Kompromiss für uns Ok wäre. Ein doppeltes Waschbecken habe ich bisher auf jeden Fall noch nicht vermisst. Wir sind auch eher sehr kleine Menschen..
Ist das mit den neuen genannten Maßen aus meiner Begehung der Badausstellungen nicht alles noch mehr realisierbar? nehmen wir mal an den Durchgang zur Dusche auf 60 cm zu verkleinern.
partyoleole schrieb:
War nur ein Vorschlag.
Das Klo kommt bei mir in der Wohnung 55 cm aus der Wand und der einfache Waschtisch 60 cm.
Wenn sich die Wand der Dusche Richtung Tür verschiebt sollte man noch genügend Platz für die Füße haben.
So in etwa ist es bei Freunden von uns auch.
kbt09 schrieb:Was wäre den der geschriebene Kompromis?
@partyoleole .. mal ganz ehrlich ... ein Badezimmer von gut 11 qm sollte sich doch wohl nicht mit solchen seltsamen Kompromissen, die ich schon für ein kleines Gäste-WC grenzwertig finde, zufriedengeben.
partyoleole schrieb:
Welche Kompromisse meinst du? Das 1er- Waschbecken?
Ähnliche Anbringung habe ich bei mir auch, ich kann zwar nur mit Mühe an den Wasserhahn kommen, aber in meiner täglichen Routine hilft mir die Nähe auch. Ich kann z.b. erschöpft/verschlafen während der Zahnpflege auf die Toilette sitzen und dabei noch die Zahnpasta ins Waschbecken bringen.
Hierfür habe ich soeben 1,80 Meter gemessen, das Klo ist im 45 Grad-Winkel angeordnet..
Wahrscheinlich könnte man auch andere Sachen gut so DUAL nutzen! z.B. Für die Fingernägel lackieren müsste man nicht immer extra einen Bürostuhl ins Bad schieben...
Das wäre dann die Variant von @partyoleole :
Ich muss dazu beitragen, dass es uns sehr gut gefällt wenn wie in der Variante oder der T-Variante die West-Wandseite nicht so sehr frequentiert ist, da unmittelbar dahinter unser Bett angedacht ist und somit unsere Köpfe dort an der Wand liegen. Wir sind sehr geräuschempfindlich - Schrank und Badewanne wird wahrscheinlich seltener oder auch ruhiger nutzbar, im Gegensatz zu Dusche, Klo, Waschbecken...
Weißt Du, was mich mal nach #49 interessieren würde? Wie das Bad jetzt aussieht und warum Du umbauen willst. Willst Du etwas verbessern? Oder gefällt Dir das veraltete Design nicht mehr?
Magst Du mal ein Foto einstellen?
Ich halte von Deiner Skizze - ehrlich gesagt - überhaupt nichts.
Da presst man eine Wand mit Sanitärobjekten voll, was mit Wohlgefühl im Raum recht wenig, aber mit Funktion noch weniger zu tun hat. Toi hat an sich gar kein Platz und wird schräg gestellt, damit man den Waschtisch so mehr oder weniger im Gesicht hat. Zwei Personen parallel im Bad haben miteinander „zu tun“.
60cm für den Duscheintritt kann passen, dann darf man aber auch in den nächsten Jahren nicht an Körpermasse zulegen. Zudem wichtig ist natürlich die Gesamtlänge.
Ich finde es immer sehr waghalsig, Objekte in einen Raum ohne Wasserzuführung, Wandvorsätzen und Ablagen zu planen. Ist das ein Kleiderschrank unten links?
Magst Du mal ein Foto einstellen?
Ich halte von Deiner Skizze - ehrlich gesagt - überhaupt nichts.
Da presst man eine Wand mit Sanitärobjekten voll, was mit Wohlgefühl im Raum recht wenig, aber mit Funktion noch weniger zu tun hat. Toi hat an sich gar kein Platz und wird schräg gestellt, damit man den Waschtisch so mehr oder weniger im Gesicht hat. Zwei Personen parallel im Bad haben miteinander „zu tun“.
60cm für den Duscheintritt kann passen, dann darf man aber auch in den nächsten Jahren nicht an Körpermasse zulegen. Zudem wichtig ist natürlich die Gesamtlänge.
Ich finde es immer sehr waghalsig, Objekte in einen Raum ohne Wasserzuführung, Wandvorsätzen und Ablagen zu planen. Ist das ein Kleiderschrank unten links?
S
Schorsch_baut05.04.24 15:01Ich finds nicht nur von der Optik fürchterlich geknubbelt, sondern auch unpraktisch. Das Waschbecken ist maximal weit weg von der Tür.
B
Besenkammer8406.04.24 13:25ypg schrieb:
Weißt Du, was mich mal nach #49 interessieren würde? Wie das Bad jetzt aussieht und warum Du umbauen willst. Willst Du etwas verbessern? Oder gefällt Dir das veraltete Design nicht mehr?
Magst Du mal ein Foto einstellen?Es handelt sich dabei um eine Haussanierung und eigentlich ist alles entkernt. Das Zimmer war früher ein Kinderzimmer, das damalige Bad existiert nicht mehr. Ich war heute Nacht noch beim Haus, die Bilder kommen nachfolgend. Bodentiefe Fenster sind noch nicht verbaut, es wurden mal Gegenstände so gelegt wie wenn es die Badeinrichtung wäre. Denke das ist selbsterklärend..
Variante 1 (Duschbreite 90 cm, Durchgang in Mitte 70 cm):
Variante 2 (Duschbreite 100 cm, Durchgang in Dusche 75 cm):
ypg schrieb:
Ich halte von Deiner Skizze - ehrlich gesagt - überhaupt nichts.
Da presst man eine Wand mit Sanitärobjekten voll, was mit Wohlgefühl im Raum recht wenig, aber mit Funktion noch weniger zu tun hat. Toi hat an sich gar kein Platz und wird schräg gestellt, damit man den Waschtisch so mehr oder weniger im Gesicht hat. Zwei Personen parallel im Bad haben miteinander „zu tun“.
60cm für den Duscheintritt kann passen, dann darf man aber auch in den nächsten Jahren nicht an Körpermasse zulegen. Zudem wichtig ist natürlich die Gesamtlänge.
Ich finde es immer sehr waghalsig, Objekte in einen Raum ohne Wasserzuführung, Wandvorsätzen und Ablagen zu planen. Ist das ein Kleiderschrank unten links?Beides hat m. M. Vor-und Nachteile, wie man auch aus den Bildern & Skizzen sehen kann.
Was meinst du genau mit " Zwei Personen parallel im Bad haben miteinander zu tun."? - Welche Situationen meinst du?
Das soll ein Badschrank sein.
Schorsch_baut schrieb:
Ich finds nicht nur von der Optik fürchterlich geknubbelt, sondern auch unpraktisch. Das Waschbecken ist maximal weit weg von der Tür.Ok, naja ob ich jetzt 2 Meter weiter zum Waschbecken gehe oder nicht, macht für mich wenig aus. Dafür kann ich von draußen schnell die Hände dort waschen und mir vielleicht das ausziehen der verschmutzten Schuhe ersparen..Ich bin kein Befürworter der "gequetschten" Variante, aber auch nicht Gegner.
Besenkammer84 schrieb:
Zwei Personen parallel im Bad haben miteinander zu tun."? - Welche Situationen meinst du?Genau diese: partyoleole schrieb:
Ich kann z.b. erschöpft/verschlafen während der Zahnpflege auf die Toilette sitzen und dabei noch die Zahnpasta ins Waschbecken bringen.ypg schrieb:
Toi hat an sich gar kein Platz und wird schräg gestellt, damit man den Waschtisch so mehr oder weniger im Gesicht hat. Zwei Personen parallel im Bad haben miteinander „zu tun“.Wenn einer sich am Waschtisch zurecht macht, muss der andere sich an ihn schmiegen, um an die Toi zu gelangen.Umgekehrt ist natürlich irgendwie Knie und Kopf störend im Weg (außer man ist Linkshänder)
ypg schrieb:
Zwei Personen parallel im Bad haben miteinander „zu tun“... ich weiß nicht, ob Du der einzige bist und den Vorschlag von dem Party-Ole (Name sagt irgendwie alles) ernst nimmst.
Dieser Vorschlag verbietet sich automatisch mit gesundem Menschenverstand.
Wenn du allerdings aus 11qm ein Wohnklo machen willst, dann tue es.
Ich muss tatsächlich feststellen (ich erinnere mich an die ursprüngliche Schnapsidee, warum dieser Thread von Dir erstellt wurde), dass mich manche Menschen wundern. Ein Haus, ein Bad, eine Sanierung oder sonstwas ist doch nun wirklich zu teuer, um sich Flausen zu bauen. In einem Gartenhaus, wo sich die Männer nachts treffen, kann man ja sowas umsetzen, doch nicht aber in einem Raum, wo Funktion geschmackvoll und ästhetisch umgesetzt werden soll, weil er tagtäglich Freude machen soll.
M
motorradsilke06.04.24 17:01Besenkammer84 schrieb:
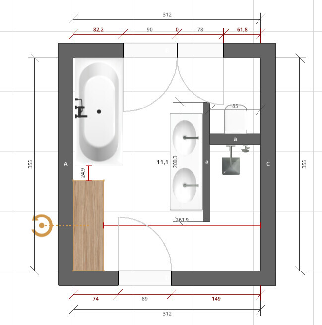
Es handelt sich dabei um eine Haussanierung und eigentlich ist alles entkernt. Das Zimmer war früher ein Kinderzimmer, das damalige Bad existiert nicht mehr. Ich war heute Nacht noch beim Haus, die Bilder kommen nachfolgend. Bodentiefe Fenster sind noch nicht verbaut, es wurden mal Gegenstände so gelegt wie wenn es die Badeinrichtung wäre. Denke das ist selbsterklärend..
Variante 1 (Duschbreite 90 cm, Durchgang in Mitte 70 cm):



Variante 2 (Duschbreite 100 cm, Durchgang in Dusche 75 cm):



Beides hat m. M. Vor-und Nachteile, wie man auch aus den Bildern & Skizzen sehen kann.
Was meinst du genau mit " Zwei Personen parallel im Bad haben miteinander zu tun."? - Welche Situationen meinst du?
Das soll ein Badschrank sein.
Ok, naja ob ich jetzt 2 Meter weiter zum Waschbecken gehe oder nicht, macht für mich wenig aus. Dafür kann ich von draußen schnell die Hände dort waschen und mir vielleicht das ausziehen der verschmutzten Schuhe ersparen..
Ich bin kein Befürworter der "gequetschten" Variante, aber auch nicht Gegner.Da bist du einem kleinen Irrtum erlegen. Ein doppelflügeliges Fenster kannst du von außen nicht öffnen. Also nichts mit mal schnell von draußen rein und Hände waschen.
Ich finde, das Waschbecken sollte nah an der Badtür sein, da musst du am meisten ran, von innen.
Das von außen schnell erreichbare Waschbecken ist toll, haben wir im Hauswirtschaftsraum und im Gäste-WC.
Ähnliche Themen