M
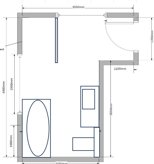
MachsSelbst07.01.26 12:28Es ist halt ein ungünstig geschnittenes Bad, in das sehr viel in großzügigen Abmessungen rein soll. Wo welche Abkofferungen rein müssen, das kommt ja auch drauf wie die Leitungsführung ins EG passieren soll. Und deine beiden Doppelfenster nehmen noch mehr Raum weg. Je nachdem wo das Haus steht, würde ich auch kein großes Fenster hinter der Badewanne haben wollen...
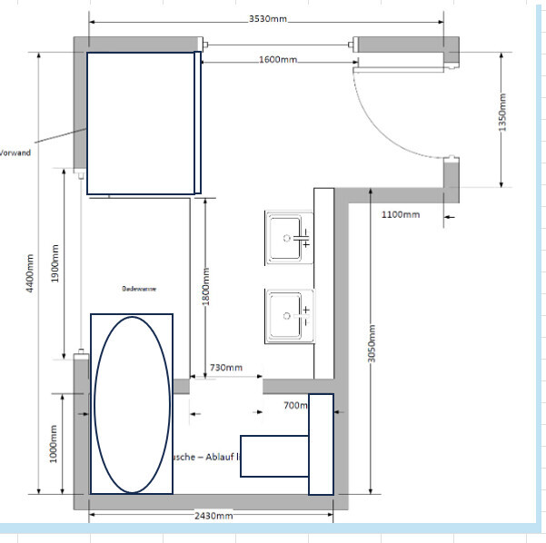
Wenn du einen Waschtisch streichst, kannst du die Wanne mit der langen Seite an die linke Wand setzen oder die Dusche mit der Wanne tauschen.
Natürlich reichen 75cm Durchgangsbreite, aber es wirkt dann eben alles sehr beengt.
Um die Fenster zu versetzen/verkleinern braucht man auch die Außenansicht bzw. das EG. Das kann sonst schnell bekloppt aussehen.
Deswegen... streich diesen einen Waschtisch, nimm den anderen etwas breiter und schon wird es viel einfacher.
Wenn du einen Waschtisch streichst, kannst du die Wanne mit der langen Seite an die linke Wand setzen oder die Dusche mit der Wanne tauschen.
Natürlich reichen 75cm Durchgangsbreite, aber es wirkt dann eben alles sehr beengt.
Um die Fenster zu versetzen/verkleinern braucht man auch die Außenansicht bzw. das EG. Das kann sonst schnell bekloppt aussehen.
Deswegen... streich diesen einen Waschtisch, nimm den anderen etwas breiter und schon wird es viel einfacher.
H
hanghaus202307.01.26 14:36H
hanghaus202307.01.26 14:53Hoi Hanghaus,
danke für deine Vorschläge!
Doppelwaschtisch sollte schon sein. Haben aktuell 1 und das nervt morgens schon sehr..
Ich hab mal etwas gegoogelt Standard doppel Waschtisch hat 140cm - 165cm x 45-50cm (+Vorbau).
Bei der Dusche wäre die Wand jetzt 160cm lang, was bei einem grossen Waschtisch einen durchgang von 65cm macht und bei einem kleinen etwa 75cm.
Das wäre eigentlich i.O.
Ich würde dennoch das Fenster Planlinks deutlich kleiner machen und eher richtung Wanne. --> Würde Wasser am Fenster reduzieren / ausschliessen.
Beim Klo ist 1m Breite für die Vorwand normal, oder?


danke für deine Vorschläge!
Doppelwaschtisch sollte schon sein. Haben aktuell 1 und das nervt morgens schon sehr..
Ich hab mal etwas gegoogelt Standard doppel Waschtisch hat 140cm - 165cm x 45-50cm (+Vorbau).
Bei der Dusche wäre die Wand jetzt 160cm lang, was bei einem grossen Waschtisch einen durchgang von 65cm macht und bei einem kleinen etwa 75cm.
Das wäre eigentlich i.O.
Ich würde dennoch das Fenster Planlinks deutlich kleiner machen und eher richtung Wanne. --> Würde Wasser am Fenster reduzieren / ausschliessen.
Beim Klo ist 1m Breite für die Vorwand normal, oder?
HB_2026 schrieb:
70–75 cm Durchgang an der Ecke.Das ist aber nicht komfortabel, wenn man sich ggf. an einer Ecke stößt oder hinter den Kindern hereiern muss statt nebenbei. Bei dem einen Entwurf bekommst Du die Wand vor dem Waschtisch hinten in den Rücken, wenn Du Dich bewegst oder stößt Dir den Ellenbogen. Versetz doch mal die Treppe um 30cm: so eng gestrickt kann ein EG und der Rest nicht sein, dass das nicht eine Option wäre.
HB_2026 schrieb:
Ich hab mal etwas gegoogelt Standard doppel Waschtisch hat 140cm - 165cm x 45-50cm (+Vorbau).
Bei der Dusche wäre die Wand jetzt 160cm lang,Das kann nicht Dein Ernst sein. Alle Funktionen ballen sich vor dem Klo… der Durchgang Dusche/Waschtisch ist zu eng. Waschtisch/Wanne. Es ist mit Fliese und Vorwand doch alles sehr viel weniger als was man denkt. Schön ist da auch nichts. Das zum Thema „ich hätte gern ein schickes Bad mit WalkIn-Dusche“Ähnliche Themen