ᐅ Optimaler Grundriss für Doppelhaushälfte 6,5 x 13 m gesucht
Erstellt am: 04.03.26 11:42
S
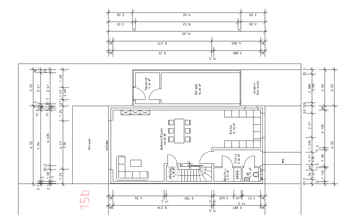
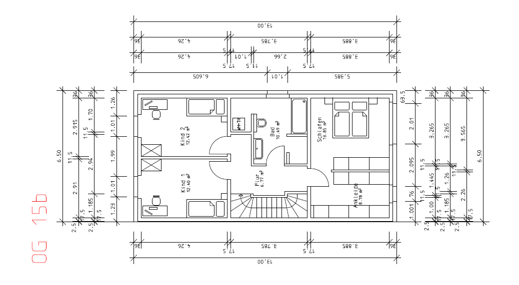
Simon198815.03.26 11:10Hier die neuen Entwürfe unserer Architektin.
Wir tendieren zu Entwurf 15b, haben jedoch Bedenken wegen des Komforts / Unfallgefahr der Treppe und sind uns unsicher, ob wir Waschmaschine & Trockner besser in einem kleinen Raum mit Minilüfter (OG 15c) oder im Bad (OG 15b) planen sollen.
Über weitere Tipps oder Anregungen würden wir und sehr freuen :-)
EG 15b

OG 15 b & c


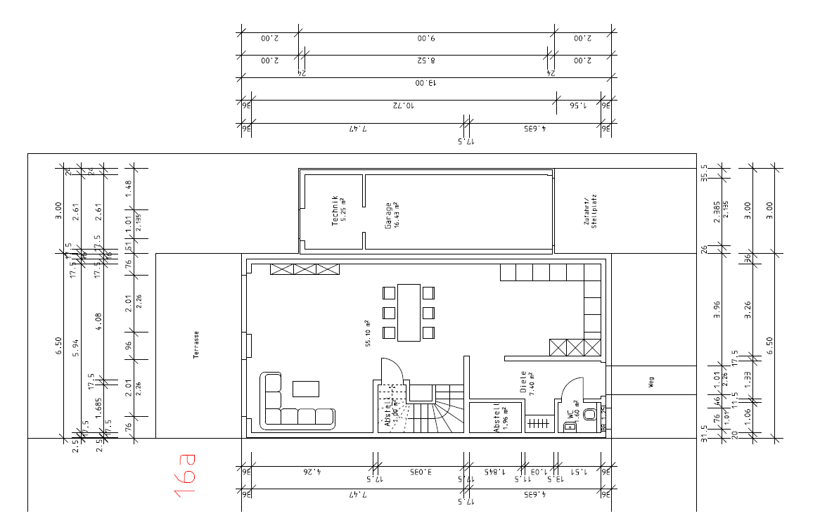
EG 16

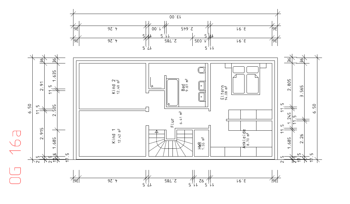
OG 16

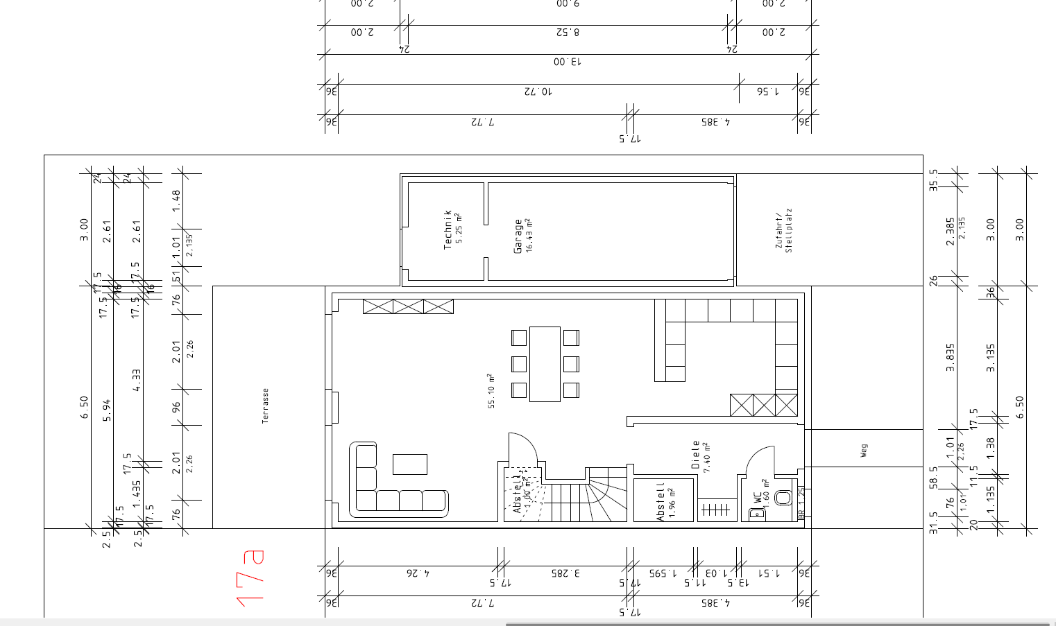
EG 17

OG 17

Wir tendieren zu Entwurf 15b, haben jedoch Bedenken wegen des Komforts / Unfallgefahr der Treppe und sind uns unsicher, ob wir Waschmaschine & Trockner besser in einem kleinen Raum mit Minilüfter (OG 15c) oder im Bad (OG 15b) planen sollen.
Über weitere Tipps oder Anregungen würden wir und sehr freuen :-)
EG 15b
OG 15 b & c
EG 16
OG 16
EG 17
OG 17
Simon1988 schrieb:
haben jedoch Bedenken wegen des Komforts / Unfallgefahr der TreppeKannst Du Deine Bedenken ausführen?
6,50 Distanz im WZ ist so, wie es möbliert eingezeichnet ist, zu groß.
Simon1988 schrieb:
Hier die neuen Entwürfe unserer Architektin.... die nichts dazulernt - oder gebt Ihr ihr von meinen Tipps nichts weiter ?
Ihr kommt mir außerordentlich lernresistent vor !
Fenster nur in Ausnahmefällen einzuzeichnen - geschenkt. Zur Treppe kann man nichts sagen, da sie immer noch nicht gelernt hat, das Steigungsmaß anzugeben :-(
Ich habe jetzt schon gefühlt hundertmal gesagt: es fehlt am Leitungsschacht ! (und daß der bei den "üblichen Verdächtigen" überall "nachzulesen" ist, wo man den am günstigsten anordnet. Wenn man es dem Zufall überläßt bzw. erst fünf vor Zwölf erledigt, dann wird das ganze Gedärm an Ver- und Entsorgung an die dämlichsten Stellen gelegt und gar zum Fürchten schrecklich trockenbauverkastelt. Das gibt dann eine Geisterbahn-Wohnlichkeit mit Leitungsabkofferungen im "Bauhausstil" !
Braucht Ihr wirklich den Beistand einer Forencommunity für die Erkenntnis, daß ein Wäschetrockner vom Flur aus schöner zugänglich ist als in Sibirien hinter dem Klo ?
Mir scheint, die Architektin wohnt noch im Hotel Mama, völlig bar jedes Vorstellungsvermögens für Hausarbeitswege und dergleichen, und überläßt auch das räumliche Planen allein dem CAD.
https://www.instagram.com/11antgmxde/
https://www.linkedin.com/company/bauen-jetzt/
S
Simon198815.03.26 14:54Bedenken haben wir wegen den zwei engen Wendungen. Stufentiefe 25 cm Betontreppe, mit Überstand reicht das aus. Höhe muss ich nochmals erfragen. Ich zähle 15 Treppen, bei 2,88 Höhe wären das 19,2 cm Höhe.
In der Breite haben wir knapp 5,94m (abzgl. der Wände), das ist für uns in Ordnung.
Auf die Fenster etc. konzentrieren wir uns im nächsten Step.
Wegen dem Wäschetrockner vom Flur aus machen wir uns nur Sorgen wegen der Wärme und Feuchtigkeit (wir bauen ohne Kontrollierte-Wohnraumlüftung) in so einem kleinem Raum - wäre das Bad da evtl. doch die bessere Lösung oder reicht ein Minilüfter in dem kleinen Raum?
In der Breite haben wir knapp 5,94m (abzgl. der Wände), das ist für uns in Ordnung.
Auf die Fenster etc. konzentrieren wir uns im nächsten Step.
Wegen dem Wäschetrockner vom Flur aus machen wir uns nur Sorgen wegen der Wärme und Feuchtigkeit (wir bauen ohne Kontrollierte-Wohnraumlüftung) in so einem kleinem Raum - wäre das Bad da evtl. doch die bessere Lösung oder reicht ein Minilüfter in dem kleinen Raum?
Simon1988 schrieb:
Bedenken haben wir wegen den zwei engen Wendungen. Stufentiefe 25 cm Betontreppe, mit Überstand reicht das aus. Höhe muss ich nochmals erfragen. Ich zähle 15 Treppen, bei 2,88 Höhe wären das 19,2 cm Höhe.Wegen zwei normaler Treppenwendelungen würde ich mir keine Gedanken machen - Ihr seid nicht die ersten mit Wendelungen in der Treppe. Allerdings würde ich nicht schlechter gehen als 19/26. 2mm machen den Kohl nicht fett, aber 25 können tatsächlich dann etwas knapp werden.
Simon1988 schrieb:
In der Breite haben wir knapp 5,94m (abzgl. der Wände), das ist für uns in Ordnung.Da hab ich nicht richtig hingeschaut. Für mich wäre alles über 5 Meter grenzwertig.
Mir persönlich wäre der Flur mit 1,35 zu schmal (hatte ich und funktionierte nicht für mich). Dafür ist die Küche etwas zu breit, um ergonomisch zu sein. Ich würde das alles etwas funktioneller planen lassen.
Hast Du keinen Zollstock, und daheim und auf der Arbeit keine Treppen ? - hohe Stufen sparen immerhin die Muckibude, gehen je nach Gewicht und Muskulatur ibs. talwärts aber auch ordentlich auf die Kniegelenke. Im OG steht ja keine Garage mehr daneben, da kann der Raum großzügige Lüftungsöffnungen nach außen haben. Insbesondere ein Haus dieser Größe - das ein typisches Zwischenhaus (= selten über 15 Jahre Haltedauer bis zum Eigentümerwechsel) ist - würde ich heute nicht mehr ohne Kontrollierte-Wohnraumlüftung bauen, ich fahre momentan übergangsweise wieder einen PKW mit Kurbelfenstern. Der war günstig, das haut heutzutage schon ordentlich in die Marktgängigkeit.
https://www.instagram.com/11antgmxde/
https://www.linkedin.com/company/bauen-jetzt/
https://www.instagram.com/11antgmxde/
https://www.linkedin.com/company/bauen-jetzt/
Ähnliche Themen