Nur ein Teil der Baugenehmigung erfüllbar? Wie lange gilt Baug.?

4,00 Stern(e) 8 Votes
Zuletzt aktualisiert 10.10.2025
Sie befinden sich auf der Seite 4 der Diskussion zum Thema: Nur ein Teil der Baugenehmigung erfüllbar? Wie lange gilt Baug.?
>> Zum 1. Beitrag <<

11ant

11ant

Vielleicht ist die Sorge unbegründet, dass der zweite Abschnitt nicht genehmigt wird. Wenn man es so macht (also erste Genehmigung, dann eine zweite), müsste man den bestehenden Keller der Einliegerwohnung irgendwie wieder öffnen bzw wird Außenwand zur Innenwand und Durchbruch für Tür.
Mir scheint, Du zimmerst da ein Kartenhaus aus fragwürdigen Grundannahmen.
rechts die Einliegerwohnung zweigschossig, links daneben ein kleiner Eingangsbereich mit Haustür und Wohnungstüren und daran dann später direkt das große Haus (entweder direkt AN den Haustürovorbau oder DRÜBER).
Klingt ziemlich konkret durchkonzipiert - was aber bitte nicht mit "sinnvoll" verwechselt werden möge. Bei einer unterkellerten zweigeschossigen Einliegerwohnung habe ich knallroten Fragezeichenalarm und argwöhne, daß die Denkfehler eventuell keine Einzelkinder wären.
 
S

Solala77

Mir scheint, Du zimmerst da ein Kartenhaus aus fragwürdigen Grundannahmen.

Klingt ziemlich konkret durchkonzipiert - was aber bitte nicht mit "sinnvoll" verwechselt werden möge. Bei einer unterkellerten zweigeschossigen Einliegerwohnung habe ich knallroten Fragezeichenalarm und argwöhne, daß die Denkfehler eventuell keine Einzelkinder wären.
Sehr skeptisch! Aber besser so als schönreden.

Könntest Du erläutern, wieso es so problematisch mit der Unterkellerung der 2-geschossigen Einliegerwohnung ist? Vielleicht habe ich es falsch dargestellt: Keller ca. 140qm komplett. Die Einliegerwohnung steht mit rund 40qm auf diesem Keller. Nutzung des Kellers ist nicht zwingend für Mieter (bzw. Eltern) gedacht, sondern gehört als ein Keller zum "Restbau", der irgendwann folgen soll.
 
11ant

11ant

Könntest Du erläutern, wieso es so problematisch mit der Unterkellerung der 2-geschossigen Einliegerwohnung ist?
Eine zweigeschossige Einliegerwohnung (oder überhaupt zweigeschossige Wohneinheiten auf 80 qm) ist auch ungeachtet ihres evtl. Kelleranteils mindestens ich sachma "atypisch". Vielleicht reden wir auch teilweise aneinander vorbei. Du kannst ja mal ganz grob proportionstreu aufmalen, wie man sich den Baukörper und seine Aufteilung in Einliegerwohnung und späteres Haupthaus vorstellen kann. Bislang klingen Deine Worte so, daß sie eine bereits erarbeitete Zeichnung vermuten lassen, die hier lediglich noch nicht eingeführt wurde.
 
S

Solala77

Eine zweigeschossige Einliegerwohnung (oder überhaupt zweigeschossige Wohneinheiten auf 80 qm) ist auch ungeachtet ihres evtl. Kelleranteils mindestens ich sachma "atypisch". Vielleicht reden wir auch teilweise aneinander vorbei. Du kannst ja mal ganz grob proportionstreu aufmalen, wie man sich den Baukörper und seine Aufteilung in Einliegerwohnung und späteres Haupthaus vorstellen kann. Bislang klingen Deine Worte so, daß sie eine bereits erarbeitete Zeichnung vermuten lassen, die hier lediglich noch nicht eingeführt wurde.
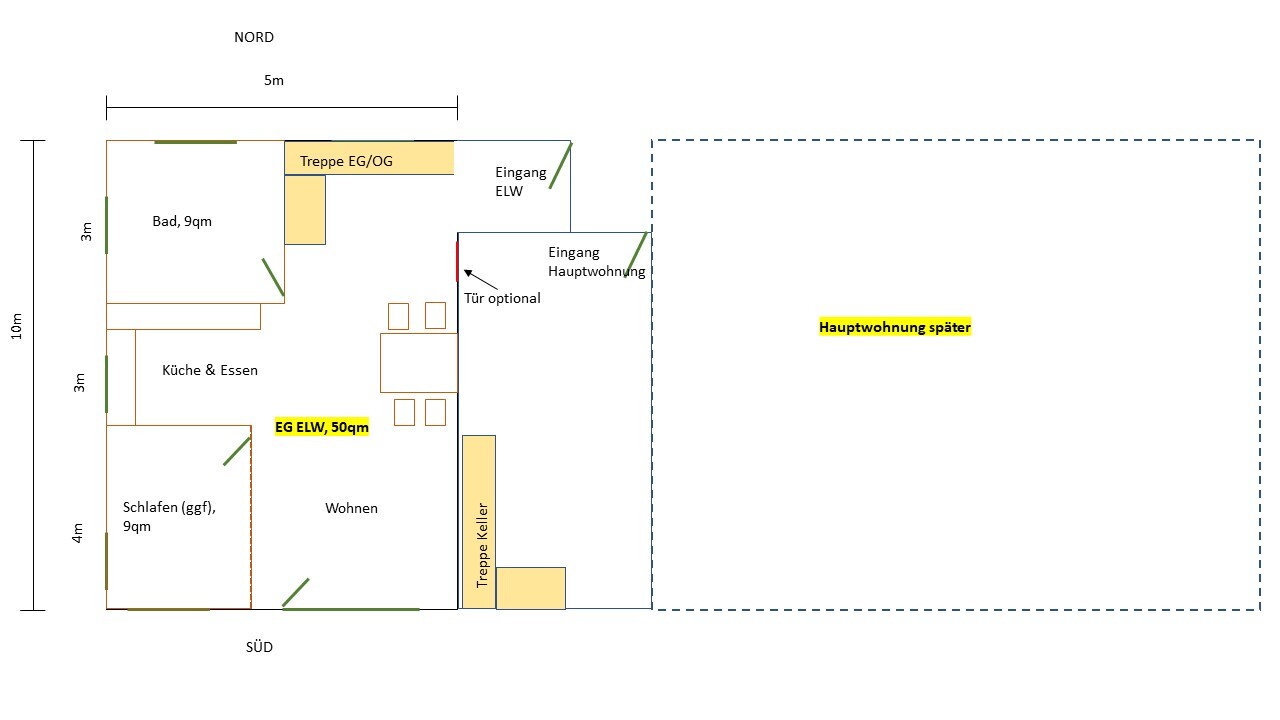
Es gab keine Zeichnung - nur Ideen im Kopf. Ich habe mal schnell was erstellt, aber nicht maßstabsgetreu.

Grundriss eines Hauses: EG/ELW 50qm; Küche, Bad, Schlafen, Wohnen; rechts geplante Hauptwohnung.


Zweigeschossiger Grundriss: zwei Kind/Büro Räume, WC 4qm, Treppe, Balkon, OG ELW 30qm, Tür (Nord/Süd).


Südansicht Grundriss: EG/OG-ELW links, Eingangsbereich, Kellerzugang, Hauptwohnung rechts später
 
M4rvin

M4rvin

Sieht nach zwei unabhängigen Wohneinheiten aus. Bau doch einfach deine „Einliegerwohnung“ ohne Keller und irgendwann das unterkellerte Haupthaus.

Kannst du die Einliegerwohnung ohne Finanzierung bezahlen?
 
Zuletzt aktualisiert 10.10.2025
Im Forum Bauland / Baurecht / Baugenehmigung / Verträge gibt es 3157 Themen mit insgesamt 42849 Beiträgen


Ähnliche Themen zu Nur ein Teil der Baugenehmigung erfüllbar? Wie lange gilt Baug.?
Nr.ErgebnisBeiträge
1Detailplanung Grundriss Einfamilienhaus mit Keller und Einliegerwohnung 28
2Grundriss für Einfamilienhaus mit 200m² mit Einliegerwohnung 75 +Keller 140m² +Garage 56m² 59
3Grundriss, Hausanordnung EFW 150m2, Keller + Einliegerwohnung - Feedback erwünscht 67
4Sinnvolles Wohnkonzept für Keller-Einliegerwohnung 17
5Neubau Stadtvilla mit Einliegerwohnung und Doppelgarage 72
6Großes Büro oder gleich eine Einliegerwohnung? 24
7Doppelte KFW 297 Förderung durch zwei Wohneinheiten? 16
8Kostenschätzung Einfamilienhaus mit Einliegerwohnung in Hessen 30
9Erster Grundriss L-Form-Haus (190m²) mit Einlieger (80m²), Keller 15
10Hausbau/Einliegerwohnung, Realisierung ohne Haushaltsrechnung 14
11Kosten für ein Einfamilienhaus Neubau, 2 Vollgeschosse, ohne Keller 18
12Einfamilienhaus mit Einliegerwohnung wie viel habt ihr bezahlt? 23
13Baukosten 200m² + 30m² Dachterrasse + Keller (inkl. Garage) 20
14Komplettes Doppelhaus mit Einliegerwohnung. Sockel und Traufhöhe? - Seite 220
15Einliegerwohnung für Eltern: 210 m² Einfamilienhaus und 80 m² Einliegerwohnung 129
16Grundriss Einfamilienhaus mit Einliegerwohnung - Seite 1177
17KfW-Kredit + Tilgungszuschuss für Einliegerwohnung 39
18Werkplanung Einfamilienhaus 180qm Flachdach mit Keller & Doppelgarage 142
19Preisdifferenz Bodenplatte zu Keller. Kann man das abschätzen? - Seite 432
20Einfamilienhaus mit Einliegerwohnung - Mit welcher Firma bauen? - Seite 218

Oben