Hallo Gemeinde, hier mein zweites Thema. Ich habe schon mal einen Grundriss geplant dieser ist praktisch, es Bedarf noch einen Feinschliff in Bezug auf Schönheit.
nun meine Fragen an euch.
wo kann man Verbesserungen vornehmen?
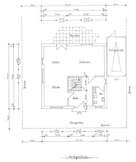
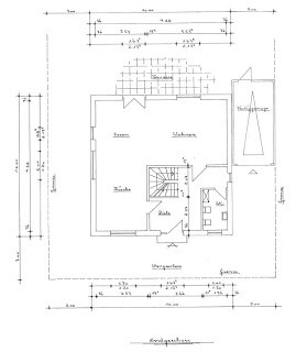
Im Anhang 2 Versionen des Obergeschosses (Badezimmer vertauscht) Bin mir nicht ganz sicher wohin mit dem Bad. Eventuell habt ihr noch Ideen und Verbesserungsvorschläge.
Danke
Holger



nun meine Fragen an euch.
wo kann man Verbesserungen vornehmen?
Im Anhang 2 Versionen des Obergeschosses (Badezimmer vertauscht) Bin mir nicht ganz sicher wohin mit dem Bad. Eventuell habt ihr noch Ideen und Verbesserungsvorschläge.
Danke
Holger
M
Musketier07.01.13 08:08Ist das Wunschhaus oder hast du dich schonmal mit den Preisen beschäftigt?
Das sind weit über 200m² Wohnfläche.
Als Laie tippe ich mal ganz locker auf Gesamtkosten von ner halben Mio.
Das will bezahlt werden.
In einen großen Grundriss alles reinzubekommen fällt einen Laien mit Abstand leichter, als in einen kleinen alles sinnvoll reinzubekommen.
Dafür sind in einem großen Grundriss sicher mehr statische Kenntnisse notwendig.
Gerade im Bereich der Statik vermute ich in deinem Grundriss mehrere Probleme.
Wenn du wirklich das Geld hast, dann lass es den Architekten entwerfen.
Wenn nicht, dann klär erstmal ab, wieviel m² du dir Leisten kannst bzw. willst.
Das sind weit über 200m² Wohnfläche.
Als Laie tippe ich mal ganz locker auf Gesamtkosten von ner halben Mio.
Das will bezahlt werden.
In einen großen Grundriss alles reinzubekommen fällt einen Laien mit Abstand leichter, als in einen kleinen alles sinnvoll reinzubekommen.
Dafür sind in einem großen Grundriss sicher mehr statische Kenntnisse notwendig.
Gerade im Bereich der Statik vermute ich in deinem Grundriss mehrere Probleme.
Wenn du wirklich das Geld hast, dann lass es den Architekten entwerfen.
Wenn nicht, dann klär erstmal ab, wieviel m² du dir Leisten kannst bzw. willst.
Hallo und vielen Dank.
Klar kommt der Grundriss nochmal zu einem Architekten. Es geht nur darum schon mal etwas auf Papier zu haben.
Ich weiß nicht wie du auf der halben Million kommst. Auch wenn ich pro m² 1600€ setze komme ich auf 320k.
Das Haus wird Massiv gebaut mit einiges an Eigenleistung + Grundstück schon vorhanden.
Frage, warum denkst du das es Probleme mit der Statik gibt? Außenwand 36,5 cm Ziegel, Tragende Innenwände 24,5 cm
MfG
Holger
Klar kommt der Grundriss nochmal zu einem Architekten. Es geht nur darum schon mal etwas auf Papier zu haben.
Ich weiß nicht wie du auf der halben Million kommst. Auch wenn ich pro m² 1600€ setze komme ich auf 320k.
Das Haus wird Massiv gebaut mit einiges an Eigenleistung + Grundstück schon vorhanden.
Frage, warum denkst du das es Probleme mit der Statik gibt? Außenwand 36,5 cm Ziegel, Tragende Innenwände 24,5 cm
MfG
Holger
Ich sag mal so, ein vom Laien gemalter Grundriss erschwert dem Architekten die Arbeit ungemein.
Macht ne Liste mit Dingen die euch wichtig sind, und lasst den Architekten zeichnen... das ist sein Job. Und wenn er ein Guter ist, wird der Grundriss am Ende um Längen besser sein.
So ein Grundriss muss zusammen erarbeitet werden. Da vorher verbaut Euch nur den Blick für gute Ideen.
1600 €/qm ist n sportliches Ziel 😀 Aber machbar, wenn man viele Abstriche macht. Und natürlich je nach region.
Macht ne Liste mit Dingen die euch wichtig sind, und lasst den Architekten zeichnen... das ist sein Job. Und wenn er ein Guter ist, wird der Grundriss am Ende um Längen besser sein.
So ein Grundriss muss zusammen erarbeitet werden. Da vorher verbaut Euch nur den Blick für gute Ideen.
1600 €/qm ist n sportliches Ziel 😀 Aber machbar, wenn man viele Abstriche macht. Und natürlich je nach region.
M
Musketier07.01.13 10:15Ich sprach von Gesamtkosten.
Zum einen ging ich davon aus, dass wenn man so groß baut auch etwas höhere Ausstattung reinkommt. d.h ich würde nicht nur mit 1600€ kalkulieren. (Sauna, Kamin). Zum anderen kommen zu deiner Summe noch Baunebenkosten, Garage, Außenanlagen etc.
Ist überhaupt gesichert, dass du die Geschossflächenzahl einhältst und auch ein 2 Geschosser auf deinem Grundstück erlaubt ist?
Zum Thema Statik:
Wie gesagt, bin ich Laie und kann nur vermuten.
Ich hab mal gehört dass die Deckenteile um die 7 m überspannen können. Hat man mehr braucht man tragende Wände.
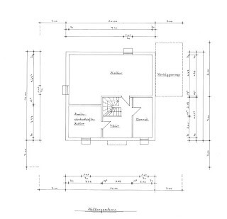
Dein Wohnzimmer ist sehr groß, deshalb vermute ich, dass die Decken links und rechts aufgelegt werden und in der Mitte eine tragende Wand braucht. Diese tragende Wand zwischen Wohnzimmer/Büro, Wohnzimmer/Flur und Küche/Hauswirtschaftsraum ist aber nicht durchgängig.
Außerdem macht es Sinn den unteren Erker gleich so einzubinden, dass da keine Ecke zur Wand Büro/Wohnzimmer entsteht.
Besser ist das in dem einen Grundriss im OG gelöst mit der durchgängigen Wand Kinderzimmer 1 und Schlafzimmer. Die wäre dann aber nicht über der tragenden Wand im UG.
Ich weiß nicht für was ihr soviel Platz braucht, aber bei der Möblierung finde ich Schlafzimmer und Wohnzimmer etwas überdimensioniert.
Unter Umständen kann das dann sogar verloren wirken.
Habt ihr eine Haushaltshilfe? 210m² wollen auch saubergehalten werden.
Wenn ichs mir leisten könnte, würde ich sicher auch ein paar m²größer bauen, aber 210m² wäre mir sicher zu groß.
Falls es doch bei der Größe bleibt vielleicht noch 2 Überlegungen:
- Wir wäre es mit Alterstauglichkeit. Den Grundriss so gestalten, dass dann oben eine separate Wohnung entstehen kann.
- sofern wirklich 2 Kinder da oder geplant sind, fehlt mir in Eurem Grundriss ein Gästezimmer
Zum einen ging ich davon aus, dass wenn man so groß baut auch etwas höhere Ausstattung reinkommt. d.h ich würde nicht nur mit 1600€ kalkulieren. (Sauna, Kamin). Zum anderen kommen zu deiner Summe noch Baunebenkosten, Garage, Außenanlagen etc.
Ist überhaupt gesichert, dass du die Geschossflächenzahl einhältst und auch ein 2 Geschosser auf deinem Grundstück erlaubt ist?
Zum Thema Statik:
Wie gesagt, bin ich Laie und kann nur vermuten.
Ich hab mal gehört dass die Deckenteile um die 7 m überspannen können. Hat man mehr braucht man tragende Wände.
Dein Wohnzimmer ist sehr groß, deshalb vermute ich, dass die Decken links und rechts aufgelegt werden und in der Mitte eine tragende Wand braucht. Diese tragende Wand zwischen Wohnzimmer/Büro, Wohnzimmer/Flur und Küche/Hauswirtschaftsraum ist aber nicht durchgängig.
Außerdem macht es Sinn den unteren Erker gleich so einzubinden, dass da keine Ecke zur Wand Büro/Wohnzimmer entsteht.
Besser ist das in dem einen Grundriss im OG gelöst mit der durchgängigen Wand Kinderzimmer 1 und Schlafzimmer. Die wäre dann aber nicht über der tragenden Wand im UG.
Ich weiß nicht für was ihr soviel Platz braucht, aber bei der Möblierung finde ich Schlafzimmer und Wohnzimmer etwas überdimensioniert.
Unter Umständen kann das dann sogar verloren wirken.
Habt ihr eine Haushaltshilfe? 210m² wollen auch saubergehalten werden.
Wenn ichs mir leisten könnte, würde ich sicher auch ein paar m²größer bauen, aber 210m² wäre mir sicher zu groß.
Falls es doch bei der Größe bleibt vielleicht noch 2 Überlegungen:
- Wir wäre es mit Alterstauglichkeit. Den Grundriss so gestalten, dass dann oben eine separate Wohnung entstehen kann.
- sofern wirklich 2 Kinder da oder geplant sind, fehlt mir in Eurem Grundriss ein Gästezimmer
Musketier schrieb:
Zum Thema Statik:
Wie gesagt, bin ich Laie und kann nur vermuten.
Ich hab mal gehört dass die Deckenteile um die 7 m überspannen können. Hat man mehr braucht man tragende Wände.
Dein Wohnzimmer ist sehr groß, deshalb vermute ich, dass die Decken links und rechts aufgelegt werden und in der Mitte eine tragende Wand braucht. Diese tragende Wand zwischen Wohnzimmer/Büro, Wohnzimmer/Flur und Küche/Hauswirtschaftsraum ist aber nicht durchgängig. "Ich habe mal gehört" bringt dem TE nichts. Entweder man weiß was und kennt sich mit dem spezifischen Thema aus oder man sagt dazu nichts. 🙄
Ich habe in meinem Haus 9,24m mit Deckenteilen überspannt. OHNE Stützmauer, Säule oder sonst was.
Ähnliche Themen