Meinungen Expertisen Bewertung Hausplan

4,80 Stern(e) 4 Votes
Zuletzt aktualisiert 23.11.2025
Sie befinden sich auf der Seite 3 der Diskussion zum Thema: Meinungen Expertisen Bewertung Hausplan
>> Zum 1. Beitrag <<

WilhelmRo

WilhelmRo

Budget ist weniger das Problem, da wir das Haus ohne Firma komlett selbst bauen..
haben auch schon 2 Häuser alleine ohne Firma gebaut..
hier soll es eher um Die Bewertung der Proportionen und des Designs gehen.
Und warum sollte das ein Sims haus sein??
Widerspricht sich das nur in meinem Kopf?
Ihr habt selber schon Häuser gebaut, aber du verstehst überhaupt nicht, warum hier keiner was mit deiner nutzlosen 3d Ansicht etwas anfangen kann?
Habt ihr die letzten zwei Häuser auch anhand von 3d Ansichten hochgezogen? xD
Für jemanden der schon zwei Häuser gebaut hat, kommst du mir etwas unprofessionell vor sorry : )
mfg
 
K

KommaPlus

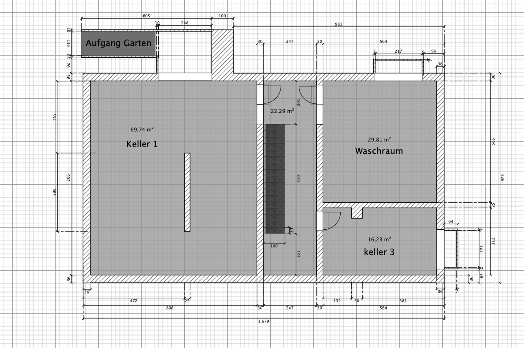
Hallo zusammen die ersten 3 Bilder zeigen den Grundriss

Bild 1 Keller
Bild 2 EG
Bild 3 OG

tut mir leid wenn nicht alle Bemaßungen Normgerecht sind, aber hoffe trotzdem dass man sich hier einen guten Überblick erhalten kann..

Bild 4 bis 10 sind von verschiedenen Winkel von außen.

hoffe kann bisschen Klarheit bringen..

Detaillierter Kellergrundriss mit Keller 1 und Keller 3, Waschraum und Treppen im Untergeschoss


Detaillierter Grundriss eines Hauses mit Garage, Küche, Wohn-Essbereich und Terrasse


2D-Grundriss eines Hauses mit Eltern- und Kinderzimmern, Balkonen und Dach


Moderne 3D-Hausansicht mit Garage, Eingangstuer und grossen Fenstern


Moderne zweistöckige Hausvorderansicht in Grau mit Glasfront und Terrasse.


Moderne zweigeschossige Hausarchitektur mit Terrasse und großen Fenstern.


Modernes 3D-Hausmodell mit offener Fassade, Terrassen und Grünfläche


3D-Modell eines modernen Einfamilienhauses mit Terrasse auf grünem Grundstück und blauem Himmel


3D-Hausmodell eines modernen Hauses auf grünem Grundstück vor blauem Himmel


Moderne zweigeschossige Hausarchitektur als 3D-Modell mit Garage vor grünem Grundstück.
 
K

KommaPlus

Widerspricht sich das nur in meinem Kopf?
Ihr habt selber schon Häuser gebaut, aber du verstehst überhaupt nicht, warum hier keiner was mit deiner nutzlosen 3d Ansicht etwas anfangen kann?
Habt ihr die letzten zwei Häuser auch anhand von 3d Ansichten hochgezogen? xD
Für jemanden der schon zwei Häuser gebaut hat, kommst du mir etwas unprofessionell vor sorry : )
mfg
Haben noch mit Zeichenbrett und Bleistift gearbeitet..
ist der Erste Plan am PC
 
WilhelmRo

WilhelmRo

Puh, für meinen Geschmack Katastrophe....

- ins Schlafzimmer nur durchs Bad
- Kinderzimmer 2 das Bett? ... ne
- Elternbad: das tote Eck hinter der "T-Lösung", was ist das?
- Ins Büro nur durchs Wohnzimmer
- Die Speiße nur über die Garage erreichbar? Oder sind das offene Türen?
- der Gang von Küche zu Essbereich wäre mir auch schon zu schade
- warum ein 3tes Bad im EG? Ich hoffe in dem Budget ist eine Putzfrau mit inklusive.
- was sind diese Hohlräume bei der Treppe? Die 42 cm
- schräge Türen (Kinderzimmer/bad) empfinde ich immer als Notlösung, hat doch nur Nachteile, abgesehen davon, dass es meines Erachtens besch. aussieht.
 
K

KommaPlus

Puh, für meinen Geschmack Katastrophe....

- ins Schlafzimmer nur durchs Bad
- Kinderzimmer 2 das Bett? ... ne
- Elternbad: das tote Eck hinter der "T-Lösung", was ist das?
- Ins Büro nur durchs Wohnzimmer
- Die Speiße nur über die Garage erreichbar? Oder sind das offene Türen?
- der Gang von Küche zu Essbereich wäre mir auch schon zu schade
- warum ein 3tes Bad im EG? Ich hoffe in dem Budget ist eine Putzfrau mit inklusive.
- was sind diese Hohlräume bei der Treppe? Die 42 cm
- schräge Türen (Kinderzimmer/bad) empfinde ich immer als Notlösung, hat doch nur Nachteile, abgesehen davon, dass es meines Erachtens besch. aussieht.
Danke für die Konstruktive Kritik, so habe ich mir das vorgestellt

-Habe schon überlegt direkt nach der treffe links noch eine weitere Türe zu planen finde jedoch eine Türe auch nicht schlimm
-An der linke des T‘s habe ich mir einen Handtuchheizkörper vorgestellt..
und Stauraum
-das Büro sollte eventuell später mal das Elternschlafzimmer werden, deswegen der zugang zum Bad
-die Speis ist sowohl durch die Garage als auch durch die Küche über eine Schiebetüre erreichbar
-Der „Gang“ zum Ess/Wohnzimmer habe ich mir so gedacht dass man quasi vor der Haustüre komplett durchs Haus bis zum Garten schauen kann und kein Esstisch im Weg ist.. Das Haus sollte Luftig ausschauen (man kann an mehreren Stellen einmal durchs Haus schauen)
-Das 3. Bad im EG soll auch als Gäste-WC bzw. später als ElternBad genutzt werden
-der 42cm Breite Luftraum soll zusätzlich die Treppe auflockern, denn die Treppe sollte wie im Bild unten auschauen.
-bei den Schrägen im OG habe ich viel ausprobiert dies schien mir noch eine akzeptable Lösung.. wenn jemand verbesserungen hat immer her!!

Moderne Holztreppe mit Glasgeländer in Loftwohnraum, Betonwand und Beleuchtung.
 
Zuletzt aktualisiert 23.11.2025
Im Forum Bauplanung gibt es 5073 Themen mit insgesamt 100820 Beiträgen


Ähnliche Themen zu Meinungen Expertisen Bewertung Hausplan
Nr.ErgebnisBeiträge
1Haus ohne Garage und Keller? Ausbau Dachboden? Fresswarze? - Seite 585
2Grundriss, längliches Einfamilienhaus, integrierte Garage kein Keller 16
3Grundriss Einfamilienhaus, 200m2, 2 Vollgeschosse, Garage, ohne Keller 39
4Treppe im Wohnzimmer als Hype - Pro & Contra? - Seite 426
5 2 Vollgeschosse, Durchgang Garage, Hauswirtschaftsraum unter Treppe 25
6Einfamilienhaus mit Einliegerwohnung & Garage 14
7Schallschutz Kinderzimmer 12
8Grundriss 3 Kinderzimmer Einfamilienhaus - Potenziale? 43
9Wohnzimmer Grundrissplanungs-Ideen? - Seite 239
10Grundrissplanung Einfamilienhaus (Stadtvilla) ca.140m² (3 Kinderzimmer) 42
11Grundriss Einfamilienhaus ohne Keller, 3 Kinderzimmer und Büro 18
12Grundriss Einfamilienhaus 240 m² mit teilüberbauter Garage 96
13Grundrissplanung und Überdachung Garage 11
14Grundriss Bungalow 150qm geschlossene Küche, überdachte Terrasse 40
15Grundriss Einfamilienhaus, ca. 200qm ohne Keller - Einschätzung - Seite 28172
16Kombination Fliesen und Parkett im Wohnzimmer mit offener Küche - Seite 330
17Grundrissplanung Wohnzimmer-Küche 18
18Wohnen/Essen/Küche: Wie wohnt ihr oder werdet ihr wohnen? 52
19Wohin mit der Treppe? Dachausbau Walmdachbungalow - Seite 219
20Fenster / Türen / Garderobe 13

Oben