W
wolfgangp12.09.14 15:18Hallo,
da ich gern mein Haus selbst planen möchte, stelle ich nun auch meinen Entwurf hier rein.
Natürlich werde ich als nächstes zu einem Baumeister / Statiker gehen, jedoch möchte ich zuerst gerne meine eigenen Vorstellungen zu Papier bringen.
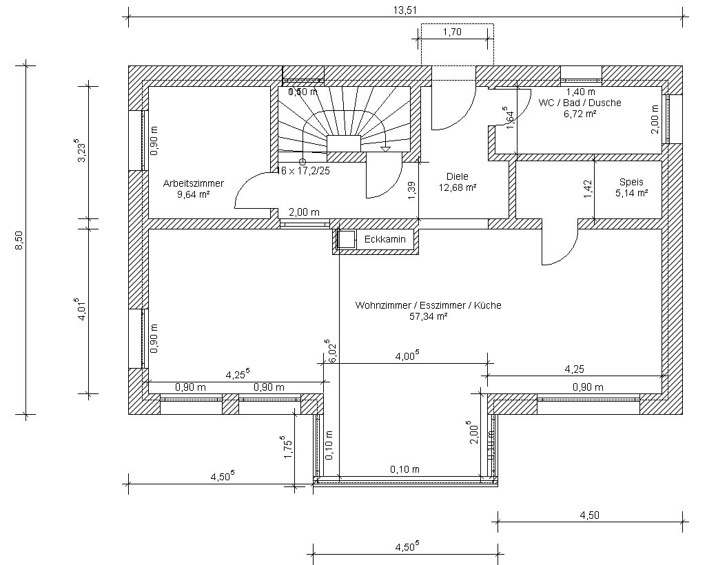
Ein paar Echkdaten zum Plan:
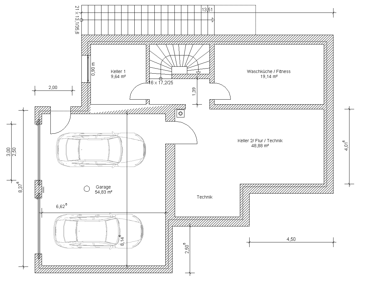
- Grundstücksgröße: ca. 1350m² (links Westen, unten Süden)
- Hanglage (Nullpunkt ist im Westen) ca. 6m Steigung
- Geplant ist ein Massivhaus mit 50er Ziegel
- Garage ist vom Haus wärmetechnisch abgetrennt
- Heizung: Erdwärme mit Tiefenbohrung evtl. mit zusätzlicher Solarheizung
- Die Straße auf der Westseite ist nur eine 3m breite Sackgasse und führt nur zu einem anderen Haus
- Lichtschächte sind noch keine im Plan
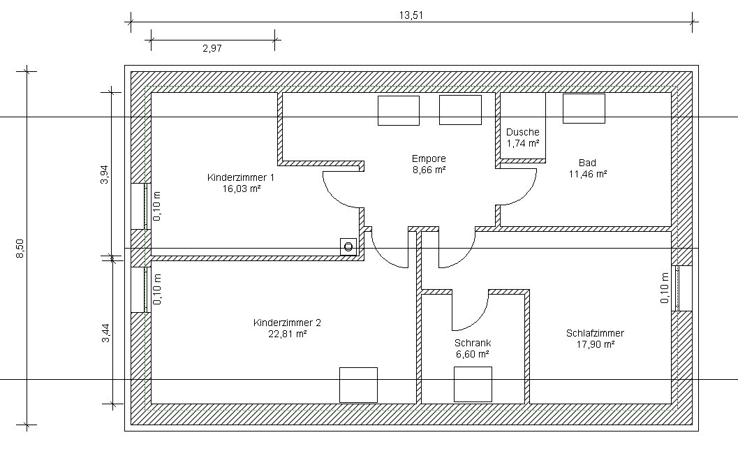
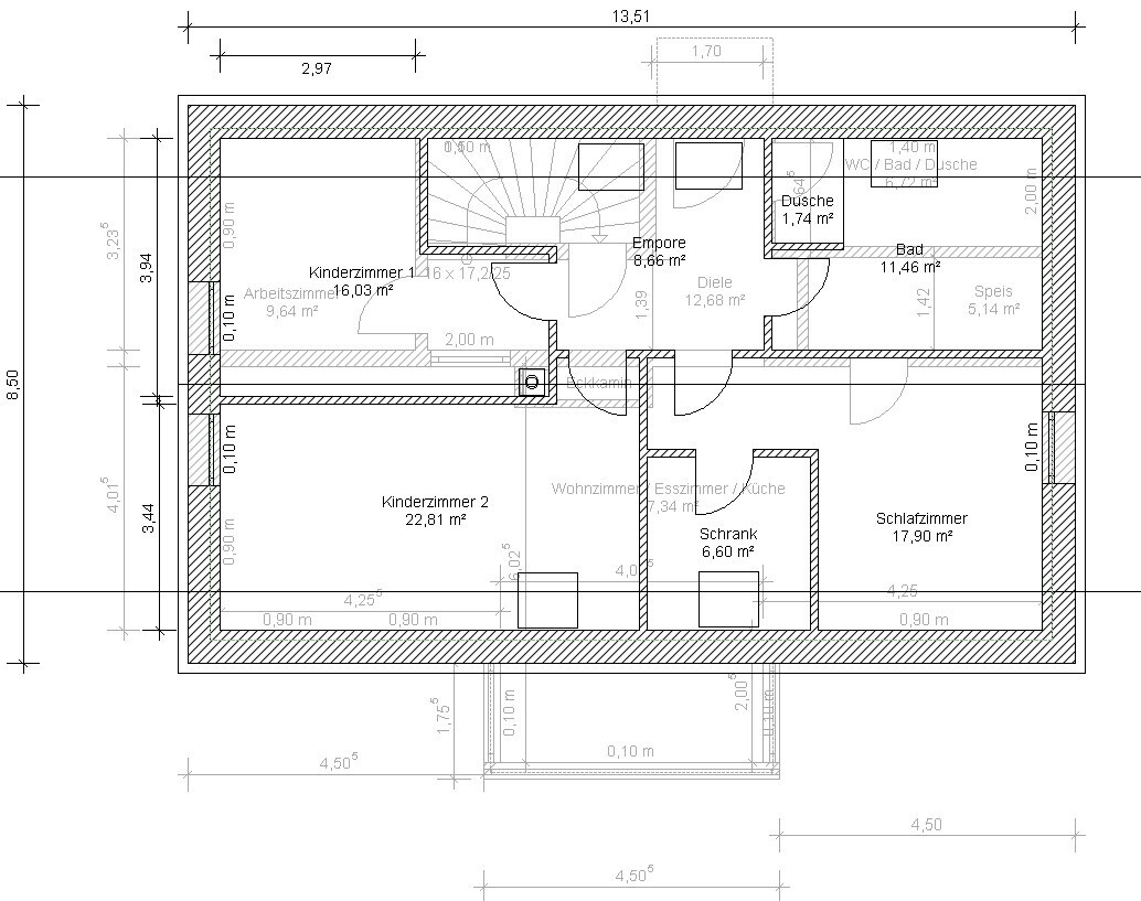
- Zwischen Diele und Wohnzimmer / Esszimmer kommt eine Schiebetür hinein
- Dach hat 45 Grad und sollte oben in der Mitte eine Raumhöhe von ca. 2m aufweisen für das Dachgeschoss, sodass eventuell noch ein Zimmer untergebracht werden kann in Zukunft
- Kniestock liegt bei 1,4m im Obergeschoss
- Links neben den Kamin im Erdgeschoss ist ein Oberlicht angebracht, damit Licht vom Wohnzimmer in die Diele fällt
- Erker soll mit Raffstores versehen werden
- Eine Möglichkeit wäre auch über den Erker das Obergeschoss zu erweitern:
1. Nur Balkon
2. Zusätzlicher Raum
- Küche ist nur von der Form her eingerichtet, ohne Geräte, etc.
- Beim Kamin soll es sich um einen Glas-Eckkamin (wie z.B Firma Brunner) handeln
Fragen:
- Was haltet ihr von der Aufteilung, was würdet ihr verbessern?
- Wo können am besten die Mülltonnen hin? (in die Garage oder extern?)
- Kaminrohr geht im First raus, stellt dies ein Problem dar?
- Wäre eine Erweiterung des Obergeschosses über dem Erker sinnvoll?
- Reicht ein Dachfenster auf der Nordseite für das obere Bad?
- Was kann ich bei den Fenster noch verbessern?
Lg Wolfgang










da ich gern mein Haus selbst planen möchte, stelle ich nun auch meinen Entwurf hier rein.
Natürlich werde ich als nächstes zu einem Baumeister / Statiker gehen, jedoch möchte ich zuerst gerne meine eigenen Vorstellungen zu Papier bringen.
Ein paar Echkdaten zum Plan:
- Grundstücksgröße: ca. 1350m² (links Westen, unten Süden)
- Hanglage (Nullpunkt ist im Westen) ca. 6m Steigung
- Geplant ist ein Massivhaus mit 50er Ziegel
- Garage ist vom Haus wärmetechnisch abgetrennt
- Heizung: Erdwärme mit Tiefenbohrung evtl. mit zusätzlicher Solarheizung
- Die Straße auf der Westseite ist nur eine 3m breite Sackgasse und führt nur zu einem anderen Haus
- Lichtschächte sind noch keine im Plan
- Zwischen Diele und Wohnzimmer / Esszimmer kommt eine Schiebetür hinein
- Dach hat 45 Grad und sollte oben in der Mitte eine Raumhöhe von ca. 2m aufweisen für das Dachgeschoss, sodass eventuell noch ein Zimmer untergebracht werden kann in Zukunft
- Kniestock liegt bei 1,4m im Obergeschoss
- Links neben den Kamin im Erdgeschoss ist ein Oberlicht angebracht, damit Licht vom Wohnzimmer in die Diele fällt
- Erker soll mit Raffstores versehen werden
- Eine Möglichkeit wäre auch über den Erker das Obergeschoss zu erweitern:
1. Nur Balkon
2. Zusätzlicher Raum
- Küche ist nur von der Form her eingerichtet, ohne Geräte, etc.
- Beim Kamin soll es sich um einen Glas-Eckkamin (wie z.B Firma Brunner) handeln
Fragen:
- Was haltet ihr von der Aufteilung, was würdet ihr verbessern?
- Wo können am besten die Mülltonnen hin? (in die Garage oder extern?)
- Kaminrohr geht im First raus, stellt dies ein Problem dar?
- Wäre eine Erweiterung des Obergeschosses über dem Erker sinnvoll?
- Reicht ein Dachfenster auf der Nordseite für das obere Bad?
- Was kann ich bei den Fenster noch verbessern?
Lg Wolfgang
W
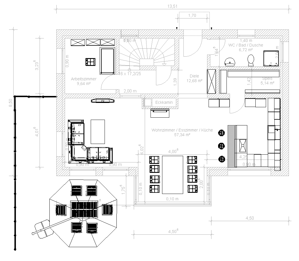
wolfgangp12.09.14 15:19Gleiche Aufteilung, gleiche Größe? (Sorry, ich habe keine Geduld, mir die Maße anzuschauen)
Man sieht, wenn ein Laie an die Planung geht (Man nehme eine der unpraktischsten Treppen... zB die man in einem Reihenhaus finden könnte)
Ein Hanghaus schreit nach einem Architekten - Ihr wollt doch nicht wirklich ein Siedlungshaus aus den 50ern auf ein Hanggrundstück setzen? So sieht es zumindest aus. Es kann nur falsch sein, an diese Materie "Hang" sich selbst ranzusetzen.
Man sieht, wenn ein Laie an die Planung geht (Man nehme eine der unpraktischsten Treppen... zB die man in einem Reihenhaus finden könnte)
Ein Hanghaus schreit nach einem Architekten - Ihr wollt doch nicht wirklich ein Siedlungshaus aus den 50ern auf ein Hanggrundstück setzen? So sieht es zumindest aus. Es kann nur falsch sein, an diese Materie "Hang" sich selbst ranzusetzen.
W
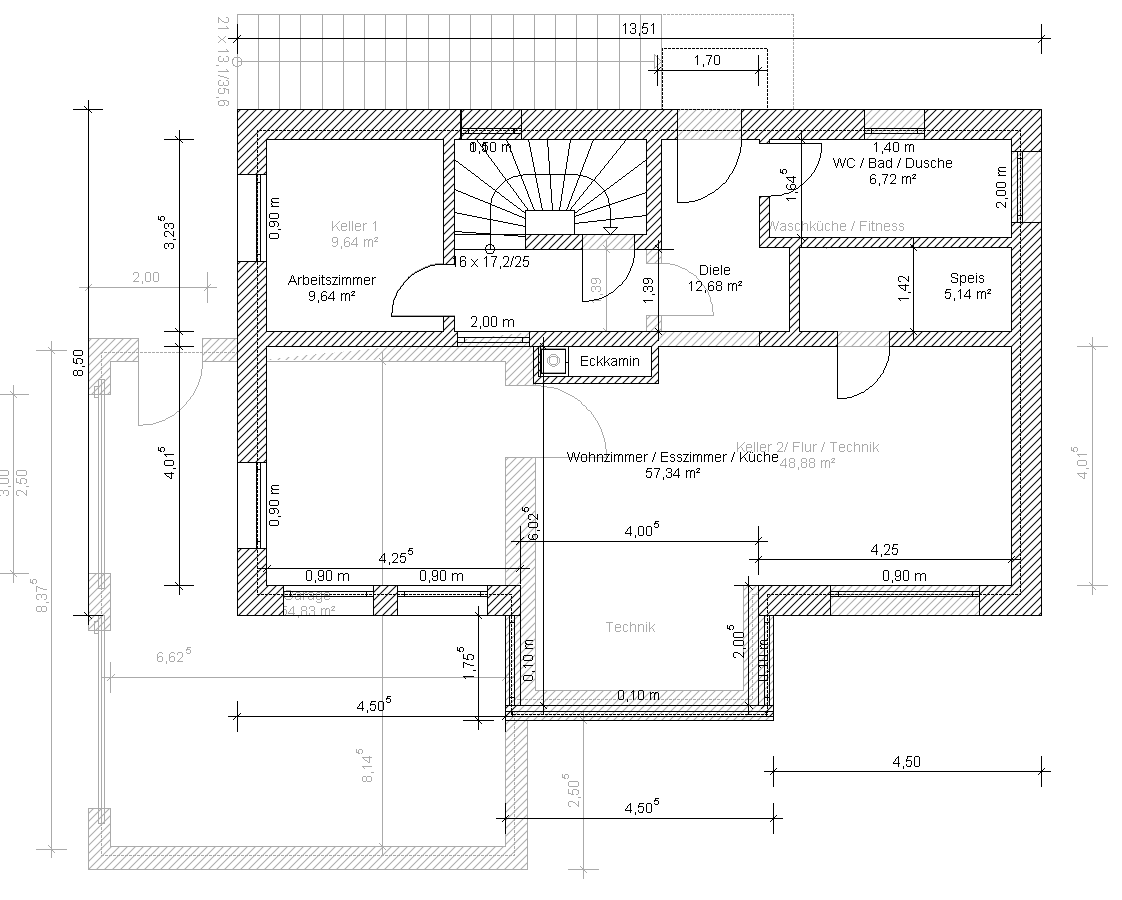
wolfgangp12.09.14 19:04Ja, den Grundriss hab ich auch gesehen. Wir haben ungefähr die gleiche Aufteilung. Bei der Größe unterscheidet es sich dennoch und bei mir ist auch ein Satteldach vorhanden, daher 1,5 geschoßig.
Habe vergessen anzumerken, dass sich das Grundstück in ländlicher Umgebung befindet und alle Häuser umher auch Satteldächer haben und der Landschaftsplaner auch keine andere Dachform haben möchte.
Bei den Treppen hab ich auch schon von einem Baumeisterkollegen, der nur einen ganz kurzen Blick auf den Plan geworfen hat, gehört, dass Podesttreppen sinnvoller wären. Die halbgewendelte Treppe stört mich aber nicht.
Wie ein Haus aus den 50ern solls ja auch nicht aussehen. Ich möchte ein modernes Satteldachhaus haben. Den Hang kann ich auch Großteils begradigen und vorne zur Straße hin eine Steinmauer hochziehen.
Bin ich jetzt mit meiner Planung komplett auf dem Holzweg?
Habe vergessen anzumerken, dass sich das Grundstück in ländlicher Umgebung befindet und alle Häuser umher auch Satteldächer haben und der Landschaftsplaner auch keine andere Dachform haben möchte.
Bei den Treppen hab ich auch schon von einem Baumeisterkollegen, der nur einen ganz kurzen Blick auf den Plan geworfen hat, gehört, dass Podesttreppen sinnvoller wären. Die halbgewendelte Treppe stört mich aber nicht.
Wie ein Haus aus den 50ern solls ja auch nicht aussehen. Ich möchte ein modernes Satteldachhaus haben. Den Hang kann ich auch Großteils begradigen und vorne zur Straße hin eine Steinmauer hochziehen.
Bin ich jetzt mit meiner Planung komplett auf dem Holzweg?
Hi,
ich find es gar nicht so schlecht, wenn man sich selbst schon Gedanken macht zum Haus. Ist auch kein Totalausfall, wie ich bei anderen schon gesehen habe. Gerade bei Hanglage kann ein Profi aber viel mehr leisten. Da würde ich auf keinen Fall dran sparen!
Was mir auf die Schnelle auffällt:
- Der Eingangsbereich wär mir zu eng. Wohin mit meinen Schuhen, Taschen und Jacken? Was wenn mal Besuch kommt?
- Die Treppe sieht so klein aus. Ist die richtig eingepasst?
- Diese Schranksache im Schlafzimmer erzeugt einen dunklen Schlauch-Eingang. Sowas find ich immer schlecht.
- Fehlt im Bad noch ein Fenster?
- Die Tür andere Treppe oben halt ich für Quatsch.
- Für's Wäschewaschen trägst Du Deine Wäsche über 2 Etagen. Sehr nervig. Hier würde ich wenigstens einen Wäscheschacht versuchen einzuplanen.
-Wo tritt man eigentlich oben aus der Treppe heraus? Irgendwie siehts aus, als wenn man gegen die Wand rennt - zumindest teilweise.
Mein Tipp: Auf jeden Fall den Entwurf nicht dem Architekten zeigen, sondern nur die Wünsche aufzählen.
ich find es gar nicht so schlecht, wenn man sich selbst schon Gedanken macht zum Haus. Ist auch kein Totalausfall, wie ich bei anderen schon gesehen habe. Gerade bei Hanglage kann ein Profi aber viel mehr leisten. Da würde ich auf keinen Fall dran sparen!
Was mir auf die Schnelle auffällt:
- Der Eingangsbereich wär mir zu eng. Wohin mit meinen Schuhen, Taschen und Jacken? Was wenn mal Besuch kommt?
- Die Treppe sieht so klein aus. Ist die richtig eingepasst?
- Diese Schranksache im Schlafzimmer erzeugt einen dunklen Schlauch-Eingang. Sowas find ich immer schlecht.
- Fehlt im Bad noch ein Fenster?
- Die Tür andere Treppe oben halt ich für Quatsch.
- Für's Wäschewaschen trägst Du Deine Wäsche über 2 Etagen. Sehr nervig. Hier würde ich wenigstens einen Wäscheschacht versuchen einzuplanen.
-Wo tritt man eigentlich oben aus der Treppe heraus? Irgendwie siehts aus, als wenn man gegen die Wand rennt - zumindest teilweise.
Mein Tipp: Auf jeden Fall den Entwurf nicht dem Architekten zeigen, sondern nur die Wünsche aufzählen.
Ähnliche Themen