M
MarkussukraM23.02.17 22:09Hallo Zusammen,
ich möchte gerne mein Grundriss und vor allem meine Lichtplanung zur Diskussion stellen.
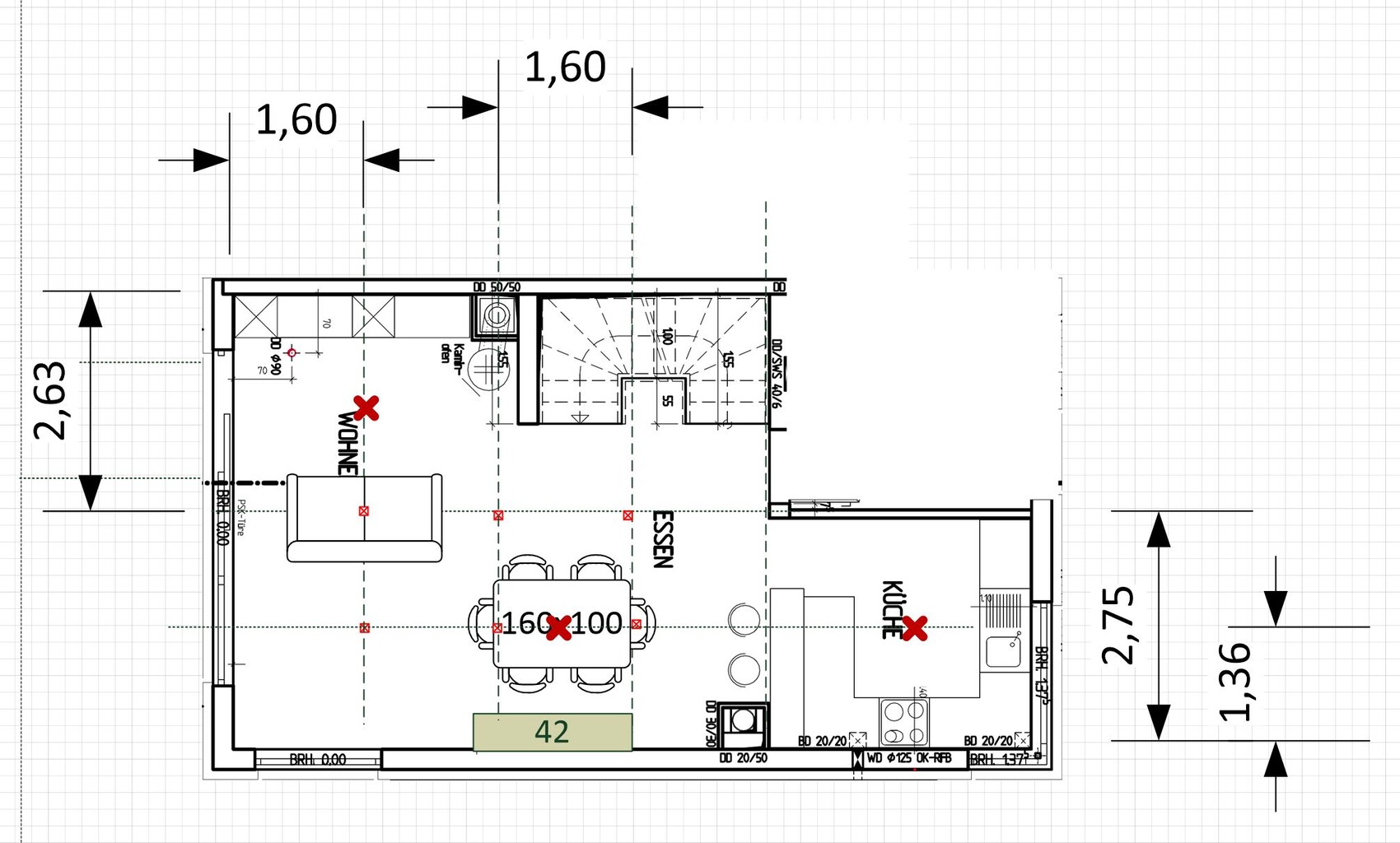
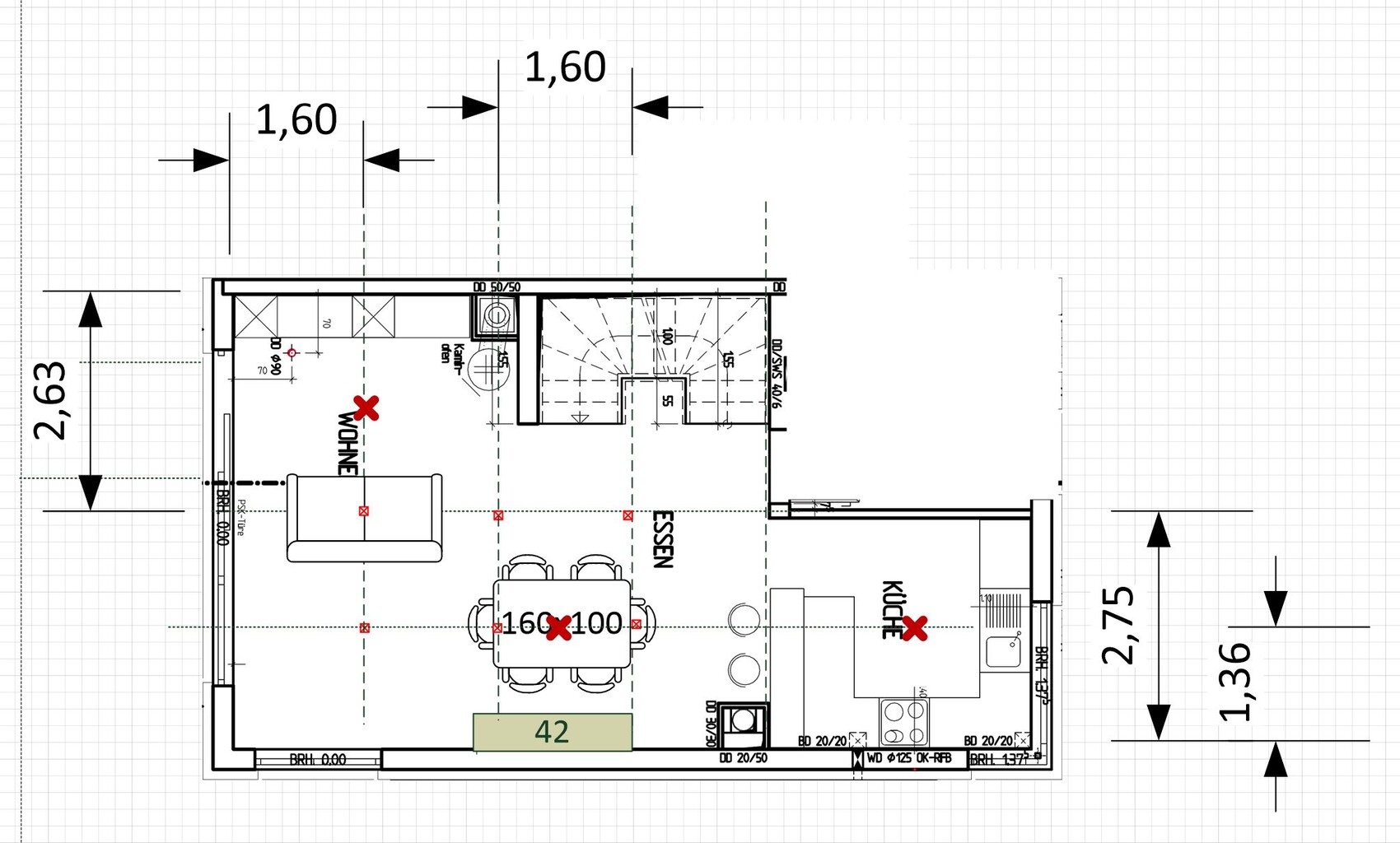
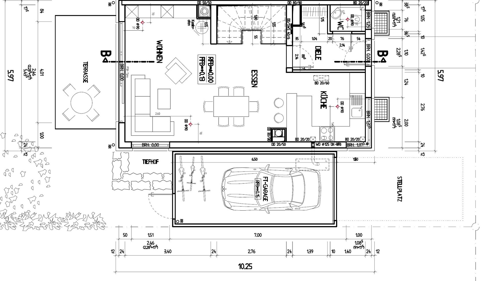
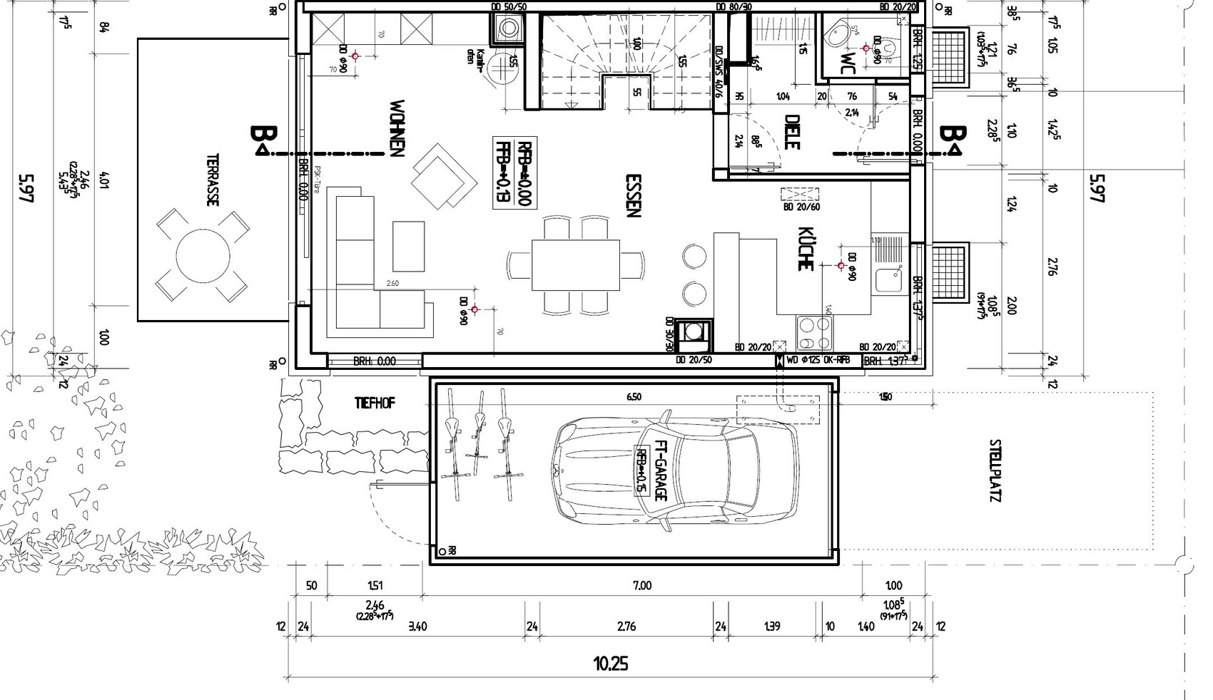
Es handelt sich um eine Doppelhaushälfte mit ca 10x6m Grundfläche.
Oben im Plan ist Westen, Schiebetüre Richtung Süden.
Sofa wird weiter nach mittig zur Schiebetüre nach oben gerückt, das ist im Plan noch nicht gezeichnet.
Küche ist noch nicht genau geplant. Daneben der Wäscheabwurfschacht.
Zur Grundbeleuchtung im Wohnzimmer/Esszimmer dachte ich mir ca 6 Betondosen 10x10cm mit LED Strahlern mit weitem Abstrahlwinkel. Abstand 1,6m und 1,36m zur Wand und zueinander, siehe Bild. Am Esstisch und evtl. im Wohnzimmer kommen 2 Hängelampen hinzu. Später möchte ich eine schmale Lichtvoute oben und Links entlang der Schiebetüre mit Spots und LED Bändern installieren. In der Küche ebenfalls.
Treppe bekommt noch einen Wandstrahler und Bodenbeleuchtung.
Frage ist:
-Sind Deckeneinbauleuchten geeignet für Hintergrundbeleuchtung?
-Ist die Verteilung sinnvoll?
WC ist mit 1,05x 140cm sehr klein zugunsten einer Schrankbreite vom 1m in der Diele. Die Türe ist schmal. Sind die Masse praktikabel?
Herzlichen Dank für alle Anregungen und Kritik


ich möchte gerne mein Grundriss und vor allem meine Lichtplanung zur Diskussion stellen.
Es handelt sich um eine Doppelhaushälfte mit ca 10x6m Grundfläche.
Oben im Plan ist Westen, Schiebetüre Richtung Süden.
Sofa wird weiter nach mittig zur Schiebetüre nach oben gerückt, das ist im Plan noch nicht gezeichnet.
Küche ist noch nicht genau geplant. Daneben der Wäscheabwurfschacht.
Zur Grundbeleuchtung im Wohnzimmer/Esszimmer dachte ich mir ca 6 Betondosen 10x10cm mit LED Strahlern mit weitem Abstrahlwinkel. Abstand 1,6m und 1,36m zur Wand und zueinander, siehe Bild. Am Esstisch und evtl. im Wohnzimmer kommen 2 Hängelampen hinzu. Später möchte ich eine schmale Lichtvoute oben und Links entlang der Schiebetüre mit Spots und LED Bändern installieren. In der Küche ebenfalls.
Treppe bekommt noch einen Wandstrahler und Bodenbeleuchtung.
Frage ist:
-Sind Deckeneinbauleuchten geeignet für Hintergrundbeleuchtung?
-Ist die Verteilung sinnvoll?
WC ist mit 1,05x 140cm sehr klein zugunsten einer Schrankbreite vom 1m in der Diele. Die Türe ist schmal. Sind die Masse praktikabel?
Herzlichen Dank für alle Anregungen und Kritik
Anzeige
Hallo MarkussukraM,
schau mal hier: Lichtplanung und Grundriss Doppelhaushälfte. Da wird jeder fündig!
schau mal hier: Lichtplanung und Grundriss Doppelhaushälfte. Da wird jeder fündig!
M
MarkussukraM25.02.17 20:06gibts Ideen?
Ähnliche Themen