M
MarkussukraM26.02.17 23:03Hallo Zusammen,
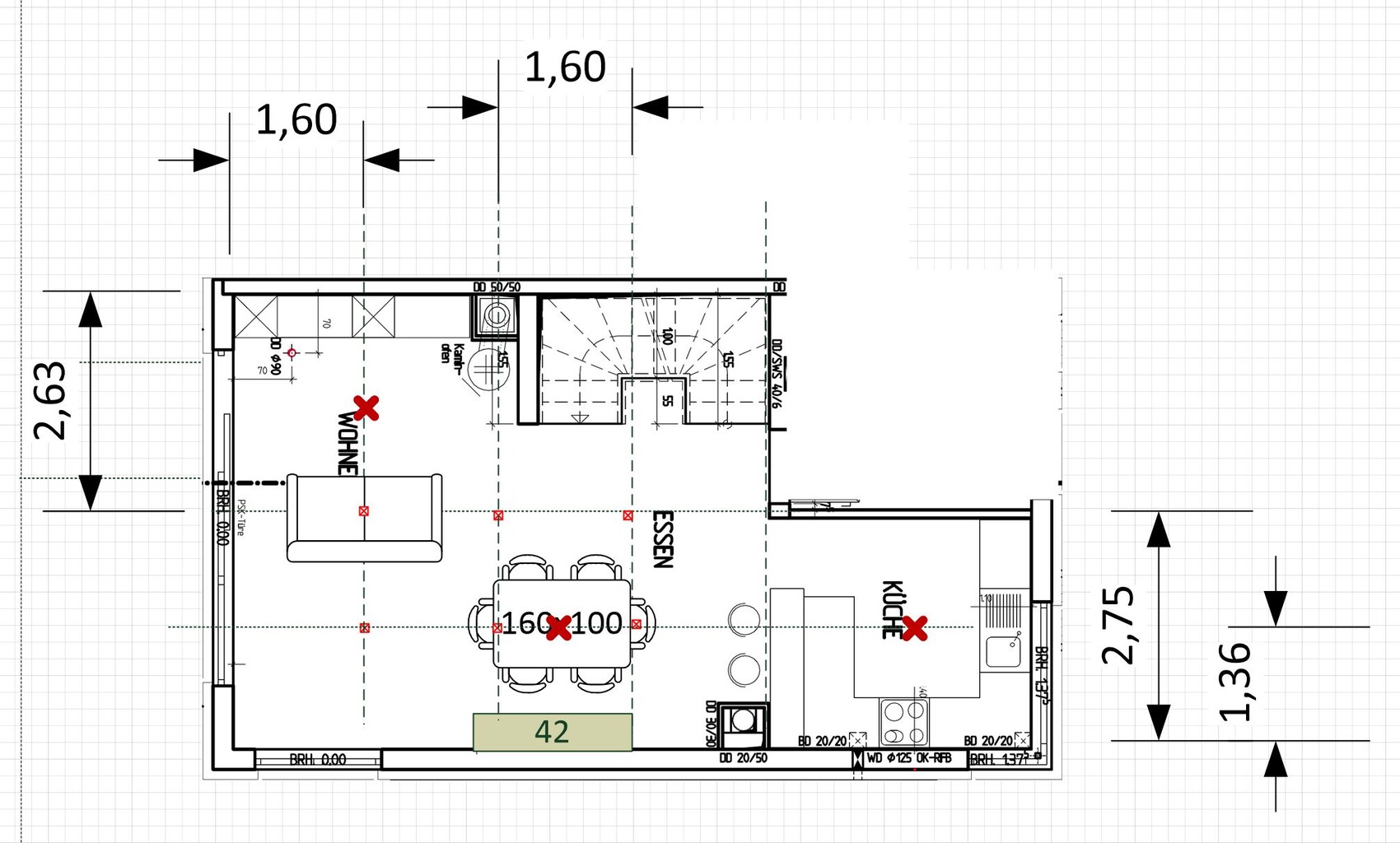
ich möchte gerne mein Grundriss und vor allem meine Lichtplanung zur Diskussion stellen.
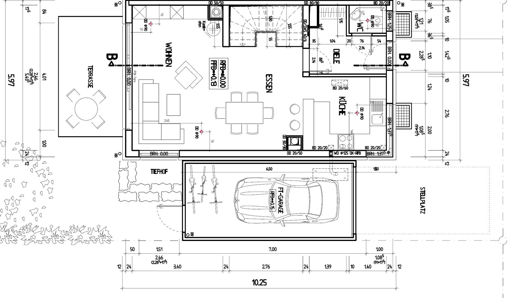
Es handelt sich um eine Doppelhaushälfte mit ca 10x6m Grundfläche.
Oben im Plan ist Westen, Schiebetüre Richtung Süden.
sofa wird weiter nach mittig zur Schiebetüre nach oben gerückt, das ist im Plan noch nicht gezeichnet.
Küche ist noch nicht genau geplant. Daneben der Wäscheabwurfschacht.
Zur Grundbeleuchtung im Wohnzimmer/Esszimmer dachte ich mir ca 6 Betondosen 10x10cm mit LED Strahlern mit weitem Abstrahlwinkel. Abstand 1,6m und 1,36m zur Wand und zueinander, siehe Bild. Am Esstisch und evtl. im Wohnzimmer kommen 2 Hängelampen hinzu. Später möchte ich eine schmale Lichtvoute oben und Links entlang der Schiebetüre mit Spots und LED Bändern installieren. In der Küche ebenfalls.
Treppe bekommt noch einen Wandstrahler und Bodenbeleuchtung.
Frage ist:
-Sind Deckeneinbauleuchten geeignet für Hintergrundbeleuchtung?
-Ist die Verteilung sinnvoll?
WC ist mit 1,05x 140cm sehr klein zugunsten einer Schrankbreite vom 1m in der Diele. Die Türe ist schmal. Sind die Masse praktikabel?
Herzlichen Dank für alle Anregungen und Kritik
ich möchte gerne mein Grundriss und vor allem meine Lichtplanung zur Diskussion stellen.
Es handelt sich um eine Doppelhaushälfte mit ca 10x6m Grundfläche.
Oben im Plan ist Westen, Schiebetüre Richtung Süden.
sofa wird weiter nach mittig zur Schiebetüre nach oben gerückt, das ist im Plan noch nicht gezeichnet.
Küche ist noch nicht genau geplant. Daneben der Wäscheabwurfschacht.
Zur Grundbeleuchtung im Wohnzimmer/Esszimmer dachte ich mir ca 6 Betondosen 10x10cm mit LED Strahlern mit weitem Abstrahlwinkel. Abstand 1,6m und 1,36m zur Wand und zueinander, siehe Bild. Am Esstisch und evtl. im Wohnzimmer kommen 2 Hängelampen hinzu. Später möchte ich eine schmale Lichtvoute oben und Links entlang der Schiebetüre mit Spots und LED Bändern installieren. In der Küche ebenfalls.
Treppe bekommt noch einen Wandstrahler und Bodenbeleuchtung.
Frage ist:
-Sind Deckeneinbauleuchten geeignet für Hintergrundbeleuchtung?
-Ist die Verteilung sinnvoll?
WC ist mit 1,05x 140cm sehr klein zugunsten einer Schrankbreite vom 1m in der Diele. Die Türe ist schmal. Sind die Masse praktikabel?
Herzlichen Dank für alle Anregungen und Kritik
M
MarkussukraM26.02.17 23:04Hi,
willst Du wirklich so möblieren wie in dem "Lichtplan" angegeben?
Ein Sofa mitten im Raum mit dem Rücken zum den Fenstern?
Bin mir nicht sicher, ob das gut aussehen würde und dem Raumeindruck zuträglich ist, da gefällt mir die Sofaecke in dem anderen Bild wesentlich besser.
Ich meine bei Einbaustrahlern mal gelesen zu haben Entfernung von der Wand ungefähr 1/3 Deckenhöhe, damit die Wände genug Licht abbekommen, oft sind sie mit ca. 50 und 90 cm Abstand zur Wand montiert.
Einbaustrahler bringen Licht durch Reflexion an den Wänden und dem Boden (Luft leuchtet nicht)., für Flure und Laufwege auch sehr schön.
Idr. ordnet man sie in Gruppen an, damit sie optisch eine sinnvolle Einheit ergeben.
So würde ich z.B. nicht mit der Lampe über dem Esstisch in einer Flucht mischen.
Die Abstände scheinen mir auch zu gering zu sein dafür.
Wenn der Tisch dann nicht 100% symmetrisch dort wo geplant steht sieht es schon wieder komisch aus, daher würde ich über dem Tisch eher nur mit einer Hängeleuchte planen (ist flexibler) und 4 oder 6 Einbaustrahler eher in Richtung der Raumecken unterbringen.
Eine Hängeleuchte vor der Fernseher ohne einen Tisch darunter würde ich nicht machen.
Für Deinen Flur kann ich mir eine oder 2 Deckenstrahler gut vorstellen, evt. auch dann in der Verlängerung in dem Bereich vor der Treppe...
Ist nur meine Meinung, bin auch kein Experte, habe mich aber neulich darüber etwas eingelesen da wir auch bauen.
Hoffe dass ich Dir evtl. die eine oder andere Anregungung geben konnte.
Viele Grüße
willst Du wirklich so möblieren wie in dem "Lichtplan" angegeben?
Ein Sofa mitten im Raum mit dem Rücken zum den Fenstern?
Bin mir nicht sicher, ob das gut aussehen würde und dem Raumeindruck zuträglich ist, da gefällt mir die Sofaecke in dem anderen Bild wesentlich besser.
Ich meine bei Einbaustrahlern mal gelesen zu haben Entfernung von der Wand ungefähr 1/3 Deckenhöhe, damit die Wände genug Licht abbekommen, oft sind sie mit ca. 50 und 90 cm Abstand zur Wand montiert.
Einbaustrahler bringen Licht durch Reflexion an den Wänden und dem Boden (Luft leuchtet nicht)., für Flure und Laufwege auch sehr schön.
Idr. ordnet man sie in Gruppen an, damit sie optisch eine sinnvolle Einheit ergeben.
So würde ich z.B. nicht mit der Lampe über dem Esstisch in einer Flucht mischen.
Die Abstände scheinen mir auch zu gering zu sein dafür.
Wenn der Tisch dann nicht 100% symmetrisch dort wo geplant steht sieht es schon wieder komisch aus, daher würde ich über dem Tisch eher nur mit einer Hängeleuchte planen (ist flexibler) und 4 oder 6 Einbaustrahler eher in Richtung der Raumecken unterbringen.
Eine Hängeleuchte vor der Fernseher ohne einen Tisch darunter würde ich nicht machen.
Für Deinen Flur kann ich mir eine oder 2 Deckenstrahler gut vorstellen, evt. auch dann in der Verlängerung in dem Bereich vor der Treppe...
Ist nur meine Meinung, bin auch kein Experte, habe mich aber neulich darüber etwas eingelesen da wir auch bauen.
Hoffe dass ich Dir evtl. die eine oder andere Anregungung geben konnte.
Viele Grüße
M
MarkussukraM01.03.17 21:18Hallo Aragorn,
vielen Dank für deine tollen Tipps.
Wenn das Sofa wie im anderen Bild unten steht sind es 4,5m bis zum Fernseher.
Den Fernseher zur Wand vom Treppenhaus gefällt mir auch nicht gut da sie nur 1,55 breit ist.
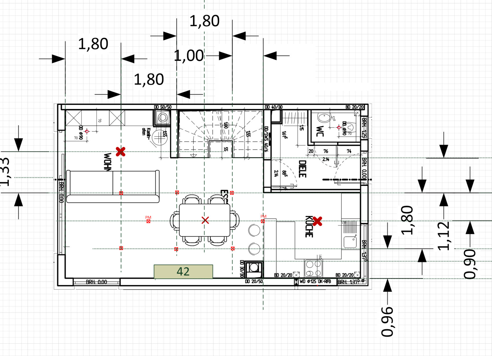
Die Anordnung der Downlights habe ich nun umorganisiert. Abstände sind 1,8m zueinander und unterschiedlich zur Wand, siehe Bild.
In der Mitte ist eine Hängeleuchte von der Decke. Der Abstand zu den anderen Leuchten ist somit 1,27m. Das sollte ausreichend sein?
Vor den Fernseher kommt eine Hängeleuchte und mit Tisch, das X. Stört das evtl. beim Fernsehen?

vielen Dank für deine tollen Tipps.
Wenn das Sofa wie im anderen Bild unten steht sind es 4,5m bis zum Fernseher.
Den Fernseher zur Wand vom Treppenhaus gefällt mir auch nicht gut da sie nur 1,55 breit ist.
Die Anordnung der Downlights habe ich nun umorganisiert. Abstände sind 1,8m zueinander und unterschiedlich zur Wand, siehe Bild.
In der Mitte ist eine Hängeleuchte von der Decke. Der Abstand zu den anderen Leuchten ist somit 1,27m. Das sollte ausreichend sein?
Vor den Fernseher kommt eine Hängeleuchte und mit Tisch, das X. Stört das evtl. beim Fernsehen?
M
MarkussukraM01.03.17 21:54Durch was wäre es am besten zu ersetzen?
Ähnliche Themen