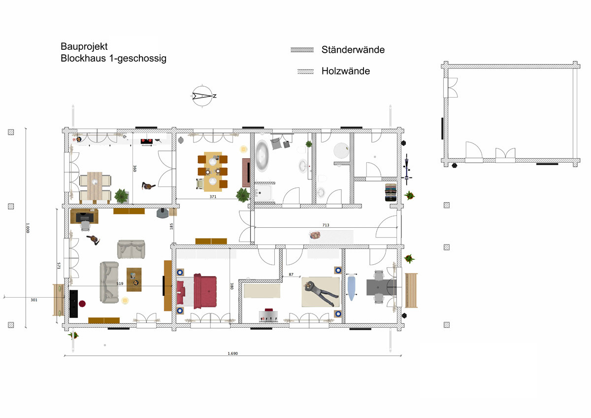
ᐅ Langes Blockhaus 1-geschossig, auf langem schmalen Grundstück
Erstellt am: 24.10.14 22:40
S
Steffi33Okay.. so schmal ist das Grundstück eigentlich nicht.. 17,5 x 72 Meter. Da wir aber am liebsten 1-geschossig bleiben möchten, zieht sich das geplante Haus in die Länge. Wir haben unseren selbst geplanten Haus-Grundriss schon 2 potenziellen Hausbauern vorgestellt. Beide hielten unser Vorhaben für "sportlich". Irgendwie wollten Sie uns auch in die 2-geschossige Richtung lenken, um preiswerter zu werden. Ist ein eingeschossiger Bau viel teurer als ein zweigeschossiger? Wie würdet ihr das Haus preislich einschätzen (Bauort: ländlich, tiefster Osten Sachsens). Sind Holzblockbalken (ca. 20cm) teurer als Stein?
Anbei Grundriss und ein Video-Rundgang:
[MEDIA=YouTube]WwbOQsrIP98[/MEDIA]

Anbei Grundriss und ein Video-Rundgang:
[MEDIA=YouTube]WwbOQsrIP98[/MEDIA]
Finde die zwei Schlafzimmer im EG unglücklich mit ihren Zipfeln.
Das Obergeschoss wirkt in dem Rundgang merkwürdig - soll das ein Lager sein und an dessen Ende noch ein Zimmer?
Die Treppe solltet ihr noch mal genau unter die Lupe nehmen - die ist sehr schmal und kurz dargestellt.
3,8 m Breite für Bett und schrank sind m.E. zu wenig. Bei 60 cm Schranktiefe hast du sonst nur noch 60-70 cm links und rechts vom Bett - und du musst noch an den Schrank.
Küchenzeile ist evtl. etwas kurz - kommt auf die Personenanzahl an.
Die Außenwanddicke geht mit 20 cm eher nicht. Du musst einen Mindestdämmwert erreichen. Meines Wissens sind Holzblockbalkenhäuser auch eher zersägte Stämme mit Dämmung dazwischen.
Nach 7 m ist evtl. der Flur am Ende etwas dunkel.
Hausanschlüsse im Gäste-WC finde ich auch komisch glaub ich.
Das Obergeschoss wirkt in dem Rundgang merkwürdig - soll das ein Lager sein und an dessen Ende noch ein Zimmer?
Die Treppe solltet ihr noch mal genau unter die Lupe nehmen - die ist sehr schmal und kurz dargestellt.
3,8 m Breite für Bett und schrank sind m.E. zu wenig. Bei 60 cm Schranktiefe hast du sonst nur noch 60-70 cm links und rechts vom Bett - und du musst noch an den Schrank.
Küchenzeile ist evtl. etwas kurz - kommt auf die Personenanzahl an.
Die Außenwanddicke geht mit 20 cm eher nicht. Du musst einen Mindestdämmwert erreichen. Meines Wissens sind Holzblockbalkenhäuser auch eher zersägte Stämme mit Dämmung dazwischen.
Nach 7 m ist evtl. der Flur am Ende etwas dunkel.
Hausanschlüsse im Gäste-WC finde ich auch komisch glaub ich.
I
Irgendwoabaier25.10.14 07:47Finde die Idee an sich nicht schlecht. Zu den Grundrissdetails gibt es sicherlich viel zu diskutieren, und ist auch vieles Geschmackssache. Wandstärken von 20cm sind allerdings bei Außenwänden zumindest in D. nach aktueller Gesetzeslage etwas sehr dünn - auch aus Holz.
Aus energetischer Sicht ist die Idee natürlich wenig sinnvoll, es gibt halt sehr viel Außenfläche mit wenig umbautem Volumen. Auch kostenmäßig: Viel Dach und viel Bodenplatte im Verhältnis zur Wohnfläche.
Haustechnik: Was ist angedacht - und wie viel Platz wird tatsächlich für die Haustechnik benötigt? Bei uns war ich schon überrascht, dass ein Technikraum mit ~11m² Grundfläche, annähernd quadratisch, einfach schon recht klein ist. Das hängt halt vom geplanten Wärmeerzeuger, Lüftungskonzept, Photovoltaik- und sonstigen Ideen und noch vorgehaltenen Optionen ab.
Ansonsten: solch ausgefallene Ideen sollte man frühzeitig mit Architekten diskutieren - es gibt zu viele Einzelpunkte, die man gerne übersieht, und die am Ende dann zu Planungsproblemen führen...
Aus energetischer Sicht ist die Idee natürlich wenig sinnvoll, es gibt halt sehr viel Außenfläche mit wenig umbautem Volumen. Auch kostenmäßig: Viel Dach und viel Bodenplatte im Verhältnis zur Wohnfläche.
Haustechnik: Was ist angedacht - und wie viel Platz wird tatsächlich für die Haustechnik benötigt? Bei uns war ich schon überrascht, dass ein Technikraum mit ~11m² Grundfläche, annähernd quadratisch, einfach schon recht klein ist. Das hängt halt vom geplanten Wärmeerzeuger, Lüftungskonzept, Photovoltaik- und sonstigen Ideen und noch vorgehaltenen Optionen ab.
Ansonsten: solch ausgefallene Ideen sollte man frühzeitig mit Architekten diskutieren - es gibt zu viele Einzelpunkte, die man gerne übersieht, und die am Ende dann zu Planungsproblemen führen...
Also ich finde, bei dem Grundriss hakt es noch an einigen Punkten. Diese L-förmigen Schlafzimmer gehen gar nicht. Im Schlafzimmer ist das verschenkter Raum und im Kinderzimmer schränkst du dich in der Möblierung ein und es wirkt alles eng.
3,80 für ein Doppelbett + Schrank? Wir haben 3,95 nur für Bett und da würde kein Schrank mehr hinpassen.
PC im Wohnzimmer ist in einer Mietwohnung akzeptabel, aber in einem eigenen Haus, sollte sich dafür doch eine andere Möglichkeit finden lassen.
Ebenso der Riesen-Wasserbehälter im Gäste-WC: Das geht gar nicht. Wozu hat man einen Hauswirtschaftsraum oder einen Anschlussraum?
Gästezimmer im OG: Treppe als Raumspartreppe finde ich in Ordnung. Aber was mir nicht gefällt, dass der Gast erst mal an eurem ganzen "Krusch" vorbei muss um dahin zu gelangen. Der Weg zur Toilette ist dann auch ziemlich lang.
Ein Bungalow sollte außerdem eine Zonierung haben. Also den privaten Bereich vom öffentlichen Bereich trennen. Bei euch müssen erst mal alle an den Schlafzimmer vorbei.
Wieso hat das eine Zimmer überhaupt 2 Betten (1 Doppelbett+1 Einzelbett)
Und jetzt meine übliche Frage: Habt ihr Kinder? Wenn ja, wie viele und wie alt?
3,80 für ein Doppelbett + Schrank? Wir haben 3,95 nur für Bett und da würde kein Schrank mehr hinpassen.
PC im Wohnzimmer ist in einer Mietwohnung akzeptabel, aber in einem eigenen Haus, sollte sich dafür doch eine andere Möglichkeit finden lassen.
Ebenso der Riesen-Wasserbehälter im Gäste-WC: Das geht gar nicht. Wozu hat man einen Hauswirtschaftsraum oder einen Anschlussraum?
Gästezimmer im OG: Treppe als Raumspartreppe finde ich in Ordnung. Aber was mir nicht gefällt, dass der Gast erst mal an eurem ganzen "Krusch" vorbei muss um dahin zu gelangen. Der Weg zur Toilette ist dann auch ziemlich lang.
Ein Bungalow sollte außerdem eine Zonierung haben. Also den privaten Bereich vom öffentlichen Bereich trennen. Bei euch müssen erst mal alle an den Schlafzimmer vorbei.
Wieso hat das eine Zimmer überhaupt 2 Betten (1 Doppelbett+1 Einzelbett)
Und jetzt meine übliche Frage: Habt ihr Kinder? Wenn ja, wie viele und wie alt?
Liebes Forum, ich bin ja schwer begeistert, wie schnell und ausführlich es Antworten auf meinen Beitrag gibt. Eure Kritik hat uns allerdings nachdenklich gestimmt... Dennoch würde ich einige Überlegungen zuerst gern erklären..
----------------------
Zunächst die familiäre Situation:
Wir werden in dem Haus zu zweit wohnen. Wir erwarten allerdings regelmäßig Besuch von unseren erwachsenen Kindern und Enkelkindern. Gern haben wir auch Tages-Besuch von Freunden, Verwandten und Bekannten. Ein kleines Büro ist gewünscht, da wir beide ggf. Homeoffice machen können.
----------------------
Das Dachgeschoss:
Es soll tatsächlich nur ein Lagerraum werden. Das Zimmer dort oben (im Video zu sehen) ist nur ein Größen-Szenario, falls mal ein weiteres Zimmer gebraucht wird. Wir werden das aber definitiv nicht umsetzen. Das Dachgeschoss soll auch nicht extra beheizt werden. Dafür soll noch eine Tür am oberen Ende der Treppe eingebaut werden um Wärmeverluste von unten nach oben zu minimieren. Theoretisch hätte eine Bodenluke gereicht.. was uns aber zu unpraktisch ist. Daher ist die Treppe relativ spartanisch geplant. Frage: Reicht dafür eine ca. 80 cm Treppe?
----------------------
Das Schlafzimmer:
Wir finden diese Winkellösung sehr gelungen. Zum einen schafft Sie einen gemütlichen Rückzugsort für eines der Enkelkinder im nebenliegenden Gästezimmer. Man fällt zudem nicht „mit der Tür ins Bett“. An der Wand gegenüber der Tür hat eine Hakenleiste Platz für Morgenmantel, Bademantel und div. Utensilien. Zu den Größen: Ich war grad noch mal messen... Unser jetziges Bett hat ein Außenmaß Breite 170 cm. Zur Zeit steht der große Wäscheschrank (60 cm tief) genau mit 75 cm Abstand zum Bett. Das passt wunderbar und bereitet uns seit über 10 Jahren keine Probleme. Wenn wir das im neuen Haus genauso stellen blieben zur Fensterseite rechnerisch ebenfalls genau 75 cm. Scheint mir erst mal alles gut zu passen.. 10-20 cm mehr wären zugegeben allerdings perfekt..
----------------------
Das Gästezimmer:
Hier gilt größentechnisch das gleiche wie im Schlafzimmer. Das Doppelbett ist für den Besuch, das einzelne Bett (ggf. ein Doppelstockbett) für´s Enkelkind. Da das Enkelkind oft auch ohne Eltern über Nacht oder nach der Schule bei uns bleiben wird, gibt es noch einen Schreibplatz. Es wird sich aber wohl eher alles im Wohnbereich/Küche abspielen (Hausaufgaben, Spielen etc.) J
----------------------
Die Küche:
Länge der Arbeitsfläche ist 519 cm. Abzüglich Herd und Abwaschbecken bleiben ca. 360 cm Arbeitsfläche. Das reicht auf alle Fälle, jetzt haben wir viel weniger. Notfalls kann man auf den Frühstückstisch ausweichen.
----------------------
Das Wohnzimmer
Ganz bewusst haben wir einen kleinen Computerplatz mit integriert. Wir müssen abends immer wieder mal ein paar Stunden arbeiten bzw. wuseln am Computer rum. Wir möchten dann nicht in einem separaten Raum vom Rest des Familienlebens ausgeschlossen sein. Man arbeitet zwar, ist aber immer noch mittendrin im Familienleben und kann auch zwischendurch ein bisschen Fernsehen schauen oder kann einer Unterhaltung folgen. Wir haben das in unserem jetzigen Haus schon so und möchten es gern wieder so haben.
----------------------
Hauswirtschaftsraum/Gäste-WC
Auch hier haben wir uns ganz bewusst für diese Kombi entschieden. Ursprünglich hätten wir die Hausanlage sogar am liebsten ins große Bad integriert. Da haben wir aber optisch keine ansprechende Lösung gefunden. Der Grund ist, dass so eine Heizanlage immer Wärme an die Umgebung abgibt. In unserem jetzigen Haus ist das der wärmste Raum. Wie oft haben wir uns gewünscht, dass diese Abwärme einfach unser Bad beheizt und nicht einen Abstellraum. Da im neuen Haus das große Bad zudem genau neben dem Gästebad liegt, stellen wir uns eine einfache Lüfterverbindung von Gästebad nach Hauptbad vor, so dass das Hauptbad ebenfalls von der Abwärme profitieren könnte. Was wir allerdings noch gar nicht einschätzen können, ist, wie groß so eine Heizanlage wird. Unsere jetzige Anlage (Fernwärme mit 80 Liter Speicher) würde locker reinpassen.
----------------------
20 cm Außenwände Blockbohle
Hier sind wir jetzt besonders irritiert. Denn alle beiden Hausanbieter bieten die 20 cm Leimholzblockbohle an und bewerben u. a. die hervorragenden Dämmeigenschaften:
Hier mal ein Bild zum Aufbau:
- 20 – 25 cm stark
- laminierte Bohlen
- einstofflich, daher keine Dämmung notwendig
- absolute Winddichtigkeit durch hohe Planauflage
- dampfdiffusionsoffen
- beste Wärmedämmeigenschaften
- Holzfeuchte ca. 10 %
- hervorragende bauphysikalische Eigenschaften
- Nachweis der Brandsicherheit nach B1 (schwer entflammbar) ist möglich
Da kann man dann lesen:
„...Selbstverständlich tragen auch die niedrigen Heizkosten zum Wohlbefinden der Hauseigentümer bei. Zu verdanken sind sie der hervorragenden Dämmeigenschaft der 20 cm starken, massiven Fertigwand aus Nordischer Kiefer, die noch besser dämmt als es ihr errechneter Wert vermuten ließe...“
----------------------
Entschuldigung, dass euch jetzt so zugetextet habe..
Vielleicht hat ja jemand Lust und Zeit, das alles zu lesen und kann noch mehr konstruktive Hinweise/Kritik geben. Ich bedanke mich schon mal bei allen.
LG Steffi33
----------------------
Zunächst die familiäre Situation:
Wir werden in dem Haus zu zweit wohnen. Wir erwarten allerdings regelmäßig Besuch von unseren erwachsenen Kindern und Enkelkindern. Gern haben wir auch Tages-Besuch von Freunden, Verwandten und Bekannten. Ein kleines Büro ist gewünscht, da wir beide ggf. Homeoffice machen können.
----------------------
Das Dachgeschoss:
Es soll tatsächlich nur ein Lagerraum werden. Das Zimmer dort oben (im Video zu sehen) ist nur ein Größen-Szenario, falls mal ein weiteres Zimmer gebraucht wird. Wir werden das aber definitiv nicht umsetzen. Das Dachgeschoss soll auch nicht extra beheizt werden. Dafür soll noch eine Tür am oberen Ende der Treppe eingebaut werden um Wärmeverluste von unten nach oben zu minimieren. Theoretisch hätte eine Bodenluke gereicht.. was uns aber zu unpraktisch ist. Daher ist die Treppe relativ spartanisch geplant. Frage: Reicht dafür eine ca. 80 cm Treppe?
----------------------
Das Schlafzimmer:
Wir finden diese Winkellösung sehr gelungen. Zum einen schafft Sie einen gemütlichen Rückzugsort für eines der Enkelkinder im nebenliegenden Gästezimmer. Man fällt zudem nicht „mit der Tür ins Bett“. An der Wand gegenüber der Tür hat eine Hakenleiste Platz für Morgenmantel, Bademantel und div. Utensilien. Zu den Größen: Ich war grad noch mal messen... Unser jetziges Bett hat ein Außenmaß Breite 170 cm. Zur Zeit steht der große Wäscheschrank (60 cm tief) genau mit 75 cm Abstand zum Bett. Das passt wunderbar und bereitet uns seit über 10 Jahren keine Probleme. Wenn wir das im neuen Haus genauso stellen blieben zur Fensterseite rechnerisch ebenfalls genau 75 cm. Scheint mir erst mal alles gut zu passen.. 10-20 cm mehr wären zugegeben allerdings perfekt..
----------------------
Das Gästezimmer:
Hier gilt größentechnisch das gleiche wie im Schlafzimmer. Das Doppelbett ist für den Besuch, das einzelne Bett (ggf. ein Doppelstockbett) für´s Enkelkind. Da das Enkelkind oft auch ohne Eltern über Nacht oder nach der Schule bei uns bleiben wird, gibt es noch einen Schreibplatz. Es wird sich aber wohl eher alles im Wohnbereich/Küche abspielen (Hausaufgaben, Spielen etc.) J
----------------------
Die Küche:
Länge der Arbeitsfläche ist 519 cm. Abzüglich Herd und Abwaschbecken bleiben ca. 360 cm Arbeitsfläche. Das reicht auf alle Fälle, jetzt haben wir viel weniger. Notfalls kann man auf den Frühstückstisch ausweichen.
----------------------
Das Wohnzimmer
Ganz bewusst haben wir einen kleinen Computerplatz mit integriert. Wir müssen abends immer wieder mal ein paar Stunden arbeiten bzw. wuseln am Computer rum. Wir möchten dann nicht in einem separaten Raum vom Rest des Familienlebens ausgeschlossen sein. Man arbeitet zwar, ist aber immer noch mittendrin im Familienleben und kann auch zwischendurch ein bisschen Fernsehen schauen oder kann einer Unterhaltung folgen. Wir haben das in unserem jetzigen Haus schon so und möchten es gern wieder so haben.
----------------------
Hauswirtschaftsraum/Gäste-WC
Auch hier haben wir uns ganz bewusst für diese Kombi entschieden. Ursprünglich hätten wir die Hausanlage sogar am liebsten ins große Bad integriert. Da haben wir aber optisch keine ansprechende Lösung gefunden. Der Grund ist, dass so eine Heizanlage immer Wärme an die Umgebung abgibt. In unserem jetzigen Haus ist das der wärmste Raum. Wie oft haben wir uns gewünscht, dass diese Abwärme einfach unser Bad beheizt und nicht einen Abstellraum. Da im neuen Haus das große Bad zudem genau neben dem Gästebad liegt, stellen wir uns eine einfache Lüfterverbindung von Gästebad nach Hauptbad vor, so dass das Hauptbad ebenfalls von der Abwärme profitieren könnte. Was wir allerdings noch gar nicht einschätzen können, ist, wie groß so eine Heizanlage wird. Unsere jetzige Anlage (Fernwärme mit 80 Liter Speicher) würde locker reinpassen.
----------------------
20 cm Außenwände Blockbohle
Hier sind wir jetzt besonders irritiert. Denn alle beiden Hausanbieter bieten die 20 cm Leimholzblockbohle an und bewerben u. a. die hervorragenden Dämmeigenschaften:
Hier mal ein Bild zum Aufbau:
- 20 – 25 cm stark
- laminierte Bohlen
- einstofflich, daher keine Dämmung notwendig
- absolute Winddichtigkeit durch hohe Planauflage
- dampfdiffusionsoffen
- beste Wärmedämmeigenschaften
- Holzfeuchte ca. 10 %
- hervorragende bauphysikalische Eigenschaften
- Nachweis der Brandsicherheit nach B1 (schwer entflammbar) ist möglich
Da kann man dann lesen:
„...Selbstverständlich tragen auch die niedrigen Heizkosten zum Wohlbefinden der Hauseigentümer bei. Zu verdanken sind sie der hervorragenden Dämmeigenschaft der 20 cm starken, massiven Fertigwand aus Nordischer Kiefer, die noch besser dämmt als es ihr errechneter Wert vermuten ließe...“
----------------------
Entschuldigung, dass euch jetzt so zugetextet habe..
Vielleicht hat ja jemand Lust und Zeit, das alles zu lesen und kann noch mehr konstruktive Hinweise/Kritik geben. Ich bedanke mich schon mal bei allen.
LG Steffi33
Ihr wollt aber schon das Dach dämmen und nicht die Zwischendecke, richtig? Sonst wäre das eher keine gute Idee mit der Tür.
Also ein normales Doppelbett hat eher 1,9 m und dann passt gar nichts mehr. Auch werdet ihr älter und werkelt dann evtl. mit Rollator rum, da sind auch 75 cm nicht mehr üppig. Außerdem bedenkt immer, dass ihr das eventuell auch mal verkaufen wollt/müsst.
Küche: für 2-3 Personen reicht das sicherlich. Ja.
Eine reine Korkwand schafft bei 20 cm gerade mal die Anforderungen an die Dämmstärke - Kiefer ganz ganz sicher nicht. Da würde ich mal ganz stark nachhaken was da genau verbaut wird. Rechnerisch schafft Kiefer (lt. U-wert.net) die Energieeinsparverordnung bei 52 cm Stärke.
Also ein normales Doppelbett hat eher 1,9 m und dann passt gar nichts mehr. Auch werdet ihr älter und werkelt dann evtl. mit Rollator rum, da sind auch 75 cm nicht mehr üppig. Außerdem bedenkt immer, dass ihr das eventuell auch mal verkaufen wollt/müsst.
Küche: für 2-3 Personen reicht das sicherlich. Ja.
Eine reine Korkwand schafft bei 20 cm gerade mal die Anforderungen an die Dämmstärke - Kiefer ganz ganz sicher nicht. Da würde ich mal ganz stark nachhaken was da genau verbaut wird. Rechnerisch schafft Kiefer (lt. U-wert.net) die Energieeinsparverordnung bei 52 cm Stärke.
Ähnliche Themen