ᐅ Kritik an Einfamilienhaus-Grundriss erwünscht (~175m2/0,9m Kniestock/Keller)
Erstellt am: 25.08.20 14:48
J
jj-siegenN
Nice-Nofret04.09.20 16:05Im Obergeschoss schlage ich folgenden Raumtausch vor:
Das Elternbad wird zur Ankleide, das Kinderbad zum Elterbad und die Ankleid wird zum Kinderbad.
Das Elternbad wird zur Ankleide, das Kinderbad zum Elterbad und die Ankleid wird zum Kinderbad.
Alessandro schrieb:
der Grundriss ist 10x besser als das was man sonst hier so sieht!Da erstaunst Du mich allerhöchst, spätestens nach meinem Kommentar11ant schrieb:
Die Außenwand planrechts im EG paßt nicht zum Grundriss - soll das ein Aufmerksamkeitstest für die Leser sein ?sollte es eigentlich Jedem aufgefallen sein, daß die Grundrisse unter dem Druck auf den Planer, dreizehn Wünsche zwischen zwölf Ecken zu pressen, geplatzt sind. Überdruck von Wünschen gebiert Erker https://www.instagram.com/11antgmxde/
https://www.linkedin.com/company/bauen-jetzt/
W
Wintersonne04.09.20 16:23ypg schrieb:
da ist ein dritter Erker vorhanden. 2- Meter-Linie ist dort auch sichtbar.Jetzt seh ich´s J
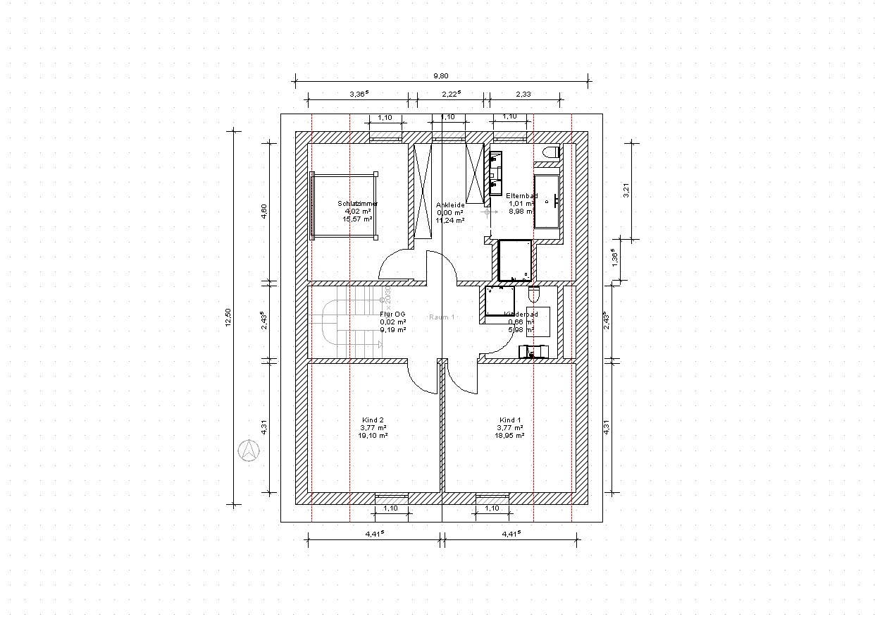
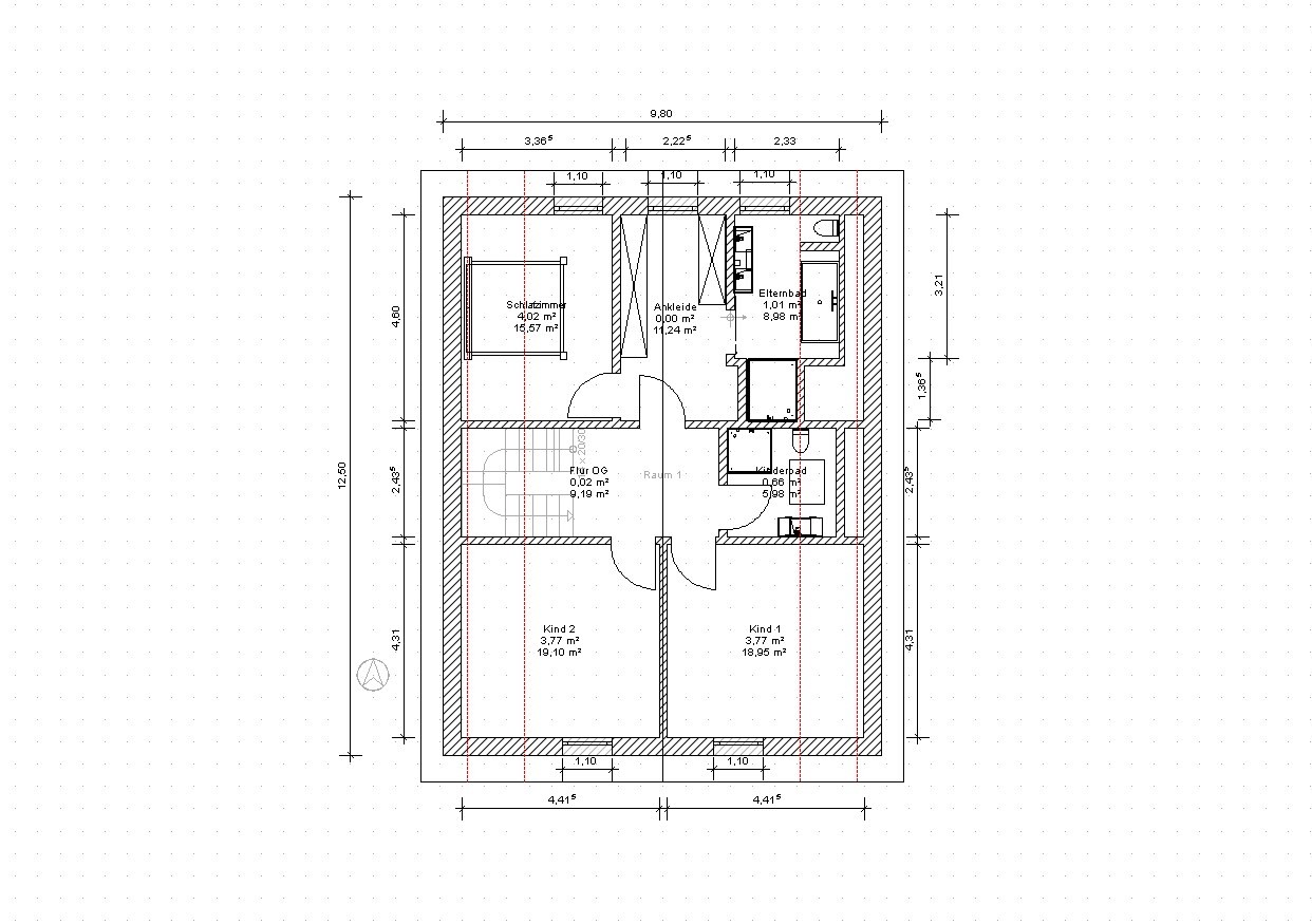
jj-siegen09.09.20 20:55Hallo zusammen,
nach der deutlichen Kritik haben wir uns nochmal intensiv mit dem Grundriss auseinandergesetzt. Wir haben uns laienhaft einen neuen Grundriss fürs OG überlegt und gezeichnet. So trifft es unsere Vorstellungen jetzt sehr genau.
Das UG folgt (Lage der Bäder und Treppe passen aber fürs UG).
Wir bitten erneut um Eure konstruktive Kritik.
Vielen Dank!

nach der deutlichen Kritik haben wir uns nochmal intensiv mit dem Grundriss auseinandergesetzt. Wir haben uns laienhaft einen neuen Grundriss fürs OG überlegt und gezeichnet. So trifft es unsere Vorstellungen jetzt sehr genau.
Das UG folgt (Lage der Bäder und Treppe passen aber fürs UG).
Wir bitten erneut um Eure konstruktive Kritik.
Vielen Dank!
jj-siegen schrieb:
Wir haben uns laienhaft einen neuen Grundriss fürs OG überlegtNa ja, "laienhaft" war ja wohl eher der vorherige. Dieser ist nun erheblich aufgeräumter. Ich freue mich auf das EG (und über das Anfangen mit dem OG).https://www.instagram.com/11antgmxde/
https://www.linkedin.com/company/bauen-jetzt/
Ähnliche Themen