Kosten für Teilaufstockung und Flachdach mit Dachterrasse Erfahrungen?

4,60 Stern(e) 5 Votes
Zuletzt aktualisiert 18.11.2025
Sie befinden sich auf der Seite 3 der Diskussion zum Thema: Kosten für Teilaufstockung und Flachdach mit Dachterrasse Erfahrungen?
>> Zum 1. Beitrag <<

H

HE-DA-DHH

Guest
Wenn das ein Einfamilienhaus wird, dann findet in der Regel in unseren Breiten das Leben im Garten oder auf der Terrasse statt. Dachterrasse gehört eher zu Eigentumswohnungen. Oder soll das ein Mehrfamilienhaus werden? Die Dachterrasse wird wohl eher für 8 oder 4 Euro vermietbar sein.

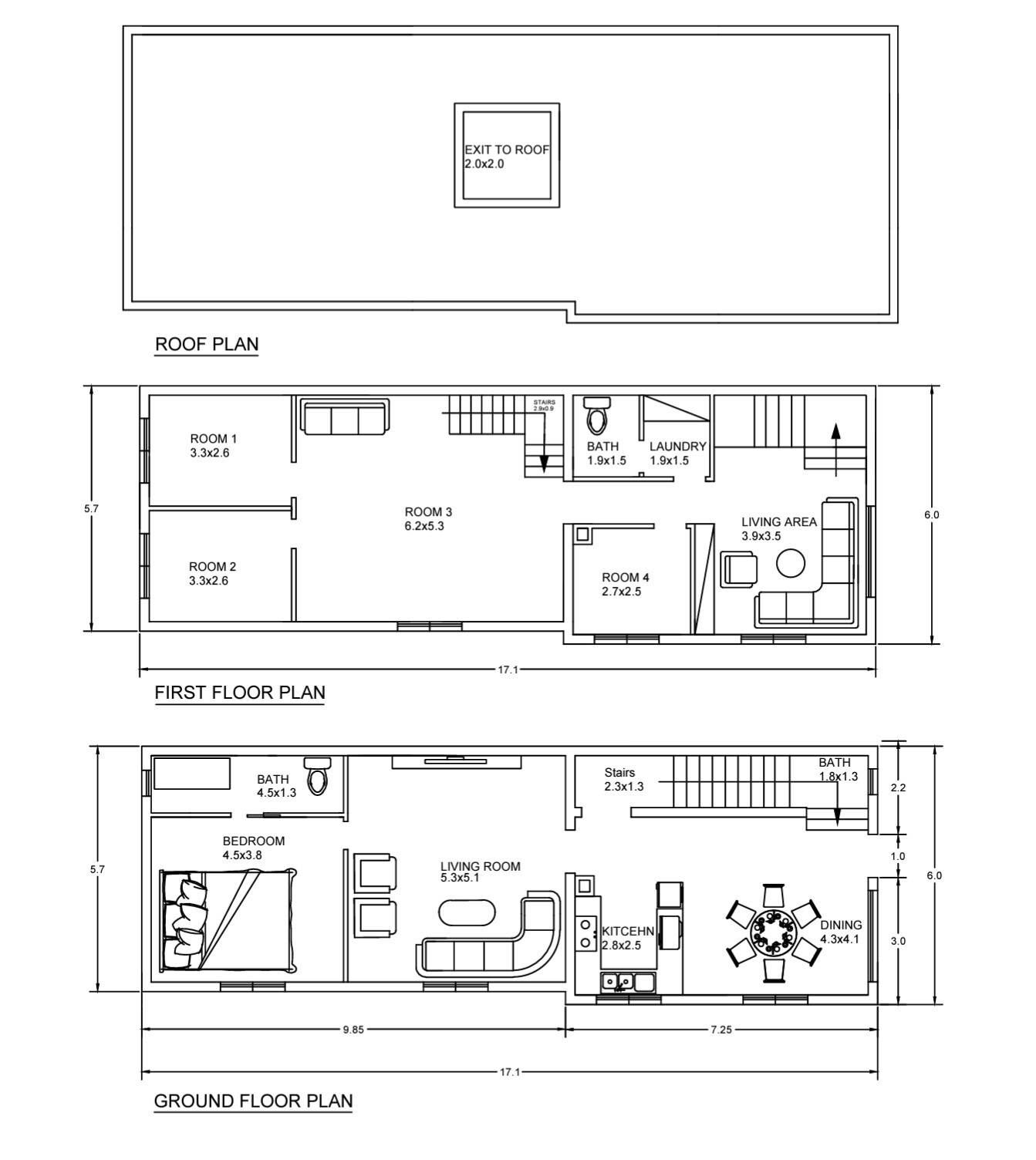
Ist die Skizze vom Architekt?

Bestimmt vom Architekten, aber halt sehr lange her.
Das Grundstück ist durch seine Eigenheiten günstiger zu erwerben als es eigentlich der Fall ist in einer sehr guten Gegend,
das liegt daran, dass es keinen Garten gibt und das hintere Haus Wegerecht besitzt, also es gibt ein Haus hinter dem Hinterhaus.
Es gibt lediglich einen Stellplatz und einen ca. 2m breiten Streifen zu dem Weg, der zum Hinterhaus führt.

Ich möchte das selbst nutzen und kann gut mit einer 100qm DT leben, die kaum einsehbar sein wird.
Der Garten wäre mir auch lieber, aber ich kann mir das anscheinden nicht leisten in der Region, in der ich lebe.
Ich würde mich schon sehr freuen, wenn das so klappt, wie geplant, wirklich freuen.
 
H

hanghaus2023

Wenn Du die Zustimmung schriftlich hast, kannst ja mit dem Plan zu einer Zimmerei gehen und fragen was das kostet. Ohne Plan keine Kalkulation möglich.
 
Zuletzt aktualisiert 18.11.2025
Im Forum Bauplanung gibt es 5070 Themen mit insgesamt 100807 Beiträgen


Ähnliche Themen zu Kosten für Teilaufstockung und Flachdach mit Dachterrasse Erfahrungen?
Nr.ErgebnisBeiträge
1Meinung zum Grundriss eines geplanten Bauhauses - Seite 323
2Meinungen zu Grundriss "Haus am Hang" erbeten 31
3Stadtvilla -> Eure Meinung zum Grundriss, Vorschläge - Seite 321
4Grundriss Einfamilienhaus, ca. 200qm ohne Keller - Einschätzung - Seite 25172
5Grundriss und Hausplanung - bitte um eure Meinung! 13
6Grundriss mit KG auf Hanggrundstück 32
7Grundriss Einfamilienhaus mit Keller 19
8Grundriss 160m² Bungalow - Seite 346
9Grundriss unseres Bungalows - Seite 582
10Unser Grundriss steht zur Diskussion - Seite 539
11Grundriss Bungalow 140 qm - Seite 326
12Grundriss wie verändern? - Seite 8181
13Meinungen zu unserem Grundriss? 19
14Grundriss für 150qm Einfamilienhaus mit Wohnzimmer nach Norden - Seite 321
15Grundriss Herrenhaus mit Satteldach 170 m² Wohnfläche 45
16Erster Grundriss-Versuch für Kettenhaus auf kleinem Grundstück - Seite 494
17Grundriss Stadtvilla mit Walmdach ca. 170 qm - Seite 261
18Einfamilienhaus 130-140 m² Grundriss Planung - Seite 11173
19Grundriss Einfamilienhaus OWL ca. 150qm mit Ostgarten - Seite 2175
20Unser Grundriss-Entwurf für ein günstiges Haus - Seite 4348

Oben