Hallo zusammen,
wie haben ein Grundstück (siehe Lageplan) und haben ohne Architekt angefangen, unser Wunschhaus zu planen. Bevor wir konkreter werden, wäre es schön, Meinungen, Ideen, Ansichten hierzu zu bekommen.
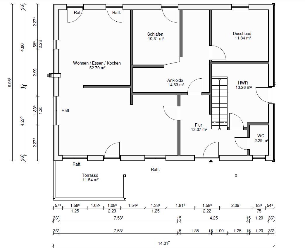
Auf den Grundrissplan sieht man, dass in östlicher Richtung ein Stromverteiler steht. Dieser ist beachtlich hoch, und bietet somit keine schöne Ansicht. Deshalb ist hier der Hausanschlussraum geplant, abgetrennt vom Haus mit Durchgang zur "Frühstücksterrasse".
Wir planen fürs Alter. Das heisst, wier wollen alles wesentliche auf einer Ebene haben. Oben ist für die Kinder und Enkel, wenn sie zu Besuch kommen, und Hobbyräume, Büro usw. Der Bereich über dem Wohnzimmer ist offen. Unten ist es uns wichtig, abgetrennte Bereiche zu haben. Küche/Essen und Wohnzimmer sollen kein offener, zusammenhängerender Bereich sein. Wir haben oft Besuch, während andere in Ruhe nen Film schauen wollen.
Wir freuen uns über jede Idee, die außergewöhnlich ist. Es soll individuell werden. Aber auch über HInweise zur sinnvollen Realisierbarkeit.
Gebaut wird das als Holzhaus.
Der Bauplan sieht wenig Einschränkungen vor. Das Baufenster sieht man auf der Zeichnung.
Danke und Grüße, Andreas



wie haben ein Grundstück (siehe Lageplan) und haben ohne Architekt angefangen, unser Wunschhaus zu planen. Bevor wir konkreter werden, wäre es schön, Meinungen, Ideen, Ansichten hierzu zu bekommen.
Auf den Grundrissplan sieht man, dass in östlicher Richtung ein Stromverteiler steht. Dieser ist beachtlich hoch, und bietet somit keine schöne Ansicht. Deshalb ist hier der Hausanschlussraum geplant, abgetrennt vom Haus mit Durchgang zur "Frühstücksterrasse".
Wir planen fürs Alter. Das heisst, wier wollen alles wesentliche auf einer Ebene haben. Oben ist für die Kinder und Enkel, wenn sie zu Besuch kommen, und Hobbyräume, Büro usw. Der Bereich über dem Wohnzimmer ist offen. Unten ist es uns wichtig, abgetrennte Bereiche zu haben. Küche/Essen und Wohnzimmer sollen kein offener, zusammenhängerender Bereich sein. Wir haben oft Besuch, während andere in Ruhe nen Film schauen wollen.
Wir freuen uns über jede Idee, die außergewöhnlich ist. Es soll individuell werden. Aber auch über HInweise zur sinnvollen Realisierbarkeit.
Gebaut wird das als Holzhaus.
Der Bauplan sieht wenig Einschränkungen vor. Das Baufenster sieht man auf der Zeichnung.
Danke und Grüße, Andreas
Um Gottes Willen... Da bleiben mir die Worte stecken...Ist das Dein Ernst?
Die sichtbare Willkür ohne Hirn beim Bad ohne Fenster, aber einziger Durchgang zum Schlafzimmer zieht sich in jedem Lebensbereich und Raum durch.
Das OG entspricht nicht dem EG...
Wie sollen die Außenmaße sein? Warum ist der Fragebogen nicht ausgefüllt? Die Daten fehlen hier. Was ist mit dem Budget? Entspricht es der Wohnfläche?
Tipp: eine Hausplanung ist nicht eine Aneinanderreihung oder -Setzung von Räumen oder geometrischen Formen. Nimm Dir einen Architekten!
Die sichtbare Willkür ohne Hirn beim Bad ohne Fenster, aber einziger Durchgang zum Schlafzimmer zieht sich in jedem Lebensbereich und Raum durch.
Das OG entspricht nicht dem EG...
Wie sollen die Außenmaße sein? Warum ist der Fragebogen nicht ausgefüllt? Die Daten fehlen hier. Was ist mit dem Budget? Entspricht es der Wohnfläche?
Tipp: eine Hausplanung ist nicht eine Aneinanderreihung oder -Setzung von Räumen oder geometrischen Formen. Nimm Dir einen Architekten!
Hi, danke erst einmal für die harten aber offenen Worte. Ich sagte ja, es ist nicht gewöhnlich. Im Bad hat sich ein Fehler eingeschlichen, hier gehört die Wand zur rechten weg und dort sind dann auch Fenster. Ja, Zugang zum Schlafzimmer nur durch das Bad, das ist so gewollt. Warum? Weil das unseren Wegen entspricht. Immer, wenn wir ins Schlafzimmer gehen oder dort heraus kommen, gehen wir ins Bad.
Außenmaße sind 14x15 Meter. Das Budget ist ca. 500k. Plus Minus.
Es geht mir primär um den Grundriss.
Außenmaße sind 14x15 Meter. Das Budget ist ca. 500k. Plus Minus.
Es geht mir primär um den Grundriss.
O
Osnabruecker24.05.20 13:16Viel zu viele Ecken und Schrägen in der Außenhülle....
Kostspielig, immer eine Schwachstelle und anhand der Inneneinsichten auch nicht notwendig.
Habe eine alte Faustformel im Hinterkopf "ein Erker kostet 30k extra". Bei euch würde ich schätzen 100.000 € Mehrpreis für eine individuelle Gestaltung, ohne erkennbaren Mehrwert.
Wenn es eure finanzielle Situation zulässt, viel Erfolg!
Kostspielig, immer eine Schwachstelle und anhand der Inneneinsichten auch nicht notwendig.
Habe eine alte Faustformel im Hinterkopf "ein Erker kostet 30k extra". Bei euch würde ich schätzen 100.000 € Mehrpreis für eine individuelle Gestaltung, ohne erkennbaren Mehrwert.
Wenn es eure finanzielle Situation zulässt, viel Erfolg!
B
Bertram10024.05.20 13:29sciliar schrieb:
Ich sagte ja, es ist nicht gewöhnlich.Ich glaube, du verwechselt "nicht gewöhnlich" mit Individualität und Aussage. Ich schliesse mich den anderen an: der Grundriss im im besten Fall "nicht gewöhnlich" - einfach weil eigentlich alle anderen Leute einen funktionierenden Grundriss bevorzugen. Das ist die gewöhnliche Art zu Bauen: Zweck, Form und Mittel so zu kombinieren dass etwas Stimmiges rauskommt.
Euer Grundriss hat zu viele tote Ecken (Wohnzimmer, Schlafzimmer, Bad), die Türen auf der Ecke sind Raumsparentwurfe für dort wo es nicht anders geht. Ansonsten kreïeren sie nur ein altmodisches Aussehen und blockieren eventuell sogar nützlichen Raum hinter der Tür.
Das graue Zimmer hat nur ein kleines Fenster, der Flur keine Garderobe, wer wil in der Leseecke sitzen in der man zwar TV und alle Geräusche hört, aber nichts sieht? die Küche ist maximal unpraktisch (G-Form und dann noch Spüle auf dem Eckschrank. Damit blockierst du immer mehr als einen Schrank wenn du irgendwo stehst. Sollte noch eine zweite Person in der Küche arbeiten, dann kann es schon mal nervig werden in der G-Küche.
Die Idee ungefähr alles "über Eck" zu planen, ist Mist und hat sich zurecht nicht durchgesetzt. Klassiker haben sich ihren Ruf als Klassiker hart verdient. Gilt für Musik, Mode, Essen und wohl auch für Häuser?
Woher die Abneigung von "gewöhnlich"? Ungewöhnliches kannst du doch mit der Innenreinrichtung und Mobiliar reinbringen,
Ähnliche Themen