Hallo zusammen,
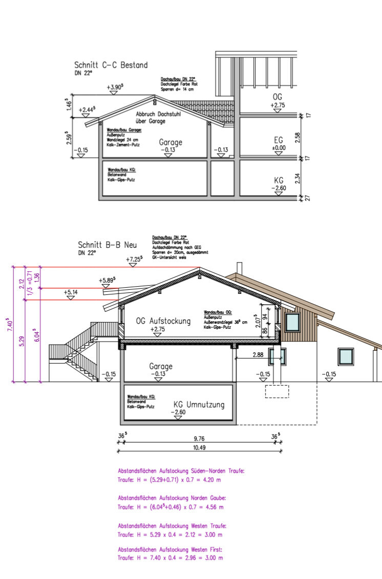
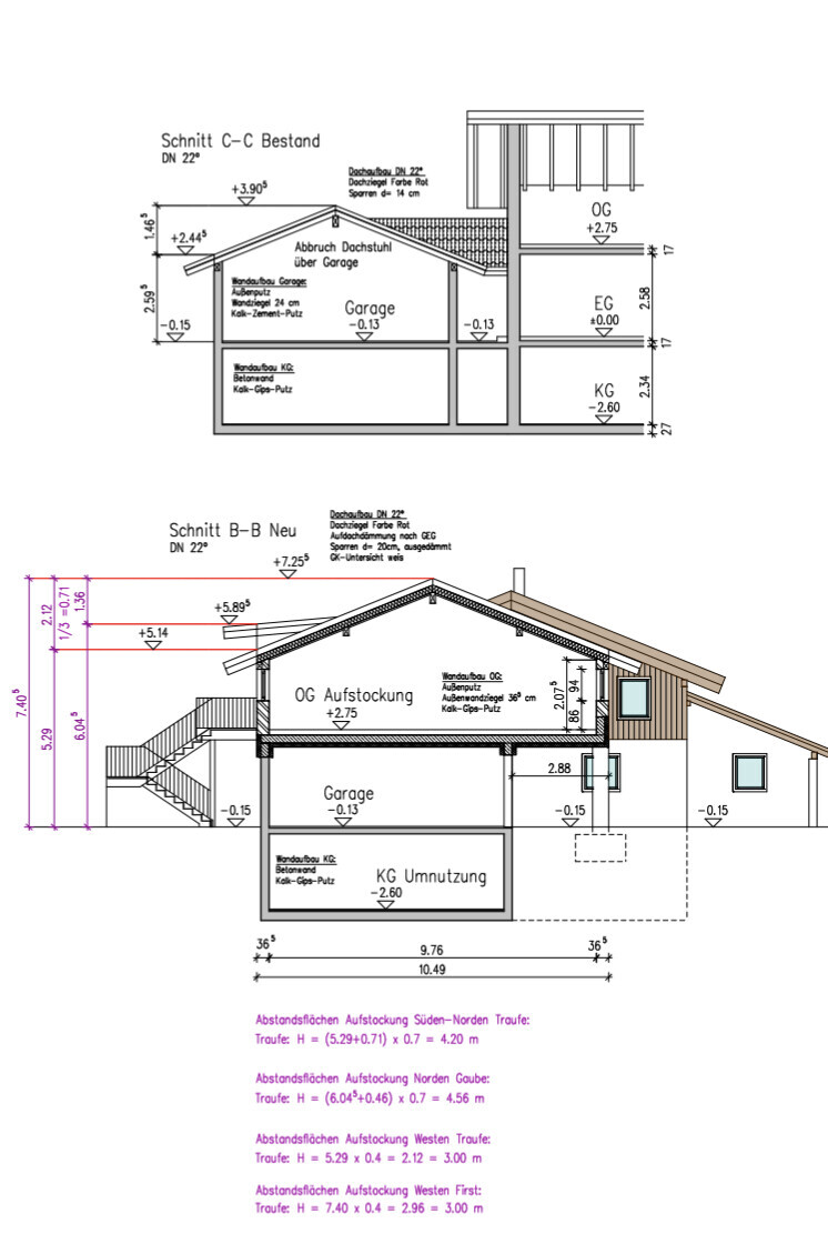
wir sind gerade dabei unsere Garagenaufstockung zu planen. Dieser Aufbau wird dann an das 1.OG des Bestands angegliedert und soll meiner bald 5-Köpfigen Familie genügend Platz auf einer Ebene bieten. Eigentlich waren wir schon fertig zur Abgabe. Nun haben mich aber einige Nachbarn im Zuge der Unterschriften mit ihren "Expertentipps" ins Grübeln gebracht. Hintergrund ist, dass wir im im Neubau einen Kniestock von 2,07m haben werden. Resultierend aus ähnlicher Giebelhöhe und 22° Neigung wie im Bestandshaus. Auch die Ausrichtung wird wie im Bestand künftig S/N sein.
Nun zum "Problem":
Nach Abzug von Ringanker/Balken denke ich, dass die Fenster (S/N) eine maximale Höhe von 1,70-180m unter der Traufe haben werden. In Verbindung mit dem Dachüberstand befürchte ich, dass die Aussicht eigentlich nur nach unten gerichtet ist. Was schade wäre bei dem eigentlich grandiosen Fernblick. Um den Dachüberstand für die Terrassentür zu überwinden hat unser Bauzeichner eine Gaube in Höhe des Flur eingezeichnet. Ein Zugang zum Garten war und nämlich wichtig.
Ich Stelle mir nun die Frage ob es vielleicht sinnvoll wäre:
1. Die Gaube über die komplette Nordseite zu verlängern um Fensterhöhe zu gewinnen?
2. Den Wandaufbau generell um 2-3? Reihen Ziegel zu erhöhen und somit Fensterhöhe zu gewinnen und ggf. sogar komplett ohne Gaube aufzukommen.
3. 1 und 2 im Plan zu kombinieren um in der Bauphase flexibel agieren zu können. Falls es genehmigt wird.
(Bebauungsplan gibt es keinen, Abstandsflächen sollten in den Szenarien kein weiteres Problem sein.)
Wie denkt ihr darüber, sind die Szenarien überhaupt denkbar?
Dankeschön!



wir sind gerade dabei unsere Garagenaufstockung zu planen. Dieser Aufbau wird dann an das 1.OG des Bestands angegliedert und soll meiner bald 5-Köpfigen Familie genügend Platz auf einer Ebene bieten. Eigentlich waren wir schon fertig zur Abgabe. Nun haben mich aber einige Nachbarn im Zuge der Unterschriften mit ihren "Expertentipps" ins Grübeln gebracht. Hintergrund ist, dass wir im im Neubau einen Kniestock von 2,07m haben werden. Resultierend aus ähnlicher Giebelhöhe und 22° Neigung wie im Bestandshaus. Auch die Ausrichtung wird wie im Bestand künftig S/N sein.
Nun zum "Problem":
Nach Abzug von Ringanker/Balken denke ich, dass die Fenster (S/N) eine maximale Höhe von 1,70-180m unter der Traufe haben werden. In Verbindung mit dem Dachüberstand befürchte ich, dass die Aussicht eigentlich nur nach unten gerichtet ist. Was schade wäre bei dem eigentlich grandiosen Fernblick. Um den Dachüberstand für die Terrassentür zu überwinden hat unser Bauzeichner eine Gaube in Höhe des Flur eingezeichnet. Ein Zugang zum Garten war und nämlich wichtig.
Ich Stelle mir nun die Frage ob es vielleicht sinnvoll wäre:
1. Die Gaube über die komplette Nordseite zu verlängern um Fensterhöhe zu gewinnen?
2. Den Wandaufbau generell um 2-3? Reihen Ziegel zu erhöhen und somit Fensterhöhe zu gewinnen und ggf. sogar komplett ohne Gaube aufzukommen.
3. 1 und 2 im Plan zu kombinieren um in der Bauphase flexibel agieren zu können. Falls es genehmigt wird.
(Bebauungsplan gibt es keinen, Abstandsflächen sollten in den Szenarien kein weiteres Problem sein.)
Wie denkt ihr darüber, sind die Szenarien überhaupt denkbar?
Dankeschön!
H
hanghaus202313.05.24 14:54Gibt denn die Umgebung so hoch zu bauen her? Wie hoch und wie gross haben die Nachbarn gebaut? Ein Luftbild mit mind 100 m Radius kann zur Beurteilung helfen
H
hanghaus202313.05.24 17:42Wenn die Garage keine Abstandregel verletzt, dann kann man mMn mit dem Beispiel des Nachbarn argumentieren. Gibt es einen Katasterauszug mit der betroffenen Nachbarschaft?
@hanghaus2023
Katasterauszug liegt vor. Die entsprechenden Nachbarn haben tatsächlich auch schon unterschrieben.
Ein Nachbar musste mir punktuell 17cm Abstand im Süden übernehmen damit man auf 3 Meter kommt. War aber kein Problem.
Der Bauantrag wäre schon fertig für die Abgabe. Aber die Hinweise der Nachbarn lassen mich zweifeln.
Hast du Erfahrung mit einem Kniestock von 2,07?
Welche Variante 1-3 macht denn am meisten Sinn?
Katasterauszug liegt vor. Die entsprechenden Nachbarn haben tatsächlich auch schon unterschrieben.
Ein Nachbar musste mir punktuell 17cm Abstand im Süden übernehmen damit man auf 3 Meter kommt. War aber kein Problem.
Der Bauantrag wäre schon fertig für die Abgabe. Aber die Hinweise der Nachbarn lassen mich zweifeln.
Hast du Erfahrung mit einem Kniestock von 2,07?
Welche Variante 1-3 macht denn am meisten Sinn?
Ähnliche Themen