Hallo liebe Leute,
ich habe hier schon fleißig gelesen und immer wieder gute Vorschläge gesehen.
Darum möchte ich mein Thema hier auch einmal vorstellen und würde mich über Kritik und Vorschläge freuen.
Wir (zwei Erwachsene und zwei Kinder im Schulalter) haben ein Einfamilienhaus, Baujahr 1966, gekauft und planen gerade die Kernsanierung.
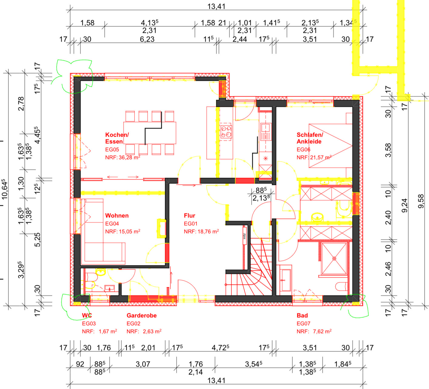
Den angehängten Bildern könnt ihr den aktuellen Planungsstand entnehmen. Die Statik für die geplanten Änderungen wird gerade berechnet.
Gelb ist Abbruch, rot ist Neubau. Wobei euch das vermutlich klar ist. 🙂
Leider steht das Haus nur auf Streifenfundamenten, weswegen anstelle der Wände im EG (Elternbereich), die wir entfernen lassen möchten (gelb), dort Stahlträger eingebaut werden müssen. Kann man vermutlich so machen und im Idealfall können die Auflager über die Seitenwände realisiert werden. Wenn man noch Auflager stehen lassen muss, dann wird es richtig blöd.
Aber vielleicht übersehen wir was und man könnte das alles viel einfacher gestalten.
Im Moment ist geplant, dass die Kinder die beiden großen Giebelzimmer im OG bekommen und entsprechend wird das Bad oben ein “Kinderbad“.
Hat jemand noch gute Vorschläge oder sollten wir so durchziehen?
Vielen Dank und viele Grüße
ktt


ich habe hier schon fleißig gelesen und immer wieder gute Vorschläge gesehen.
Darum möchte ich mein Thema hier auch einmal vorstellen und würde mich über Kritik und Vorschläge freuen.
Wir (zwei Erwachsene und zwei Kinder im Schulalter) haben ein Einfamilienhaus, Baujahr 1966, gekauft und planen gerade die Kernsanierung.
Den angehängten Bildern könnt ihr den aktuellen Planungsstand entnehmen. Die Statik für die geplanten Änderungen wird gerade berechnet.
Gelb ist Abbruch, rot ist Neubau. Wobei euch das vermutlich klar ist. 🙂
Leider steht das Haus nur auf Streifenfundamenten, weswegen anstelle der Wände im EG (Elternbereich), die wir entfernen lassen möchten (gelb), dort Stahlträger eingebaut werden müssen. Kann man vermutlich so machen und im Idealfall können die Auflager über die Seitenwände realisiert werden. Wenn man noch Auflager stehen lassen muss, dann wird es richtig blöd.
Aber vielleicht übersehen wir was und man könnte das alles viel einfacher gestalten.
Im Moment ist geplant, dass die Kinder die beiden großen Giebelzimmer im OG bekommen und entsprechend wird das Bad oben ein “Kinderbad“.
Hat jemand noch gute Vorschläge oder sollten wir so durchziehen?
Vielen Dank und viele Grüße
ktt
K
kleinefrage11.09.25 18:53Hallo ktt,
wie schaut euer Grundriss nun aus? Seid ihr dabei geblieben oder habt ihr noch Änderungen vorgenommen?
Ich könnte mir diesen Grundriss für uns auch in etwa so vorstellen, mit schön grossem Eingangsbereich!
Grüsse
wie schaut euer Grundriss nun aus? Seid ihr dabei geblieben oder habt ihr noch Änderungen vorgenommen?
Ich könnte mir diesen Grundriss für uns auch in etwa so vorstellen, mit schön grossem Eingangsbereich!
Grüsse
Ähnliche Themen