Keller aus WU Beton oder Poroton?

4,30 Stern(e) 3 Votes
Zuletzt aktualisiert 23.11.2025
Sie befinden sich auf der Seite 2 der Diskussion zum Thema: Keller aus WU Beton oder Poroton?
>> Zum 1. Beitrag <<

R

Robert1995

Hallo und erstmal danke für die Antworten.
Ich bin aktuell nämlich etwas Hilflos.

Laut Bodengutachten handelt es sich wohl um aufstauendes Sickerwasser.

Die Rohbaufirma wurde nach Ausschreibung vom Bauträger gesucht und vermutlich wurde dort der günstigste genommen, so die Vermutung.
Dieser kann entweder keine Weiße Wanne liefern oder meint es wäre zeitlich nicht möglich. Ich vermute aber auch stark, das es zu spät bestellt wurde.

Aktuell wurde uns noch keine Gutschrift zwecks des „minderwertigeren Kellers“ angeboten, ehr war die Aussage das die Kosten des Poroton Kellers teurer und besser wären.
Der Energiewert wäre wohl mit beiden machbar gewesen, laut Aussage des Bauträgers.

Laut Vertrag wurde aber eine Weiße Wanne vereinbart, jedoch nach Aussage des Bauträgers nur für die Wände, die sich im Erdreich befinden.
Nun kam mir eine Frage, ist es denn überhaupt sinnvoll eine Halben Keller aus WU Beton zu bauen und den Rest aus Poroton Steinen? Zwecks Ausdehnung und Arbeiten des Materials?

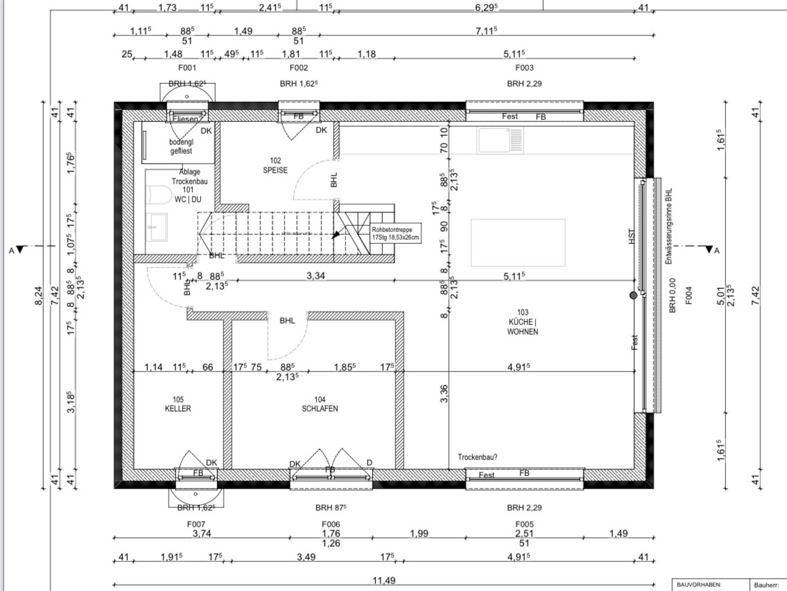
Im Anhang sende ich euch die Pläne mit die ich habe. Ich hoffe ihr könnt damit etwas anfangen.
Architektenzeichnung einer Hausfassade mit Satteldach, Fenstern F201 und F101, Fassadenputz.

Technischer Grundriss eines Hauses mit Satteldach, Fenstern F105/F104/F202 und Maßen.

Querschnitt durch ein zweistöckiges Haus mit Dachgeschoss, Treppe und Fenstern.

Grundriss eines Hauses: Küche/Wohnen, Schlafen, Keller, Speise und Treppe.
 
G

Gerddieter

Ja ist doch super- dann nehm doch die halbe weisse Wanne !

Sag uns mal wer da jetzt eigentlich baut - GU-GÜ-Bauträger-Du selber als Ausschreiber?
Wie @11ant schon schrieb- davon hängt sehr viel ab auf was und vor wem du überhaupt Ansprüche hast....
 
H

hanghaus2023

Laut Bodengutachten handelt es sich wohl um aufstauendes Sickerwasser.
Davon kannst Du am Hang ausgehen. Da bist Du mit der WW auf der sicheren Seite.

Die Rohbaufirma wurde nach Ausschreibung vom Bauträger gesucht und vermutlich wurde dort der günstigste genommen, so die Vermutung.
Dieser kann entweder keine Weiße Wanne liefern oder meint es wäre zeitlich nicht möglich. Ich vermute aber auch stark, das es zu spät bestellt wurde.
Du kannst davon ausgehen, das die WW teurer ist und im Billigangebot der Baufirma nicht enthalten ist. Die Differenz hat der BT gern als Gewinn.

Aktuell wurde uns noch keine Gutschrift zwecks des „minderwertigeren Kellers“ angeboten, ehr war die Aussage das die Kosten des Poroton Kellers teurer und besser wären.
Das würde ich als Unternehmer auch behaupten. Hier verlangt man ein Minderkosten Nachtrag der prüfbar ist.

Der Energiewert wäre wohl mit beiden machbar gewesen, laut Aussage des Bauträgers.
Technisch ist das leicht möglich.

Laut Vertrag wurde aber eine Weiße Wanne vereinbart, jedoch nach Aussage des Bauträgers nur für die Wände, die sich im Erdreich befinden.
Nun kam mir eine Frage, ist es denn überhaupt sinnvoll eine Halben Keller aus WU Beton zu bauen und den Rest aus Poroton Steinen? Zwecks Ausdehnung und Arbeiten des Materials?
Wenn das so vertraglich festgelegt ist, dann spricht aus technischer Sicht nix dagegen. Das ist Stand der Technik. Ob sich das der Unternehmer aus Gewährleistungsgründen antut kann bezweifelt werden.

Im Anhang sende ich euch die Pläne mit die ich habe. Ich hoffe ihr könnt damit etwas anfangen.
Danke das hilft.
 
Zuletzt aktualisiert 23.11.2025
Im Forum Keller gibt es 359 Themen mit insgesamt 3732 Beiträgen


Ähnliche Themen zu Keller aus WU Beton oder Poroton?
Nr.ErgebnisBeiträge
1Statik - Haus mit Keller wegen Dämmung Poroton Steine verschieben 11
2Poroton T14 oder Porenbeton Klimanorm PP2 - Seite 211
3Poroton oder Kalk Sand Stein 43
4Poroton (36,5 cm) versus Blähtonmassivwand (41 cm) 74
5Poroton oder Ytong - Dämmwerte usw? 20
6Porenbeton oder Poroton oder Kalksandstein? 10
7Poroton S9 oder T9 Erfahrungen 24
817,5 Poroton + 16 WDVS oder 36,5 Porenbeton - Seite 319
9Kfw70 mit poroton und brauchwasserWP + Gas + dezentr. Lüftung 13
10Poroton Ziegel gefüllt oder ungefüllt? 18
11Massivhaus: Welcher Stein? Poroton, Liapor / Blähton, Ytong? 25
12T8 Poroton nur wesentlich besser als T12 bei Heizkosten? 14
13Poroton Ziegelwände oder Liaporwände FCN 15
14Einfamilienhaus - Richtige Wahl Poroton? 39
15Welche Bauträger bauen mit POROTON in SH 55
16Thermoziegel / Poroton und Isolierklinker - Ist das optimal? - Seite 221
17Porenbeton oder Poroton für Einfamilienhaus 19
18Poroton T12 Steine Außenwand 18
19Innenwände aus Poroton oder Kalksandstein? 18
20Außenwände Mauern 24cm Hochlochziegel: wdvs oder poroton T7? 29

Oben