Hallo Allerseits,
mitte des Jahres habe ich ein Grundstück erworben, auf der eine wild gebaute Holzhütte stand, die ich bereits abgerissen und entsorgt habe.
Anfang Dezember war ich so gut wie durch mit der Planung, und letzte Woche habe meiner Familie bei einem vorweihnachtlichen Treffen mal die Pläne gezeigt. Natürlich waren nicht alle 12 Erwachsenen meiner Meinung. Leider bin ich im Kopf jetzt schon so festgefahren auf meine Planung, und es fällt mir schwer jetzt nochmal "neu" zu denken. Und hoffe auf Ideen und Inspirationen in diesem Forum.
Der Ausblick auf die Seen ist einmalig, wir sind im Sommer alles mal mit einer Drohne abgeflogen, im Winter hat man hier natürlch mehr Ausblick auf die Seen!
Den Fragenkatalog habe ich nach besten Wissen ausgefüllt.
Bebauungsplan/Einschränkungen
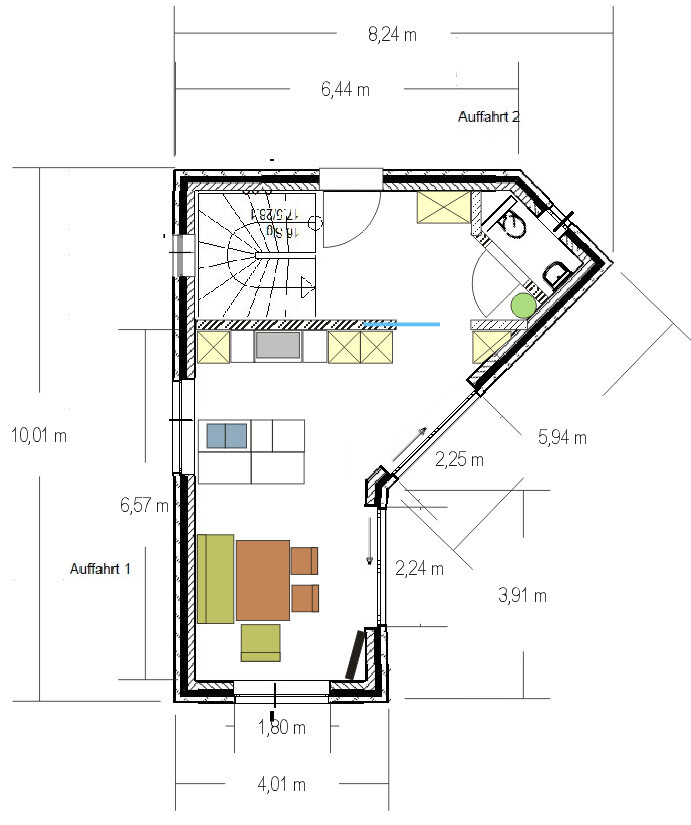
Die Planung der Küche inkl. Wohnbereich + Fenster (Größe, Anzahl, Positionen).Küche/ Wohnbereich sollen offen und gemütlich sein.


mitte des Jahres habe ich ein Grundstück erworben, auf der eine wild gebaute Holzhütte stand, die ich bereits abgerissen und entsorgt habe.
Anfang Dezember war ich so gut wie durch mit der Planung, und letzte Woche habe meiner Familie bei einem vorweihnachtlichen Treffen mal die Pläne gezeigt. Natürlich waren nicht alle 12 Erwachsenen meiner Meinung. Leider bin ich im Kopf jetzt schon so festgefahren auf meine Planung, und es fällt mir schwer jetzt nochmal "neu" zu denken. Und hoffe auf Ideen und Inspirationen in diesem Forum.
Der Ausblick auf die Seen ist einmalig, wir sind im Sommer alles mal mit einer Drohne abgeflogen, im Winter hat man hier natürlch mehr Ausblick auf die Seen!
Den Fragenkatalog habe ich nach besten Wissen ausgefüllt.
Bebauungsplan/Einschränkungen
- Größe des Grundstücks: 640qm
- Hang: kein Hang
- Grundflächenzahl: 0,09
- Geschossflächenzahl: 0,13
- Baufenster, Baulinie und -grenze: 3 Meter zu den Nachbargrundstücken, und der Waldschutzstreifen ist zu beachten, 55qm Grundbaufläche, Stellplatz (nur Carport, keine Garagen) außerhalb der überbaubaren Flächen 20qm
- Randbebauung: siehe Lageplan
- Anzahl Stellplatz: 1
- Geschossigkeit: 1,5
- Dachform: Satteldach, Pultdach, Nachbarn haben auch schon Flachdächer gebaut, unter der Berücksichtigung der Geschossigkeit musste die Decke bei einem drittel der Höhe auf 2,30 abgesenkt werden.
- Maximale Höhen/Begrenzungen: 8m
- weitere Vorgaben: Gebäudesockel 0,35m darf nicht überschritten werden
- Stilrichtung, Dachform, Gebäudetyp: Pultdach
- Keller, Geschosse: Keller +1,5 Geschosse
- Anzahl der Personen, Alter: 1 Person 42
- Raumbedarf im EG, OG: ca. 60qm
- Nutzung: zum Wohnen
- Schlafgäste pro Jahr: 25 (1-2 Personen zeitgleich exkl.mir)
- offene oder geschlossene Architektur: offene
- konservativ oder moderne Bauweise: moderrn
- offene Küche, Kochinsel: vorzugsweise Kochinsel
- Anzahl Essplätze: 2-4
- Kamin: nein
- Musik/Stereowand: nein
- Balkon, Dachterrasse: nein
- Garage, Carport: nein, vorerst nicht geplant
- Nutzgarten, Treibhaus: im kleinen Stil Gemüseanbau
- weitere Wünsche: eine Wohnküche ist wünschenswert (zur Info: für die Küche habe ich 20-25 TSD € eingeplant), wenn ich im EG noch irgendwo einen Fernseher unterbringen könnte wäre das ein Pluspunkt, aber kein Muss. Die bodentiefen Fenster werden alles Schiebetüren, da ich einen ebenerdigen Zugang zu meiner Terrasse bevorzuge. Diese wird sich noch etwas weiter in den Süden hinziehen, nicht wie im Moment eingezeichnet. Im DG plane ich ein Sitzfenster, im EG wäre ich auch nicht abgebeigt.
- Von wem stammt die Planung: von mir , und meine Familie (Onkel, Tanten geben auch gerne Ihren “Senf dazu 🙂)
- Planer eines Bauunternehmens: ich habe einen Zeichner, der auch schon lange mit meinem Bauunternehmer (ein sehr guter Freund von mir, der auch in dieser Siedlung genaut hat) zusamenarbeitet
- Was gefällt besonders? Warum?: Die Lage ist herausragend, da es mitten im Grünen ist, und man im DG Blick auf 2 Seen hat, im Winter auch im EG außerdem ist die Lage der kleinen Siedlung (ein ehemaliges Wochendhausgebiet) auf einem Berg in unserer Kleinstadt, und von viel befahrenen Straßen weit entfernt
- Was gefällt nicht? Warum?: ich kann nicht unbedingt sagen, dass es nicht gefällt, aber es ist durch das sehr eingeschränkte Baufeld und durch das Dadurch vorgegebene Baufenster kein 0815 Haus, der Grundriss ist ein unikat.
- Preisschätzung lt Architekt/Planer: 220.000€ (ohne Küche)
- Pers. Preislimit fürs Haus, inkl Ausstattung:280.000
- favorisierte Heiztechnik: Luft-Wasser-Wärmepumpe , Energieeffizenzklasse 55, mein Onkel ist mein Energieeffizienzberater
- könnt Ihr verzichten: Solar, Carport
- könnt Ihr nicht verzichten: Küche mit Essplatz
- Standardentwurf vom Planer: kein Standard, da Baufeld eingeschränkt, maximale bebaubare Grundläche ist 55 qm, und 1,5 geschossig
Die Planung der Küche inkl. Wohnbereich + Fenster (Größe, Anzahl, Positionen).Küche/ Wohnbereich sollen offen und gemütlich sein.
Wollte den Flur auch noch mit einer halbhohen Wand abtrennen,
da könnte ein Schuhregal rein, und man hätte eine Ablage.
Wo genau und wie soll die Treppe den Raum trennen?
Hatte im letzten Entwurf ein Velux Fenster in die Schräge, auf der Südseite, aber die sind nicht gerade günstig, deswegen habe ich das wieder rausgenommen.
Denke mein Gedanke einer Wohnküche ist sehr minimalistisch, mir reicht da ein Tresen, an dem 4 Leute Platz nehmen können, also eine Bank und gegenüber 2-3 Hocker wären für mich wohnlich genug. Es ist nicht so, dass die Bank ein sofa von dem ich TV schaue ersetzen muss.
da könnte ein Schuhregal rein, und man hätte eine Ablage.
Wo genau und wie soll die Treppe den Raum trennen?
Hatte im letzten Entwurf ein Velux Fenster in die Schräge, auf der Südseite, aber die sind nicht gerade günstig, deswegen habe ich das wieder rausgenommen.
Denke mein Gedanke einer Wohnküche ist sehr minimalistisch, mir reicht da ein Tresen, an dem 4 Leute Platz nehmen können, also eine Bank und gegenüber 2-3 Hocker wären für mich wohnlich genug. Es ist nicht so, dass die Bank ein sofa von dem ich TV schaue ersetzen muss.
Also, Wenn Du von Wohnküche sprichst, dann meinst Du jetzt nicht gerade den großen Esstisch für 12 mit Kochinsel, sondern ein Tresen, wo Deine Gäste bzw Du sitzen kannst.
Ein Stehtisch quasi mit Bank u d 2-3 Hockern. Oder was meinst Du mit...
Und für diesen Minimalismus planst Du 20/25000 ein?
Und das mit dem Sofa? Kerstins Frage scheint hier eine kleine Blockade auszulösen: brauchst Du nun ein Chillsofa oder nicht?
Das TV-Schauen und wie ist ja platztechnisch auch noch nicht erwähnt. TV gern, aber fürs Kochen? relaxen?
Ich finde solche Projekte immer gut und interessant, aber mit den Worten der Standardfamilie „und im offenen Wohnzimmer gern ne Ecke, wo das Kind spielen und ich bügeln kann“ hätte ich ganz und gar nichts 😉
Ein Stehtisch quasi mit Bank u d 2-3 Hockern. Oder was meinst Du mit...
Melanie L. schrieb:
mir reicht da ein Tresen, an dem 4 Leute Platz nehmen können, also eine Bank und gegenüber 2-3 Hocker wären für mich wohnlich genug. Es ist nicht so, dass die Bank ein Sofa von dem ich TV schaue ersetzen muss.
Und für diesen Minimalismus planst Du 20/25000 ein?
Und das mit dem Sofa? Kerstins Frage scheint hier eine kleine Blockade auszulösen: brauchst Du nun ein Chillsofa oder nicht?
Das TV-Schauen und wie ist ja platztechnisch auch noch nicht erwähnt. TV gern, aber fürs Kochen? relaxen?
Ich finde solche Projekte immer gut und interessant, aber mit den Worten der Standardfamilie „und im offenen Wohnzimmer gern ne Ecke, wo das Kind spielen und ich bügeln kann“ hätte ich ganz und gar nichts 😉
@Melanie L. jetzt mal so, wie ich es machen würde 😉.
Untergeschoss ... HAR Richtung Straße .. und man sieht schon, die Treppe ist gewandert.

Im EG einen Eingangsbereich mit Garderobenschrank, WC über dem HAR, kleine Dekonische und Trennwand zum Wohnraum mit Glasschiebetür

Küche mit der Kochfeldzeile in der Hochschrankwand und eine schöne Vorbereitungsinsel. Hochschränke von links .. erhöhte Geschirrspüler, dann Kochfeldplatz, dann Backofen-Hochschrank und zum Abschluss Kühlschrank. In der Ecke rechts evtl. Sonderanpassung für Deko oder selten benutztes.
Dann einen Sitzplatz mit einem modernem Küchensofa und Küchensessel, Tisch ca. 100x150 cm, TV planunten rechts in der Ecke.
Die Terrassenzugänge würde ich breiter als 176 cm machen, sonst wird auch Schiebetür nicht gut gehen.
Und dann das OG:

Bad wieder über dem HAR .. Dusche in der Ecke bodeneben gefliest mit Trennwand und geteilter Glastür, die vor allem auch nach innen aufgeht, damit nicht der Bereich vor der Dusche naßgetropft wird.
Dazu WC, Kommode unter dem Fenster, breiter Waschtisch, hier evtl. einen Waschtrockner integriert (dann muss man die Wäsche nicht vom OG in den Keller transportieren und zurück).
Planunten das "Masterschlafzimmer" mit einem Bett von 150x210, also Matratze 140x200 plus Bettrahmen. 200 cm Schrank unter der Schräge angepasst.
Gästezimmer ... da fällt mir auf, evtl. lieber Schiebetür, dann kann das Bett und 40 cm tiefer Schrank vermutlich besser in dem Raum leben.
Im Vorraum an der Wand zum Bad noch etwas Stauraum .. Fenster als Sitzfenster und nach planoben noch eine Kommode unterhalb der Fensterbrüstung.
Untergeschoss ... HAR Richtung Straße .. und man sieht schon, die Treppe ist gewandert.
Im EG einen Eingangsbereich mit Garderobenschrank, WC über dem HAR, kleine Dekonische und Trennwand zum Wohnraum mit Glasschiebetür
Küche mit der Kochfeldzeile in der Hochschrankwand und eine schöne Vorbereitungsinsel. Hochschränke von links .. erhöhte Geschirrspüler, dann Kochfeldplatz, dann Backofen-Hochschrank und zum Abschluss Kühlschrank. In der Ecke rechts evtl. Sonderanpassung für Deko oder selten benutztes.
Dann einen Sitzplatz mit einem modernem Küchensofa und Küchensessel, Tisch ca. 100x150 cm, TV planunten rechts in der Ecke.
Die Terrassenzugänge würde ich breiter als 176 cm machen, sonst wird auch Schiebetür nicht gut gehen.
Und dann das OG:
Bad wieder über dem HAR .. Dusche in der Ecke bodeneben gefliest mit Trennwand und geteilter Glastür, die vor allem auch nach innen aufgeht, damit nicht der Bereich vor der Dusche naßgetropft wird.
Dazu WC, Kommode unter dem Fenster, breiter Waschtisch, hier evtl. einen Waschtrockner integriert (dann muss man die Wäsche nicht vom OG in den Keller transportieren und zurück).
Planunten das "Masterschlafzimmer" mit einem Bett von 150x210, also Matratze 140x200 plus Bettrahmen. 200 cm Schrank unter der Schräge angepasst.
Gästezimmer ... da fällt mir auf, evtl. lieber Schiebetür, dann kann das Bett und 40 cm tiefer Schrank vermutlich besser in dem Raum leben.
Im Vorraum an der Wand zum Bad noch etwas Stauraum .. Fenster als Sitzfenster und nach planoben noch eine Kommode unterhalb der Fensterbrüstung.
kbt09 schrieb:
Von wo erfolgt die Hauserschließung, also Versorgungsmedien? Von Osten, Lageplan planrechts?@ypg ... hatte ich auch schon gefragt 😉, aufgrund der Straßen-Einzeichnung habe ich planrechts angenommen:weshalb ich den HAR ja auch nach rechts gesetzt habe, damit Anschlüsse nicht überbaut werden ... wie z. B. durch die beschriftete Auffahrt.
Ähnliche Themen