Hallo Liebe Gemeinde,
ich würde gerne eure Meinungen zu dem Grundriss hören. Vllt könnt ihr mit euren Ideen mir Helfen.
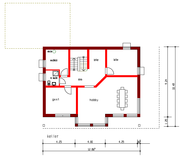
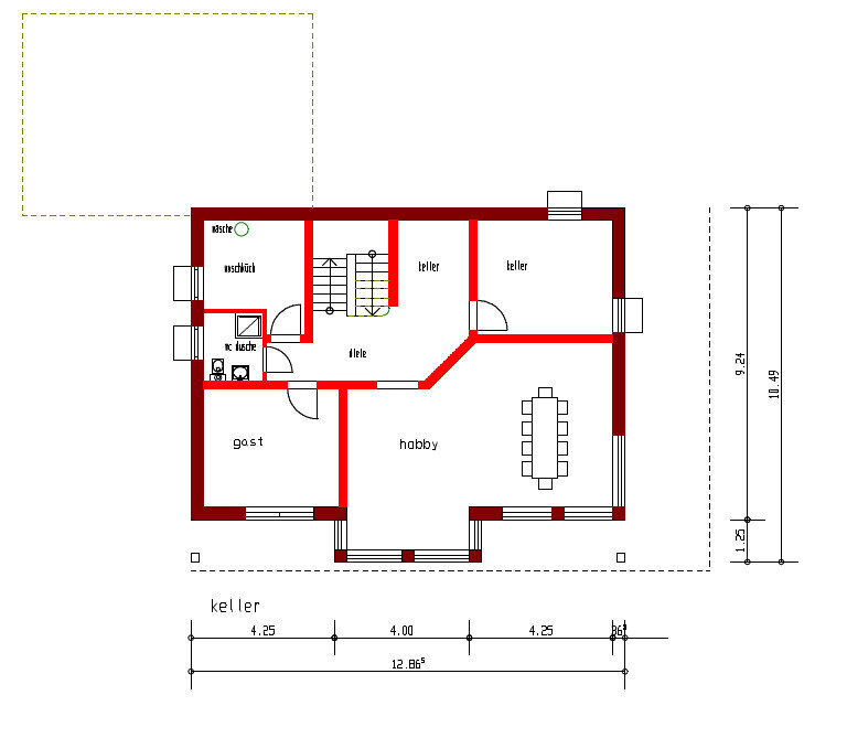
Das Grundstück ist ein Hanggrundstück. Der Keller schaut später nach vorne komplett aus der Erde so das man vorne raus gehen kann. Die Mauer neben der Garage dient zur Hangabstützung. Die Einfahrt und Zugang zum Haus liegt alles auf einer Höhe da die Straße nach rechts verlaufend auch Gefälle hat.
LG Horsti




ich würde gerne eure Meinungen zu dem Grundriss hören. Vllt könnt ihr mit euren Ideen mir Helfen.
Das Grundstück ist ein Hanggrundstück. Der Keller schaut später nach vorne komplett aus der Erde so das man vorne raus gehen kann. Die Mauer neben der Garage dient zur Hangabstützung. Die Einfahrt und Zugang zum Haus liegt alles auf einer Höhe da die Straße nach rechts verlaufend auch Gefälle hat.
LG Horsti
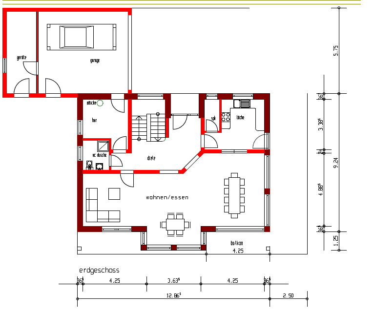
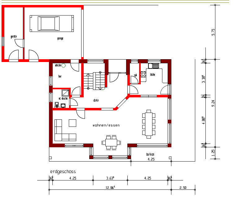
Das wird ja ein recht grosszügiges Haus - allerdings:
Wo soll die Garderobe hin?
Wozu soll diese mickrige Speisekammer Genutztt werden? In der kann man sich ja kaum um die eigene Achse drehen, und nur die Rückwand Genutzt werden. Und die Küche ist ja auch sowas von mickrig - ihr kocht wohl nicht besonders gerne?
Dafür könnt ihr im Wohn-Esszimmer Tanzstunden geben - da würde ich mir die Raumeinteilung nochmal gründlich durch den Kopf gehen lassen. Und die vielen Türen? Ist das schon durchdacht? Lieber eine grosszügige Doppeltüre als alle Wände so durchlöchert.
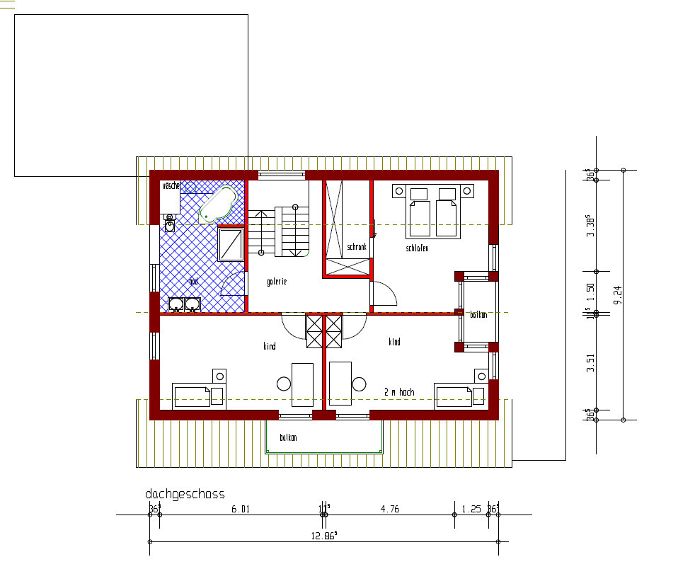
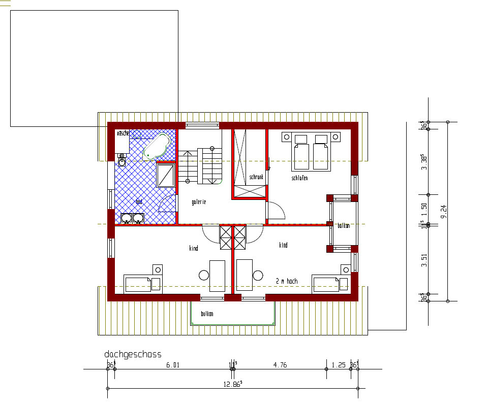
Auch das Obergeschoss ist mh - den Kinderzimmern würde ich deutlich größere Fenster gönnen und eure Ankleide bis zur Treppe verbreitern. In eurem Schlafzimmer kann man noch knapp eine kommode stellen.
Alles in allem - enorm viele qm - aber schlechte zu nutzen.
Wo soll die Garderobe hin?
Wozu soll diese mickrige Speisekammer Genutztt werden? In der kann man sich ja kaum um die eigene Achse drehen, und nur die Rückwand Genutzt werden. Und die Küche ist ja auch sowas von mickrig - ihr kocht wohl nicht besonders gerne?
Dafür könnt ihr im Wohn-Esszimmer Tanzstunden geben - da würde ich mir die Raumeinteilung nochmal gründlich durch den Kopf gehen lassen. Und die vielen Türen? Ist das schon durchdacht? Lieber eine grosszügige Doppeltüre als alle Wände so durchlöchert.
Auch das Obergeschoss ist mh - den Kinderzimmern würde ich deutlich größere Fenster gönnen und eure Ankleide bis zur Treppe verbreitern. In eurem Schlafzimmer kann man noch knapp eine kommode stellen.
Alles in allem - enorm viele qm - aber schlechte zu nutzen.
Nofret schrieb:
Ich würde die Küche quasi ins Wohnzimmer verlegen - also Planlinks unten...,Das ist mir beim Betrachten auch in den Sinn gekommen, böte auch mehr Platz. Dann ggf. anstatt der Küche ein Gästezimmer, was allerdings die Frage wohin mit Garderobe noch nicht löst.
Gruß Sigi
Ähnliche Themen