ᐅ Hausentwurf Scheunenhaus an Südhang
Erstellt am: 01.04.17 07:59
K
Karlstraße01.04.17 07:59Guten Morgen,
wir beabsichtigen am Südhang zu bauen. Das Grundstück bietet einen uneingeschränkten Fernblick. Hier ein Entwurf mit dem Architekten, der allerdings zu groß/zu teuer ist (600 k€) und wir daher noch mal verkleinern müssen. Ich würde gern von Euch generell hören was Ihr davon haltet. Anmerkung: Im Schlafzimmer oben befindet sich Platz um auch noch ein Kleinkindbett/Babybett zu stellen, das wird anfangs wohl notwendig sein.
Größe des Grundstücks: 850qm am Hang
Geschossigkeit: UG, EG, DG
Dachform: Satteldacb
Stilrichtung: modern, einfach "Barn House"
Ausrichtung; Süd (die Pläne sind genordet)
Anzahl der Personen, Alter: 2x 30 Jahre, zwei Kinder im Kleinkindalter
Raumbedarf im EG, OG
Büro: Homeoffice
Schlafgäste pro Jahr: 1x pro Monat eine Nacht im Schnitt
offene oder geschlossene Architektur: Sehr offen und modern gewünscht
Anzahl Essplätze: 8 mit Kochinsel, da wir gerne mit Freunden kochen und sitzen
Kamin, oben kleine Loggia am Schlafzimmer und Carport gewünscht
Von wem stammt die Planung: Architekturbüro
Was gefällt besonders? Gemütliche Sitzecke und die Offenheit durch die hohe Decke im EG, die Lösung im Schlafzimmer einen phänomenalen Blick zu haben und Ankleide/Schlafzimmer zu trennen, das Sitzfenster im Wohnzimmer
Was gefällt nicht? Bei der Außenansicht sind wir uns nicht so sicher, irgendwie sind wir hier noch unschlüssig. Es soll verputzt werden, aber evtl. komplett grau oder auch mit Holzverschalung in Teilen gearbeitet werden.
Preisschätzung lt Architekt/Planer: 600 k€ mit allem (außer Grundstück, das ist unser)
Persönliches Preislimit fürs Haus, inkl Ausstattung: 500 k€
favorisierte Heiztechnik: Erdwärmepumpe oder ganz einfach Gas
Das Haus soll noch verkleinert werden, in dem der Gang oben im Wohnzimmer wegfällt und somit das Haus um ca. 1,5 m schmaler wird. Im UG wird der Windfang abgeschnitten und die Terrasse kommt dann nicht mehr auf das UG sondern direkt auf Erde.
Meine Frage an Euch:
Habt ihr weitere Ideen zur Einsparung hinsichtlich des Grundrisses?
Ideen generell zur Art des Grundrisses, was würdet ihr ändern?
Das Bild zeigt den Fernblick beim Nachbarn.

wir beabsichtigen am Südhang zu bauen. Das Grundstück bietet einen uneingeschränkten Fernblick. Hier ein Entwurf mit dem Architekten, der allerdings zu groß/zu teuer ist (600 k€) und wir daher noch mal verkleinern müssen. Ich würde gern von Euch generell hören was Ihr davon haltet. Anmerkung: Im Schlafzimmer oben befindet sich Platz um auch noch ein Kleinkindbett/Babybett zu stellen, das wird anfangs wohl notwendig sein.
Größe des Grundstücks: 850qm am Hang
Geschossigkeit: UG, EG, DG
Dachform: Satteldacb
Stilrichtung: modern, einfach "Barn House"
Ausrichtung; Süd (die Pläne sind genordet)
Anzahl der Personen, Alter: 2x 30 Jahre, zwei Kinder im Kleinkindalter
Raumbedarf im EG, OG
Büro: Homeoffice
Schlafgäste pro Jahr: 1x pro Monat eine Nacht im Schnitt
offene oder geschlossene Architektur: Sehr offen und modern gewünscht
Anzahl Essplätze: 8 mit Kochinsel, da wir gerne mit Freunden kochen und sitzen
Kamin, oben kleine Loggia am Schlafzimmer und Carport gewünscht
Von wem stammt die Planung: Architekturbüro
Was gefällt besonders? Gemütliche Sitzecke und die Offenheit durch die hohe Decke im EG, die Lösung im Schlafzimmer einen phänomenalen Blick zu haben und Ankleide/Schlafzimmer zu trennen, das Sitzfenster im Wohnzimmer
Was gefällt nicht? Bei der Außenansicht sind wir uns nicht so sicher, irgendwie sind wir hier noch unschlüssig. Es soll verputzt werden, aber evtl. komplett grau oder auch mit Holzverschalung in Teilen gearbeitet werden.
Preisschätzung lt Architekt/Planer: 600 k€ mit allem (außer Grundstück, das ist unser)
Persönliches Preislimit fürs Haus, inkl Ausstattung: 500 k€
favorisierte Heiztechnik: Erdwärmepumpe oder ganz einfach Gas
Das Haus soll noch verkleinert werden, in dem der Gang oben im Wohnzimmer wegfällt und somit das Haus um ca. 1,5 m schmaler wird. Im UG wird der Windfang abgeschnitten und die Terrasse kommt dann nicht mehr auf das UG sondern direkt auf Erde.
Meine Frage an Euch:
Habt ihr weitere Ideen zur Einsparung hinsichtlich des Grundrisses?
Ideen generell zur Art des Grundrisses, was würdet ihr ändern?
Das Bild zeigt den Fernblick beim Nachbarn.
R
RobsonMKK01.04.17 08:57Geht das auch als JPEG?
K
Karlstraße01.04.17 12:34Einfach so ein Überdruckventil zu öffnen und Baukosten abzulassen bis sie im Budget liegen, das sehe ich nicht.
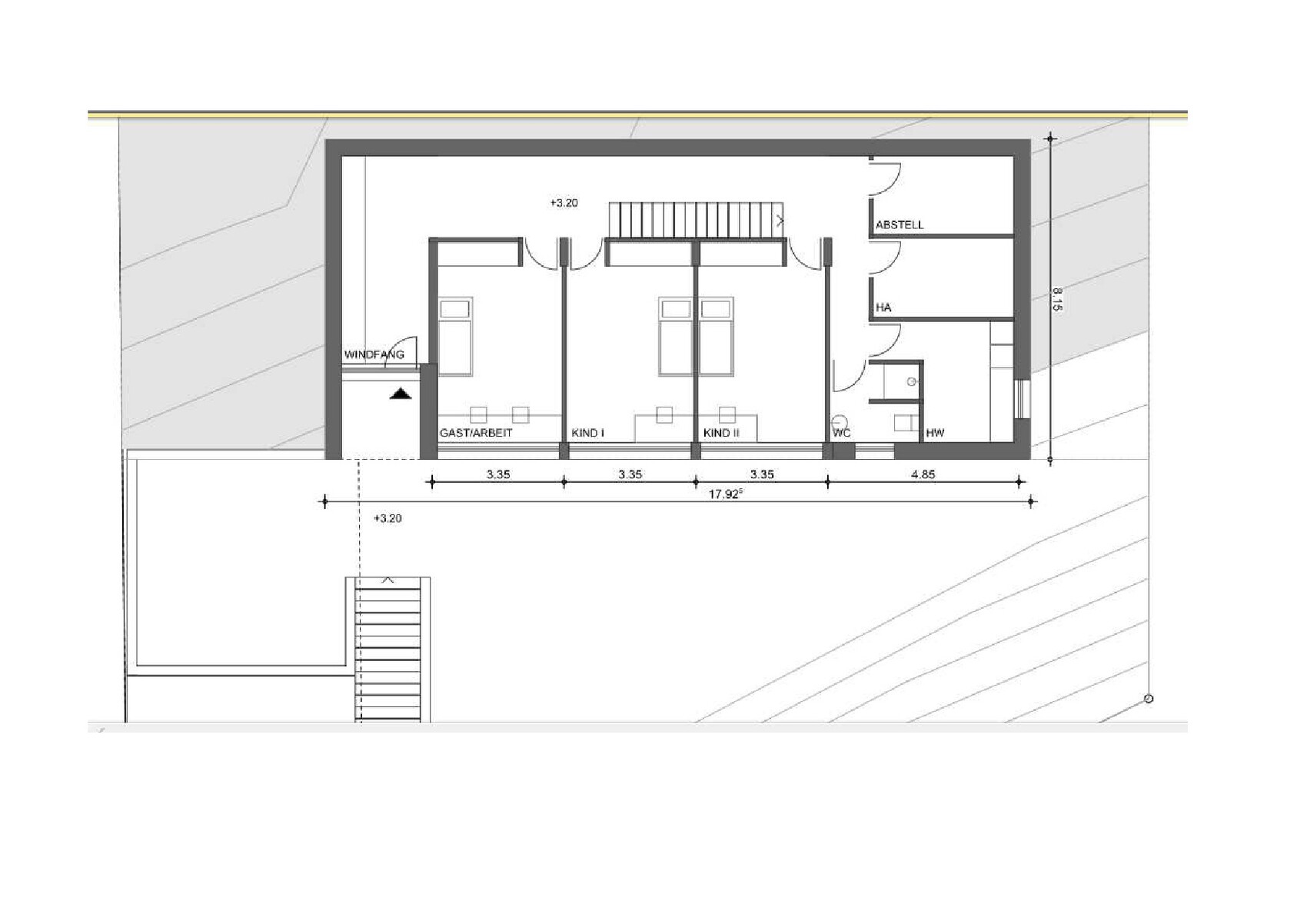
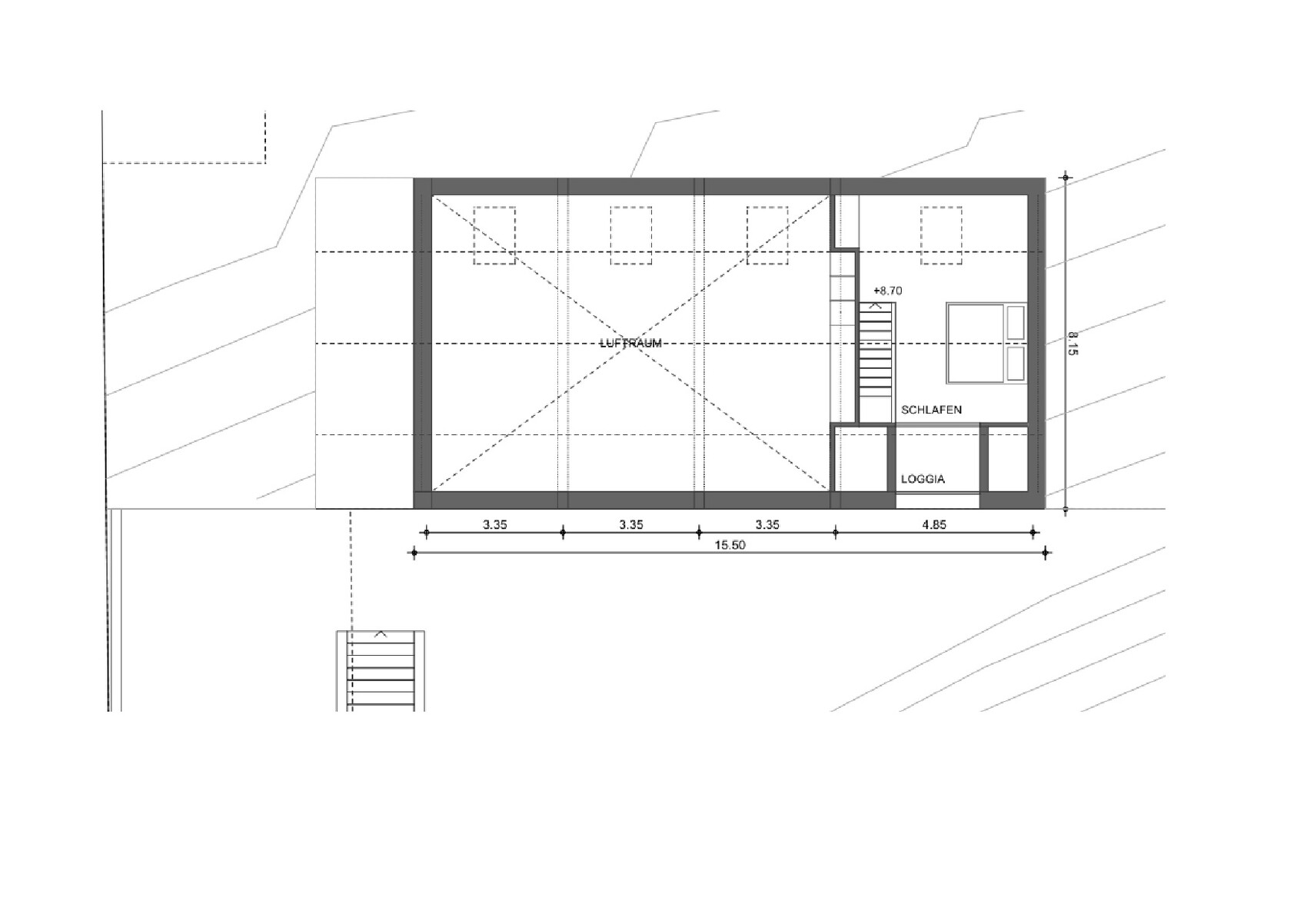
Den Windfang weglassen: wo geht man dann ´rein - durchs Arbeitszimmer oder wo das WC gezeichnet ist ?; den Gang weglassen: welchen (?)
Kinder im Kleinkindalter meilenweit vom Elternschlafzimmer entfernt, wenn sie größer sind hätten sie vielleicht auch mal Freude an der Mitnutzung der Loggia, das Bad auf der Ebene wo weder die Eltern noch die Kinder schlafen, HAR / Hauswirtschaftsraum m.E. in der Lage genau "verkehrt herum": das ist in meinen Augen ein schicker bewohnbarer Fernblick, aber kein (auch) praktisches Haus (außer daß man von den langen Wegen fit bleibt).
Mit den besagten Änderungen sind die Grundrisse eher eine Verständnishilfe für die Ansichtszeichnung, taugen zur Vorstellung der Raumanordnung aber weniger.
Das ist schlecht: bei einem so konstruktivistischen Entwurf ist das ein zentraler Punkt, und entsprechend ungeeignet, nachrangig entschieden zu werden. Hat der Takt von Dreimeterfünfunddreißig irgendeinen Bezug ?
Im übrigen: der Unterschied zwischen verputzt und grau holzverschalt dürfte schwerer wiegen als den Windfang (und oben einen Gang) wegzunehmen oder nicht.
https://www.instagram.com/11antgmxde/
https://www.linkedin.com/company/bauen-jetzt/
Den Windfang weglassen: wo geht man dann ´rein - durchs Arbeitszimmer oder wo das WC gezeichnet ist ?; den Gang weglassen: welchen (?)
Kinder im Kleinkindalter meilenweit vom Elternschlafzimmer entfernt, wenn sie größer sind hätten sie vielleicht auch mal Freude an der Mitnutzung der Loggia, das Bad auf der Ebene wo weder die Eltern noch die Kinder schlafen, HAR / Hauswirtschaftsraum m.E. in der Lage genau "verkehrt herum": das ist in meinen Augen ein schicker bewohnbarer Fernblick, aber kein (auch) praktisches Haus (außer daß man von den langen Wegen fit bleibt).
Mit den besagten Änderungen sind die Grundrisse eher eine Verständnishilfe für die Ansichtszeichnung, taugen zur Vorstellung der Raumanordnung aber weniger.
Karlstraße schrieb:
Bei der Außenansicht sind wir uns nicht so sicher, irgendwie sind wir hier noch unschlüssig.
Das ist schlecht: bei einem so konstruktivistischen Entwurf ist das ein zentraler Punkt, und entsprechend ungeeignet, nachrangig entschieden zu werden. Hat der Takt von Dreimeterfünfunddreißig irgendeinen Bezug ?
Im übrigen: der Unterschied zwischen verputzt und grau holzverschalt dürfte schwerer wiegen als den Windfang (und oben einen Gang) wegzunehmen oder nicht.
https://www.instagram.com/11antgmxde/
https://www.linkedin.com/company/bauen-jetzt/
K
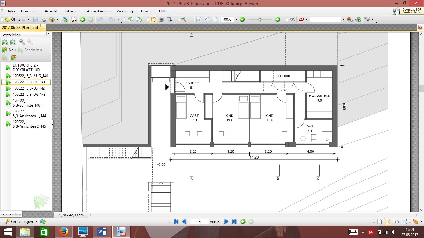
Karlstraße27.06.17 20:07Hallo zusammen,
hier ein Update der Hauspläne. Im DG ist nur noch eine Empore zum Spielen/Faulenzen für die Kinder und uns mit Ausblick. Das Raumprogramm wurde verkleinert, wir liegen am Ende bei 920m3 inklusive Doppelcarport, aber eben auch bedingt durch die hohen offenen Decken.
Ideen, Vorschlägen Anmerkungen gerne erwünscht!!




hier ein Update der Hauspläne. Im DG ist nur noch eine Empore zum Spielen/Faulenzen für die Kinder und uns mit Ausblick. Das Raumprogramm wurde verkleinert, wir liegen am Ende bei 920m3 inklusive Doppelcarport, aber eben auch bedingt durch die hohen offenen Decken.
Ideen, Vorschlägen Anmerkungen gerne erwünscht!!
Aha. Meins wäre es immer noch nicht, sieht aber nun deutlich gelungener konzipiert aus.
https://www.instagram.com/11antgmxde/
https://www.linkedin.com/company/bauen-jetzt/
https://www.instagram.com/11antgmxde/
https://www.linkedin.com/company/bauen-jetzt/
Ähnliche Themen