Hallo Bauexperten,
ich habe bereits in diesem https://www.hausbau-forum.de/threads/hausausrichtung-sued-oder-West.9523/page-3 Beitrag einige Fragen gestellt, wollte jetzt aber doch noch mal einen separaten Beitrag eröffnen, da ich Glaube das Passt doch nicht mehr zum Ursprünglichen Beitrag.
Wir Planen einen Neubau eines Einfamilienhauses mit ca. 160qm-180qm. Das Haus wird ca. 10x11 / 9x12 Groß sein und soll einen Giebel/Erker bekommen. Im OG sollen drei Kinderzimmer, das Elternschlafzimmer und ein Badezimmer sein. Im EG befindet sich der Hauswirtschaftsraum, Wohnzimmer, Küche, Büro und ein Bad mit Dusche.
Es soll eine Garage oder ein Carport mit Abstellraum gebaut werden (je nachdem was das Budget noch hergibt).
Im Bebauungsplan gibt es folgende Einschränkungen:
Grenzbegegnung: 3m zum Nachbargrundstück nur für Garage/Carport mit Max. 9m, bei Eckbebauung 15m Grenzbegegnung erlaubt.
Haus: 4m Traufhöhe, 9m Firsthöhe keine Giebelausrichtung vorgeschrieben
Grundrisse habe ich jetzt mal Grob für die West- bzw. die Nordausrichtung erstellt und beigefügt.
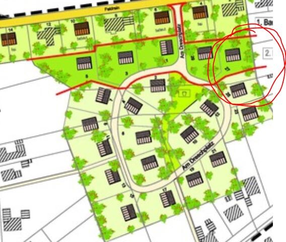
Die Bilder 1 und 2 zeigen das Neubaugebiet und die Lage des Grundstücks, die Bilder sind genordet.
Das Grundstück ist ca. 27x27 (siehe Grundstück_maße.jpg).
Die anderen Bilder zeigen die Grundrisse, bzw. die Überlegungen der Ausrichtung auf dem Grundstück.
Leider konnte ich kein Passendes Tool finden um die Ausrichtung besser darzustellen. Das Große Schwarze soll das Haus sein, das kleine das Carport/die Garage mit Abstellraum.Diese Bilder sind nicht genordet, sondern gedreht, quasi gesüdet .
Auch eine Südausrichtung ist noch denkbar, allerdings wollten wir uns Platz zu den bekannten netten Nachbarn im Osten und Norden lassen und eigentlich ungern das Grundstück verbauen.
Wenn der Nachbar sein Haus mit 9m Höhe direkt an die Grenze setzt bleiben bei der Westausrichtung ca. 14m nach Westen und bei der Nordausrichtung ca. 12m (+ die 3m Grenzbebauung).
Reicht das noch für Sonneneinfall zum Abend (17:00 - 20:00Uhr)? Bzw. kommt auch im Herbst und Winter Sonne an?
Mein Hauptproblem war, das der Hauswirtschaftsraum nicht im Süden liegen sollte und ich überhaupt nicht weiß wohin mit der Garage oder dem Carport.
Ich hoffe Ihr könnt mir bei dem Problem helfen.
Gruß
Sören










ich habe bereits in diesem https://www.hausbau-forum.de/threads/hausausrichtung-sued-oder-West.9523/page-3 Beitrag einige Fragen gestellt, wollte jetzt aber doch noch mal einen separaten Beitrag eröffnen, da ich Glaube das Passt doch nicht mehr zum Ursprünglichen Beitrag.
Wir Planen einen Neubau eines Einfamilienhauses mit ca. 160qm-180qm. Das Haus wird ca. 10x11 / 9x12 Groß sein und soll einen Giebel/Erker bekommen. Im OG sollen drei Kinderzimmer, das Elternschlafzimmer und ein Badezimmer sein. Im EG befindet sich der Hauswirtschaftsraum, Wohnzimmer, Küche, Büro und ein Bad mit Dusche.
Es soll eine Garage oder ein Carport mit Abstellraum gebaut werden (je nachdem was das Budget noch hergibt).
Im Bebauungsplan gibt es folgende Einschränkungen:
Grenzbegegnung: 3m zum Nachbargrundstück nur für Garage/Carport mit Max. 9m, bei Eckbebauung 15m Grenzbegegnung erlaubt.
Haus: 4m Traufhöhe, 9m Firsthöhe keine Giebelausrichtung vorgeschrieben
Grundrisse habe ich jetzt mal Grob für die West- bzw. die Nordausrichtung erstellt und beigefügt.
Die Bilder 1 und 2 zeigen das Neubaugebiet und die Lage des Grundstücks, die Bilder sind genordet.
Das Grundstück ist ca. 27x27 (siehe Grundstück_maße.jpg).
Die anderen Bilder zeigen die Grundrisse, bzw. die Überlegungen der Ausrichtung auf dem Grundstück.
Leider konnte ich kein Passendes Tool finden um die Ausrichtung besser darzustellen. Das Große Schwarze soll das Haus sein, das kleine das Carport/die Garage mit Abstellraum.Diese Bilder sind nicht genordet, sondern gedreht, quasi gesüdet .
Auch eine Südausrichtung ist noch denkbar, allerdings wollten wir uns Platz zu den bekannten netten Nachbarn im Osten und Norden lassen und eigentlich ungern das Grundstück verbauen.
Wenn der Nachbar sein Haus mit 9m Höhe direkt an die Grenze setzt bleiben bei der Westausrichtung ca. 14m nach Westen und bei der Nordausrichtung ca. 12m (+ die 3m Grenzbebauung).
Reicht das noch für Sonneneinfall zum Abend (17:00 - 20:00Uhr)? Bzw. kommt auch im Herbst und Winter Sonne an?
Mein Hauptproblem war, das der Hauswirtschaftsraum nicht im Süden liegen sollte und ich überhaupt nicht weiß wohin mit der Garage oder dem Carport.
Ich hoffe Ihr könnt mir bei dem Problem helfen.
Gruß
Sören
Na, dann werde ich mal rotieren .. das kann man wundervoll mit dem kleinen Programm IrfanView.
Lagevarianten:
Variante 1
Variante 2
Variante 3
Hausvarianten:
Variante 1:
Variante 2:
-------------------------
Insbesondere Hausvariante 2 sollte man Kniestock (nur 4 m Traufhöhe) und Treppengröße prüfen. Zeichnungen enthalten leider keine Maße.
Lagevarianten:
Variante 1
Variante 2
Variante 3
Hausvarianten:
Variante 1:
Variante 2:
-------------------------
Insbesondere Hausvariante 2 sollte man Kniestock (nur 4 m Traufhöhe) und Treppengröße prüfen. Zeichnungen enthalten leider keine Maße.
M
montessalet24.09.18 11:03Lage-Variante 1 mit Haus-Variante 2 kommt dem nahe, was ich machen würde: Haus so nah nach Norden und Osten wie möglich, Garage ganz nach Südosten. Dann habt ihr im Westen doch noch eine schöne Fläche. Und der Nachbar im Westen muss ja auch Abstand wahren: Nur eine Garage kann er ganz im Osten hinmachen.
Sören schrieb:
Wenn der Nachbar sein Haus mit 9m Höhe direkt an die Grenze setztEr darf sein Haus nicht an die Grenze setzen.
Wo Licht ist, ist auch Schatten. 100% gelingt es keinem und nie, alles auf die Sonne auszurichten.
Im Herbst geht die Sonne so ca. 20/21 Uhr unter, im Sommer auf 23 Uhr, im Winter auf 19 Uhr...
Sonnenstand de heißt glaube ich die Seite, wo Du rumspielen kannst.
Dem Hauswirtschaftsraum nach NO bedeutet lange und teure Versorgerwege, würde ich nicht machen. Den würde ich nach SO legen wie auch den Carport. Eingang im Süden und den Allraum als L in den Westen, dabei das WZ in den Norden, Küche und Ess in den Westen mit großem Süd- und Westfenster. Nord etwas kleiner.
Die Entwürfe finde ich grauenhaft, die kannst Du gern noch diskutieren lassen
ypg schrieb:
im Winter auf 19 Uhr...Du bist ein Optimist. Ich erinnere dich in 3 Monaten noch mal dran :-pM
montessalet24.09.18 14:14ypg schrieb:
Die Entwürfe finde ich grauenhaft, die kannst Du gern noch diskutieren lassen Im Vergleich zu anderen sind die gar nicht so schlecht - zumindest was die Grundanordnung der Räume angeht.
Persönlich gefällt mir weder Haus-Stil noch Dachform. Beides (z.B. dieser Pseudo-Erker) hat jedoch Einfluss auf die Raumgestaltung.
Ich würde den Carport sicherlich 9 Meter lang machen: Im hinteren (nördlichen Teil) dann gleich ein integrierter Schuppen für das Gartengedöns.
Ähnliche Themen