Hausbau - Ratgeber
Bauherrenhilfe
- Bauherrenhilfe vor Vertragsabschluss
-- Warum einen unabhängigen Baubetreuer?
-- Vertragsgrundlagen
-- Bausumme
-- Zahlungsplan zur Kostenkontrolle
-- Pflichten des Bauherren vor Vertragsabschluss
-- Unterlagen beim Hausbau vor Vertragsabschluss
- Bauherrenhilfe nach Vertragsabschluss
-- Bauantrag bei Behörden
-- Bau-Genehmigungsverfahren bei Baubehörden
-- Bauspezifische Versicherungen
-- Bauzeitenplan
-- Baubeginn - die Letzten Pflichten der Bauherrschaft
- Bauherrenhilfe während der Bauzeit
- Gewährleistungsansprüche
- Bauabnahme
Baufinanzierung
- Baufinanzierung - Allgemeine Fragen
- Kreditarten
- Kredit-Konditionen
- Bausparen
- Staatliche Förderungen
- Verkehrswert
- Haushaltsrechnung und Bonität
Hausbau Planung
- Haustypen
- Hausbau Vorbereitungsarbeiten
- Das Baugrundstück
- Baugrund beim Hausbau
- Baurecht
- Gebäudeschutz
- Erdarbeiten und Wasserhaltung
- Stützmauern
- Einfriedung
- Untergeschoss
- Kanalisation
- Tragende Elemente
- Nichttragende Innenwände
- Fundation / Fundament
- Deckenkonstruktionen
- Dächer
- Kaminanlagen
- Treppen Rampen Leitern
- Dachbeläge und Spengler
- Fenster
- Sonnen und Wetterschutz
- Aussenputze
- Einbauten, Küchen, Türen
- Bodenbeläge und Unterlagsböden
- Parkett
- Gips, Wand, Decke
Haustechnik und Energie
- Heiztechnik
- Lüftung und Klimatechnik
- Sanitärtechnik
- Elektrotechnik
- Erneuerbare Energie
Whirlpools / Jacuzzi
Hausbau Magazin
- Baufinanzierung trotz Krise?
- Das Blockhaus
- Moderne Dämmstoffe im Vergleich
- Erker Vor- und Nachteile
- Glasflächen beim Hausbau
- Günstig ein Haus Bauen
- Mediterraner Hausbaustil
- Mehrgenerationenhaus
- Moderne Architektur
- Gartengestaltung leicht gemacht
- Traditioneller Ziegelbau
- Villa als höchster Traum
- Im Eigenheim Ruhestand geniessen
- Altbau sanieren
- Kauf einer Holzgarage
- Immobilienmakler
- Arbeitshandschuhe für den Winter
- Zuhause verschönern
- Outdoor-Plissees
- Schlafzimmer planen
- Terrassenüberdachung
- Wohngebäudeversicherung
- Zaunarten und Eigenschaften
- Hauseingang gestalten
- Der perfekte Grundriss
- Sparsamer heizen im Altbau
- Einfamilienhaus smart finanzieren
- Planung einer PV-Anlage
- Neues Haus
- Immobilienfinanzierung
- Installation einer Photovoltaikanlage
- Asbest erkennen und entfernen
- Gartenpflege im Frühling – worauf achten
- Sauna im Fokus - Wellness zuhause
- Erfolgreich vermieten
- Die perfekte Winterbekleidung
- Das Niedrigenergiehaus
- Der April und seine Stürme
- Architektonische Vielfalt
- Ökologisch und nachhaltig bauen
- Das perfekte Schlafzimmer
- Nachhaltige Energieversorgung
- Zukunftsorientiert bauen
- Nachhaltigkeit beim Hausbau
- Tiny Houses
- Wärmepumpen als nachhaltige Heizvariante
- Maßgeschneiderten Kleiderschrank
- Der richtige Baukredit
- Ratgeber für erfolgreichen Hausbau
- Haus als Altersvorsorge
Do-it-yourself Anleitungen
- Verlegeanleitung für Bodenbeläge und Parkett
- Bodenbeläge und Parkett reinigen und pflegen
- Malerarbeiten am Haus
- Garten Tipps
- Umzug und Reinigung

ᐅ Habt ihr Ideen für die Gestaltung unseres Grundrisses?

Erstellt am: 15.08.13 11:47
B
brokenlink
kaho67416.08.13 08:42
brokenlink schrieb:
Sag mal das den Architekten, dann kommst sowas wie. Man lernt es am erstem Semester, dass Hauptwohnräume nach Süden kommen.
Hab gestern im Radio gehört, dass es aufgrund des Klimawandels jetzt zunehmend zu heftigen Hitzewellen in Deutschland kommen wird. Die Südausrichtung ist zwar im Winter nett aber im Sommer wird es dann zur Plage. Eventuell werden sich die Lehrbücher ja ändern.

Da wir ja vermutlich nur 1x leben, würde ich so bauen, wie es mir passt und nicht, was meine Architekten sagen. 🙂
kaho67416.08.13 09:06
brokenlink schrieb:
...die Winter werden schlimmer werden.
Da hilft aber die Südausrichtung auch wenig. Bei Minus 20°C hilft nur heizen. 😉
kaho67416.08.13 09:09
brokenlink schrieb:
..max. 10m breites Haus
Ach so, wir brauchen ja noch 3m links und rechts. Hatte ich nicht dran gedacht.
kaho67416.08.13 10:12
kaho674 schrieb:
Ach so, wir brauchen ja noch 3m links und rechts. Hatte ich nicht dran gedacht.
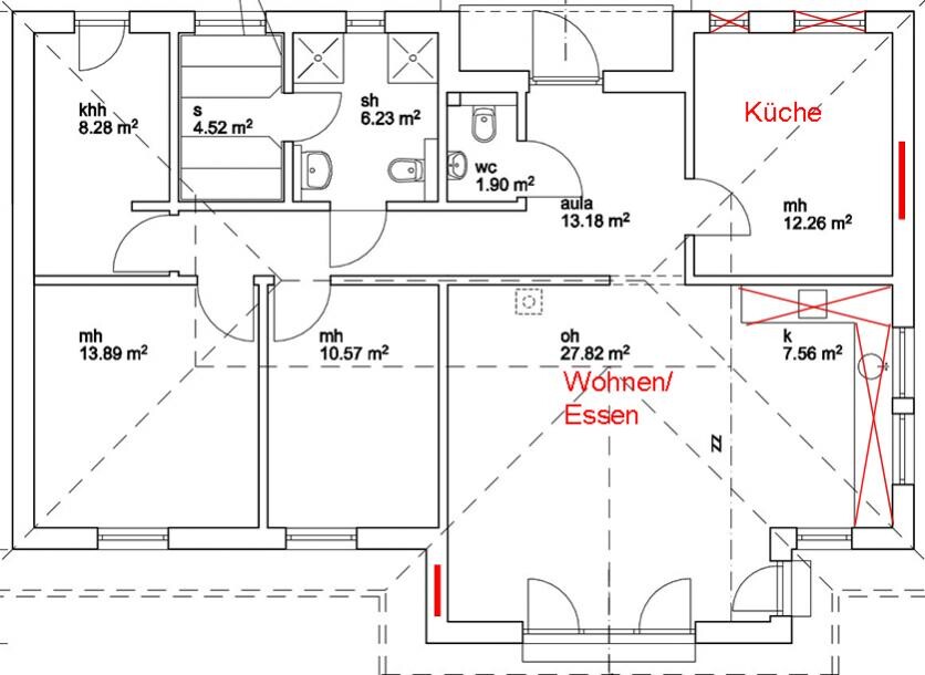
Dann würde ich das Wohnzimmer im Norden lassen und vielleicht nen kleinen "Lichterker" anbauen. So wie hier z.B.

(Die Aufteilung der restlichen Zimmer bitte jetzt mal vernachlässigen, die muss der Architekt dann machen.)

2D Grundriss eines Hauses mit Küche, Wohn-/Essbereich, Schlafzimmern und Bad
Y
ypg
16.08.13 10:14
@kaho, Deine Grundrissauswahl ist doch mal eine Idee... letztendlich muss ein (richtiger) Architekt das nur auf das Grundstück projizieren. Dann wird halt das L nicht unbedingt ein Doppelfenster tragen, sondern nur eine Terrassentür und das Gebäude wird in die Länge gestreckt.
Gehe ich mit Karopapier ran, hätte ich ein ca. 16 Meter langes Gebäude auf 10 Meter/8Meter mit langem Flur. Aber es gibt immer Ideen.
Ich habe gestern auch einiges (an Standardgrundrissen) gefunden, welches man kurzerhand etwas abändern kann.
Wenn Jan sich von Aussagen wie "man baut aber so" oder sich etwas in den Kopf gesetzt hat, wan nun mal nicht geht, sind natürlich alle Beispiele oder Ideen überflüssig.

Ich weiss auch nicht, warum man jetzt auf knapp 400qm auf Krampf einen Bungalow hinstellen will, wenn man mit einem schnuckeligen 1,5-Haus letztendlich auch mehr Gartenfläche zum Nutzen hätte. Denn: wenn ich keine Breite habe, muss ich in die Länge gehen. bei 15 Metern Gebäude hätten wir (waren es nicht 27 Meter Länge?) dann noch 12Meter... Baufenster scheint es keins zu geben, dennoch bleiben dann hinten gerade mal 9 Meter Terrasse+Garten.
Für den Bauherren scheint es keine Optionen zu geben 😉
B
brokenlink
16.08.13 10:47
kaho674 schrieb:
Dann würde ich das Wohnzimmer im Norden lassen und vielleicht nen kleinen "Lichterker" anbauen. So wie hier z.B.

(Die Aufteilung der restlichen Zimmer bitte jetzt mal vernachlässigen, die muss der Architekt dann machen.)

In Grunde eine Gute Idee, aber dadurch wird das Haus zu lang. Ich wollte eigenltihc so 10m x 14m, weil ich noch gern einwenig Garten hätte.
Und diese kleine Ecke kostet richtig Geld, den es ist schon fast wie ein Winkel bungalow.
gebäudearchitektbungalowgarten