B
brokenlink16.08.13 13:36ca. 120 qm Wohnfläche und max 145 qm Grundfläche, weil in Grundflächenzahl I kommt noch die Terrasse wegedazu. Dann kommt noch die Lange Einfahrt und zuwege. Wurde alles ausgerechnet, muss ich mal suchen, dann kann ich reinstellen.
B
brokenlink16.08.13 13:46Habe einwenig verkleinert, aber der von ypg gefällt mir besser.
Wie schon geschrieben ca. 120 qm Wohnfläche und max 145 qm Bebauungsfläche.
Grundstück 431qm
Grundflächenzahl I 0,4 172qm
Haus 140-145qm
Terrasse 15-20qm
Grundflächenzahl II 0,2 86qm
Carport 20qm
Gartenhäuschen 5-10qm
Zufahrt ca. 42 q
Wege Rest?
Kannst auch die Hausbreite mit 9,50 machen, dann wird der Flur eben nur 1,20 und vom Wohnbereich nimmst Du auch 30cm weg. Bleibt immer noch grosszügig.
Die Ecke wird Deine offizielle Terrasse von ca. 6qm... was hinter dem Haus entsteht... interessiert das jmd?
Wird eigentlich der Terra-Belag hinterher überprüft? Wenn der Belag wasserdurchlässig ist, ist dagegen doch nix gegen einzuwenden, wenn es größer wird?!
Ich habe jetzt kein Problem damit, bei meinen ganzen Außentüren je ein schnieckes Kiesbett vorzusetzen, worauf ich mal ein paar Stühle oder Bänke setzen werden 😎
Die Ecke wird Deine offizielle Terrasse von ca. 6qm... was hinter dem Haus entsteht... interessiert das jmd?
Wird eigentlich der Terra-Belag hinterher überprüft? Wenn der Belag wasserdurchlässig ist, ist dagegen doch nix gegen einzuwenden, wenn es größer wird?!
Ich habe jetzt kein Problem damit, bei meinen ganzen Außentüren je ein schnieckes Kiesbett vorzusetzen, worauf ich mal ein paar Stühle oder Bänke setzen werden 😎
B
brokenlink16.08.13 14:53ypg schrieb:
Kannst auch die Hausbreite mit 9,50 machen, dann wird der Flur eben nur 1,20 und vom Wohnbereich nimmst Du auch 30cm weg. Bleibt immer noch grosszügig.
Die Ecke wird Deine offizielle Terrasse von ca. 6qm... was hinter dem Haus entsteht... interessiert das jmd?
Wird eigentlich der Terra-Belag hinterher überprüft? Wenn der Belag wasserdurchlässig ist, ist dagegen doch nix gegen einzuwenden, wenn es größer wird?!
Ich habe jetzt kein Problem damit, bei meinen ganzen Außentüren je ein schnieckes Kiesbett vorzusetzen, worauf ich mal ein paar Stühle oder Bänke setzen werden 😎Mir wurde gesagt, dass auch wasserdurchlässiger Belag zu Grundflächenzahl zählt. Keine Ahnung ob das irgendwer überprüft. Den für den Bauantrag Haus, kleine Terrasse und Einfahrt werden wir machen. Späte Carport und überdachte Terrasse ... hier in Niedersacher braucht man für beides (bis einer bestimmten qm) keine Baugenehmigung.
Nur wenn es doch irgendwer mal überprüft und ist zu viel bebaut, dann muss man mit Strafe und mit Abreisen rechnen.
Nur mir geht es auch nicht um die Bebauungsfläche sonder allgemein umd die Wohnfläche und Kosten, dass alles muss schon irgendwie im Rahmen bleiben 😉
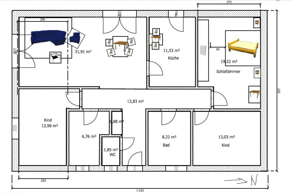
B
brokenlink21.08.13 10:31ypg schrieb:
Ich hab auch noch eine:

🙂
Aber ich kann mir vorstellen, dass man so etwas ähnliches auch im www findet.ypg danke für den schönen Entwurf, aber leider passt dieser einfach nicht von der größe. Mir persönlich gefällt auch nicht, dass das Kinderzimmer so nah am Wohnzimmer und Hauswirtschaftsraum ist.
B
brokenlink21.08.13 10:37Zu der Übersicht:
Man muss überall 3m Abstand einhalten. Carport usw. kann man an die Grundstücksgrenze stellen.
Im Norden sind alle Terrassen und im Süden die Strasse und nur der Nachbar (rechts) hat eine Terrasse da, aber sitzt meisten auf seiner Nord Terrasse.
Wir würdet ihr das Bungalow auf dem Grundstück positionieren? Wo würdet ihr Terrasse, Carport und wohnzimmer/Esszimmer (Himmelsrichtung) positionieren?
Ähnliche Themen