Guten Abend zusammen,
ich denke darüber nach, ein Haus auf einer Wiese zu bauen. Das Grundstück (im Familienbesitz) liegt im Dorf (östlich davon Baugebiet aus den 90gern - angehängt mit Bebauungsplan_neu und im Bild in orange - südlich davon Baugebiet aus den 80gern - angehängt mit Bebauungsplan_alt und im Bild blau markiert), ist jedoch nicht erschlossen. Weiterhin wird wohl zukünftig noch ein Gebiet erschlossen - im Anhang im Bild grün gekennzeichnet. Im Bild im Anhang sieht man die Grundstücke wovon die größere Wiese im Besitz meiner Eltern liegt - ich könnte beispielsweise '2' auswählen - während das Grundstück '1' im Besitz meiner Tante ist.
Das Grundstück weist eine Hangneigung auf, nach Süden abfallend, und würde von Norden erschlossen werden können. Das angehängte Höhenprofil von BayernAtlas entspricht nicht der Realität. Der Hang fällt ‚deutlich‘ stärker ab (alles eine Frage der Relation). Ich habe keine exakten Daten hierzu, habe aber Probehalber an der westlichen Grundstücksgrenze von Grundstück 1 mit einem Kreuzlinienlaser von Straßenniveau zu geschätzter Gebäudevorderkante (grob auf Höhe des Nebengebäudes) waren ca. 2m Höhendifferenz, sowie etwa 10m weiter (also geschätzte Gebäudehinterkante) etwa 3,2m Höhendifferenz) gemessen. An den gemessenen Punkten ist aber die stärkste Steigung des Grundstücks, die östliche Grundstücksgrenze ist im Vergleich quasi eben.
In beiden genannten Baugebieten sind bereits renovierte bzw. umgebaute Gebäude oder Neubauten vorhanden, die nicht mehr den damaligen Bebauungsplänen entsprechen. Trotzdem habe ich die Vorgaben so gut es geht von beiden Gebieten unten ausgefüllt. Die Wiese ist, wie erwähnt, kein Baugebiet und hat damit offiziell keinen Bebauungsplan.
Gewünscht wäre grundsätzlich ein typisches Einfamilienhaus (2 Kinderzimmer, 1 Büro). Da ich aktuell alleine bauen möchte, und handwerklich begabt bin (habe mit Vater und Großvater bereits zwei Wohnungen des 3 Generationenhauses meiner Eltern komplett Kernsaniert – also Elektro, Heizung, Wasser, Beton, Estrich, Türen, Böden, …) würde ich zunächst einen Rohbau stellen wollen und lediglich das Erdgeschoss ausbauen um Geld zu sparen. Jedoch möchte ich die Finanzierung sowie ein Infragestellen der Sinnhaftigkeit aufgrund meiner Situation (noch) NICHT diskutieren. Die Finanzierung wird geklärt wenn ein positiver Bescheid der Bauvoranfrage und erste Angebote vorliegen.
Nun stellt sich die Frage (unter der Voraussetzung, dass die Gemeinde eine Erschließung unterstützt):
- Grundstück 1 (ca. 750qm) würde sich leichter erschließen lassen und hätte weniger Hanglage, jedoch ist ein Kauf des Grundstücks noch nicht geklärt (Meine Tante würde grundsätzlich gerne tauschen - dann wäre aber eine Vermessung sowie ein Tausch inkl doppelter Notar-, Grundbuchgebühren und Grundsteuer zu bezahlen und das Grundstück würde im Alter als ihre 'Altersvorsorge' dienen - also bei Bedarf verkauft)
- Grundstück 2 hätte den Nachteil der stärkeren Hanglage und der höheren Erschließungskosten. Aber die Grundstücksgröße ist quasi frei wählbar, ein Verkauf von süd-westlichen Grundstücksteilen ist unwahrscheinlicher und das Grundstück wäre quasi kostenlos.
Nun noch die Fragen:
- kann man abschätzen, wie viel der laufende Meter Straße (in Bayern) in einer Gemeinde kostet? Die Straße über dem Grundstück ist ein asphaltierter aber nicht brauchbarer Flurbereinigungsweg und würde definitiv ersetzt werden (müssen). Im Bebauungsplan 'neu' wird eine 4,5m Breite Straße ohne Gehsteig gezeigt, welche so auch in Realität vorhanden ist -> so könnte ich herausfinden wo der Punkt ist, ab wann sich das Grundstück meiner Tante nicht mehr lohnt bzw. vielleicht kann mir jemand sofort eine ausschlaggebende Argumentation für Grundstück 1 bzw. 2 nennen.
Bebauungsplan/Einschränkungen
Größe des Grundstücks: ca 750qm
Hang: ja, Südhang (ca 25° nach Osten) mit Zufahrt von Norden
Grundflächenzahl: 0,4
Geschossflächenzahl: 0,8
Baufenster, Baulinie und -grenze: aktuell keine, da landwirtschaftliche Wiese, typ. 3m
Randbebauung: nur für Nebengebäude
Anzahl Stellplatz: mindestens 2
Geschossigkeit: E + D bzw. E + U + D (älterer Bebauungsplan)
Dachform: Satteldach mit Dachneigung von 38° … 48° in Sparren- oder Kehlbalkenausführung
Stilrichtung: offene Bauweise
Ausrichtung: unbekannt
Maximale Höhen/Begrenzungen: unbekannt
weitere Vorgaben:
- Traufhöhe Hangoberseite min. 2,0m … max. 3,35m
- Traufhöhe Hangunterseite max. 6,3m
- Kniestock max. 0,5m
- Dacheindeckung in Bieberschwänzen oder Pfannen in naturrot
- Dachüberstand max. 0,3m bzw. 0,5m (älterer Bebauungsplan)
- Erdgeschossfußboden muss über, aber maximal 0,3m bzw. 0,5m (älterer Bebauungsplan) über Geländeoberfläche
- Außenputz als Glatt- oder Rauputz
Anforderungen der Bauherren
Stilrichtung, Dachform, Gebäudetyp: Satteldach
Keller, Geschosse: E + U (+ nicht ausgebautes Dachgeschoss als Lagerraum)
Anzahl der Personen, Alter: 1 (30)
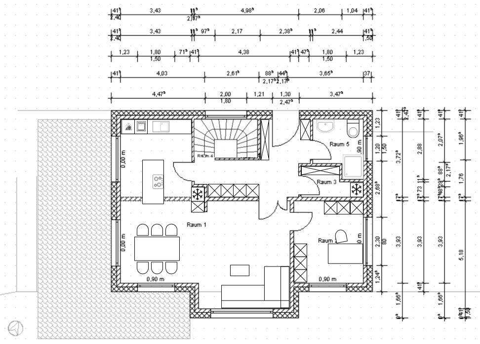
Raumbedarf im EG, OG: siehe Grundrissidee
Büro: Homeoffice
Schlafgäste pro Jahr: unbekannt (Schlafcouch reicht i. A.)
offene Architektur
konservativ oder moderne Bauweise: Mischung
offene Küche, freistehende Kochinsel
Anzahl Essplätze: min. 6
Kamin: nicht notwendig
Musik/Stereowand: nein
Balkon, Dachterrasse: Balkon und Terrasse, einfache Erreichbarkeit des Gartens ist wichtig
Garage, Carport: Garage später vorgesehen, erstmal nichts
Hausentwurf
Von wem stammt die Planung: Do-it-Yourself
Was gefällt besonders? Warum?
- barrierefreier Umbau des Erdgeschosses möglich (Arbeitszimmer wird zu Schlafzimmer, Wände zwischen Bad, Arbeitszimmer und Abstellkammer so verändern, dass im Schlafzimmer Stauraum für Schrank, und Badezimmer erweitert wird)
- Zugang von Küche und Essbereich auf großzügige Terrasse/Balkon
Was gefällt nicht? Warum?
- natürliches Licht in (beiden) Badezimmern fraglich
- vielleicht wenig Platz für Garderobe?
- im Untergeschoss wäre auch weniger Platz ausreichend, deshalb kein Erker (fraglich was Statik angeht – mit/ohne Stützen)
- viel verschenkte Flurfläche im UG
Preisschätzung laut Architekt/Planer: unbekannt
Persönliches Preislimit fürs Haus, inkl. Ausstattung: unbekannt
favorisierte Heiztechnik: Luft-Wasser-Wärmepumpe









ich denke darüber nach, ein Haus auf einer Wiese zu bauen. Das Grundstück (im Familienbesitz) liegt im Dorf (östlich davon Baugebiet aus den 90gern - angehängt mit Bebauungsplan_neu und im Bild in orange - südlich davon Baugebiet aus den 80gern - angehängt mit Bebauungsplan_alt und im Bild blau markiert), ist jedoch nicht erschlossen. Weiterhin wird wohl zukünftig noch ein Gebiet erschlossen - im Anhang im Bild grün gekennzeichnet. Im Bild im Anhang sieht man die Grundstücke wovon die größere Wiese im Besitz meiner Eltern liegt - ich könnte beispielsweise '2' auswählen - während das Grundstück '1' im Besitz meiner Tante ist.
Das Grundstück weist eine Hangneigung auf, nach Süden abfallend, und würde von Norden erschlossen werden können. Das angehängte Höhenprofil von BayernAtlas entspricht nicht der Realität. Der Hang fällt ‚deutlich‘ stärker ab (alles eine Frage der Relation). Ich habe keine exakten Daten hierzu, habe aber Probehalber an der westlichen Grundstücksgrenze von Grundstück 1 mit einem Kreuzlinienlaser von Straßenniveau zu geschätzter Gebäudevorderkante (grob auf Höhe des Nebengebäudes) waren ca. 2m Höhendifferenz, sowie etwa 10m weiter (also geschätzte Gebäudehinterkante) etwa 3,2m Höhendifferenz) gemessen. An den gemessenen Punkten ist aber die stärkste Steigung des Grundstücks, die östliche Grundstücksgrenze ist im Vergleich quasi eben.
In beiden genannten Baugebieten sind bereits renovierte bzw. umgebaute Gebäude oder Neubauten vorhanden, die nicht mehr den damaligen Bebauungsplänen entsprechen. Trotzdem habe ich die Vorgaben so gut es geht von beiden Gebieten unten ausgefüllt. Die Wiese ist, wie erwähnt, kein Baugebiet und hat damit offiziell keinen Bebauungsplan.
Gewünscht wäre grundsätzlich ein typisches Einfamilienhaus (2 Kinderzimmer, 1 Büro). Da ich aktuell alleine bauen möchte, und handwerklich begabt bin (habe mit Vater und Großvater bereits zwei Wohnungen des 3 Generationenhauses meiner Eltern komplett Kernsaniert – also Elektro, Heizung, Wasser, Beton, Estrich, Türen, Böden, …) würde ich zunächst einen Rohbau stellen wollen und lediglich das Erdgeschoss ausbauen um Geld zu sparen. Jedoch möchte ich die Finanzierung sowie ein Infragestellen der Sinnhaftigkeit aufgrund meiner Situation (noch) NICHT diskutieren. Die Finanzierung wird geklärt wenn ein positiver Bescheid der Bauvoranfrage und erste Angebote vorliegen.
Nun stellt sich die Frage (unter der Voraussetzung, dass die Gemeinde eine Erschließung unterstützt):
- Grundstück 1 (ca. 750qm) würde sich leichter erschließen lassen und hätte weniger Hanglage, jedoch ist ein Kauf des Grundstücks noch nicht geklärt (Meine Tante würde grundsätzlich gerne tauschen - dann wäre aber eine Vermessung sowie ein Tausch inkl doppelter Notar-, Grundbuchgebühren und Grundsteuer zu bezahlen und das Grundstück würde im Alter als ihre 'Altersvorsorge' dienen - also bei Bedarf verkauft)
- Grundstück 2 hätte den Nachteil der stärkeren Hanglage und der höheren Erschließungskosten. Aber die Grundstücksgröße ist quasi frei wählbar, ein Verkauf von süd-westlichen Grundstücksteilen ist unwahrscheinlicher und das Grundstück wäre quasi kostenlos.
Nun noch die Fragen:
- kann man abschätzen, wie viel der laufende Meter Straße (in Bayern) in einer Gemeinde kostet? Die Straße über dem Grundstück ist ein asphaltierter aber nicht brauchbarer Flurbereinigungsweg und würde definitiv ersetzt werden (müssen). Im Bebauungsplan 'neu' wird eine 4,5m Breite Straße ohne Gehsteig gezeigt, welche so auch in Realität vorhanden ist -> so könnte ich herausfinden wo der Punkt ist, ab wann sich das Grundstück meiner Tante nicht mehr lohnt bzw. vielleicht kann mir jemand sofort eine ausschlaggebende Argumentation für Grundstück 1 bzw. 2 nennen.
Bebauungsplan/Einschränkungen
Größe des Grundstücks: ca 750qm
Hang: ja, Südhang (ca 25° nach Osten) mit Zufahrt von Norden
Grundflächenzahl: 0,4
Geschossflächenzahl: 0,8
Baufenster, Baulinie und -grenze: aktuell keine, da landwirtschaftliche Wiese, typ. 3m
Randbebauung: nur für Nebengebäude
Anzahl Stellplatz: mindestens 2
Geschossigkeit: E + D bzw. E + U + D (älterer Bebauungsplan)
Dachform: Satteldach mit Dachneigung von 38° … 48° in Sparren- oder Kehlbalkenausführung
Stilrichtung: offene Bauweise
Ausrichtung: unbekannt
Maximale Höhen/Begrenzungen: unbekannt
weitere Vorgaben:
- Traufhöhe Hangoberseite min. 2,0m … max. 3,35m
- Traufhöhe Hangunterseite max. 6,3m
- Kniestock max. 0,5m
- Dacheindeckung in Bieberschwänzen oder Pfannen in naturrot
- Dachüberstand max. 0,3m bzw. 0,5m (älterer Bebauungsplan)
- Erdgeschossfußboden muss über, aber maximal 0,3m bzw. 0,5m (älterer Bebauungsplan) über Geländeoberfläche
- Außenputz als Glatt- oder Rauputz
Anforderungen der Bauherren
Stilrichtung, Dachform, Gebäudetyp: Satteldach
Keller, Geschosse: E + U (+ nicht ausgebautes Dachgeschoss als Lagerraum)
Anzahl der Personen, Alter: 1 (30)
Raumbedarf im EG, OG: siehe Grundrissidee
Büro: Homeoffice
Schlafgäste pro Jahr: unbekannt (Schlafcouch reicht i. A.)
offene Architektur
konservativ oder moderne Bauweise: Mischung
offene Küche, freistehende Kochinsel
Anzahl Essplätze: min. 6
Kamin: nicht notwendig
Musik/Stereowand: nein
Balkon, Dachterrasse: Balkon und Terrasse, einfache Erreichbarkeit des Gartens ist wichtig
Garage, Carport: Garage später vorgesehen, erstmal nichts
Hausentwurf
Von wem stammt die Planung: Do-it-Yourself
Was gefällt besonders? Warum?
- barrierefreier Umbau des Erdgeschosses möglich (Arbeitszimmer wird zu Schlafzimmer, Wände zwischen Bad, Arbeitszimmer und Abstellkammer so verändern, dass im Schlafzimmer Stauraum für Schrank, und Badezimmer erweitert wird)
- Zugang von Küche und Essbereich auf großzügige Terrasse/Balkon
Was gefällt nicht? Warum?
- natürliches Licht in (beiden) Badezimmern fraglich
- vielleicht wenig Platz für Garderobe?
- im Untergeschoss wäre auch weniger Platz ausreichend, deshalb kein Erker (fraglich was Statik angeht – mit/ohne Stützen)
- viel verschenkte Flurfläche im UG
Preisschätzung laut Architekt/Planer: unbekannt
Persönliches Preislimit fürs Haus, inkl. Ausstattung: unbekannt
favorisierte Heiztechnik: Luft-Wasser-Wärmepumpe
H
hanghaus202320.02.24 21:24Der Bayernatlas lügt nicht. #2 hat 15% und #1 hat 10% Gefälle. Vorausgesetzt die Linie entspricht der Fallrichtung des Hangs.
"Hang: ja, Südhang (ca 25° nach Osten)" Warum misst Du dann im Bayernatlas Richtung SO? Sollen die 25° wirklich stimmen?
Sag mal wo Du bauen willst. Dann kann ich mal Höhenlinien einzeichnen.
Ist die Wiese denn schon Bauland?
"Hang: ja, Südhang (ca 25° nach Osten)" Warum misst Du dann im Bayernatlas Richtung SO? Sollen die 25° wirklich stimmen?
Sag mal wo Du bauen willst. Dann kann ich mal Höhenlinien einzeichnen.
Ist die Wiese denn schon Bauland?
okay, hier ist mal das Geländerelief.
Das Grundstück ist kein Bauland. Eine Mögliche Erschließung wurde vor einigen Jahren bei der Gemeinde angefragt, und zumindest damals war das Feedback positiv (ja, das muss heute nichts mehr heißen).
Die Position vom Haus wäre grundsätzlich im Rahmen der Grundstücke frei wählbar.
in Grundstück 1 würde ich möglichst westlich bauen wollen, in der freien Wiese wäre ich grundsätzlich offen für Vorschläge

Das Grundstück ist kein Bauland. Eine Mögliche Erschließung wurde vor einigen Jahren bei der Gemeinde angefragt, und zumindest damals war das Feedback positiv (ja, das muss heute nichts mehr heißen).
Die Position vom Haus wäre grundsätzlich im Rahmen der Grundstücke frei wählbar.
in Grundstück 1 würde ich möglichst westlich bauen wollen, in der freien Wiese wäre ich grundsätzlich offen für Vorschläge
Und leider lügt der Bayernatlas schon ...
im Geländerelief ist gerade mittig (etwa um die Grundstücksgrenze) eine starke Steigung zu erkennenn,
welche man im Höhenprofil überhaupt nicht sieht. Genau die ist aber vorhanden.
Die Messung habe ich versucht etwa 90° zur Straße zu messen, da ich davon ausgehe, dass die Firstrichtung parallel zu dieser verläuft
im Geländerelief ist gerade mittig (etwa um die Grundstücksgrenze) eine starke Steigung zu erkennenn,
welche man im Höhenprofil überhaupt nicht sieht. Genau die ist aber vorhanden.
Die Messung habe ich versucht etwa 90° zur Straße zu messen, da ich davon ausgehe, dass die Firstrichtung parallel zu dieser verläuft
Sahitaz schrieb:
Das Grundstück ist kein Bauland. Eine Mögliche Erschließung wurde vor einigen Jahren bei der Gemeinde angefragt, und zumindest damals war das Feedback positiv (ja, das muss heute nichts mehr heißen).Dann würde ich mich hier mal dringend dran machen und erkunden was aktuell Stand ist.Liegen die Grundstücke überhaupt im Innenbereich? Wenn nein, dann viel Spaß die nächsten Jahre, wenn sich überhaupt was machen lässt.
Ähnliche Themen