Hallo zusammen,
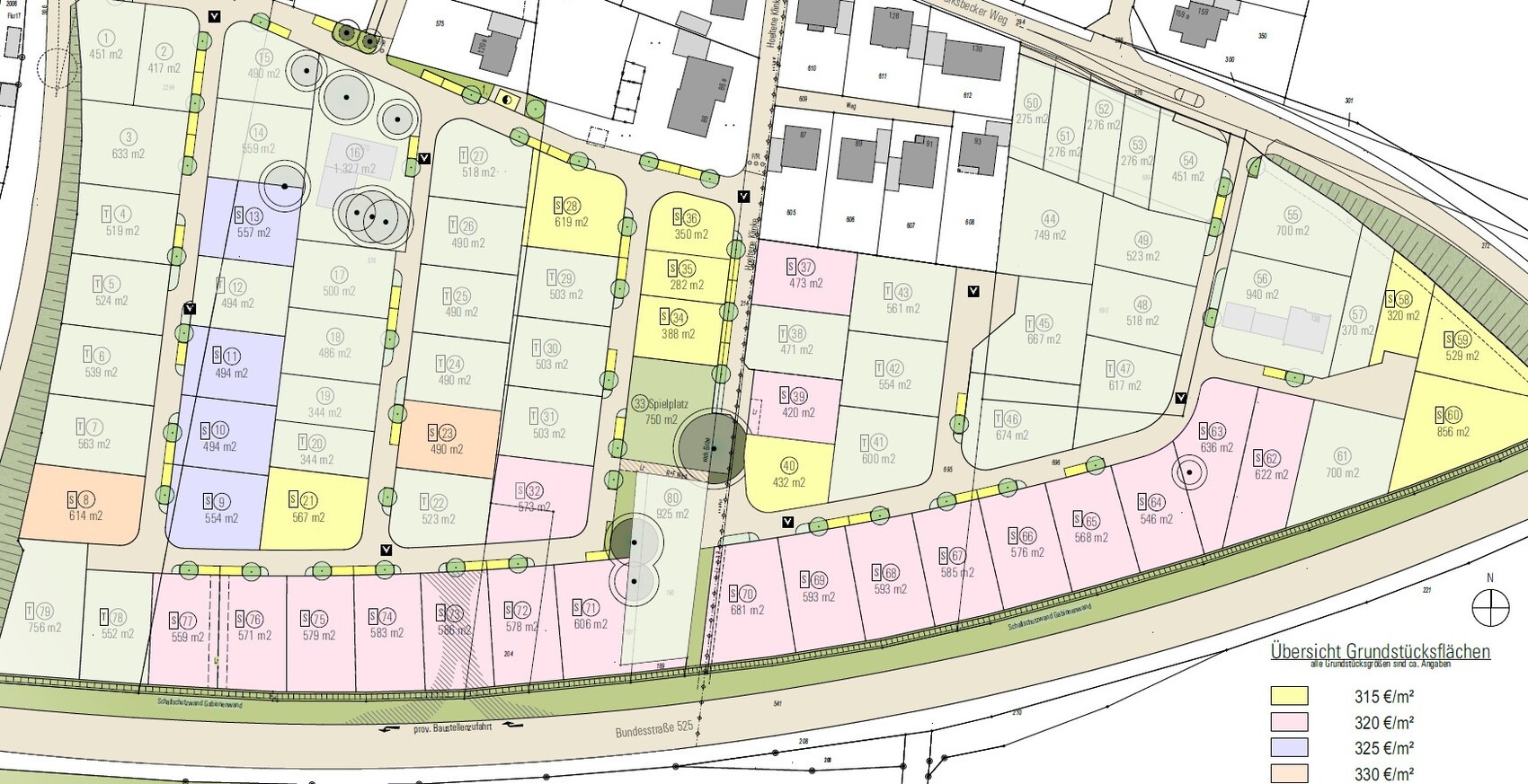
bei uns in der Nähe wird aktuell ein großes Neubaugebiet mit 79 Grundstücken erschlossen und wir stehen gerade vor der Frage, welche Grundstücke wir in unserer Bewerbung in welcher Reihenfolge angeben sollen.
Leider entsteht das Baugebiet nördlich einer Umgehungsstraße (Bundesstraße, Tempo 100). Obwohl eine Gabionenwand als Schallschutzwand errichtet werden soll (mit einer Höhe von 5m), befürchten wir dass man v.a. bei den südlichen Grundstücken den Verkehrslärm von der Bundesstraße deutlich hören wird. Sowohl westlich als auch östlich des Baugebiets führt eine Brücke über die Bundesstraße, sodass an den Punkten die Schallschutzwand enden wird. Wir vermuten, dass dadurch z.B. auch die Grundstücke 4 bis 8 einiges von der Bundesstraße hören werden.
Die Vergabe der Grundstücke erfolgt in zwei Schritten: Als erstes über die Stadt und zwar alle Grundstücke, die mit einem S gekennzeichnet sind. Anschließend (wahrscheinlich erst in Q3 oder Q4 diesen Jahres) erfolgt die Vergabe der übrigen Grundstücke über einen Architekten, nämlich alle Grundstücke, die mit einem T gekennzeichnet sind. Grundstücke, die weder ein S noch ein T haben, gehen gar nicht erst in die Vermarktung.
Die Grundstücke, die über die Stadt vermarktet werden, liegen zwischen 315€ und 330€ pro qm. Welchen Preis der Architekt aufrufen wird ist noch nicht bekannt, der wird aber wahrscheinlich nicht unter dem Preis der Stadt liegen. Aus meiner Sicht sind die Grundstücke teilweise viel zu groß für den qm-Preis. Weil sich aber der gesamte Prozess (Einwände der Anwohner, Umweltgutachten, Schallgutachten, Bebauungsplan, Erschließung, etc.) schon seit mehreren Jahren hinzieht, ist der Bebauungsplan mittlerweile auch schon einige Jahre alt und ist zu einer Zeit entstanden, als die Baukosten noch 20-30% günstiger waren und der qm-Preis hier in der Stadt bei etwa 200€ lag. Aufgrund unseres Budgets kommen daher eigentlich nur Grundstücke bis ~550qm in Frage, sodass viele schonmal rausfallen.
Was uns wichtig ist bei der Auswahl der Grundstücke: möglichst ruhig gelegen (auch wenn wahrscheinlich überall ein Hintergrundrauschen von der Umgehungsstraße zu hören sein wird), zwischen 350 und 550qm groß. Bei der Ausrichtung des Gartens sind wir einigermaßen flexibel, wobei Süd oder Südwest-Ausrichtung natürlich am schönsten wären.
Bei den Grundstücken mit Kennzeichnung "S" (Vergabe über die Stadt) ist im Moment das Grundstück #37 unser Favorit. Von der Ausrichtung sind natürlich auch die Grundstücke #64 bis #77 interessant, die gehen aber alle in Richtung 600qm oder darüber hinaus. Und wir können nicht einschätzen, wie sehr man die Bundesstraße direkt hinter der Schallschutzwand hört.
Bei den Grundstücken mit Kennzeichnung "T" (spätere Vergabe über den Architekten) wären unsere Favoriten: #29, #30, #26, #25. Gerade bei #29 und #30 vermuten wir aber, dass sich alle Interessenten auf diese Grundstücke stürzen werden.
Welche Grundstücke würdet ihr in der Bewerbung angeben? Würdet ihr andere Grundstücke wählen? Hat vielleicht sogar jemand Erfahrungen mit Grundstücken hinter einer Schallschutzwand?
Viele Grüße


bei uns in der Nähe wird aktuell ein großes Neubaugebiet mit 79 Grundstücken erschlossen und wir stehen gerade vor der Frage, welche Grundstücke wir in unserer Bewerbung in welcher Reihenfolge angeben sollen.
Leider entsteht das Baugebiet nördlich einer Umgehungsstraße (Bundesstraße, Tempo 100). Obwohl eine Gabionenwand als Schallschutzwand errichtet werden soll (mit einer Höhe von 5m), befürchten wir dass man v.a. bei den südlichen Grundstücken den Verkehrslärm von der Bundesstraße deutlich hören wird. Sowohl westlich als auch östlich des Baugebiets führt eine Brücke über die Bundesstraße, sodass an den Punkten die Schallschutzwand enden wird. Wir vermuten, dass dadurch z.B. auch die Grundstücke 4 bis 8 einiges von der Bundesstraße hören werden.
Die Vergabe der Grundstücke erfolgt in zwei Schritten: Als erstes über die Stadt und zwar alle Grundstücke, die mit einem S gekennzeichnet sind. Anschließend (wahrscheinlich erst in Q3 oder Q4 diesen Jahres) erfolgt die Vergabe der übrigen Grundstücke über einen Architekten, nämlich alle Grundstücke, die mit einem T gekennzeichnet sind. Grundstücke, die weder ein S noch ein T haben, gehen gar nicht erst in die Vermarktung.
Die Grundstücke, die über die Stadt vermarktet werden, liegen zwischen 315€ und 330€ pro qm. Welchen Preis der Architekt aufrufen wird ist noch nicht bekannt, der wird aber wahrscheinlich nicht unter dem Preis der Stadt liegen. Aus meiner Sicht sind die Grundstücke teilweise viel zu groß für den qm-Preis. Weil sich aber der gesamte Prozess (Einwände der Anwohner, Umweltgutachten, Schallgutachten, Bebauungsplan, Erschließung, etc.) schon seit mehreren Jahren hinzieht, ist der Bebauungsplan mittlerweile auch schon einige Jahre alt und ist zu einer Zeit entstanden, als die Baukosten noch 20-30% günstiger waren und der qm-Preis hier in der Stadt bei etwa 200€ lag. Aufgrund unseres Budgets kommen daher eigentlich nur Grundstücke bis ~550qm in Frage, sodass viele schonmal rausfallen.
Was uns wichtig ist bei der Auswahl der Grundstücke: möglichst ruhig gelegen (auch wenn wahrscheinlich überall ein Hintergrundrauschen von der Umgehungsstraße zu hören sein wird), zwischen 350 und 550qm groß. Bei der Ausrichtung des Gartens sind wir einigermaßen flexibel, wobei Süd oder Südwest-Ausrichtung natürlich am schönsten wären.
Bei den Grundstücken mit Kennzeichnung "S" (Vergabe über die Stadt) ist im Moment das Grundstück #37 unser Favorit. Von der Ausrichtung sind natürlich auch die Grundstücke #64 bis #77 interessant, die gehen aber alle in Richtung 600qm oder darüber hinaus. Und wir können nicht einschätzen, wie sehr man die Bundesstraße direkt hinter der Schallschutzwand hört.
Bei den Grundstücken mit Kennzeichnung "T" (spätere Vergabe über den Architekten) wären unsere Favoriten: #29, #30, #26, #25. Gerade bei #29 und #30 vermuten wir aber, dass sich alle Interessenten auf diese Grundstücke stürzen werden.
Welche Grundstücke würdet ihr in der Bewerbung angeben? Würdet ihr andere Grundstücke wählen? Hat vielleicht sogar jemand Erfahrungen mit Grundstücken hinter einer Schallschutzwand?
Viele Grüße
Doch, es gibt ein Gutachten und das bestätigt die Befürchtung, dass man wahrscheinlich überall ein Hintergrundrauschen hören wird. Was daraus nicht klar wird (zumindest mir nicht), wie die Situation genau hinter der Schallschutzwand sein wird.
Den Gedanken, dass der Lärm wie eine Welle über die Mauer "schwappt" und erst weiter entfernt wahrnehmbar ist, hatten wir auch schon. Leider reicht meine Erinnerung an den Physik-Grundkurs nicht mehr aus und bislang hab ich dazu auch noch nichts Belastbares im Internet gefunden.
Hier nochmal ein Auszug aus dem Gutachten dazu:

Den Gedanken, dass der Lärm wie eine Welle über die Mauer "schwappt" und erst weiter entfernt wahrnehmbar ist, hatten wir auch schon. Leider reicht meine Erinnerung an den Physik-Grundkurs nicht mehr aus und bislang hab ich dazu auch noch nichts Belastbares im Internet gefunden.
Hier nochmal ein Auszug aus dem Gutachten dazu:
ankaheos schrieb:
Grundstücke, die weder ein S noch ein T haben, gehen gar nicht erst in die Vermarktung.Das kann ich mir nicht so recht vorstellen.ankaheos schrieb:
Welche Grundstücke würdet ihr in der Bewerbung angeben? Würdet ihr andere Grundstücke wählen?Erzähle mal mehr zum Vergabeverfahren (Vorsicht, keine externen Links !), wie das aufgebaut ist: der Erste hat die volle Auswahl und die weiteren dann nur noch über den Rest ...lastdrop schrieb:
Gibt es keine Analyse dafür für das Baugebiet?Regelmäßig findet man darüber aufschlußreiche Erläuterungen, wenn man nach der Begründung zum Bebauungsplan schaut.https://www.instagram.com/11antgmxde/
https://www.linkedin.com/company/bauen-jetzt/
11ant schrieb:
Das kann ich mir nicht so recht vorstellen.Das hat mir eine Mitarbeiterin des Architekten heute am Telefon so bestätigt. Ich vermute, dass die vorherigen Grundstückseigentümer sich das haben zusichern lassen als Bedingung dafür, dass sie Teile ihres Grundstückeigentums verkaufen.
11ant schrieb:
Erzähle mal mehr zum Vergabeverfahren (Vorsicht, keine externen Links !), wie das aufgebaut ist: der Erste hat die volle Auswahl und die weiteren dann nur noch über den Rest ...Es gibt ein Punktesystem, über das wir die maximal mögliche Punktzahl erreichen (2 von 2 möglichen Punkten). Da werden wir aber sicher nicht die einzigen sein. Wenn es mehrere Bewerber mit der gleichen Punktzahl auf ein Grundstück gibt, dann wird gelost.
ankaheos schrieb:
Das hat mir eine Mitarbeiterin des Architekten heute am Telefon so bestätigt. Ich vermute, dass die vorherigen Grundstückseigentümer sich das haben zusichern lassen als Bedingung dafür, dass sie Teile ihres Grundstückeigentums verkaufen.Das ist auch der normale Weg. Es wäre aber allerhöchst ungewöhnlich, wenn keiner der Eigentümer herausgegebener Umlegungsparzellen verkaufswillig wäre.ankaheos schrieb:
Es gibt ein Punktesystem, über das wir die maximal mögliche Punktzahl erreichen (2 von 2 möglichen Punkten). Da werden wir aber sicher nicht die einzigen sein. Wenn es mehrere Bewerber mit der gleichen Punktzahl auf ein Grundstück gibt, dann wird gelost.Das klingt angenehm einfach und transparent, da läßt sich gut strategisch mit umgehen. Wieviele Jetons dürft Ihr denn platzieren ?Schaut im Bebauungsplan mal nach den Knödellinien und den Geschossigkeiten. Mehrfamilienhausriegel sind beliebte Bausteine eines Schallschutzkonzeptes. Auch Ausfahrten von Großgaragen würde ich in die Überlegungen mit einbeziehen.
https://www.instagram.com/11antgmxde/
https://www.linkedin.com/company/bauen-jetzt/
Ähnliche Themen