D
DominicHannove10.10.22 21:57Guten Tag,
wir haben uns eigentlich sogut wie für den Grundriss und einen Generalunternehner entschieden. Der Grundriss gefällt uns an sich shr gut, da er sämtliche Wünsche berücksichtigt. Diese waren:
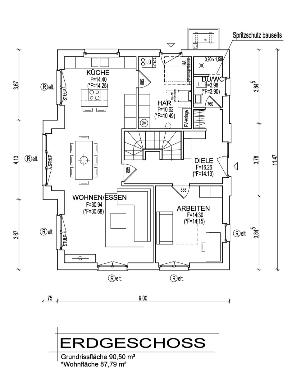
- EG: offene Küche mit Kücheninsel, größeres zusätzliches Zimmer (zunächst Büro, späteres Schlafzimmer), hell (viele Fensterflächen), Gästebad, Zugang von Küche zum Hauswirtschaftsraum (Abstellen von Getränkekisten, Konserven, etc), Abstellraum unter Treppe
- OG: zwei nicht zu kleine Kinderzimmer Richtung Süden, Durchgang an Hauswand von Elternschlafzimmer über Ankleide zum Bad, Bad mit weiterem Zugang vom Flur, Aufbau des Bades, kleines "Notfallzimmer" (Büro, Gäste, falls drittes Kind kommen sollte)
Jedoch stört uns etwas an dem Grundriss:
- der Wohn-/Ess-/Küchenbereich wirkt etwas gequetscht und schmal, die Kücheninsel sollte eigentlich größer/breiter werden
wirkt das nur so oder ist es tatsächlich so?
Idee war, die Treppe einfach etwas (ca. 30-50cm) Richtung Eingangsbereich zu verschieben. Zusätzlich könnte man die Wand zwischen Hauswirtschaftsraum und Küche ebenfalls entsprechend verschieben. Das geht aber alles nicht, da man dann oben nicht mehr ins Bad kommen würden. Dies können wir auch nicht durch eine Kniestockerhöhung umgehen, da wir nur 1-geschossig (Niedersachsen 66% OG vom EG) bauen dürfen und so die 66% übersteigen würden. Insgesamt größer bauen wollen wir eigentlich nicht (162m2 Wohnfläche sollten reichen und das Budget wird knapp).
Habt ihr Ideen wie wir das "Problem" lösen könnten?
Vielleicht habt ihr ja noch weitere Tipps zur Optimierung?!
Wir wären um jeden Tipp/jede Idee dankbar.
LG


wir haben uns eigentlich sogut wie für den Grundriss und einen Generalunternehner entschieden. Der Grundriss gefällt uns an sich shr gut, da er sämtliche Wünsche berücksichtigt. Diese waren:
- EG: offene Küche mit Kücheninsel, größeres zusätzliches Zimmer (zunächst Büro, späteres Schlafzimmer), hell (viele Fensterflächen), Gästebad, Zugang von Küche zum Hauswirtschaftsraum (Abstellen von Getränkekisten, Konserven, etc), Abstellraum unter Treppe
- OG: zwei nicht zu kleine Kinderzimmer Richtung Süden, Durchgang an Hauswand von Elternschlafzimmer über Ankleide zum Bad, Bad mit weiterem Zugang vom Flur, Aufbau des Bades, kleines "Notfallzimmer" (Büro, Gäste, falls drittes Kind kommen sollte)
Jedoch stört uns etwas an dem Grundriss:
- der Wohn-/Ess-/Küchenbereich wirkt etwas gequetscht und schmal, die Kücheninsel sollte eigentlich größer/breiter werden
wirkt das nur so oder ist es tatsächlich so?
Idee war, die Treppe einfach etwas (ca. 30-50cm) Richtung Eingangsbereich zu verschieben. Zusätzlich könnte man die Wand zwischen Hauswirtschaftsraum und Küche ebenfalls entsprechend verschieben. Das geht aber alles nicht, da man dann oben nicht mehr ins Bad kommen würden. Dies können wir auch nicht durch eine Kniestockerhöhung umgehen, da wir nur 1-geschossig (Niedersachsen 66% OG vom EG) bauen dürfen und so die 66% übersteigen würden. Insgesamt größer bauen wollen wir eigentlich nicht (162m2 Wohnfläche sollten reichen und das Budget wird knapp).
Habt ihr Ideen wie wir das "Problem" lösen könnten?
Vielleicht habt ihr ja noch weitere Tipps zur Optimierung?!
Wir wären um jeden Tipp/jede Idee dankbar.
LG
DominicHannove schrieb:
wir haben uns eigentlich sogut wie für den Grundriss und einen Generalunternehner entschieden. [...]
Jedoch stört uns etwas an dem Grundriss:
- der Wohn-/Ess-/Küchenbereich wirkt etwas gequetscht und schmal, die Kücheninsel sollte eigentlich größer/breiter werden
wirkt das nur so oder ist es tatsächlich so?
Idee war, die Treppe einfach etwas (ca. 30-50cm) Richtung Eingangsbereich zu verschieben.Merkwürdig: spontan wirkt der Entwurf auf mich so, als wäre das für die Treppe ziemlich genau ein "Zurückschieben auf die Ursprungsposition" (?)Insgesamt hat der Entwurf so eine ich sachma "puppenhausige" Anmutung, und ja, auch Engstellen bzw. Kleinteiligkeiten. So etwas sind regelmäßig die Auswirkungen, wenn Mustergrundrisse geschrumpft / gestaucht oder in mehr Räume / Zonen unterteilt werden, sodaß etwas vergröbert gesagt "aus Zimmern Kammern werden". Der Esstisch steht da mitten im Weg herum, als hätte man den dicksten Polizisten des ganzen Reviers mitten auf die Kreuzung gestellt. Streicht hier den deutlich redundanten Austritt, dann kann man den Tisch um 90° drehen.
https://www.instagram.com/11antgmxde/
https://www.linkedin.com/company/bauen-jetzt/
DominicHannove schrieb:
Jedoch stört uns etwas an dem Grundriss:Das haben Typenhäuser so an sich, dass einiges zwickt. Denn ein Typenhaus kann ja nicht alle Individualitäten und Lebensformen abdecken.DominicHannove schrieb:
Habt ihr Ideen wie wir das "Problem" lösen könnten?Ich würde vorschlagen, einfach mal den angepinnten Fragebogen auszufüllen.Grundstück, Ausrichtung, Kniestock… all das muss man ja wissen, wenn man Dir Vorschläge zum Wände verschieben darlegen möchte.
Wäre auch gut, wenn man wüsste, wo der GU die tragenden Wände plant.
Ähnliche Themen