Zisu2000 schrieb:
Das Baufeld geht über die komplette Breite des Grundstückes. Garagen und überdachte Stellplätze sind innerhalb der Baufelder zulässig laut Bebauungsplan. Ich gehe deshalb davon aus, das wir die Garage bis ganz an die Grenze bauen dürfen. Ansonsten würde es sowieso schon sehr knapp werden.
Ich kann das irgendwie kaum glauben. Die 3m Grenzabstand sind eigentlich fast überall einzuhalten. Bist Du sicher, dass Ihr links wie rechts einfach an die Grenze bauen dürft? Oder nur die Garagen? Ansonsten musst Du auch damit rechnen, dass Dein Nachbar komplett bis ran baut. Das ergäbe eine geschlossene Häuserfront an der Straße. Ist das ortsüblich?Ich werfe mal noch dieses EG in den Ring. Umgemodelte Vorlage von Scanhaus Marlow Marlow. Nur 8m Breite garantieren Licht überall im Wohnbereich. Garage fügt sich brav an die Seite, wenn Grenzbebauung wirklich zulässig. Etwas Mut gehört dazu. Zudem müssen die Leitungen vermutlich um die Garage drumrum. OG mach ich daher nur, wenn es lohnt.

Zisu2000 schrieb:
Das Baufeld geht über die komplette Breite des Grundstückes. Garagen und überdachte Stellplätze sind innerhalb der Baufelder zulässig laut Bebauungsplan. Ich gehe deshalb davon aus, das wir die Garage bis ganz an die Grenze bauen dürfen. Ansonsten würde es sowieso schon sehr knapp werden.Ihr sprecht aneinander vorbei, oder Zisu interpretiert seinen Lageplan falsch.
Es ist nicht unüblich, dass in einem Wohn-Baugebiet die Baugrenzen durchgezeichnet werden. Meist in einer Standardvariante: 5 Meter parallel von der Erschliessungsstraße, dann das Baufenster (wieder parallel) zb 15 Meter Tiefe, hier wohl 20 Meter.
Baulinie ist übrigens die Pflicht, an sie heranzubauen: die Linie zeigt Dir die definitive Lage einer Mauer an.
Baugrenze begrenzt "nur" das Baufenster.
Auch wenn das Baufenster über die Grundstücksgrenzen verläuft, hat man Abstandsflächen zum Nachbarn einzuhalten. Die sind in der Landesbauordnung erwähnt. Meist 3 Meter, in irgendeinem Bundesland auch 2,5 Meter.
Je höher man baut, desto größer wird der Abstand, der einzuhalten ist. Das wird errechnet vom Fachpersonal. Da können aus Minimum 3 Meter auch mal 3,70 entstehen.
Dann gibt es noch die Grenzbebauung: die erlaubt, ein untergeordnetes Gebäude auf Grenze zu setzen, meist bis zu 3 Meter hoch und bis zu 9 Meter auf einer Grenze lang. Insgesamt meist 12 Meter.
@kaho674
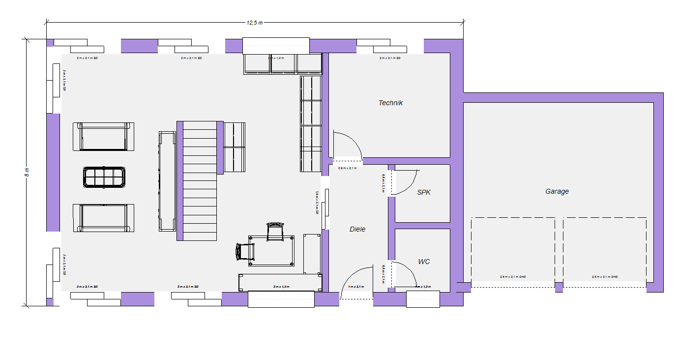
Der Grundriss gefällt mir jetzt nicht so sehr, sorry. Außerdem wird durch 12,5m Breite und dann noch die Garage von 6m der Abstand zum Nachbarn sehr gering (nicht mehr ganz 4m). Die Garage hätte ich aber so in etwa angedacht.
Das Haus wird man bestimmt nicht ganz an die Grenze bauen dürfen, da steht aber nichts genaues im Bebauungsplan. Da frage ich noch mal nach. Aber die Garage darf bis ganz an die Grenze gebaut werden. Im Plan sind die Garagen der jeweiligen Grundstücke sogar direkt aneinander. Bei uns würde die Garage nur nach rechts kommen, nicht wie im Plan links. Ist erlaubt, habe schon nachgefragt.
Hab mal das Grundstück mit Baufenster mitgesendet. Die Nummer 4 ist unser Grundstück (das Mittlere)

Der Grundriss gefällt mir jetzt nicht so sehr, sorry. Außerdem wird durch 12,5m Breite und dann noch die Garage von 6m der Abstand zum Nachbarn sehr gering (nicht mehr ganz 4m). Die Garage hätte ich aber so in etwa angedacht.
Das Haus wird man bestimmt nicht ganz an die Grenze bauen dürfen, da steht aber nichts genaues im Bebauungsplan. Da frage ich noch mal nach. Aber die Garage darf bis ganz an die Grenze gebaut werden. Im Plan sind die Garagen der jeweiligen Grundstücke sogar direkt aneinander. Bei uns würde die Garage nur nach rechts kommen, nicht wie im Plan links. Ist erlaubt, habe schon nachgefragt.
Hab mal das Grundstück mit Baufenster mitgesendet. Die Nummer 4 ist unser Grundstück (das Mittlere)
Zisu2000 schrieb:
Hab mal das Grundstück mit Baufenster mitgesendet. Die Nummer 4 ist unser Grundstück (das Mittlere)siehe #81
hellrot ist das Baufenster.
Informiere Dich und les die ganze Landesbauordnung sowie Eure Bauordnung. Das ist die Hausaufgabe, die man als Bauherr inne haben muss.
Ähnliche Themen