ᐅ Baufenster und Grenzbebauung Neubaugebiet
Erstellt am: 01.02.25 13:34
M
maxritter01.02.25 13:34Hallo Zusammen,
wir planen aktuell den Bau eines Einfamilienhauses inkl. Doppelgarage auf einem Grundstück in einem Neubaugebiet in Bayern.
Das blaue Baufenster ist mit 3m zur Straße und 5m zum bereits bestehenden Nachbarn rechts neben dem Grundstück festgelegt:

Hier der Lageplan des gesamten Baugebiets inkl. angezeichneter Vorschläge für Gebäude und Garage, von der wir mit unserer Platzierung abweichen würden:

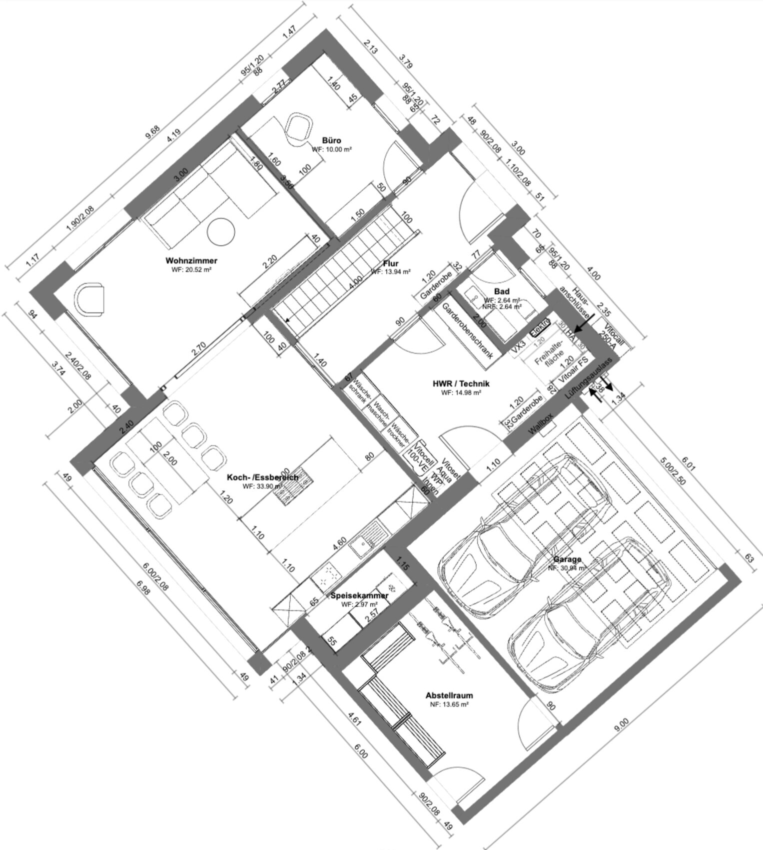
Wir hatten vor, unsere Doppelgarage mit 9m Breite direkt an die Grenze zu bauen, die Zufahrt zur Straße beträgt 5m:

In die Garagenfläche ragt noch ein kleiner gedämmter Erker für die Speisekammer rein, die reine Garagenfläche mit Abstellraum für die Grenzbebauung sollte somit knapp unter 50 Quadratmeter sein:

Der bestehende Nachbar hat sein Haus und seine Garage wie folgt gebaut, unsere würde also mit etwas Abstand daneben kommen:

Nun unsere beiden Fragen:
wir planen aktuell den Bau eines Einfamilienhauses inkl. Doppelgarage auf einem Grundstück in einem Neubaugebiet in Bayern.
Das blaue Baufenster ist mit 3m zur Straße und 5m zum bereits bestehenden Nachbarn rechts neben dem Grundstück festgelegt:
Hier der Lageplan des gesamten Baugebiets inkl. angezeichneter Vorschläge für Gebäude und Garage, von der wir mit unserer Platzierung abweichen würden:
Wir hatten vor, unsere Doppelgarage mit 9m Breite direkt an die Grenze zu bauen, die Zufahrt zur Straße beträgt 5m:
In die Garagenfläche ragt noch ein kleiner gedämmter Erker für die Speisekammer rein, die reine Garagenfläche mit Abstellraum für die Grenzbebauung sollte somit knapp unter 50 Quadratmeter sein:
Der bestehende Nachbar hat sein Haus und seine Garage wie folgt gebaut, unsere würde also mit etwas Abstand daneben kommen:
Nun unsere beiden Fragen:
- Dürfen wir die Doppelgarage so als Grenzbebauung direkt an die Grundstücksgrenze bauen? Muss der Erker für die Speisekammer noch komplett im Baufenster liegen oder kann der auch ein paar Zentimeter drüber sein?
- Das blau gezeichnete Baufenster hat in der Kurve oben einen größeren Abstand zur Straße als drei Meter, hier könnte es mit der Breite unseres Hauses knapp werden. Wir wollen das Haus nicht unnötig weit nach unten schieben, damit wir möglichst viel Garten haben. Was gilt hier, die genaue Position der Linie auf der Zeichnung oder die drei Meter Abstand zur Straße (die haben wir)?
M
maxritter01.02.25 14:25maxritter schrieb:
Dürfen wir die Doppelgarage so als Grenzbebauung direkt an die Grundstücksgrenze bauen? Muss der Erker für die Speisekammer noch komplett im Baufenster liegen oder kann der auch ein paar Zentimeter drüber sein?Vorsprünge bis zu einem Drittel, dazu gehören auch Erker, und einer Tiefe bis 1,irgendwas dürfen auch rüberragen.Das ist in der Landesbauordnung definiert. Kannst Du nachlesen.
Insofern würde ich sagen, erlaubt.
maxritter schrieb:
Das blau gezeichnete Baufenster hat in der Kurve oben einen größeren Abstand zur Straße als drei Meter, hier könnte es mit der Breite unseres Hauses knapp werden. Wir wollen das Haus nicht unnötig weit nach unten schieben, damit wir möglichst viel Garten haben. Was gilt hier, die genaue Position der Linie auf der Zeichnung oder die drei Meter Abstand zur Straße (die haben wir)?Auch irgendwo in der Landesbauordnung verankert: Kurven innerorts und die Bebauung bzw Bepflanzung, genannt Sichtdreieck. Das Teil ist Tabu für eine Bebauung.Der Grundriss wird hier nicht debattiert, dafür gibt es ein anderes Unterforum. Dennoch sage ich mal, dass die Anordnung der Technik hier etwas Wunschdenken ist. Der Handwerker wird Dir alles nahe der Zuleitung stellen. Die Lüftungsauslässe sind auch zu dicht beieinander.
H
hanghaus202301.02.25 16:28Hast Du die entsprechende Satzung?
"Die Satzung über die Herstellung und Gestaltung von Tiefgaragen, Garagen, Kraftfahrzeugstellplätzen und Fahrradabstellanlagen sowie die Berechnung der notwendigen Anzahl von Kraftfahrzeugstellplätzen im Bereich der Stadt Bad Wörishofen (Kfz.-Stellplatz-Satzung) ist in der jeweils aktuellen Fassung anzuwenden."
"Die Satzung über die Herstellung und Gestaltung von Tiefgaragen, Garagen, Kraftfahrzeugstellplätzen und Fahrradabstellanlagen sowie die Berechnung der notwendigen Anzahl von Kraftfahrzeugstellplätzen im Bereich der Stadt Bad Wörishofen (Kfz.-Stellplatz-Satzung) ist in der jeweils aktuellen Fassung anzuwenden."
M
maxritter01.02.25 16:31@ypg Danke für deine Einschätzung! Dann ist in dem Fall die blaue Linie bindend und wir müssen uns wohl etwas verschmalern.
Bzgl. der Technik hast du sicherlich Recht, das heißt Wärmepumpe Innengerät und Wasserspeicher müssten nach vorne Richtung HA? Wie viel Abstand brauchen wir zwischen den Lüftungsauslässen?
Bzgl. der Technik hast du sicherlich Recht, das heißt Wärmepumpe Innengerät und Wasserspeicher müssten nach vorne Richtung HA? Wie viel Abstand brauchen wir zwischen den Lüftungsauslässen?
H
hanghaus202301.02.25 16:46ypg schrieb:
Vorsprünge bis zu einem Drittel, dazu gehören auch Erker, und einer Tiefe bis 1,irgendwas dürfen auch rüberragen.
Das ist in der Landesbauordnung definiert. Kannst Du nachlesen.
Insofern würde ich sagen, erlaubt.Aber nur wenn die max. über eine Etage gehen.
"untergeordnete Vorbauten wie Balkone und eingeschossige Erker, wenn sie
a)
insgesamt nicht mehr als ein Drittel der Breite der Außenwand des jeweiligen Gebäudes, höchstens jeweils 5 m, in Anspruch nehmen,
b)
nicht mehr als 1,50 m vor diese Außenwand vortreten und
c)
mindestens 2 m von der gegenüberliegenden Nachbargrenze entfernt bleiben,"
Ähnliche Themen