Zisu2000 schrieb:
@11ant
Du redest jetzt aber vom Abstand des Hauptgebäudes. Da stimme ich Dir zu. Die Garage darf aber meiner Meinung nach direkt an die Grenze. Die Garagen sind ja im Plan sogar direkt aneinander eingezeichnet. Das Haus muss ja auch nicht direkt an die Grenze.
Am Montag informiere ich Euch auf jeden Fall, wie es jetzt genau aussieht.Nein!
Die Begründung ist völlig falsch. Völlig falsch ist auch anzunehmen, diese Roten Vorschläge wären Satz.
Wenn Du die Landesbauordnung und die Bauordnung nicht lesen magst, dann bitte.
Aber bitte nicht mehr weiter mit uns rumrätseln.
@ypg
Es hat nichts damit zu tun, sie nicht lesen zu wollen. Dachte nur, das die Beschreibung im Bebauungsplan gültig ist und dort steht ja eindeutig drin, das Garagen bis an die Grenze gebaut werden dürfen.
Aber wie ich schon sagte, ich will ja gar nicht rumrätseln sondern mich informieren beim Bauamt. Dies geht aber erst am Montag, weil am Wochenende keiner arbeitet. Bitte unterstelle mir also nicht, das ich hier rumrätseln will. Das ist nicht meine Absicht und das habe ich auch so geschrieben gehabt. Bitte nicht als Kritik verstehen, Infos will ich ja einholen aber halt erst am Montag. Werde dann hier sofort berichten.
Dies steht übrigens in der Landesbauordnung drin
"Bestimmte (meist kleinere) Bauwerke, wie zum Beispiel Garagen oder Gartengerätehäuschen, dürfen in den meisten Bundesländern in Abstandsflächen und ohne Abstand zur Grundstücksgrenze errichtet werden. Sie haben selbst keine Abstandsflächen" Dies wurde mir auch so gesagt von meinem Bauamt.
@kaho674
Dein Vorschlag gefällt mir sehr gut!!! Müssen wir mal abklären, was uns so ein zusätzlicher Erker kosten würde. Wenn wir jetzt mal "annehmen", das die Garage an die Grenze darf dann hätten wir nach links zum Nachbarn noch ca. 4m Abstand. Wäre jetzt aber auch nicht so schlimm, weil die Hauptterrasse ja nach hinten in Richtung Garten zeigt. Dein Vorschlag ist aber eine echte Alternative, danke dafür
Ich bin auch grade dabei, meinen ersten eingestellten Grundriss zu überarbeiten und Eure Vorschläge dort mit einfließen zu lassen. Werden diesen mal hier einstellen, sobald er fertig ist. Er ist zwar dann trotzdem etwas langweiliger als Dein Vorschlag gerade, aber trotzdem würde mich interessieren was Ihr davon haltet.
Es hat nichts damit zu tun, sie nicht lesen zu wollen. Dachte nur, das die Beschreibung im Bebauungsplan gültig ist und dort steht ja eindeutig drin, das Garagen bis an die Grenze gebaut werden dürfen.
Aber wie ich schon sagte, ich will ja gar nicht rumrätseln sondern mich informieren beim Bauamt. Dies geht aber erst am Montag, weil am Wochenende keiner arbeitet. Bitte unterstelle mir also nicht, das ich hier rumrätseln will. Das ist nicht meine Absicht und das habe ich auch so geschrieben gehabt. Bitte nicht als Kritik verstehen, Infos will ich ja einholen aber halt erst am Montag. Werde dann hier sofort berichten.
Dies steht übrigens in der Landesbauordnung drin
"Bestimmte (meist kleinere) Bauwerke, wie zum Beispiel Garagen oder Gartengerätehäuschen, dürfen in den meisten Bundesländern in Abstandsflächen und ohne Abstand zur Grundstücksgrenze errichtet werden. Sie haben selbst keine Abstandsflächen" Dies wurde mir auch so gesagt von meinem Bauamt.
@kaho674
Dein Vorschlag gefällt mir sehr gut!!! Müssen wir mal abklären, was uns so ein zusätzlicher Erker kosten würde. Wenn wir jetzt mal "annehmen", das die Garage an die Grenze darf dann hätten wir nach links zum Nachbarn noch ca. 4m Abstand. Wäre jetzt aber auch nicht so schlimm, weil die Hauptterrasse ja nach hinten in Richtung Garten zeigt. Dein Vorschlag ist aber eine echte Alternative, danke dafür
Ich bin auch grade dabei, meinen ersten eingestellten Grundriss zu überarbeiten und Eure Vorschläge dort mit einfließen zu lassen. Werden diesen mal hier einstellen, sobald er fertig ist. Er ist zwar dann trotzdem etwas langweiliger als Dein Vorschlag gerade, aber trotzdem würde mich interessieren was Ihr davon haltet.
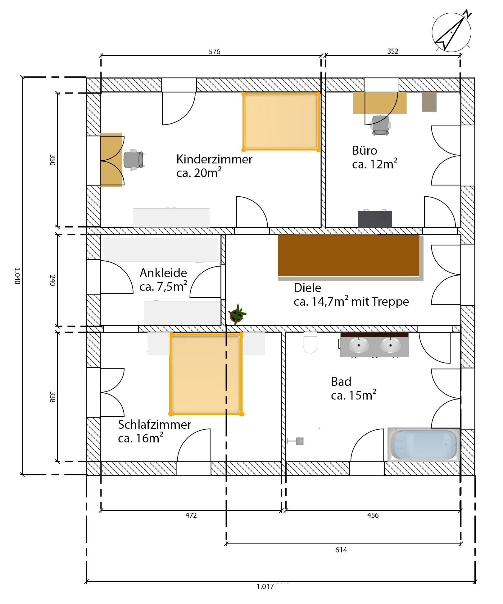
Hi zusammen,
hier noch mal wie versprochen die überarbeiteten Grundrisse (die aus dem Eingangspost)
Folgende Änderungen:
- Küche im NW mit kurzem Weg auf die Terrasse durch eine Schiebetüre
- Schlafzimmer kleiner gemacht
- Weg ins Schlafzimmer durch die Ankleide
- Kinderzimmer vergrößert
- Büro und Badezimmer getauscht.
- Treppe wird offen sein, nicht mehr geschlossen. Dadurch wirkt vielleicht die Diele größer.
Folgende Überlegungen noch nicht im Plan umgesetzt:
- Eventueller Zugang vom Schlafzimmer direkt ins Bad?
- Wenn möglich, direkter Zugang in die Speis vom Eingang aus
Die Zimmergrößen, vor allem im OG, können noch durch verschieben der Wände geändert werden. Da ist nichts in Stein gemeißelt . Bitte auch nicht an den Möbeln stören. Diese sind nur als Beispiel, um die Raumgrößen etwas abschätzen zu können. Vor allem das Bad wird nicht so aussehen. Da wollen wir uns aber extra noch mal Gedanken machen. Wollte aber vorab schon mal die Grundrisse für Euch einstellen.
Freue mich schon wieder auf Eure Kritik. Auch alternative Grundrisse sind nicht vom Tisch. Wollte nur mal Eure Ideen in den alten Plänen umsetzen.
Ein schönes sonniges Wochenende wünsche ich Euch allen noch und viel Spaß bei dem Traumwetter




hier noch mal wie versprochen die überarbeiteten Grundrisse (die aus dem Eingangspost)
Folgende Änderungen:
- Küche im NW mit kurzem Weg auf die Terrasse durch eine Schiebetüre
- Schlafzimmer kleiner gemacht
- Weg ins Schlafzimmer durch die Ankleide
- Kinderzimmer vergrößert
- Büro und Badezimmer getauscht.
- Treppe wird offen sein, nicht mehr geschlossen. Dadurch wirkt vielleicht die Diele größer.
Folgende Überlegungen noch nicht im Plan umgesetzt:
- Eventueller Zugang vom Schlafzimmer direkt ins Bad?
- Wenn möglich, direkter Zugang in die Speis vom Eingang aus
Die Zimmergrößen, vor allem im OG, können noch durch verschieben der Wände geändert werden. Da ist nichts in Stein gemeißelt . Bitte auch nicht an den Möbeln stören. Diese sind nur als Beispiel, um die Raumgrößen etwas abschätzen zu können. Vor allem das Bad wird nicht so aussehen. Da wollen wir uns aber extra noch mal Gedanken machen. Wollte aber vorab schon mal die Grundrisse für Euch einstellen.
Freue mich schon wieder auf Eure Kritik. Auch alternative Grundrisse sind nicht vom Tisch. Wollte nur mal Eure Ideen in den alten Plänen umsetzen.
Ein schönes sonniges Wochenende wünsche ich Euch allen noch und viel Spaß bei dem Traumwetter
Ähnliche Themen