ᐅ Grundrissplanung Neubau Einfamilienhaus mit Doppelgarage (Stadtvilla)
Erstellt am: 27.12.19 13:42
M
maxl229
Hallo zusammen,
wir haben in der vergangenen Woche den ersten Entwurfsvorschlag unseres Architekten für den Neubau eines Einfamilienhaus mit Doppelgarage erhalten.
Nachfolgend die Beantwortung des Fragebogens soweit wie möglich.
Wenn ich den ein oder anderen Punkt falsch oder missverständlich ausgefüllt habe, bitte ich dies zu entschuldigen.
Bebauungsplan/Einschränkungen
Größe des Grundstücks: 1701qm (Front ca. 27m)
Hang: leicht ansteigend Richtung Norden, jedoch keine Auswirkungen auf Grundriss bzw. Gestaltung
Grundflächenzahl: NA
Geschossflächenzahl: NA
Baufenster, Baulinie und -grenze:
Randbebauung:
Anzahl Stellplatz:
Geschossigkeit:
Dachform: NA
Stilrichtung: NA
Ausrichtung: Norden
Maximale Höhen/Begrenzungen:
weitere Vorgaben: §34
Anforderungen der Bauherren
Stilrichtung, Dachform, Gebäudetyp: Stadtvilla mit Zeltdach / Garage mit Zeltdah
Keller, Geschosse: kein Keller, 2 Vollgeschosse
Anzahl der Personen, Alter: 2, 28
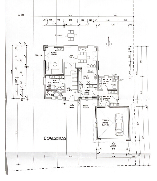
Raumbedarf im EG: Küche, Wohnen+Essen, Büro, Gäste-WC, Vorratsraum, Waschraum
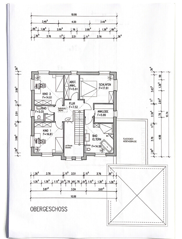
OG: 1 Elternschlafzimmer + Ankleide + Bad, 2 Kinderschlafzimmer + Bad, Abstellraum
Büro: Homeoffice
Schlafgäste pro Jahr: nicht relevant
offene oder geschlossene Architektur: offen
konservativ oder moderne Bauweise: modern
offene Küche, Kochinsel: ja
Anzahl Essplätze: 6
Kamin: nein
Musik/Stereowand: nein
Balkon, Dachterrasse: nein
Garage, Carport: Doppelgarage
Nutzgarten, Treibhaus
Hausentwurf
Von wem stammt die Planung:
-Architekt
Was gefällt besonders? Warum?
Raumaufteilung im OG wurde wie besprochen umgesetzt;
Luftraum im Eingangsbereich wurde von Architekt installiert und für gut befunden
Was gefällt nicht? Warum?
Da unsererseits kein Flachdach auf der Garage erwünscht ist, wurde eine Doppelgarage mit Zeltdach geplant mit anschl. Flachdachanbau, um den direkten Hauszugang zu ermöglichen.
Jedoch wirkt die Gestaltung der Räume Waschen+Trocknen, Heizung+Technik sowie Vorrat+HAR irgendwie unrund.
Wenn möglich würden wir gerne den Vorratsraum mit dem Waschraum tauschen und in die Küche eine Speisekammer installieren.
Dadurch könnte das Nebengebäude etwas verkleinert werden und das Fenster in der Küche vergrößert werden. Ich vermute jedoch, dass wir dann um eine Vergrößerung der Gesamtfläche nicht rum kommen.
Preisschätzung lt Architekt/Planer: ca. 390 TEUR inkl. Lüftungsanlage
Persönliches Preislimit fürs Haus, inkl Ausstattung: Preisschätzung liegt im Budget
favorisierte Heiztechnik: Gas + Solarthermie (im Entwurf wurde eine luftwärmepumpe installiert)
Wenn Ihr verzichten müsst, auf welche Details/Ausbauten
-könnt Ihr verzichten:
-könnt Ihr nicht verzichten:
Was ist die wichtigste/grundlegende Frage zum Grundriss in 130 Zeichen zusammengefasst?
Im Großen und Ganzen wurden unsere Wünsche hinsichtlich Raumaufteilung und Bauweise gut umgesetzt.
Einzig die oben beschriebene Raumaufteilung des Nebengebäude inkl. Vorratsraum wirkt nicht so rund.
Was haltet ihr von unseren Ideen bzw. welche Möglichkeiten der Umgestaltung würdet ihr vornehmen?
Vielen Dank im Voraus für den regen Austausch!
Liebe Grüße
Max






wir haben in der vergangenen Woche den ersten Entwurfsvorschlag unseres Architekten für den Neubau eines Einfamilienhaus mit Doppelgarage erhalten.
Nachfolgend die Beantwortung des Fragebogens soweit wie möglich.
Wenn ich den ein oder anderen Punkt falsch oder missverständlich ausgefüllt habe, bitte ich dies zu entschuldigen.
Bebauungsplan/Einschränkungen
Größe des Grundstücks: 1701qm (Front ca. 27m)
Hang: leicht ansteigend Richtung Norden, jedoch keine Auswirkungen auf Grundriss bzw. Gestaltung
Grundflächenzahl: NA
Geschossflächenzahl: NA
Baufenster, Baulinie und -grenze:
Randbebauung:
Anzahl Stellplatz:
Geschossigkeit:
Dachform: NA
Stilrichtung: NA
Ausrichtung: Norden
Maximale Höhen/Begrenzungen:
weitere Vorgaben: §34
Anforderungen der Bauherren
Stilrichtung, Dachform, Gebäudetyp: Stadtvilla mit Zeltdach / Garage mit Zeltdah
Keller, Geschosse: kein Keller, 2 Vollgeschosse
Anzahl der Personen, Alter: 2, 28
Raumbedarf im EG: Küche, Wohnen+Essen, Büro, Gäste-WC, Vorratsraum, Waschraum
OG: 1 Elternschlafzimmer + Ankleide + Bad, 2 Kinderschlafzimmer + Bad, Abstellraum
Büro: Homeoffice
Schlafgäste pro Jahr: nicht relevant
offene oder geschlossene Architektur: offen
konservativ oder moderne Bauweise: modern
offene Küche, Kochinsel: ja
Anzahl Essplätze: 6
Kamin: nein
Musik/Stereowand: nein
Balkon, Dachterrasse: nein
Garage, Carport: Doppelgarage
Nutzgarten, Treibhaus
Hausentwurf
Von wem stammt die Planung:
-Architekt
Was gefällt besonders? Warum?
Raumaufteilung im OG wurde wie besprochen umgesetzt;
Luftraum im Eingangsbereich wurde von Architekt installiert und für gut befunden
Was gefällt nicht? Warum?
Da unsererseits kein Flachdach auf der Garage erwünscht ist, wurde eine Doppelgarage mit Zeltdach geplant mit anschl. Flachdachanbau, um den direkten Hauszugang zu ermöglichen.
Jedoch wirkt die Gestaltung der Räume Waschen+Trocknen, Heizung+Technik sowie Vorrat+HAR irgendwie unrund.
Wenn möglich würden wir gerne den Vorratsraum mit dem Waschraum tauschen und in die Küche eine Speisekammer installieren.
Dadurch könnte das Nebengebäude etwas verkleinert werden und das Fenster in der Küche vergrößert werden. Ich vermute jedoch, dass wir dann um eine Vergrößerung der Gesamtfläche nicht rum kommen.
Preisschätzung lt Architekt/Planer: ca. 390 TEUR inkl. Lüftungsanlage
Persönliches Preislimit fürs Haus, inkl Ausstattung: Preisschätzung liegt im Budget
favorisierte Heiztechnik: Gas + Solarthermie (im Entwurf wurde eine luftwärmepumpe installiert)
Wenn Ihr verzichten müsst, auf welche Details/Ausbauten
-könnt Ihr verzichten:
-könnt Ihr nicht verzichten:
Was ist die wichtigste/grundlegende Frage zum Grundriss in 130 Zeichen zusammengefasst?
Im Großen und Ganzen wurden unsere Wünsche hinsichtlich Raumaufteilung und Bauweise gut umgesetzt.
Einzig die oben beschriebene Raumaufteilung des Nebengebäude inkl. Vorratsraum wirkt nicht so rund.
Was haltet ihr von unseren Ideen bzw. welche Möglichkeiten der Umgestaltung würdet ihr vornehmen?
Vielen Dank im Voraus für den regen Austausch!
Liebe Grüße
Max
11ant schrieb:
Als in welchem "Modus" befindlich nimmst Du mich denn sonst wahr ?Eine mutige Frage. 11ant schrieb:
Als in welchem "Modus" befindlich nimmst Du mich denn sonst wahr ?Du warst immer gut darin, Dich hinsichtlich Entwurf und Gestaltung rauszuhalten und hast es auch so erwähnt.Nach dem ich die letzten Tage im Urlaub verweilt habe, habe ich mir die Vorschläge sorgfältig durchgelesen und einige Ideen gesammelt.
Da ich nicht mit künstlerischen Talenten gesegnet bin, benötigt es etwas Vorstellungskraft, um die aktuellen Ideen nachzuvollziehen:

- Vorrat & HAR soll mit Waschen+Trocknen getauscht werden und es soll ein waschbecken integriert werden; Tür zu ehem. Küche soll entfernt werden
- Küche in Nord/Ostecke
- Wohn-/Esszimmer geht zukünftig bis Büro
- Büro kommt an die Stelle der Küche
- Diele um 1m verkürzen, um zusätzlichen Wohnfläche in Wohn-/Esszimmer zu gewinnen
- Tür von Vorratsraum nach außen soll entfernt werden und hierfür eine Tür aus der Garage nach außen installiert werden; ggf. kann dann auch der Heizung+Technikraum etwas nach unten geschoben werden bzw. über Eck integriert werden, um den Flachdachanteil zu reduzieren
Ob sich die Ideen so umsetzen lassen weiß ich jedoch nicht.
- Hierfür wäre es erforderlich die aktuell eingezeichnete Wand zwischen Büro und Wohnzimmer zu entfernen, um die offene Raumgestaltung zu erhalten. Die Wand könnte jedoch gespiegelt werden, um dann Küche und Büro zu trennen.
- Die Treppe müsste so hoch sein, dass eine Tür in den zukünftigen Büroraum passt
- Wände in der Diele müssten verkürzt werden und Flügeltür 1m zurückgezogen werden
Oder seht ihr andere Lösungen?
In diesem Zusammenhang müssten natürlich auch die jeweiligen Fenster versetzt werden, aber das ist dann Aufgabe der Architektin.
OG sehen wir aktuell wenig Veränderungsbedarf, sofern durch die Umgestaltung im EG nicht Zwangsanpassungen notwendig sind.

Da ich nicht mit künstlerischen Talenten gesegnet bin, benötigt es etwas Vorstellungskraft, um die aktuellen Ideen nachzuvollziehen:
- Vorrat & HAR soll mit Waschen+Trocknen getauscht werden und es soll ein waschbecken integriert werden; Tür zu ehem. Küche soll entfernt werden
- Küche in Nord/Ostecke
- Wohn-/Esszimmer geht zukünftig bis Büro
- Büro kommt an die Stelle der Küche
- Diele um 1m verkürzen, um zusätzlichen Wohnfläche in Wohn-/Esszimmer zu gewinnen
- Tür von Vorratsraum nach außen soll entfernt werden und hierfür eine Tür aus der Garage nach außen installiert werden; ggf. kann dann auch der Heizung+Technikraum etwas nach unten geschoben werden bzw. über Eck integriert werden, um den Flachdachanteil zu reduzieren
Ob sich die Ideen so umsetzen lassen weiß ich jedoch nicht.
- Hierfür wäre es erforderlich die aktuell eingezeichnete Wand zwischen Büro und Wohnzimmer zu entfernen, um die offene Raumgestaltung zu erhalten. Die Wand könnte jedoch gespiegelt werden, um dann Küche und Büro zu trennen.
- Die Treppe müsste so hoch sein, dass eine Tür in den zukünftigen Büroraum passt
- Wände in der Diele müssten verkürzt werden und Flügeltür 1m zurückgezogen werden
Oder seht ihr andere Lösungen?
In diesem Zusammenhang müssten natürlich auch die jeweiligen Fenster versetzt werden, aber das ist dann Aufgabe der Architektin.
OG sehen wir aktuell wenig Veränderungsbedarf, sofern durch die Umgestaltung im EG nicht Zwangsanpassungen notwendig sind.
maxl229 schrieb:
Vorrat & HAR soll mit Waschen+Trocknen getauscht werden und es soll ein Waschbecken integriert werden;Es ist egal, wie Du die Räume nennst: sie liegen zur Zeit alle in der thermischen Hülle und verbrauchen (derzeit) 6 Türen, wovon 3 unnötig sind und eher einen Raum zum Flur degradieren (jetziger Waschraum)maxl229 schrieb:
Tür von Vorratsraum nach außen soll entfernt werden und hierfür eine Tür aus der Garage nach außen installiert werden; ggf. kann dann auch der Heizung+Technikraum etwas nach unten geschoben werden bzw. über Eck integriert werden, um den Flachdachanteil zu reduzieren?maxl229 schrieb:
Die Treppe müsste so hoch sein, dass eine Tür in den zukünftigen Büroraum passtDas sehe ich nicht, zumal Du den Flur einkürzen willst. Ggf sollte die Treppe auf die andere Seite, dann hast Du Platz ohne Ende, eine Tür zu setzen. Allerdings wird sich das OG ändern.maxl229 schrieb:
OG sehen wir aktuell wenig Veränderungsbedarf,S.o.ypg schrieb:
Es ist egal, wie Du die Räume nennst: sie liegen zur Zeit alle in der thermischen Hülle und verbrauchen (derzeit) 6 Türen, wovon 3 unnötig sind und eher einen Raum zum Flur degradieren (jetziger Waschraum)Wie kommst du auf 6 Türen?
Wenn der Waschraum in den derzeitigen Vorratsraum kommt, gibt es noch 1 Tür von Diele in Waschraum und 1 Tür in das Nebengebäude. Zusätzlich noch 1 Tür von Garage in den Vorrats- und 1 Tür in den Heizungsraum.
Also in Summe 4 Türen.
ypg schrieb:
Das sehe ich nicht, zumal Du den Flur einkürzen willst. Ggf sollte die Treppe auf die andere Seite, dann hast Du Platz ohne Ende, eine Tür zu setzen. Allerdings wird sich das OG ändern.Wäre eine Überlegung wert. Müsste ich dann auf dem Papier sehen, wie sich das OG anordnen würde.
Ähnliche Themen