Hausbau - Ratgeber
Bauherrenhilfe
- Bauherrenhilfe vor Vertragsabschluss
-- Warum einen unabhängigen Baubetreuer?
-- Vertragsgrundlagen
-- Bausumme
-- Zahlungsplan zur Kostenkontrolle
-- Pflichten des Bauherren vor Vertragsabschluss
-- Unterlagen beim Hausbau vor Vertragsabschluss
- Bauherrenhilfe nach Vertragsabschluss
-- Bauantrag bei Behörden
-- Bau-Genehmigungsverfahren bei Baubehörden
-- Bauspezifische Versicherungen
-- Bauzeitenplan
-- Baubeginn - die Letzten Pflichten der Bauherrschaft
- Bauherrenhilfe während der Bauzeit
- Gewährleistungsansprüche
- Bauabnahme
Baufinanzierung
- Baufinanzierung - Allgemeine Fragen
- Kreditarten
- Kredit-Konditionen
- Bausparen
- Staatliche Förderungen
- Verkehrswert
- Haushaltsrechnung und Bonität
Hausbau Planung
- Haustypen
- Hausbau Vorbereitungsarbeiten
- Das Baugrundstück
- Baugrund beim Hausbau
- Baurecht
- Gebäudeschutz
- Erdarbeiten und Wasserhaltung
- Stützmauern
- Einfriedung
- Untergeschoss
- Kanalisation
- Tragende Elemente
- Nichttragende Innenwände
- Fundation / Fundament
- Deckenkonstruktionen
- Dächer
- Kaminanlagen
- Treppen Rampen Leitern
- Dachbeläge und Spengler
- Fenster
- Sonnen und Wetterschutz
- Aussenputze
- Einbauten, Küchen, Türen
- Bodenbeläge und Unterlagsböden
- Parkett
- Gips, Wand, Decke
Haustechnik und Energie
- Heiztechnik
- Lüftung und Klimatechnik
- Sanitärtechnik
- Elektrotechnik
- Erneuerbare Energie
Whirlpools / Jacuzzi
Hausbau Magazin
- Baufinanzierung trotz Krise?
- Das Blockhaus
- Moderne Dämmstoffe im Vergleich
- Erker Vor- und Nachteile
- Glasflächen beim Hausbau
- Günstig ein Haus Bauen
- Mediterraner Hausbaustil
- Mehrgenerationenhaus
- Moderne Architektur
- Gartengestaltung leicht gemacht
- Traditioneller Ziegelbau
- Villa als höchster Traum
- Im Eigenheim Ruhestand geniessen
- Altbau sanieren
- Kauf einer Holzgarage
- Immobilienmakler
- Arbeitshandschuhe für den Winter
- Zuhause verschönern
- Outdoor-Plissees
- Schlafzimmer planen
- Terrassenüberdachung
- Wohngebäudeversicherung
- Zaunarten und Eigenschaften
- Hauseingang gestalten
- Der perfekte Grundriss
- Sparsamer heizen im Altbau
- Einfamilienhaus smart finanzieren
- Planung einer PV-Anlage
- Neues Haus
- Immobilienfinanzierung
- Installation einer Photovoltaikanlage
- Asbest erkennen und entfernen
- Gartenpflege im Frühling – worauf achten
- Sauna im Fokus - Wellness zuhause
- Erfolgreich vermieten
- Die perfekte Winterbekleidung
- Das Niedrigenergiehaus
- Der April und seine Stürme
- Architektonische Vielfalt
- Ökologisch und nachhaltig bauen
- Das perfekte Schlafzimmer
- Nachhaltige Energieversorgung
- Zukunftsorientiert bauen
- Nachhaltigkeit beim Hausbau
- Tiny Houses
- Wärmepumpen als nachhaltige Heizvariante
- Maßgeschneiderten Kleiderschrank
- Der richtige Baukredit
- Ratgeber für erfolgreichen Hausbau
- Haus als Altersvorsorge
Do-it-yourself Anleitungen
- Verlegeanleitung für Bodenbeläge und Parkett
- Bodenbeläge und Parkett reinigen und pflegen
- Malerarbeiten am Haus
- Garten Tipps
- Umzug und Reinigung

ᐅ Grundrissplanung freistehendes Einfamilienhaus 9x16 m - erbitte Vorschläge

Erstellt am: 03.01.20 10:32
K
Klaus23
H
haydee
03.01.20 15:20
Zeichne bei jedem Entwurf möbel im Maßstab ein.

Weiß jetzt nicht was ihr mit diesem gigantischen Wohnzimmer vorhabt. Überlegt euch ob ihr den Billardtisch oder Lesebereich nicht in ein separates Zimmer plant.

Zwei Autos hintereinander ist mehr als unpraktisch. Fahrräder und Co müssen auch durch diesen Schlauch mit 2 parkenden Autos.

Gebt den Haus im Eingangsbereich mehr Großzügigkeit.
Nutzt die Treppe als Teiler.
Wenn ihr die Treppe mittigen ins Haus setzt, könnt ihr im OG zur Straße hin den Elternteil planen und nach hinten die Kinderzimmer ohne zu verschachteln
C
Curly
03.01.20 16:46
den Grundriss würde ich nicht verbessern, sondern komplett verwerfen und neu planen, der ist einfach nichts. Viel zu eng im Flur, stockdunkel und eng in der Garderobe und ein Wohnzimmer wie ein Großraumbüro. Wenn ein so großes Wohnzimmer gewünscht ist, dann doch etwas aufgeteilter, wie zum Beispiel in einem Erker/Wintergarten, den man noch mal extra mit Sesseln und Pflanzen möblieren kann. In einem nahezu quadratischen, riesigem Wohnraum fühlt man sich einfach unwohl.
Vom Schlafzimmer kommt man in Ankleide oder Bad, wie soll da der Partner mal in Ruhe länger schlafen? Das Kinderbad liegt auch maximal entfernt von den Kinderzimmern. Schaut euch doch mal ein paar Musterhäuser an, da könnt ihr die Abmessungen und verschiedenen Raumkonzepte mal in echt sehen.

LG
Sabine
K
Klaus23
03.01.20 17:35
Besten Dank für die Hinweise und ehrlichen Kritiken.

Ich habe nochmals alles überarbeitet und mich dabei an einen Hausentwurf hier im Forum orientiert.

Nochmals mit der Bitte um ehrliche Ratschläge!!!
Danke vorab!!!!

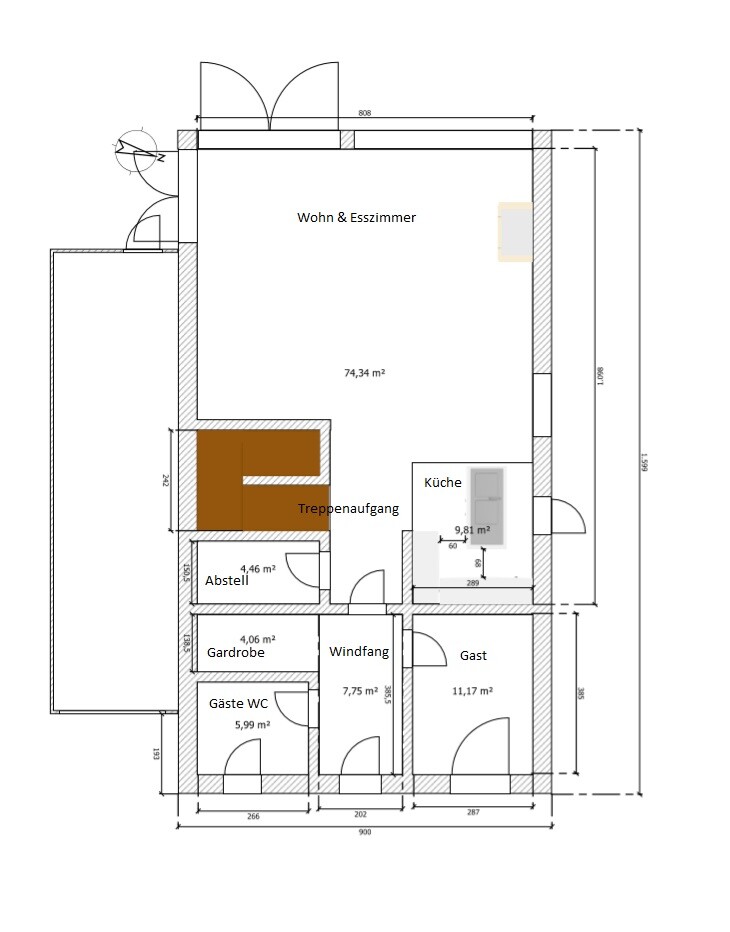
Grundriss eines Wohn- und Esszimmers mit Küche, Gastzimmer, Windfang und Treppenaufgang.


Grundriss eines Hauses mit Kind 1, Kind 2, Eltern, Ankleide, Flur, Elternbad, Kind Bad; braun markierter Bereich.
C
Crossy
03.01.20 17:48
Zeichne doch mal Möbel in diesen quadratischen Allraum ein.
Dann siehst du wo die Probleme liegen.
H
haydee
03.01.20 18:28
In jedem Raum Möbel einzeichnen.
M
Müllerin
03.01.20 19:29
Oben viel besser als vorher.
Unten.. naja ich nehm an es soll eine offen Küche werden? Warum ist dann die Insel so gequetscht, da kann man ja nicht gescheit dran arbeiten.
Ich schließe mich an: Möbel rein, maßstabsgetreu natürlich.
möbelwohnzimmertreppe