Grundrissplanung Einfamilienhaus, ca. 9x11m, 2 Vollgeschosse + Dachgeschoss

4,30 Stern(e) 6 Votes
Zuletzt aktualisiert 24.11.2025
Sie befinden sich auf der Seite 7 der Diskussion zum Thema: Grundrissplanung Einfamilienhaus, ca. 9x11m, 2 Vollgeschosse + Dachgeschoss
>> Zum 1. Beitrag <<

Y

ypg

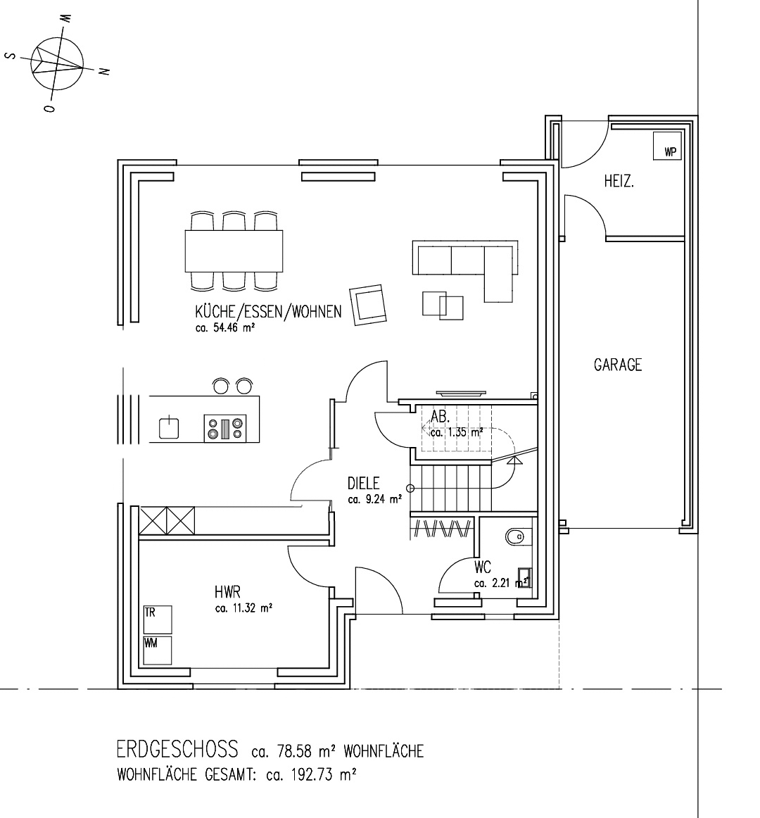
Ich würde die Tür der Ankleide nach weiter planoben versetzen und Toilette/Dusche tauschen (Toilette ist bei einem Fenster besser aufgehoben)
Zu den Fenstern im EG: immer noch nur ein Fenster im Westen und zwei bzw ein größeres im Süden. Erklärung dafür gab es schon.
 
kaho674

kaho674

Diese Kücheninsel wirkt doch irgendwie unharmonisch, oder? So steht sie doch halb und quer im Esszimmer, anstatt in der Küche. Braucht Ihr wirklich so viele Küchenschränke, dass da ein L stehen muss? Ansonsten fände ich den Standard besser:


Grundriss Erdgeschoss: Küche/Essen/Wohnen, Diele, HWR, WC, Abstellraum, Garage, Heizraum.
 
Y

ypg

Diese Kücheninsel wirkt doch irgendwie unharmonisch, oder? So steht sie doch halb und quer im Esszimmer, anstatt in der Küche. Braucht Ihr wirklich so viele Küchenschränke, dass da ein L stehen muss? Ansonsten fände ich den Standard besser:

Anhang anzeigen 23361
Naja, grundsätzlich finde ich die gut so. Allerdings sind Herd und Spüle in kleinster Weise kochfreundlich oder ergonomisch mit Kühlschrank und Ofen vereint. Das Arbeitsdreieck ist hier nicht vorhanden, und die Insel steht beim Arbeiten im Weg.

Mir würde außerdem nicht gefallen, dass man das WZ als Durchgang missbraucht...
 
Zuletzt aktualisiert 24.11.2025
Im Forum Grundrissplanung / Grundstücksplanung gibt es 2536 Themen mit insgesamt 87999 Beiträgen


Ähnliche Themen zu Grundrissplanung Einfamilienhaus, ca. 9x11m, 2 Vollgeschosse + Dachgeschoss
Nr.ErgebnisBeiträge
18,02m Positionierung Waschbecken / Toilette - Seite 469
2Neubau Fenster Brüstungshöhe für Gäste-WC 30
3Grundriss Bad so möglich - Abstand Toilette zum Fallrohr 12
4Badplanung 14m², Neubau, quadratisch, zwei Fenster - Seite 870
5Erfahrungen Spülrandlose Toilette - Seite 4104
6Toilette zu nah an Wand, was nun? 31
7Einbruchsichere Fenster? - Seite 233
8Innenraum Gestaltung - Fenster 14
9Aufpreis für farbige Fenster realistisch? - Seite 319
10Gutachter Mängelfeststellung, Feststellung Einbau Fenster 10
11Riesiges Problem mit dem Kondenswasser am Fenster - Seite 334
12Trefz Fenster Preise und Erfahrungen? 14
13Fenster, Vorbaurollladen, Außenputz 10
14Rundes Fenster - unzufrieden mit Innenlaibung 16
15Welche Rollläden bei verschlossenem Fenster, nur Verglasung? 13
16 Küchenplanung mit tiefen Fenster - Seite 643
17Fenster im Neubau: Dreifachverglasung mit Grünstich? - Seite 321
18Grundrissfrage, Treppe, Fenster, Ausrichtung 12
19Welche Fenster und Türen empfehlenswert? 21
20Bodengleiche Dusche mit Fenster in der Nähe 13

Oben