ᐅ Grundrissplanung der Küche in Bungalow - Wer hat Ideen?
Erstellt am: 06.03.18 15:10
Moin,
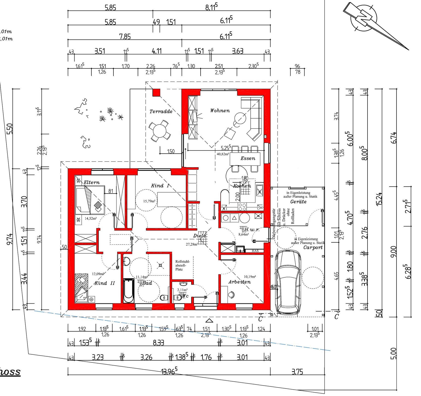
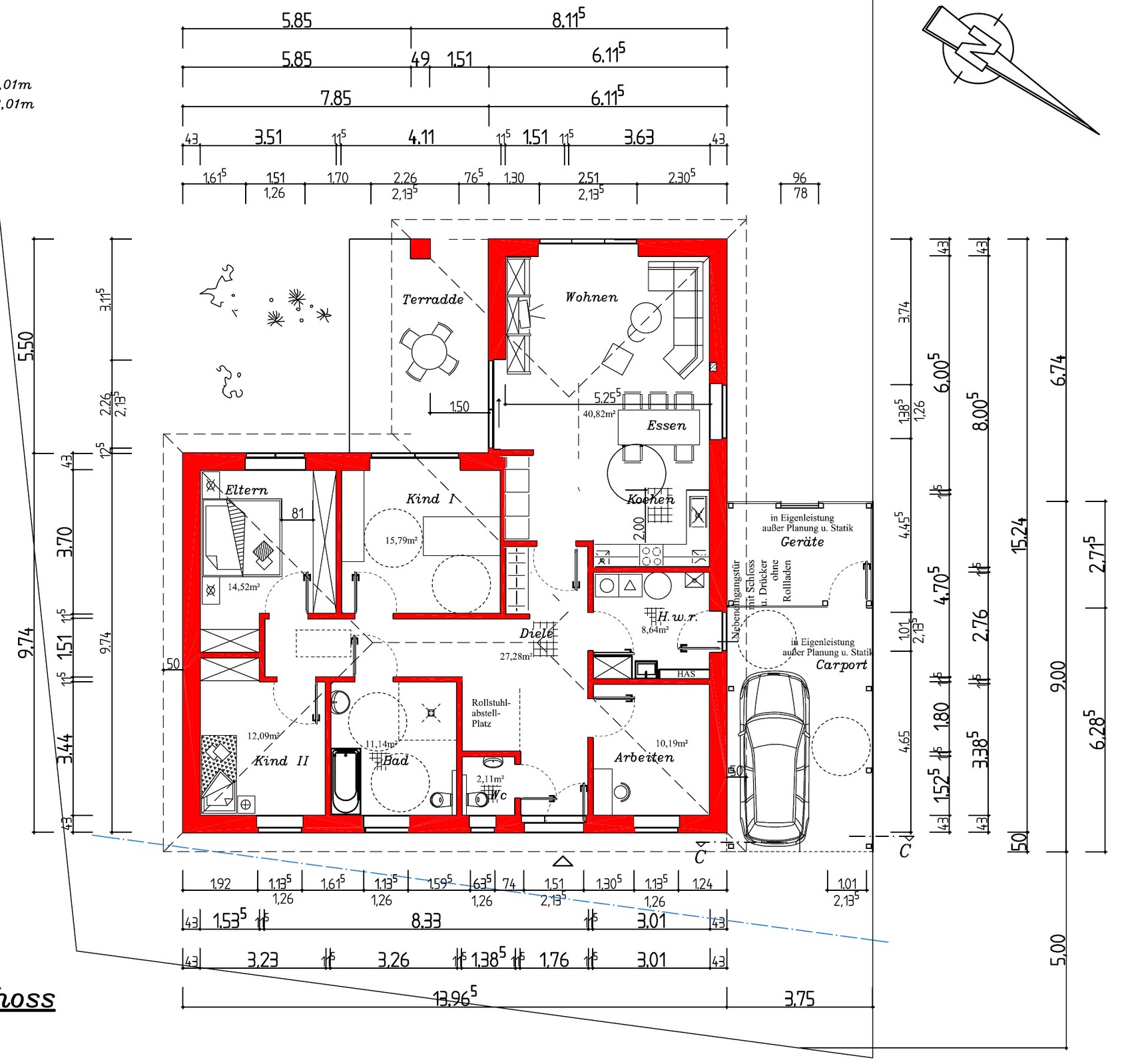
wir sind mittlerweile mit der Finanzierung und Grundstück durch und machen wider mit der Planung und Grundriss weiter. Es geht gerade konkret um die Küche.
Grundriss habe ich hochgeladen. Küche0 ist Vorschlag von Bauunternehmer. Das habe ich etwas manipuliert, und jetzt habe ich noch dazu, 3 verschiedenen Varianten(Küche1, Küche2, Küche3).
Ich möchte gerne wissen, welche Variante bevorzugt ihr und warum?
Für weitere Verbesserungsvorschläge werde ich auch dankbar sein.
Besten Dank
Reza




wir sind mittlerweile mit der Finanzierung und Grundstück durch und machen wider mit der Planung und Grundriss weiter. Es geht gerade konkret um die Küche.
Grundriss habe ich hochgeladen. Küche0 ist Vorschlag von Bauunternehmer. Das habe ich etwas manipuliert, und jetzt habe ich noch dazu, 3 verschiedenen Varianten(Küche1, Küche2, Küche3).
Ich möchte gerne wissen, welche Variante bevorzugt ihr und warum?
Für weitere Verbesserungsvorschläge werde ich auch dankbar sein.
Besten Dank
Reza
J
j.bautsch07.03.18 06:53ich denke auch die 3 ist nicht schlecht, bei der ersten und zweiten variante gefällt mir nicht das man so weit zu den hochschränken laufen muss. zum kühlschrank (der vermutlich ja da hin soll) muss man ja doch sehr oft, nicht nur vom esstisch aus. zudem ist der bereich auch noch durchgangsbereich nummer eins zum haupt wohnbereich. im zweiten vorschlag muss man auch noch um das stummelchen herum das keine mehrwert bringt. meiner meinung nach 😉
Nordlys schrieb:
Ich finde drei ganz gut. Man bekommt so eine L Küche bei Ikea zum Beispiel sehr günstig. Diese sicherlich für unter drei plus Montage. In den Winkel dann den side by side Kühl Gefrierschrank von Samsung. Und fertig ist die günstige Komplettküche.Hier ist etwas verwirrend. 3 nach Dateiname(Küche3) oder nach Reihenfolge [emoji1]Ähnliche Themen