Grundrissplanung 4 Personen, Kubatur vorgegeben

4,60 Stern(e) 8 Votes
Zuletzt aktualisiert 26.11.2025
Sie befinden sich auf der Seite 6 der Diskussion zum Thema: Grundrissplanung 4 Personen, Kubatur vorgegeben
>> Zum 1. Beitrag <<

K a t j a

K a t j a

Wurde der Keller auch untersagt oder wollt Ihr keinen? Bei kleinen Häusern entspannt der Keller oft.
Irgendwelche nennenswerte Höhenunterschiede auf dem Grundstück?
 
Y

ypg

Ähm, die Maße des Baufensters wären doch ganz nett, wegen den 6m Abstand...
Das Haus muss genau dort hin, wo das alte steht. Es darf etwas wenig, ca. 25cm größer werden… usw.
Allerdings nur unter dem Kompromiss, den Neubau auf dem aktuellen Standort einer alten Scheune zu errichten (Stichwort Vorbildwirkung beim Bauen im Außenbereich) und dabei auch die Kubatur der Scheune einzuhalten.
und haben daher sehr starre Vorgaben was die Grundrissplanung angeht.
Diese Vorgabe, dass das Haus genau dort in gleicher Kubatur gebaut werden darf/soll, hat nichts mit dem Grundriss zu tun.
Raumbedarf im EG, OG: vorgegeben
Und vorgeben tut das Bauamt Dir auch nicht, wieviel Zimmerchen oder welche Räume Du brauchst,

Letztendlich zählen Maße von allem, auch des Grundstücks. Wenn man 5 Jahre mit dem Bauamt verhandelt, könnte ich den Lageplan vom Grundstück mit allen Abmessungen und Abständen im Schlaf zeichnen.
Denn interessant wird es, ob man im Süden zb überhaupt Fenster setzen kann.

Und eine Zuwegung könnte man, also Du, auch schon einzeichnen - wo sie möglich ist.

Es gibt zwar etwas Licht ins Dunkle irgendwo mit dem Googleplan hier mitten in den 5 Seiten, aber so wirklich klar ist das alles nicht.
Und was ist mit der gekreuzten Fläche im Norden?

Das Netz ist voll mit Standardgrundrissen in kompakter Größe. @hanghaus2023 hat ja schon Danwood genannt, aber auch Google wird viel ausspucken, wenn man „Grundriss 120 qm“ eingibt. Auch DH können inspirieren, da die auf Optimum geplant wurden.
Holzständerbauweise verspricht dünnere Wände und dadurch mehr Grundfläche.
 
K a t j a

K a t j a

Das Haus muss genau dort hin, wo das alte steht.
Ich bin da nicht so sicher ob der TE tatsächlich die Grundfläche des jetzigen Gebäudes meinte. Eventuell ist der gesamte Teil seines Grundstück gemeint, welches als Wohnbaufläche gekennzeichnet ist. Das würde imho auch mehr Sinn machen, da man von der Gemeinde nicht erwarten würde, dass sie einem Neubau zustimmt, der sämtliche Abstandsregeln missachtet. Aber wer weiß...
 
kbt09

kbt09

Ich sehe das wie @K a t j a .. denn ich hatte den TE auch so verstanden, dass eine Grundstücksteilung erfolgen soll, so dass dann eigentlich die Abstandsflächen greifen sollten. Idealerweise erfolgt die Grundstücksteilung dann auf der Linie, die 3 m vom Elternhaus entfernt ist.
 
S

Sumi2188

Wow, vielen Dank für eure zahlreichen Antworten, ich versuch mal alles offene zu beantworten.

Ich vermute, dass das gelbe Euer Baufenster ist? Dort könnt Ihr frei verschieben? Oder ginge es etwa auch planrechts?
Wie sieht es denn mit den Leitungen aus? Könnt Ihr von den Eltern verlängern?
Könnt Ihr das Häuslein auch drehen oder ist die Firstrichtung festgelegt?


Anhang anzeigen 78395

Was ist das für ein Gebäude, was da auf Deinem Land rum steht? Sieht aus, wie vom Nachbarn? Hat das Grundstück (Grundstück) da einen Knick? Wie hoch ist das?
Nein, wir dürfen wirklich nur da bauen, wo die Scheune aktuell steht bzw. eben um die Längsachse 3 Meter in nördliche Richtung geschoben. Es gibt unterschiedliche Pläne. Der Flächennutzungsplan weißt z.B. die ganze Parzelle 1/4 als Wohnbaufläche aus, er ist aber auf Grund fehlender Satzung nicht gültig. Beim Bauamt wird sich darauf bezogen, dass auch diese Karte hier so nicht gültig ist, die ziehen die Außenbereichsgrenze mit 3 Meter Abstand um das Elternhaus (HN 14), demnach ist für sie die Scheune eh schon im Außenbereich.



Wäre es hier nicht sinnvoller, den Gesamtbedarf systemisch zu betrachten, und den Neubau eher als Austragshäusl für die Eltern zu planen ?
Auch das haben wir durchdacht, leider finanziell nicht möglich. Das Elternhaus ist ebenfalls in keinem guten Bauzustand, die Sanierungskosten und Neubaukosten würden unser Budget sprengen. Zumal das Elternhaus auch eine ziemlich Wundertüte ist (Strohdecken etc).

Wurde der Keller auch untersagt oder wollt Ihr keinen? Bei kleinen Häusern entspannt der Keller oft.
Irgendwelche nennenswerte Höhenunterschiede auf dem Grundstück?
Ja, auch kein Keller, kein Erker... nichts was von dem aktuellen Bau in der Form abweicht. Nein gibt keine wirklichen Höhenunterschiede.
 
K a t j a

K a t j a

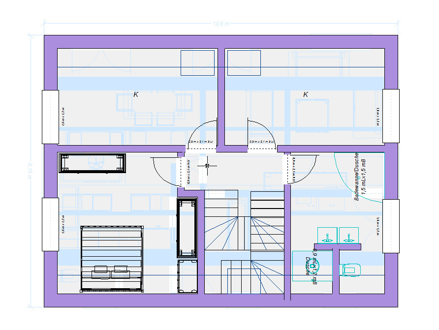
Okay, ich leg mal einen vor, damit wir ein Gefühl für die Sache kriegen.
Vorab zur Erinnerung: Das ist ein kleines Haus! Hier geht es um jeden Zentimeter und man sollte Kompromisse machen können. Ich habe mal folgende Annahmen gemacht: Bodenplatte versenkt bis auf 10cm über der Erde. Deckenhöhe 2,40m in jedem Geschoss. Decke + Fußbodenaufbau 30cm, Kniestock 145cm, 45° Dachneigung. Augebaute Spitze! Ich hoffe, ich hab mich nicht verrechnet. ;)

Ich wollte erst die Technik ins Dach legen, aber das geht m.W. nur bei Gasheizung sinnvoll. Gas ist out sagt Putin, also muss man hier die Kröte schlucken und über das WZ in den Technikraum gehen.

Vorteile:
- Die Dachspitze bringt zwar nur 2 kleine aber wichtige Räume. Büro und Wäscheraum finden da oben gerade so Platz.
- Wohnzimmer / Küche und Essplatz glänzen mit 46,7qm, was für die Hausgröße beachtlich ist.
- Geschlossene Bauweise sorgt für Ruhe im Haus.

Nachteile:
- Zugang Technikraum über WZ - lässt sich vielleicht ein wenig kaschieren, in dem man Rohre und Leitungen gut verkleidet und die große Technik um die Ecke mit einem Regal davor verbirgt. Oder jemand hat noch eine Idee, wie sie doch nach oben kann.
- Deckenhöhe nur 2,40m Mindestmaß.
- Die Wände sind nicht übereinander so dass man wegen der Statik vermutlich nur mit Leichtbau arbeiten kann.

Planunten ist Osten, Terrasse im Westen:


Grundriss eines Innenraums mit Esstisch, Sitzgruppen, Treppen, Technikraum und Türen.


Grundriss eines Gebäudes mit Treppenhaus, Türen, Möblierung und Bädern in Blau-Lila.


Grundriss eines Gebäudeteils mit Büro- und Wäscheraum, lilafarbene Wände, Möbel dargestellt.



Zweistöckiges graues Haus mit dunklem Satteldach, Holzfenstern und Terrasse auf Gras.
 
Zuletzt aktualisiert 26.11.2025
Im Forum Grundrissplanung / Grundstücksplanung gibt es 2536 Themen mit insgesamt 88016 Beiträgen


Ähnliche Themen zu Grundrissplanung 4 Personen, Kubatur vorgegeben
Nr.ErgebnisBeiträge
1Grundriss-Umbau Teil einer Scheune zu Einfamilienhaus mit Option zu Zweifamilienhaus - Seite 533
2Grundriss für Einfamilienhaus 7x12m 14
3Hausanschlussplanung und Technikraum im Keller 11
4Grundriss Einfamilienhaus mit Keller 19
5Projekt Eigenheim - Keller, Grundriss EG - Tipps 76
6Einfamilienhaus ohne Keller - Diskussion Grundriss 19
7Grundriss Einfamilienhaus Hanglage mit Keller 19
8Grundriss für Einfamilienhaus 210 m² + Keller - Eure Meinungen 16
9Grundriss Einfamilienhaus ca. 200qm Doppelgarage Keller - Seite 432
10Kritik an Einfamilienhaus-Grundriss erwünscht (~175m2/0,9m Kniestock/Keller) 16
11Grundriss Stadtvilla 180m², Keller, 3 Kinder - Eure Meinungen dazu? - Seite 251
12Detailplanung Grundriss Einfamilienhaus mit Keller und Einliegerwohnung 28
13Grundriss Bungalow 160-170qm mit Keller - Seite 4175
14Grundriss 165 m² mit Keller eure Meinung - Seite 352
15Grundriss Einfamilienhaus ca. 200qm mit Keller - Hinterbebauung 20
16Grundriss Einfamilienhaus 2 Vollgeschosse +Keller ca. 130m² Wohnfläche 30
17Grundriss Einfamilienhaus ca. 190qm mit Keller auf Millimeterpapier 78
18Grundriss für Einfamilienhaus mit 200m² mit Einliegerwohnung 75 +Keller 140m² +Garage 56m² - Seite 659
19Grundriss Einfamilienhaus 190m2 mit Keller Feedback? 41
20Grundriss Einfamilienhaus ~165m² plus Keller - Seite 5165

Oben